Property
Account |
| Property ID: | 180440 | Abbreviated Legal Description: | ANDER PK LOT 16, 17 & 18 BLK 4 |
| Geographic ID: | S6030-00-04016-0 | Agent Code: | |
| Type: | Real | | |
| Tax Area: | 710 - APPRAISER-S Whid Schl Dist, outside Langley, improved & 1 acre or less | Land Use Code | 11 |
| Open Space: | N | DFL | N |
| Historic Property: | N | Remodel Property: | N |
| Multi-Family Redevelopment: | N | | |
| Township: | | Section: | |
| Range: | |
Location |
| Address: | 2181 ANDER PARK RD FREELAND, WA 98249 | Mapsco: | |
| Neighborhood: | Cycle 3 | Map ID: | 412 |
| Neighborhood CD: | 3 |
Owner |
| Name: | JACOBS, MICHELLE ELAINE | Owner ID: | 278462 |
| Mailing Address: | 2181 ANDER PARK RD FREELAND, WA 98249 | % Ownership: | 100.0000000000% |
| | | Exemptions: | |
Taxes and Assessment Details
Values
| (+) Improvement Homesite Value: | + | $0 | |
| (+) Improvement Non-Homesite Value: | + | $27,559 | |
| (+) Land Homesite Value: | + | $0 | |
| (+) Land Non-Homesite Value: | + | $20,000 | |
| (+) Curr Use (HS): | + | $0 | $0 |
| (+) Curr Use (NHS): | + | $0 | $0 |
| | | -------------------------- | |
| (=) Market Value: | = | $47,559 | |
| (–) Productivity Loss: | – | $0 | |
| | | -------------------------- | |
| (=) Subtotal: | = | $47,559 | |
| (+) Senior Appraised Value: | + | $0 | |
| (+) Non-Senior Appraised Value: | + | $47,559 | |
| | | -------------------------- | |
| (=) Total Appraised Value: | = | $47,559 | |
| (–) Senior Exemption Loss: | – | $0 | |
| (–) Exemption Loss: | – | $0 | |
| | | -------------------------- | |
| (=) Taxable Value: | = | $47,559 | |
Taxing Jurisdiction
| Owner: | JACOBS, MICHELLE ELAINE | | |
| % Ownership: | 100.0000000000% | | |
| Total Value: | $47,559 | | |
| Tax Area: | 710 - APPRAISER-S Whid Schl Dist, outside Langley, improved & 1 acre or less |
| CF | Conservation Futures | 0.0313996660 | $47,559 | $47,559 | $1.49 | | |
| FIRE3 | Fire & Rescue Dist #3 S Whidbey GEN | 1.2130821753 | $47,559 | $47,559 | $57.69 | | |
| HOBOND | Hospital BOND | 0.1893405597 | $47,559 | $47,559 | $9.00 | | |
| HOGEN | Hospital GEN | 0.3848777722 | $47,559 | $47,559 | $18.30 | | |
| CE | County Current Expense | 0.3674210519 | $47,559 | $47,559 | $17.47 | | |
| CR | County Roads | 0.4614296361 | $47,559 | $47,559 | $21.95 | | |
| ISLANDEMS | Hospital GEN (EMS) | 0.4952018576 | $47,559 | $47,559 | $23.55 | | |
| LIB | Library Sno-Isle GEN | 0.3039084203 | $47,559 | $47,559 | $14.45 | | |
| PORTWHID | Port of S Whidbey GEN | 0.1086004714 | $47,559 | $47,559 | $5.16 | | |
| SCH206BOND | School 206 BOND | 0.5960237832 | $47,559 | $47,559 | $28.35 | | |
| SCH206CAP | School 206 CP | 0.3066144020 | $47,559 | $47,559 | $14.58 | | |
| SCH206MO | School 206 Enrichment | 0.4808755445 | $47,559 | $47,559 | $22.87 | | |
| ST | State School | 1.4761226122 | $47,559 | $47,559 | $70.20 | | |
| ST2 | State School Part 2 | 0.7953803475 | $47,559 | $47,559 | $37.83 | | |
| SWHIDPRBD | P & R S Whidbey BOND | 0.0144185398 | $47,559 | $47,559 | $0.69 | | |
| SWHIDPRBD3 | P & R S Whidbey BOND3 | 0.1483535547 | $47,559 | $47,559 | $7.06 | | |
| SWHIDPRMT | P & R S Whidbey GEN | 0.4600000000 | $47,559 | $47,559 | $21.88 | | |
| | Total Tax Rate: | 7.8330503944 | | | | | |
| | | | | Taxes w/Current Exemptions: | $372.52 | | |
| | | | | Taxes w/o Exemptions: | $372.52 | | |
Improvement / Building
| Improvement #1: | RESIDENTIAL | State Code: | Y | 0.0 sqft | Value: | $27,559 |
| | Type | Description | Class CD | Sub Class CD | Year Built | Area |
| | oCB2 | CABIN FIN | 2 | 0 | 2019 | 120.0 |
| | oGAR | GARAGE | 4 | 0 | 2024 | 280.0 |
| | oLOF | STORAGE LOFT | 4 | 0 | 2024 | 280.0 |
| | oOWR | WDD/ROOF | 4 | 0 | 2024 | 336.0 |
Sketch
Property Image
Land
| 1 | 14 | SQ (08001-12000) | 0.0000 | 0.00 | 0.00 | 0.00 | 1.00 | $20,000 | $0 |
Roll Value History
| 2026 | N/A | N/A | N/A | N/A | N/A |
| 2025 | $27,559 | $20,000 | $0 | $47,559 | $47,559 |
| 2024 | $12,000 | $20,000 | $0 | $32,000 | $32,000 |
| 2023 | $12,000 | $18,000 | $0 | $30,000 | $30,000 |
| 2022 | $12,000 | $9,000 | $0 | $21,000 | $21,000 |
| 2021 | $12,000 | $7,000 | $0 | $19,000 | $19,000 |
| 2020 | $12,000 | $7,000 | $0 | $19,000 | $19,000 |
| 2019 | $0 | $7,000 | $0 | $7,000 | $7,000 |
| 2018 | $0 | $7,000 | $0 | $7,000 | $7,000 |
| 2017 | $0 | $5,000 | $0 | $5,000 | $5,000 |
| 2016 | $0 | $5,000 | $0 | $5,000 | $5,000 |
| 2015 | $0 | $5,000 | $0 | $5,000 | $5,000 |
| 2014 | $0 | $5,000 | $0 | $5,000 | $5,000 |
| 2013 | $0 | $5,000 | $0 | $5,000 | $5,000 |
| 2012 | $0 | $8,100 | $0 | $8,100 | $8,100 |
| 2011 | $0 | $8,100 | $0 | $8,100 | $8,100 |
| 2010 | $0 | $9,000 | $0 | $9,000 | $9,000 |
| 2009 | $0 | $9,000 | $0 | $9,000 | $9,000 |
| 2008 | $0 | $9,000 | $0 | $9,000 | $9,000 |
| 2007 | $0 | $3,240 | $0 | $3,240 | $3,240 |
Deed and Sales History
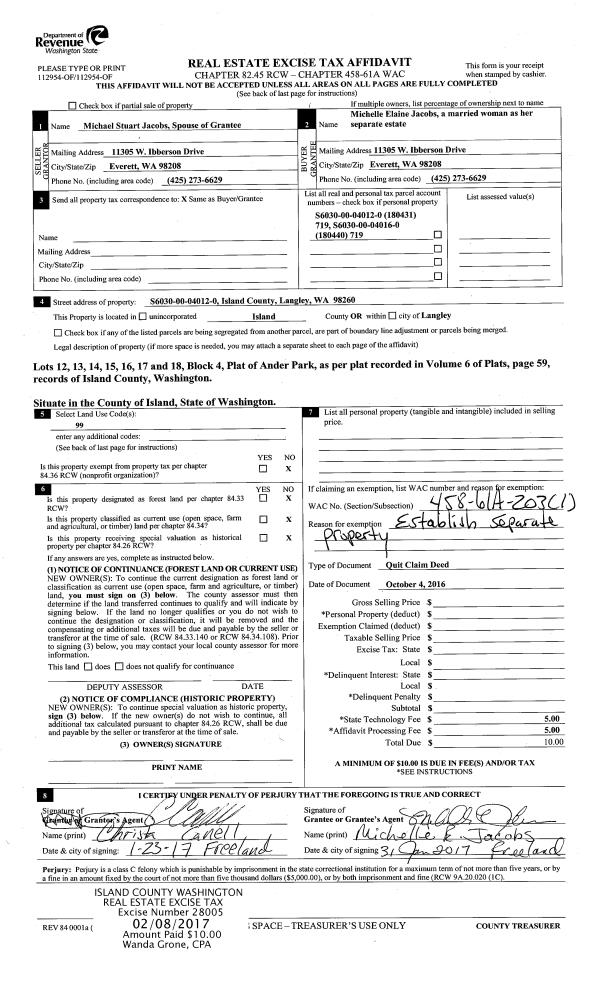
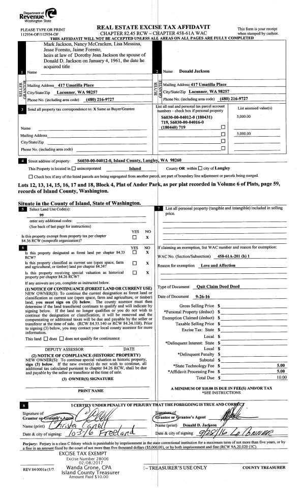
| 1 | 10/04/2016 | ESTSEPPROP | Establish Separate Property | JACOBS, MICHELLE ELAINE | JACOBS, MICHELLE ELAINE | | | $0.00 | 28005 | 4416686 |
| 2 | 01/26/2017 | WD | Warranty Deed | JACKSON, DONALD D | JACOBS, MICHELLE ELAINE | | | $25,000.00 | 28004 | 4416685 |
|   | |
| 3 | 09/26/2016 | QCD | Quit Claim Deed | JACKSON, DONALD D | JACKSON, DONALD D | | | $0.00 | 28006 | 4416684 |
Payout Agreement
| No payout information available.. |