Property
Account |
| Property ID: | 181403 | Abbreviated Legal Description: | AQUA VU LOT 6 BLK E |
| Geographic ID: | S6040-00-0E006-0 | Agent Code: | |
| Type: | Real | | |
| Tax Area: | 319 - APPRAISER-Cpvl Schl Dist, outside Cpvl, vacant & 50 acres or less | Land Use Code | 99 |
| Open Space: | N | DFL | N |
| Historic Property: | N | Remodel Property: | N |
| Multi-Family Redevelopment: | N | | |
| Township: | | Section: | |
| Range: | |
Location |
| Address: | CAMANO VISTA ST GREENBANK, WA 98253 | Mapsco: | |
| Neighborhood: | Cycle 3 | Map ID: | 381 |
| Neighborhood CD: | 3 |
Owner |
| Name: | LKG WHIDBEY LLC | Owner ID: | 303195 |
| Mailing Address: | 2121 31ST AVE SOUTH SEATTLE, WA 98144 | % Ownership: | 100.0000000000% |
| | | Exemptions: | |
Taxes and Assessment Details
Values
| (+) Improvement Homesite Value: | + | $0 | |
| (+) Improvement Non-Homesite Value: | + | $0 | |
| (+) Land Homesite Value: | + | $0 | |
| (+) Land Non-Homesite Value: | + | $30,000 | |
| (+) Curr Use (HS): | + | $0 | $0 |
| (+) Curr Use (NHS): | + | $0 | $0 |
| | | -------------------------- | |
| (=) Market Value: | = | $30,000 | |
| (–) Productivity Loss: | – | $0 | |
| | | -------------------------- | |
| (=) Subtotal: | = | $30,000 | |
| (+) Senior Appraised Value: | + | $0 | |
| (+) Non-Senior Appraised Value: | + | $30,000 | |
| | | -------------------------- | |
| (=) Total Appraised Value: | = | $30,000 | |
| (–) Senior Exemption Loss: | – | $0 | |
| (–) Exemption Loss: | – | $0 | |
| | | -------------------------- | |
| (=) Taxable Value: | = | $30,000 | |
Taxing Jurisdiction
| Owner: | LKG WHIDBEY LLC | | |
| % Ownership: | 100.0000000000% | | |
| Total Value: | $30,000 | | |
| Tax Area: | 319 - APPRAISER-Cpvl Schl Dist, outside Cpvl, vacant & 50 acres or less |
| CF | Conservation Futures | 0.0313996660 | $30,000 | $30,000 | $0.94 | | |
| CEM2 | Cemetery #2 | 0.0092609791 | $30,000 | $30,000 | $0.28 | | |
| HOBOND | Hospital BOND | 0.1893405597 | $30,000 | $30,000 | $5.68 | | |
| HOGEN | Hospital GEN | 0.3848777722 | $30,000 | $30,000 | $11.55 | | |
| CE | County Current Expense | 0.3674210519 | $30,000 | $30,000 | $11.02 | | |
| CR | County Roads | 0.4614296361 | $30,000 | $30,000 | $13.84 | | |
| ISLANDEMS | Hospital GEN (EMS) | 0.4952018576 | $30,000 | $30,000 | $14.86 | | |
| LIB | Library Sno-Isle GEN | 0.3039084203 | $30,000 | $30,000 | $9.12 | | |
| LIBCAP | Library Sno-Isle BOND (Cap Fac Imp Area) | 0.0528562629 | $30,000 | $30,000 | $1.59 | | |
| POCOUP | Port of Coupeville GEN | 0.1065226063 | $30,000 | $30,000 | $3.20 | | |
| POCOUPIDD | Port of Coupeville IDD | 0.3353038577 | $30,000 | $30,000 | $10.06 | | |
| COUPSDTECH | School 204 CP (TECH) | 0.1215123397 | $30,000 | $30,000 | $3.65 | | |
| SCH204MO | School 204 Enrichment | 0.6416662518 | $30,000 | $30,000 | $19.25 | | |
| ST | State School | 1.4761226122 | $30,000 | $30,000 | $44.28 | | |
| ST2 | State School Part 2 | 0.7953803475 | $30,000 | $30,000 | $23.86 | | |
| | Total Tax Rate: | 5.7722042210 | | | | | |
| | | | | Taxes w/Current Exemptions: | $173.18 | | |
| | | | | Taxes w/o Exemptions: | $173.18 | | |
Improvement / Building
Sketch
| No sketches available for this property. |
Property Image
Land
| 1 | HB | HIGH BLUFF | 0.0000 | 0.00 | 85.00 | 0.00 | 1.00 | $30,000 | $0 |
Roll Value History
| 2026 | N/A | N/A | N/A | N/A | N/A |
| 2025 | $0 | $30,000 | $0 | $30,000 | $30,000 |
| 2024 | $0 | $30,000 | $0 | $30,000 | $30,000 |
| 2023 | $0 | $25,000 | $0 | $25,000 | $25,000 |
| 2022 | $0 | $25,000 | $0 | $25,000 | $25,000 |
| 2021 | $0 | $25,000 | $0 | $25,000 | $25,000 |
| 2020 | $0 | $25,000 | $0 | $25,000 | $25,000 |
| 2019 | $0 | $25,000 | $0 | $25,000 | $25,000 |
| 2018 | $0 | $150,000 | $0 | $150,000 | $150,000 |
| 2017 | $0 | $85,000 | $0 | $85,000 | $85,000 |
| 2016 | $0 | $85,000 | $0 | $85,000 | $85,000 |
| 2015 | $0 | $85,000 | $0 | $85,000 | $85,000 |
| 2014 | $0 | $85,000 | $0 | $85,000 | $85,000 |
| 2013 | $0 | $87,462 | $0 | $87,462 | $87,462 |
| 2012 | $0 | $87,462 | $0 | $87,462 | $87,462 |
| 2011 | $0 | $87,462 | $0 | $87,462 | $87,462 |
| 2010 | $0 | $87,462 | $0 | $87,462 | $87,462 |
| 2009 | $0 | $122,668 | $0 | $122,668 | $122,668 |
| 2008 | $0 | $123,038 | $0 | $123,038 | $123,038 |
| 2007 | $0 | $96,435 | $0 | $96,435 | $96,435 |
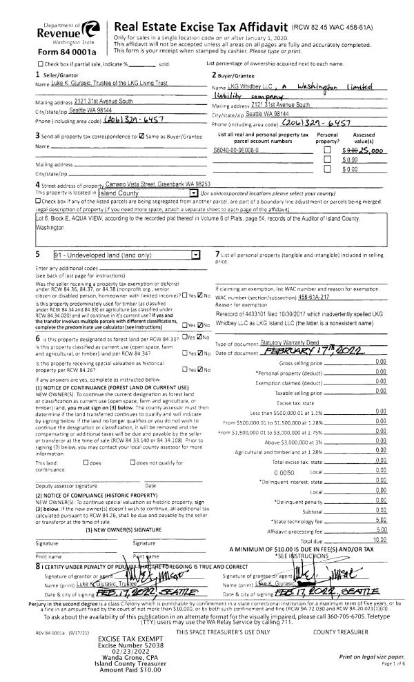
Deed and Sales History
| 1 | 02/17/2022 | WD | Warranty Deed | GJURASIC TRUSTEE, LUKE K | LKG WHIDBEY LLC | | | $0.00 | 52038 | 4540202 |
| 2 | 09/28/2017 | WD | Warranty Deed | GJURASIC TRUSTEE, LUKE K | LKG ISLAND, LLC | | | $0.00 | 31719 | 4433101 |
| 3 | 09/28/2017 | WD | Warranty Deed | GJURASIC, LUKE K | GJURASIC TRUSTEE, LUKE K | | | $0.00 | 31718 | 4433100 |
Payout Agreement
| No payout information available.. |