Property
Account |
| Property ID: | 181519 | Abbreviated Legal Description: | ARCADIA LOT 7 BLK 1 SEE AFF# 361623 |
| Geographic ID: | S6045-00-01007-0 | Agent Code: | |
| Type: | Real | | |
| Tax Area: | 319 - APPRAISER-Cpvl Schl Dist, outside Cpvl, vacant & 50 acres or less | Land Use Code | 99 |
| Open Space: | N | DFL | N |
| Historic Property: | N | Remodel Property: | N |
| Multi-Family Redevelopment: | N | | |
| Township: | | Section: | |
| Range: | |
Location |
| Address: | ARCADIA RD GREENBANK, WA 98253 | Mapsco: | |
| Neighborhood: | Cycle 3 | Map ID: | 405 |
| Neighborhood CD: | 3 |
Owner |
| Name: | WISSLER, GAVIN | Owner ID: | 295718 |
| Mailing Address: | 3742 ARCADIA RD GREENBANK, WA 98253 | % Ownership: | 100.0000000000% |
| | | Exemptions: | |
Taxes and Assessment Details
Values
| (+) Improvement Homesite Value: | + | $0 | |
| (+) Improvement Non-Homesite Value: | + | $0 | |
| (+) Land Homesite Value: | + | $0 | |
| (+) Land Non-Homesite Value: | + | $12,000 | |
| (+) Curr Use (HS): | + | $0 | $0 |
| (+) Curr Use (NHS): | + | $0 | $0 |
| | | -------------------------- | |
| (=) Market Value: | = | $12,000 | |
| (–) Productivity Loss: | – | $0 | |
| | | -------------------------- | |
| (=) Subtotal: | = | $12,000 | |
| (+) Senior Appraised Value: | + | $0 | |
| (+) Non-Senior Appraised Value: | + | $12,000 | |
| | | -------------------------- | |
| (=) Total Appraised Value: | = | $12,000 | |
| (–) Senior Exemption Loss: | – | $0 | |
| (–) Exemption Loss: | – | $0 | |
| | | -------------------------- | |
| (=) Taxable Value: | = | $12,000 | |
Taxing Jurisdiction
| Owner: | WISSLER, GAVIN | | |
| % Ownership: | 100.0000000000% | | |
| Total Value: | $12,000 | | |
| Tax Area: | 319 - APPRAISER-Cpvl Schl Dist, outside Cpvl, vacant & 50 acres or less |
| CF | Conservation Futures | 0.0313996660 | $12,000 | $12,000 | $0.38 | | |
| CEM2 | Cemetery #2 | 0.0092609791 | $12,000 | $12,000 | $0.11 | | |
| HOBOND | Hospital BOND | 0.1893405597 | $12,000 | $12,000 | $2.27 | | |
| HOGEN | Hospital GEN | 0.3848777722 | $12,000 | $12,000 | $4.62 | | |
| CE | County Current Expense | 0.3674210519 | $12,000 | $12,000 | $4.41 | | |
| CR | County Roads | 0.4614296361 | $12,000 | $12,000 | $5.54 | | |
| ISLANDEMS | Hospital GEN (EMS) | 0.4952018576 | $12,000 | $12,000 | $5.94 | | |
| LIB | Library Sno-Isle GEN | 0.3039084203 | $12,000 | $12,000 | $3.65 | | |
| LIBCAP | Library Sno-Isle BOND (Cap Fac Imp Area) | 0.0528562629 | $12,000 | $12,000 | $0.63 | | |
| POCOUP | Port of Coupeville GEN | 0.1065226063 | $12,000 | $12,000 | $1.28 | | |
| POCOUPIDD | Port of Coupeville IDD | 0.3353038577 | $12,000 | $12,000 | $4.02 | | |
| COUPSDTECH | School 204 CP (TECH) | 0.1215123397 | $12,000 | $12,000 | $1.46 | | |
| SCH204MO | School 204 Enrichment | 0.6416662518 | $12,000 | $12,000 | $7.70 | | |
| ST | State School | 1.4761226122 | $12,000 | $12,000 | $17.71 | | |
| ST2 | State School Part 2 | 0.7953803475 | $12,000 | $12,000 | $9.54 | | |
| | Total Tax Rate: | 5.7722042210 | | | | | |
| | | | | Taxes w/Current Exemptions: | $69.26 | | |
| | | | | Taxes w/o Exemptions: | $69.26 | | |
Improvement / Building
Sketch
| No sketches available for this property. |
Property Image
Land
| 1 | 14 | SQ (08001-12000) | 0.1900 | 8276.40 | 0.00 | 0.00 | 1.00 | $12,000 | $0 |
Roll Value History
| 2026 | N/A | N/A | N/A | N/A | N/A |
| 2025 | $0 | $12,000 | $0 | $12,000 | $12,000 |
| 2024 | $0 | $12,000 | $0 | $12,000 | $12,000 |
| 2023 | $0 | $9,000 | $0 | $9,000 | $9,000 |
| 2022 | $0 | $9,000 | $0 | $9,000 | $9,000 |
| 2021 | $0 | $7,000 | $0 | $7,000 | $7,000 |
| 2020 | $0 | $7,000 | $0 | $7,000 | $7,000 |
| 2019 | $0 | $5,000 | $0 | $5,000 | $5,000 |
| 2018 | $0 | $5,000 | $0 | $5,000 | $5,000 |
| 2017 | $0 | $5,000 | $0 | $5,000 | $5,000 |
| 2016 | $0 | $5,000 | $0 | $5,000 | $5,000 |
| 2015 | $0 | $5,000 | $0 | $5,000 | $5,000 |
| 2014 | $0 | $5,000 | $0 | $5,000 | $5,000 |
| 2013 | $0 | $5,000 | $0 | $5,000 | $5,000 |
| 2012 | $0 | $6,000 | $0 | $6,000 | $6,000 |
| 2011 | $0 | $6,000 | $0 | $6,000 | $6,000 |
| 2010 | $0 | $6,000 | $0 | $6,000 | $6,000 |
| 2009 | $0 | $7,200 | $0 | $7,200 | $7,200 |
| 2008 | $0 | $7,200 | $0 | $7,200 | $7,200 |
| 2007 | $0 | $6,700 | $0 | $6,700 | $6,700 |
Deed and Sales History
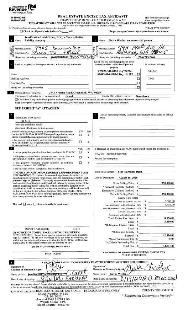
| 1 | 08/18/2020 | WD | Warranty Deed | INN-OVATION HOTEL GROUP, LLC | WISSLER, GAVIN | | | $770,000.00 | 44329 | 4494362 |
|   | |
| 2 | 01/07/2020 | WD | Warranty Deed | TRIMBLE, ARTHUR R | INN-OVATION HOTEL GROUP, LLC | | | $350,000.00 | 41808 | 4479365 |
|   | |
| 3 | 07/01/1979 | TRUSTEED | Trustee's Deed | SINGER, JACK | TRIMBLE, ARTHUR R | | | $3,000.00 | 93978 | 357187 |
| 4 | 01/01/1900 | OTHER | Other - Misc. Documents | Unknown | SINGER, JACK | | | $0.00 | 0 | 0 |
Payout Agreement
| No payout information available.. |