Property
Account |
| Property ID: | 181939 | Abbreviated Legal Description: | ARROWHD BCH LOT 1 BLK 3 & ADJ TIDES |
| Geographic ID: | S6050-00-03001-0 | Agent Code: | |
| Type: | Real | | |
| Tax Area: | 519 - APPRAISER-Stan/Cam Schl Dist, vacant & 50 acres or less | Land Use Code | 99 |
| Open Space: | N | DFL | N |
| Historic Property: | N | Remodel Property: | N |
| Multi-Family Redevelopment: | N | | |
| Township: | | Section: | |
| Range: | |
Location |
| Address: | | Mapsco: | |
| Neighborhood: | North Camano | Map ID: | 950 |
| Neighborhood CD: | 06-C |
Owner |
| Name: | SECKEL, JUSTIN D | Owner ID: | 293166 |
| Mailing Address: | KATRINA SECKEL 638 GLENMONT DR SOLANA BEACH, CA 92075-1315 | % Ownership: | 100.0000000000% |
| | | Exemptions: | |
Taxes and Assessment Details
Values
| (+) Improvement Homesite Value: | + | $0 | |
| (+) Improvement Non-Homesite Value: | + | $0 | |
| (+) Land Homesite Value: | + | $0 | |
| (+) Land Non-Homesite Value: | + | $250,650 | |
| (+) Curr Use (HS): | + | $0 | $0 |
| (+) Curr Use (NHS): | + | $0 | $0 |
| | | -------------------------- | |
| (=) Market Value: | = | $250,650 | |
| (–) Productivity Loss: | – | $0 | |
| | | -------------------------- | |
| (=) Subtotal: | = | $250,650 | |
| (+) Senior Appraised Value: | + | $0 | |
| (+) Non-Senior Appraised Value: | + | $250,650 | |
| | | -------------------------- | |
| (=) Total Appraised Value: | = | $250,650 | |
| (–) Senior Exemption Loss: | – | $0 | |
| (–) Exemption Loss: | – | $0 | |
| | | -------------------------- | |
| (=) Taxable Value: | = | $250,650 | |
Taxing Jurisdiction
| Owner: | SECKEL, JUSTIN D | | |
| % Ownership: | 100.0000000000% | | |
| Total Value: | $250,650 | | |
| Tax Area: | 519 - APPRAISER-Stan/Cam Schl Dist, vacant & 50 acres or less |
| CF | Conservation Futures | 0.0313996660 | $250,650 | $250,650 | $7.87 | | |
| EMS1 | Fire & Rescue Dist #1 Camano GEN (EMS) | 0.4998471806 | $250,650 | $250,650 | $125.29 | | |
| CE | County Current Expense | 0.3674210519 | $250,650 | $250,650 | $92.09 | | |
| CR | County Roads | 0.4614296361 | $250,650 | $250,650 | $115.66 | | |
| LIB | Library Sno-Isle GEN | 0.3039084203 | $250,650 | $250,650 | $76.17 | | |
| SCH205_401 | School 205-401 Enrichment | 1.3697998934 | $250,650 | $250,650 | $343.34 | | |
| SCH205BOND | School 205-401 BOND | 0.9354199323 | $250,650 | $250,650 | $234.46 | | |
| ST | State School | 1.4761226122 | $250,650 | $250,650 | $369.99 | | |
| ST2 | State School Part 2 | 0.7953803475 | $250,650 | $250,650 | $199.36 | | |
| | Total Tax Rate: | 6.2407287403 | | | | | |
| | | | | Taxes w/Current Exemptions: | $1,564.23 | | |
| | | | | Taxes w/o Exemptions: | $1,564.23 | | |
Improvement / Building
Sketch
| No sketches available for this property. |
Property Image
Land
| 1 | MB | MEDIUM BANK | 0.2100 | 9147.60 | 65.00 | 0.00 | 1.00 | $250,000 | $0 |
| 2 | 55 | TIDES | 0.0000 | 0.00 | 65.00 | 0.00 | 1.00 | $650 | $0 |
Roll Value History
| 2026 | N/A | N/A | N/A | N/A | N/A |
| 2025 | $0 | $250,650 | $0 | $250,650 | $250,650 |
| 2024 | $0 | $250,650 | $0 | $250,650 | $250,650 |
| 2023 | $0 | $200,650 | $0 | $200,650 | $200,650 |
| 2022 | $0 | $185,650 | $0 | $185,650 | $185,650 |
| 2021 | $0 | $120,650 | $0 | $120,650 | $120,650 |
| 2020 | $0 | $65,650 | $0 | $65,650 | $65,650 |
| 2019 | $0 | $65,650 | $0 | $65,650 | $65,650 |
| 2018 | $0 | $60,650 | $0 | $60,650 | $60,650 |
| 2017 | $0 | $60,650 | $0 | $60,650 | $60,650 |
| 2016 | $0 | $65,650 | $0 | $65,650 | $65,650 |
| 2015 | $0 | $65,650 | $0 | $65,650 | $65,650 |
| 2014 | $0 | $65,650 | $0 | $65,650 | $65,650 |
| 2013 | $0 | $65,650 | $0 | $65,650 | $65,650 |
| 2012 | $0 | $118,270 | $0 | $118,270 | $118,270 |
| 2011 | $0 | $118,270 | $0 | $118,270 | $118,270 |
| 2010 | $0 | $118,270 | $0 | $118,270 | $118,270 |
| 2009 | $0 | $124,919 | $0 | $124,919 | $124,919 |
| 2008 | $0 | $121,267 | $0 | $121,267 | $121,267 |
| 2007 | $0 | $121,661 | $0 | $121,661 | $121,661 |
Deed and Sales History
| 1 | 01/09/2020 | WD | Warranty Deed | LITTLE, THOMAS A | SECKEL, JUSTIN D | | | $161,500.00 | 41755 | 4479017 |
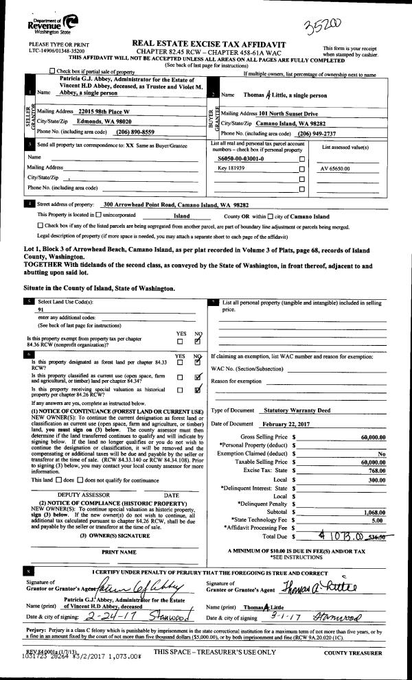
| 2 | 02/22/2017 | WD | Warranty Deed | ABBEY, VINCENT | LITTLE, THOMAS A | | | $60,000.00 | 28264 | 4418029 |
Payout Agreement
| No payout information available.. |