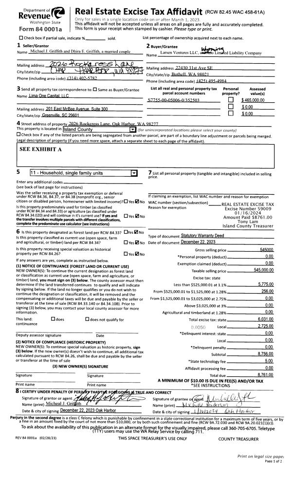
Property
Account |
| Property ID: | 18297 | Abbreviated Legal Description: | 74 - IN GL3:BG 20'W OF NE CR GL3 S6*E407.8' TPB S6* E77.85' W606.41' TO RD N24* W90.95' W TPB |
| Geographic ID: | R13210-220-4100 | Agent Code: | |
| Type: | Real | | |
| Tax Area: | 100 - APPRAISER-OH Schl Dist, in OH | Land Use Code | 11 |
| Open Space: | N | DFL | N |
| Historic Property: | N | Remodel Property: | N |
| Multi-Family Redevelopment: | N | | |
| Township: | 32 | Section: | 10 |
| Range: | R1 |
Location |
| Address: | 3008 SW SCENIC HEIGHTS ST OAK HARBOR, WA 98277 | Mapsco: | |
| Neighborhood: | Cycle 1 | Map ID: | 117 |
| Neighborhood CD: | 1 |
Owner |
| Name: | ANIELSKI TTEE, JEFFREY M. | Owner ID: | 307140 |
| Mailing Address: | TRACY L. ANIELSKI TTEE 3008 SW SCENIC HEIGHTS ST OAK HARBOR, WA 98277 | % Ownership: | 100.0000000000% |
| | | Exemptions: | |
Taxes and Assessment Details
Values
| (+) Improvement Homesite Value: | + | $0 | |
| (+) Improvement Non-Homesite Value: | + | $478,562 | |
| (+) Land Homesite Value: | + | $0 | |
| (+) Land Non-Homesite Value: | + | $525,000 | |
| (+) Curr Use (HS): | + | $0 | $0 |
| (+) Curr Use (NHS): | + | $0 | $0 |
| | | -------------------------- | |
| (=) Market Value: | = | $1,003,562 | |
| (–) Productivity Loss: | – | $0 | |
| | | -------------------------- | |
| (=) Subtotal: | = | $1,003,562 | |
| (+) Senior Appraised Value: | + | $0 | |
| (+) Non-Senior Appraised Value: | + | $1,003,562 | |
| | | -------------------------- | |
| (=) Total Appraised Value: | = | $1,003,562 | |
| (–) Senior Exemption Loss: | – | $0 | |
| (–) Exemption Loss: | – | $0 | |
| | | -------------------------- | |
| (=) Taxable Value: | = | $1,003,562 | |
Taxing Jurisdiction
| Owner: | ANIELSKI TTEE, JEFFREY M. | | |
| % Ownership: | 100.0000000000% | | |
| Total Value: | $1,003,562 | | |
| Tax Area: | 100 - APPRAISER-OH Schl Dist, in OH |
| CF | Conservation Futures | 0.0313996660 | $1,003,562 | $1,003,562 | $31.51 | | |
| CEM1 | Cemetery #1 | 0.0040018856 | $1,003,562 | $1,003,562 | $4.02 | | |
| COH | City of Oak Harbor | 2.3090730572 | $1,003,562 | $1,003,562 | $2,317.30 | | |
| OAKBOND | City of Oak Harbor BOND | 0.1902260131 | $1,003,562 | $1,003,562 | $190.90 | | |
| HOBOND | Hospital BOND | 0.1893405597 | $1,003,562 | $1,003,562 | $190.01 | | |
| HOGEN | Hospital GEN | 0.3848777722 | $1,003,562 | $1,003,562 | $386.25 | | |
| CE | County Current Expense | 0.3674210519 | $1,003,562 | $1,003,562 | $368.73 | | |
| ISLANDEMS | Hospital GEN (EMS) | 0.4952018576 | $1,003,562 | $1,003,562 | $496.97 | | |
| LIB | Library Sno-Isle GEN | 0.3039084203 | $1,003,562 | $1,003,562 | $304.99 | | |
| NWHIDPRMT | P & R N Whidbey GEN | 0.1990272349 | $1,003,562 | $1,003,562 | $199.74 | | |
| SCH201MO | School 201 Enrichment | 2.3851112745 | $1,003,562 | $1,003,562 | $2,393.61 | | |
| ST | State School | 1.4761226122 | $1,003,562 | $1,003,562 | $1,481.38 | | |
| ST2 | State School Part 2 | 0.7953803475 | $1,003,562 | $1,003,562 | $798.21 | | |
| | Total Tax Rate: | 9.1310917527 | | | | | |
| | | | | Taxes w/Current Exemptions: | $9,163.62 | | |
| | | | | Taxes w/o Exemptions: | $9,163.62 | | |
Improvement / Building
| Improvement #1: | RESIDENTIAL | State Code: | Y | 3000.0 sqft | Value: | $478,562 |
| Bathrooms: | 2.5 | Bedrooms: | 3 | | Ceiling: | DRY WALL SPRAYED | Cooling: | HEAT PUMP/CONV/V | | Exterior Wall/Cover: | VINYL | Floor Covering: | CARPET/VINYL 60-40 | | Floor Structure: | WOOD W/SUBFLOOR | Foundation: | CONCRETE | | Interior Finish: | DRYWALL PAINT | Plumbing Fixture Cnt: | 15 | | Roof Slope: | 5" IN 12" | Roof Structure/Cover: | CJ ASPHALT |
|
| | Type | Description | Class CD | Sub Class CD | Year Built | Area |
| | BAS | BASE/MAIN FLOOR | 3 | 0 | 1981 | 1550.0 |
| | OP1 | OPEN PORCH SLAB | 3 | 0 | 1981 | 530.0 |
| | AGR | ATTACHED GARAGE | 3 | 0 | 1981 | 648.0 |
| | OWP | OPEN WOOD PORCH W/STEPS | 3 | 0 | 1981 | 480.0 |
| | DWN | DOWNSTAIRS LIVING AREA | 3 | 0 | 1981 | 1450.0 |
| | OP1 | OPEN PORCH SLAB | 3 | 0 | 1981 | 1540.0 |
Sketch
Property Image
Land
| 1 | HB | HIGH BLUFF | 1.1800 | 51400.80 | 77.00 | 0.00 | 1.00 | $525,000 | $0 |
Roll Value History
| 2026 | N/A | N/A | N/A | N/A | N/A |
| 2025 | $478,562 | $525,000 | $0 | $1,003,562 | $1,003,562 |
| 2024 | $482,252 | $500,000 | $0 | $982,252 | $982,252 |
| 2023 | $466,635 | $500,000 | $0 | $966,635 | $966,635 |
| 2022 | $382,753 | $300,000 | $0 | $682,753 | $682,753 |
| 2021 | $336,879 | $300,000 | $0 | $636,879 | $636,879 |
| 2020 | $328,657 | $300,000 | $0 | $628,657 | $628,657 |
| 2019 | $261,900 | $325,000 | $0 | $586,900 | $586,900 |
| 2018 | $262,667 | $250,000 | $0 | $512,667 | $512,667 |
| 2017 | $245,363 | $250,000 | $0 | $495,363 | $495,363 |
| 2016 | $248,355 | $250,000 | $0 | $498,355 | $498,355 |
| 2015 | $203,795 | $250,000 | $0 | $453,795 | $453,795 |
| 2014 | $206,750 | $250,000 | $0 | $456,750 | $456,750 |
| 2013 | $209,702 | $200,789 | $0 | $410,491 | $410,491 |
| 2012 | $212,657 | $200,789 | $0 | $413,446 | $413,446 |
| 2011 | $227,093 | $200,789 | $0 | $427,882 | $427,882 |
| 2010 | $242,165 | $200,789 | $0 | $442,954 | $442,954 |
| 2009 | $252,459 | $250,986 | $0 | $503,445 | $503,445 |
| 2008 | $253,205 | $288,375 | $0 | $541,580 | $541,580 |
| 2007 | $253,788 | $288,375 | $0 | $542,163 | $542,163 |
Deed and Sales History
| 1 | 08/16/2022 | QCD | Quit Claim Deed | ANIELSKI, TRACY L. | ANIELSKI TTEE, JEFFREY M. | | | $0.00 | 54266 | 4550096 |
| 2 | 08/16/2022 | QCD | Quit Claim Deed | ANIELSKI TTEE, JEFFREY M | ANIELSKI, TRACY L. | | | $0.00 | 54265 | 4550094 |
| 3 | 02/28/2022 | WD | Warranty Deed | SCHEIDT, JUDYE | ANIELSKI TTEE, JEFFREY M | | | $1,210,000.00 | 52169 | 4540833 |
| 4 | 02/22/2022 | QCD | Quit Claim Deed | SCHEIDT, JUDYE | SCHEIDT, JUDYE | | | $0.00 | 52168 | 4540832 |
| 5 | 01/14/2020 | WD | Warranty Deed | LARSON, MATTHEW J | SCHEIDT, JUDYE | | | $650,000.00 | 41999 | 4480675 |
| 6 | 02/04/2016 | WD | Warranty Deed | VANDERSTOEP, EDWARD L | LARSON, MATTHEW J | | | $520,000.00 | 23226 | 4394498 |
| 7 | 07/30/2008 | ESTSEPPROP | Establish Separate Property | Unknown | VANDERSTOEP, EDWARD L | | | $0.00 | 82127 | 4234939 |
Payout Agreement
| No payout information available.. |