Property
Account |
| Property ID: | 182983 | Abbreviated Legal Description: | AUDREY HOMES LOT 5 BLK 4 |
| Geographic ID: | S6055-00-04005-0 | Agent Code: | |
| Type: | Real | | |
| Tax Area: | 100 - APPRAISER-OH Schl Dist, in OH | Land Use Code | 11 |
| Open Space: | N | DFL | N |
| Historic Property: | N | Remodel Property: | N |
| Multi-Family Redevelopment: | N | | |
| Township: | | Section: | |
| Range: | |
Location |
| Address: | 1365 NE 5TH AVE OAK HARBOR, WA 98277 | Mapsco: | |
| Neighborhood: | Cycle 1 | Map ID: | 257 |
| Neighborhood CD: | 1 |
Owner |
| Name: | KLASSEN, ADAM | Owner ID: | 306661 |
| Mailing Address: | DORIE KLASSEN 1365 NE 5TH AVE OAK HARBOR, WA 98277 | % Ownership: | 100.0000000000% |
| | | Exemptions: | |
Taxes and Assessment Details
Values
| (+) Improvement Homesite Value: | + | $0 | |
| (+) Improvement Non-Homesite Value: | + | $228,630 | |
| (+) Land Homesite Value: | + | $0 | |
| (+) Land Non-Homesite Value: | + | $180,000 | |
| (+) Curr Use (HS): | + | $0 | $0 |
| (+) Curr Use (NHS): | + | $0 | $0 |
| | | -------------------------- | |
| (=) Market Value: | = | $408,630 | |
| (–) Productivity Loss: | – | $0 | |
| | | -------------------------- | |
| (=) Subtotal: | = | $408,630 | |
| (+) Senior Appraised Value: | + | $0 | |
| (+) Non-Senior Appraised Value: | + | $408,630 | |
| | | -------------------------- | |
| (=) Total Appraised Value: | = | $408,630 | |
| (–) Senior Exemption Loss: | – | $0 | |
| (–) Exemption Loss: | – | $0 | |
| | | -------------------------- | |
| (=) Taxable Value: | = | $408,630 | |
Taxing Jurisdiction
| Owner: | KLASSEN, ADAM | | |
| % Ownership: | 100.0000000000% | | |
| Total Value: | $408,630 | | |
| Tax Area: | 100 - APPRAISER-OH Schl Dist, in OH |
| CF | Conservation Futures | 0.0313996660 | $408,630 | $408,630 | $12.83 | | |
| CEM1 | Cemetery #1 | 0.0040018856 | $408,630 | $408,630 | $1.64 | | |
| COH | City of Oak Harbor | 2.3090730572 | $408,630 | $408,630 | $943.56 | | |
| OAKBOND | City of Oak Harbor BOND | 0.1902260131 | $408,630 | $408,630 | $77.73 | | |
| HOBOND | Hospital BOND | 0.1893405597 | $408,630 | $408,630 | $77.37 | | |
| HOGEN | Hospital GEN | 0.3848777722 | $408,630 | $408,630 | $157.27 | | |
| CE | County Current Expense | 0.3674210519 | $408,630 | $408,630 | $150.14 | | |
| ISLANDEMS | Hospital GEN (EMS) | 0.4952018576 | $408,630 | $408,630 | $202.35 | | |
| LIB | Library Sno-Isle GEN | 0.3039084203 | $408,630 | $408,630 | $124.19 | | |
| NWHIDPRMT | P & R N Whidbey GEN | 0.1990272349 | $408,630 | $408,630 | $81.33 | | |
| SCH201MO | School 201 Enrichment | 2.3851112745 | $408,630 | $408,630 | $974.63 | | |
| ST | State School | 1.4761226122 | $408,630 | $408,630 | $603.19 | | |
| ST2 | State School Part 2 | 0.7953803475 | $408,630 | $408,630 | $325.02 | | |
| | Total Tax Rate: | 9.1310917527 | | | | | |
| | | | | Taxes w/Current Exemptions: | $3,731.25 | | |
| | | | | Taxes w/o Exemptions: | $3,731.25 | | |
Improvement / Building
| Improvement #1: | RESIDENTIAL | State Code: | Y | 1247.0 sqft | Value: | $228,630 |
| Bathrooms: | 2 | Bedrooms: | 3 | | Ceiling: | DRYWALL PAINTED | Exterior Wall/Cover: | WOOD SIDING | | Floor Covering: | VINYL TILE/HARWD 20-80 | Floor Structure: | WOOD W/SUBFLOOR | | Foundation: | CONCRETE | Heating: | FHA GAS | | Interior Finish: | DRYWALL PAINT | Plumbing Fixture Cnt: | 10 | | Roof Slope: | 6" IN 12" | Roof Structure/Cover: | CJ ASPHALT |
|
| | Type | Description | Class CD | Sub Class CD | Year Built | Area |
| | BAS | BASE/MAIN FLOOR | 3 | 0 | 1954 | 1247.0 |
| | UTY | STORAGE/UTILITY | 3 | 0 | 1954 | 48.0 |
| | OWR | OPEN WOOD PORCH W/STEPS/ROOF | 3 | 0 | 1954 | 192.0 |
| | OP4 | OPEN PORCH W/CEILING-ROOF | 3 | 0 | 1954 | 30.0 |
Sketch
Property Image
Land
| 1 | 14 | SQ (08001-12000) | 0.2100 | 9147.60 | 0.00 | 0.00 | 1.00 | $180,000 | $0 |
Roll Value History
| 2026 | N/A | N/A | N/A | N/A | N/A |
| 2025 | $228,630 | $180,000 | $0 | $408,630 | $408,630 |
| 2024 | $231,629 | $170,000 | $0 | $401,629 | $401,629 |
| 2023 | $233,571 | $170,000 | $0 | $403,571 | $403,571 |
| 2022 | $193,491 | $160,000 | $0 | $353,491 | $353,491 |
| 2021 | $170,550 | $125,000 | $0 | $295,550 | $295,550 |
| 2020 | $161,442 | $100,000 | $0 | $261,442 | $261,442 |
| 2019 | $114,905 | $140,000 | $0 | $254,905 | $254,905 |
| 2018 | $115,283 | $125,000 | $0 | $240,283 | $240,283 |
| 2017 | $74,200 | $110,000 | $0 | $184,200 | $184,200 |
| 2016 | $75,575 | $90,000 | $0 | $165,575 | $165,575 |
| 2015 | $76,949 | $70,000 | $0 | $146,949 | $146,949 |
| 2014 | $78,323 | $55,000 | $0 | $133,323 | $133,323 |
| 2013 | $79,696 | $55,000 | $0 | $134,696 | $134,696 |
| 2012 | $81,072 | $65,000 | $0 | $146,072 | $146,072 |
| 2011 | $73,258 | $65,000 | $0 | $138,258 | $138,258 |
| 2010 | $85,369 | $65,000 | $0 | $150,369 | $150,369 |
| 2009 | $89,205 | $95,000 | $0 | $184,205 | $184,205 |
| 2008 | $89,362 | $109,000 | $0 | $198,362 | $198,362 |
| 2007 | $90,854 | $109,000 | $0 | $199,854 | $199,854 |
Deed and Sales History
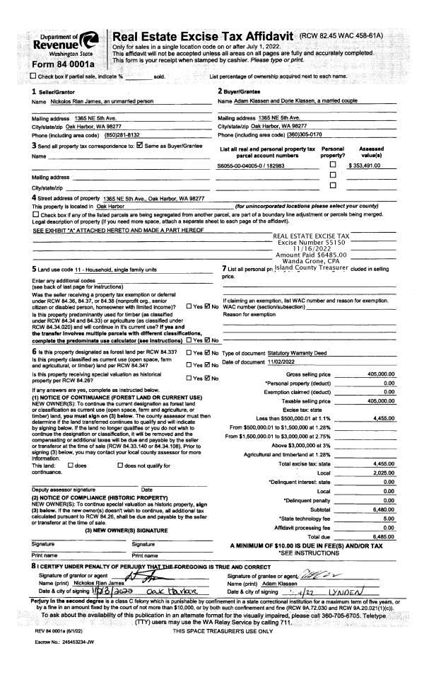
| 1 | 11/02/2022 | WD | Warranty Deed | JAMES, NICKOLOS RIAN | KLASSEN, ADAM | | | $405,000.00 | 55150 | 4553810 |
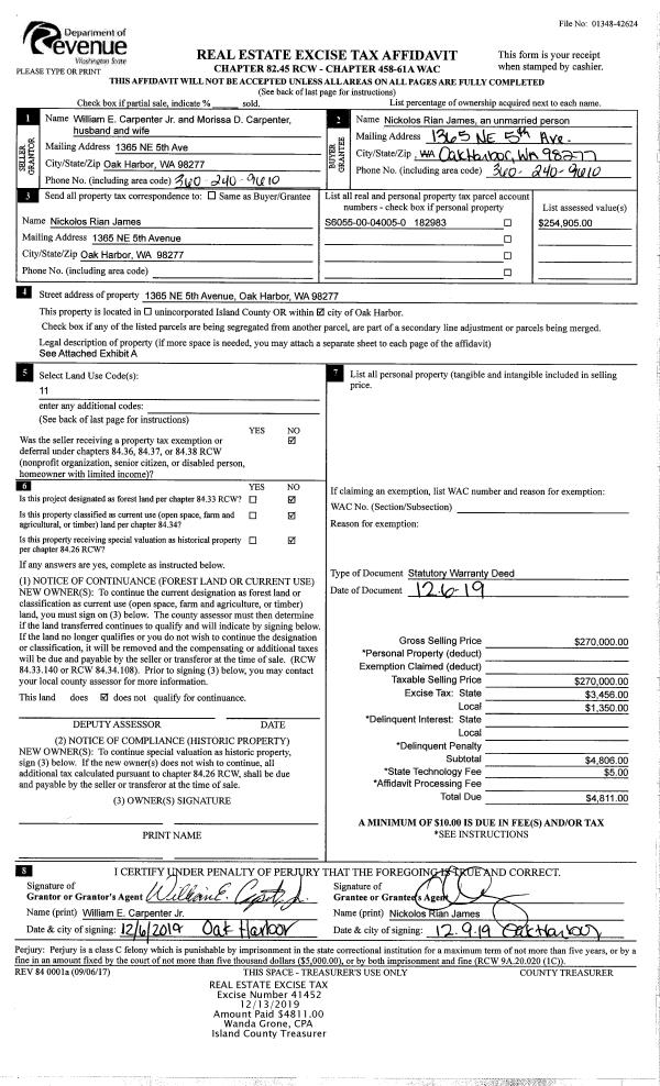
| 2 | 12/06/2019 | WD | Warranty Deed | CARPENTER JR, WILLIAM E | JAMES, NICKOLOS RIAN | | | $270,000.00 | 41452 | 4477450 |
| 3 | 12/01/1994 | WD | Warranty Deed | HAMILTON, RAYMOND B | CARPENTER, WILLIAM E | | | $97,000.00 | 44886 | 94024895 |
| 4 | 06/01/1988 | WD | Warranty Deed | WICHERS, JOHN H | HAMILTON, RAYMOND B | | | $64,750.00 | 81723 | 88006426 |
| 5 | 01/01/1900 | OTHER | Other - Misc. Documents | Unknown | WICHERS, JOHN H | | | $0.00 | 0 | 0 |
Payout Agreement
| No payout information available.. |