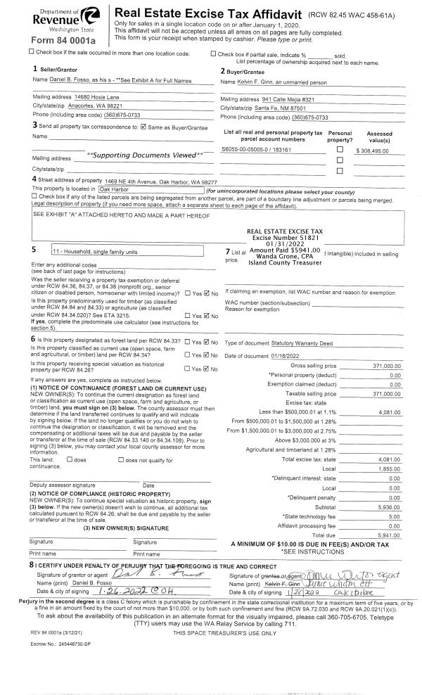
Property
Account |
| Property ID: | 183161 | Abbreviated Legal Description: | AUDREY HOMES LOT 5 BLK 5 TGW: NLY 7.8' M/L OF FOLL DESC: BG PT 2051'S & 1134.3'W OF NECR TAFT DC N89*W226.8' N0*E967 .7'TO SLN AUDREY HOMES ADD S89*E226.8' S0*W967.9'TPB LY ADJ TO L5 B5 |
| Geographic ID: | S6055-00-05005-0 | Agent Code: | |
| Type: | Real | | |
| Tax Area: | 100 - APPRAISER-OH Schl Dist, in OH | Land Use Code | 11 |
| Open Space: | N | DFL | N |
| Historic Property: | N | Remodel Property: | N |
| Multi-Family Redevelopment: | N | | |
| Township: | | Section: | |
| Range: | |
Location |
| Address: | 1469 NE 4TH AVE OAK HARBOR, WA 98277 | Mapsco: | |
| Neighborhood: | Cycle 1 | Map ID: | 257 |
| Neighborhood CD: | 1 |
Owner |
| Name: | GINN, KELVIN F | Owner ID: | 302815 |
| Mailing Address: | 941 CALLE MEJIA #321 SANTA FE, NM 87501 | % Ownership: | 100.0000000000% |
| | | Exemptions: | |
Taxes and Assessment Details
Values
| (+) Improvement Homesite Value: | + | $0 | |
| (+) Improvement Non-Homesite Value: | + | $232,732 | |
| (+) Land Homesite Value: | + | $0 | |
| (+) Land Non-Homesite Value: | + | $180,000 | |
| (+) Curr Use (HS): | + | $0 | $0 |
| (+) Curr Use (NHS): | + | $0 | $0 |
| | | -------------------------- | |
| (=) Market Value: | = | $412,732 | |
| (–) Productivity Loss: | – | $0 | |
| | | -------------------------- | |
| (=) Subtotal: | = | $412,732 | |
| (+) Senior Appraised Value: | + | $0 | |
| (+) Non-Senior Appraised Value: | + | $412,732 | |
| | | -------------------------- | |
| (=) Total Appraised Value: | = | $412,732 | |
| (–) Senior Exemption Loss: | – | $0 | |
| (–) Exemption Loss: | – | $0 | |
| | | -------------------------- | |
| (=) Taxable Value: | = | $412,732 | |
Taxing Jurisdiction
| Owner: | GINN, KELVIN F | | |
| % Ownership: | 100.0000000000% | | |
| Total Value: | $412,732 | | |
| Tax Area: | 100 - APPRAISER-OH Schl Dist, in OH |
| CF | Conservation Futures | 0.0313996660 | $412,732 | $412,732 | $12.96 | | |
| CEM1 | Cemetery #1 | 0.0040018856 | $412,732 | $412,732 | $1.65 | | |
| COH | City of Oak Harbor | 2.3090730572 | $412,732 | $412,732 | $953.03 | | |
| OAKBOND | City of Oak Harbor BOND | 0.1902260131 | $412,732 | $412,732 | $78.51 | | |
| HOBOND | Hospital BOND | 0.1893405597 | $412,732 | $412,732 | $78.15 | | |
| HOGEN | Hospital GEN | 0.3848777722 | $412,732 | $412,732 | $158.85 | | |
| CE | County Current Expense | 0.3674210519 | $412,732 | $412,732 | $151.65 | | |
| ISLANDEMS | Hospital GEN (EMS) | 0.4952018576 | $412,732 | $412,732 | $204.39 | | |
| LIB | Library Sno-Isle GEN | 0.3039084203 | $412,732 | $412,732 | $125.43 | | |
| NWHIDPRMT | P & R N Whidbey GEN | 0.1990272349 | $412,732 | $412,732 | $82.14 | | |
| SCH201MO | School 201 Enrichment | 2.3851112745 | $412,732 | $412,732 | $984.41 | | |
| ST | State School | 1.4761226122 | $412,732 | $412,732 | $609.24 | | |
| ST2 | State School Part 2 | 0.7953803475 | $412,732 | $412,732 | $328.28 | | |
| | Total Tax Rate: | 9.1310917527 | | | | | |
| | | | | Taxes w/Current Exemptions: | $3,768.69 | | |
| | | | | Taxes w/o Exemptions: | $3,768.69 | | |
Improvement / Building
| Improvement #1: | RESIDENTIAL | State Code: | Y | 1367.0 sqft | Value: | $232,732 |
| Bathrooms: | 1.5 | Bedrooms: | 3 | | Ceiling: | DRYWALL PAINTED | Exterior Wall/Cover: | PLY/HARDBOARD T-111 | | Floor Covering: | VINYL/HARDWOOD 80-20 | Floor Structure: | WOOD W/SUBFLOOR | | Foundation: | CONCRETE | Heating: | FHA GAS | | Interior Finish: | DRYWALL PAINT | Plumbing Fixture Cnt: | 8 | | Roof Slope: | 6" IN 12" | Roof Structure/Cover: | CJ ASPHALT |
|
| | Type | Description | Class CD | Sub Class CD | Year Built | Area |
| | BAS | BASE/MAIN FLOOR | 3 | 0 | 1957 | 1367.0 |
| | OP2 | OPEN PORCH W/STEPS | 3 | 0 | 1957 | 124.0 |
| | OP3 | OPEN PORCH W/ROOF | 3 | 0 | 1957 | 416.0 |
| | AGR | ATTACHED GARAGE | 3 | 0 | 1957 | 391.0 |
| | ENP | ENCLOSED PORCH | 3 | 0 | 1957 | 150.0 |
Sketch
Property Image
Land
| 1 | 14 | SQ (08001-12000) | 0.2500 | 10890.00 | 0.00 | 0.00 | 1.00 | $180,000 | $0 |
Roll Value History
| 2026 | N/A | N/A | N/A | N/A | N/A |
| 2025 | $232,732 | $180,000 | $0 | $412,732 | $412,732 |
| 2024 | $236,044 | $170,000 | $0 | $406,044 | $406,044 |
| 2023 | $228,039 | $170,000 | $0 | $398,039 | $398,039 |
| 2022 | $209,469 | $160,000 | $0 | $369,469 | $369,469 |
| 2021 | $183,495 | $125,000 | $0 | $308,495 | $308,495 |
| 2020 | $179,200 | $100,000 | $0 | $279,200 | $279,200 |
| 2019 | $130,082 | $140,000 | $0 | $270,082 | $270,082 |
| 2018 | $130,526 | $125,000 | $0 | $255,526 | $255,526 |
| 2017 | $94,167 | $110,000 | $0 | $204,167 | $204,167 |
| 2016 | $95,879 | $90,000 | $0 | $185,879 | $185,879 |
| 2015 | $97,593 | $70,000 | $0 | $167,593 | $167,593 |
| 2014 | $99,304 | $55,000 | $0 | $154,304 | $154,304 |
| 2013 | $101,016 | $55,000 | $0 | $156,016 | $156,016 |
| 2012 | $102,729 | $65,000 | $0 | $167,729 | $167,729 |
| 2011 | $98,213 | $65,000 | $0 | $163,213 | $163,213 |
| 2010 | $110,795 | $65,000 | $0 | $175,795 | $175,795 |
| 2009 | $115,945 | $95,000 | $0 | $210,945 | $210,945 |
| 2008 | $117,766 | $109,000 | $0 | $226,766 | $226,766 |
| 2007 | $119,587 | $109,000 | $0 | $228,587 | $228,587 |
Deed and Sales History
| 1 | 01/18/2022 | WD | Warranty Deed | FOSSO, DONALD E | GINN, KELVIN F | | | $371,000.00 | 51821 | 4538846 |
| 2 | 06/29/2019 | GRANTD | Grant Deed | FOSSO, DONALD E | FOSSO, DONALD E | | | $0.00 | 39985 | 4469998 |
| 3 | 01/01/1986 | QCD | Quit Claim Deed | FOSSO, DONALD E | FOSSO, DONALD E | | | $0.00 | 60244 | 86001326 |
| 4 | 01/01/1900 | OTHER | Other - Misc. Documents | Unknown | FOSSO, DONALD E | | | $0.00 | 0 | 0 |
Payout Agreement
| No payout information available.. |