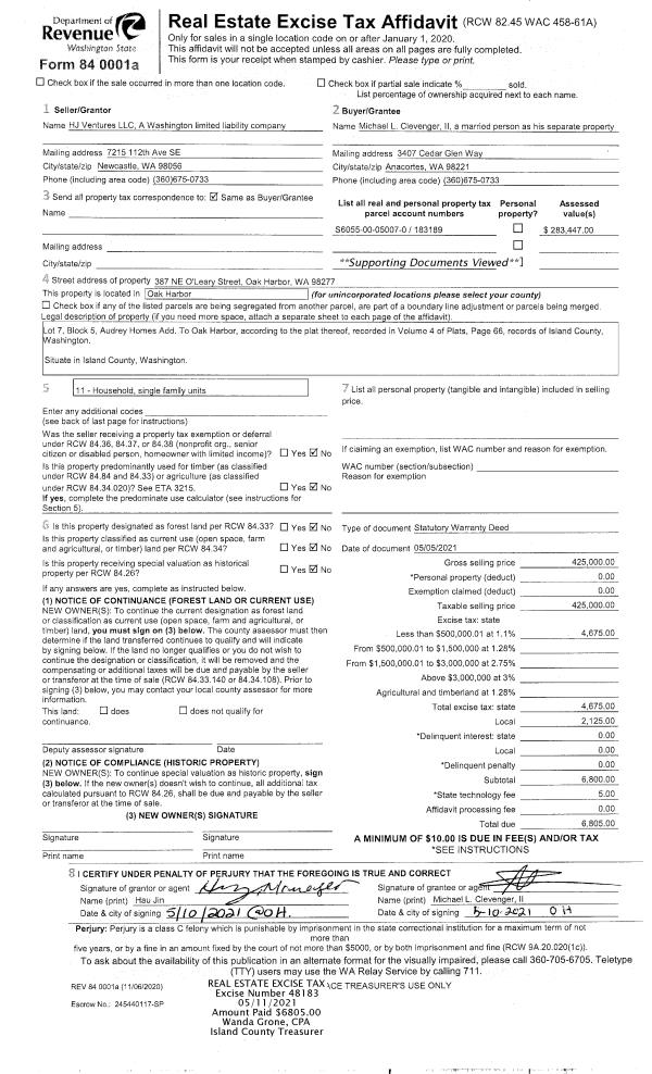
Property
Account |
| Property ID: | 183189 | Abbreviated Legal Description: | AUDREY HOMES LOT 7 BLK 5 |
| Geographic ID: | S6055-00-05007-0 | Agent Code: | |
| Type: | Real | | |
| Tax Area: | 100 - APPRAISER-OH Schl Dist, in OH | Land Use Code | 11 |
| Open Space: | N | DFL | N |
| Historic Property: | N | Remodel Property: | N |
| Multi-Family Redevelopment: | N | | |
| Township: | | Section: | |
| Range: | |
Location |
| Address: | 387 NE O'LEARY ST OAK HARBOR, WA 98277 | Mapsco: | |
| Neighborhood: | Cycle 1 | Map ID: | 257 |
| Neighborhood CD: | 1 |
Owner |
| Name: | CLEVENGER III, MICHAEL L | Owner ID: | 299292 |
| Mailing Address: | 3407 CEDAR GLEN WAY ANACORTES, WA 98221 | % Ownership: | 100.0000000000% |
| | | Exemptions: | |
Taxes and Assessment Details
Values
| (+) Improvement Homesite Value: | + | $0 | |
| (+) Improvement Non-Homesite Value: | + | $309,366 | |
| (+) Land Homesite Value: | + | $0 | |
| (+) Land Non-Homesite Value: | + | $180,000 | |
| (+) Curr Use (HS): | + | $0 | $0 |
| (+) Curr Use (NHS): | + | $0 | $0 |
| | | -------------------------- | |
| (=) Market Value: | = | $489,366 | |
| (–) Productivity Loss: | – | $0 | |
| | | -------------------------- | |
| (=) Subtotal: | = | $489,366 | |
| (+) Senior Appraised Value: | + | $0 | |
| (+) Non-Senior Appraised Value: | + | $489,366 | |
| | | -------------------------- | |
| (=) Total Appraised Value: | = | $489,366 | |
| (–) Senior Exemption Loss: | – | $0 | |
| (–) Exemption Loss: | – | $0 | |
| | | -------------------------- | |
| (=) Taxable Value: | = | $489,366 | |
Taxing Jurisdiction
| Owner: | CLEVENGER III, MICHAEL L | | |
| % Ownership: | 100.0000000000% | | |
| Total Value: | $489,366 | | |
| Tax Area: | 100 - APPRAISER-OH Schl Dist, in OH |
| CF | Conservation Futures | 0.0313996660 | $489,366 | $489,366 | $15.37 | | |
| CEM1 | Cemetery #1 | 0.0040018856 | $489,366 | $489,366 | $1.96 | | |
| COH | City of Oak Harbor | 2.3090730572 | $489,366 | $489,366 | $1,129.98 | | |
| OAKBOND | City of Oak Harbor BOND | 0.1902260131 | $489,366 | $489,366 | $93.09 | | |
| HOBOND | Hospital BOND | 0.1893405597 | $489,366 | $489,366 | $92.66 | | |
| HOGEN | Hospital GEN | 0.3848777722 | $489,366 | $489,366 | $188.35 | | |
| CE | County Current Expense | 0.3674210519 | $489,366 | $489,366 | $179.80 | | |
| ISLANDEMS | Hospital GEN (EMS) | 0.4952018576 | $489,366 | $489,366 | $242.33 | | |
| LIB | Library Sno-Isle GEN | 0.3039084203 | $489,366 | $489,366 | $148.72 | | |
| NWHIDPRMT | P & R N Whidbey GEN | 0.1990272349 | $489,366 | $489,366 | $97.40 | | |
| SCH201MO | School 201 Enrichment | 2.3851112745 | $489,366 | $489,366 | $1,167.19 | | |
| ST | State School | 1.4761226122 | $489,366 | $489,366 | $722.36 | | |
| ST2 | State School Part 2 | 0.7953803475 | $489,366 | $489,366 | $389.23 | | |
| | Total Tax Rate: | 9.1310917527 | | | | | |
| | | | | Taxes w/Current Exemptions: | $4,468.44 | | |
| | | | | Taxes w/o Exemptions: | $4,468.44 | | |
Improvement / Building
| Improvement #1: | RESIDENTIAL | State Code: | Y | 1766.0 sqft | Value: | $309,366 |
| Bathrooms: | 2 | Bedrooms: | 3 | | Ceiling: | DRYWALL PAINTED | Exterior Wall/Cover: | COMMON BRICK VENEER | | Floor Covering: | CERAMIC TILE/HWD 40/60 | Floor Structure: | WOOD W/SUBFLOOR | | Foundation: | CONCRETE BLOCKS | Heating: | FHA GAS | | Interior Finish: | DRYWALL PAINT | Plumbing Fixture Cnt: | 10 | | Roof Slope: | 4" IN 12" | Roof Structure/Cover: | CJ ASPHALT |
|
| | Type | Description | Class CD | Sub Class CD | Year Built | Area |
| | BAS | BASE/MAIN FLOOR | 3 | 0 | 1963 | 1766.0 |
| | OP2 | OPEN PORCH W/STEPS | 3 | 0 | 1963 | 334.0 |
| | AGR | ATTACHED GARAGE | 3 | 0 | 1963 | 351.0 |
| | OP4 | OPEN PORCH W/CEILING-ROOF | 3 | 0 | 1963 | 144.0 |
Sketch
Property Image
Land
| 1 | 14 | SQ (08001-12000) | 0.2300 | 10018.80 | 0.00 | 0.00 | 1.00 | $180,000 | $0 |
Roll Value History
| 2026 | N/A | N/A | N/A | N/A | N/A |
| 2025 | $309,366 | $180,000 | $0 | $489,366 | $489,366 |
| 2024 | $313,478 | $170,000 | $0 | $483,478 | $483,478 |
| 2023 | $301,573 | $170,000 | $0 | $471,573 | $471,573 |
| 2022 | $276,709 | $160,000 | $0 | $436,709 | $436,709 |
| 2021 | $243,780 | $125,000 | $0 | $368,780 | $368,780 |
| 2020 | $183,447 | $100,000 | $0 | $283,447 | $283,447 |
| 2019 | $136,432 | $140,000 | $0 | $276,432 | $276,432 |
| 2018 | $136,912 | $125,000 | $0 | $261,912 | $96,033 |
| 2017 | $99,470 | $110,000 | $0 | $209,470 | $83,788 |
| 2016 | $101,346 | $90,000 | $0 | $191,346 | $76,538 |
| 2015 | $103,223 | $70,000 | $0 | $173,223 | $69,289 |
| 2014 | $105,099 | $55,000 | $0 | $160,099 | $64,040 |
| 2013 | $106,976 | $55,000 | $0 | $161,976 | $64,790 |
| 2012 | $108,854 | $65,000 | $0 | $173,854 | $69,542 |
| 2011 | $110,731 | $65,000 | $0 | $175,731 | $70,292 |
| 2010 | $123,564 | $65,000 | $0 | $188,564 | $75,426 |
| 2009 | $129,177 | $95,000 | $0 | $224,177 | $89,671 |
| 2008 | $131,082 | $109,000 | $0 | $240,082 | $96,033 |
| 2007 | $132,988 | $109,000 | $0 | $241,988 | $241,988 |
Deed and Sales History
| 1 | 05/10/2021 | QCD | Quit Claim Deed | CLEVENGER, ISSAREE | CLEVENGER III, MICHAEL L | | | $0.00 | 48184 | 4518856 |
| 2 | 05/05/2021 | WD | Warranty Deed | HJ VENTURES LLC | CLEVENGER III, MICHAEL L | | | $425,000.00 | 48183 | 4518855 |
| 3 | 01/18/2019 | BARGSLD | Bargain And Sale Deed | MORTON JR, RICHARD DALE | HJ VENTURES LLC | | | $210,000.00 | 37355 | 4458168 |
| 4 | 08/19/2003 | WD | Warranty Deed | HOFFMAN, ALDEN V | MORTON JR, RICHARD DALE | | | $165,000.00 | 33695 | 4072081 |
| 5 | 01/01/1900 | OTHER | Other - Misc. Documents | Unknown | HOFFMAN, ALDEN V | | | $0.00 | 0 | 0 |
Payout Agreement
| No payout information available.. |