Property
Account |
| Property ID: | 183223 | Abbreviated Legal Description: | BABY IS HTS 1 SL 4 TR A: BG SWCR TR A S89*E280.18' TPB S89*E60.04 N120' N89*W60.04' S120' TPB |
| Geographic ID: | S6060-00-0000A-4 | Agent Code: | |
| Type: | Real | | |
| Tax Area: | 710 - APPRAISER-S Whid Schl Dist, outside Langley, improved & 1 acre or less | Land Use Code | 11 |
| Open Space: | N | DFL | N |
| Historic Property: | N | Remodel Property: | N |
| Multi-Family Redevelopment: | N | | |
| Township: | | Section: | |
| Range: | |
Location |
| Address: | | Mapsco: | |
| Neighborhood: | Cycle 3 | Map ID: | 369 |
| Neighborhood CD: | 3 |
Owner |
| Name: | BRYAN, LYNNE ELLEN | Owner ID: | 300301 |
| Mailing Address: | 1712 CANDLEFISH LN LANGLEY, WA 98260 | % Ownership: | 100.0000000000% |
| | | Exemptions: | |
Taxes and Assessment Details
Values
| (+) Improvement Homesite Value: | + | $0 | |
| (+) Improvement Non-Homesite Value: | + | $17,814 | |
| (+) Land Homesite Value: | + | $0 | |
| (+) Land Non-Homesite Value: | + | $150,000 | |
| (+) Curr Use (HS): | + | $0 | $0 |
| (+) Curr Use (NHS): | + | $0 | $0 |
| | | -------------------------- | |
| (=) Market Value: | = | $167,814 | |
| (–) Productivity Loss: | – | $0 | |
| | | -------------------------- | |
| (=) Subtotal: | = | $167,814 | |
| (+) Senior Appraised Value: | + | $0 | |
| (+) Non-Senior Appraised Value: | + | $167,814 | |
| | | -------------------------- | |
| (=) Total Appraised Value: | = | $167,814 | |
| (–) Senior Exemption Loss: | – | $0 | |
| (–) Exemption Loss: | – | $0 | |
| | | -------------------------- | |
| (=) Taxable Value: | = | $167,814 | |
Taxing Jurisdiction
| Owner: | BRYAN, LYNNE ELLEN | | |
| % Ownership: | 100.0000000000% | | |
| Total Value: | $167,814 | | |
| Tax Area: | 710 - APPRAISER-S Whid Schl Dist, outside Langley, improved & 1 acre or less |
| CF | Conservation Futures | 0.0313996660 | $167,814 | $167,814 | $5.27 | | |
| FIRE3 | Fire & Rescue Dist #3 S Whidbey GEN | 1.2130821753 | $167,814 | $167,814 | $203.57 | | |
| HOBOND | Hospital BOND | 0.1893405597 | $167,814 | $167,814 | $31.77 | | |
| HOGEN | Hospital GEN | 0.3848777722 | $167,814 | $167,814 | $64.59 | | |
| CE | County Current Expense | 0.3674210519 | $167,814 | $167,814 | $61.66 | | |
| CR | County Roads | 0.4614296361 | $167,814 | $167,814 | $77.43 | | |
| ISLANDEMS | Hospital GEN (EMS) | 0.4952018576 | $167,814 | $167,814 | $83.10 | | |
| LIB | Library Sno-Isle GEN | 0.3039084203 | $167,814 | $167,814 | $51.00 | | |
| PORTWHID | Port of S Whidbey GEN | 0.1086004714 | $167,814 | $167,814 | $18.22 | | |
| SCH206BOND | School 206 BOND | 0.5960237832 | $167,814 | $167,814 | $100.02 | | |
| SCH206CAP | School 206 CP | 0.3066144020 | $167,814 | $167,814 | $51.45 | | |
| SCH206MO | School 206 Enrichment | 0.4808755445 | $167,814 | $167,814 | $80.70 | | |
| ST | State School | 1.4761226122 | $167,814 | $167,814 | $247.71 | | |
| ST2 | State School Part 2 | 0.7953803475 | $167,814 | $167,814 | $133.48 | | |
| SWHIDPRBD | P & R S Whidbey BOND | 0.0144185398 | $167,814 | $167,814 | $2.42 | | |
| SWHIDPRBD3 | P & R S Whidbey BOND3 | 0.1483535547 | $167,814 | $167,814 | $24.90 | | |
| SWHIDPRMT | P & R S Whidbey GEN | 0.4600000000 | $167,814 | $167,814 | $77.19 | | |
| | Total Tax Rate: | 7.8330503944 | | | | | |
| | | | | Taxes w/Current Exemptions: | $1,314.48 | | |
| | | | | Taxes w/o Exemptions: | $1,314.48 | | |
Improvement / Building
| Improvement #1: | RESIDENTIAL | State Code: | Y | 0.0 sqft | Value: | $17,814 |
| | Type | Description | Class CD | Sub Class CD | Year Built | Area |
| | oPOL | POLE BARN | 1 | 0 | 1900 | 0.0 |
| | oCB2 | CABIN FIN | 1 | 0 | 1900 | 0.0 |
| | oWDD | WOOD DECK | 1 | 0 | 1900 | 0.0 |
| | oSEP | SEPTIC | 1 | 0 | 1900 | 0.0 |
| | oFN7 | CHN LK 4' | 1 | 0 | 1900 | 0.0 |
Sketch
| No sketches available for this property. |
Property Image
Land
| 1 | 13 | SQ (06001-08000) | 0.0000 | 0.00 | 0.00 | 0.00 | 1.00 | $150,000 | $0 |
Roll Value History
| 2026 | N/A | N/A | N/A | N/A | N/A |
| 2025 | $17,814 | $150,000 | $0 | $167,814 | $167,814 |
| 2024 | $17,814 | $150,000 | $0 | $167,814 | $167,814 |
| 2023 | $17,814 | $150,000 | $0 | $167,814 | $167,814 |
| 2022 | $17,814 | $110,000 | $0 | $127,814 | $127,814 |
| 2021 | $17,814 | $60,000 | $0 | $77,814 | $77,814 |
| 2020 | $17,814 | $60,000 | $0 | $77,814 | $77,814 |
| 2019 | $13,212 | $70,000 | $0 | $83,212 | $83,212 |
| 2018 | $13,212 | $60,000 | $0 | $73,212 | $73,212 |
| 2017 | $13,212 | $60,000 | $0 | $73,212 | $73,212 |
| 2016 | $13,212 | $35,000 | $0 | $48,212 | $48,212 |
| 2015 | $13,212 | $45,000 | $0 | $58,212 | $58,212 |
| 2014 | $13,212 | $45,000 | $0 | $58,212 | $58,212 |
| 2013 | $13,212 | $45,000 | $0 | $58,212 | $58,212 |
| 2012 | $13,212 | $46,130 | $0 | $59,342 | $59,342 |
| 2011 | $13,212 | $54,270 | $0 | $67,482 | $67,482 |
| 2010 | $13,812 | $60,300 | $0 | $74,112 | $74,112 |
| 2009 | $13,940 | $62,846 | $0 | $76,786 | $76,786 |
| 2008 | $14,211 | $60,300 | $0 | $74,511 | $74,511 |
| 2007 | $14,482 | $60,300 | $0 | $74,782 | $74,782 |
Deed and Sales History
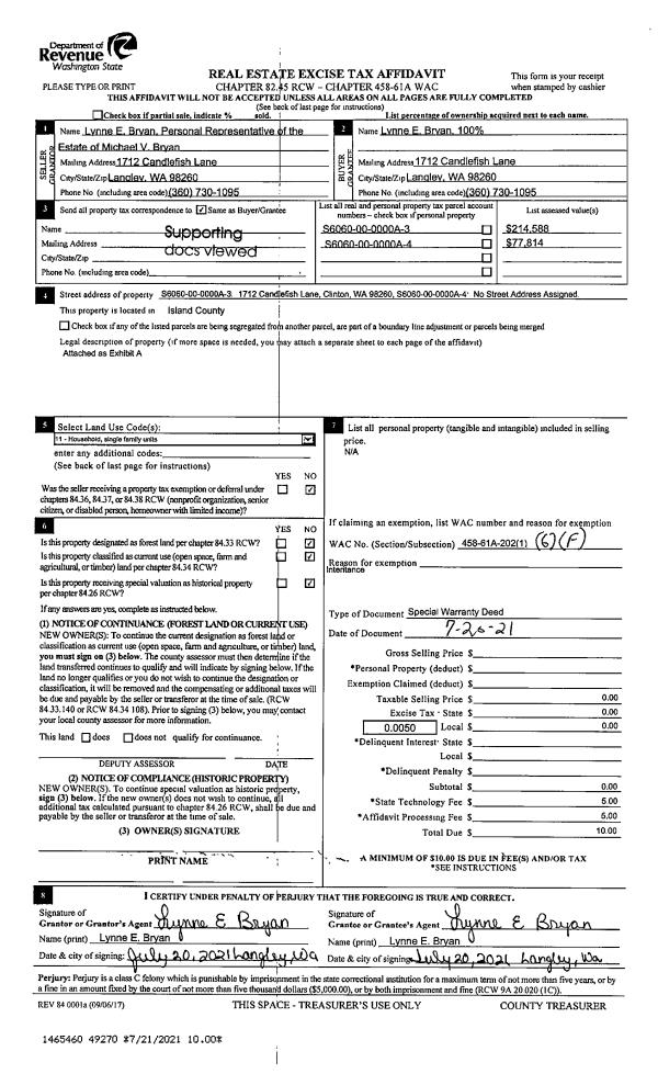
| 1 | 07/20/2021 | SPWARDEED | Special Warranty Deed | BRYAN, LYNNE E | BRYAN, LYNNE ELLEN | | | $0.00 | 49270 | 4525007 |
| 2 | 07/16/1999 | QCD | Quit Claim Deed | ROSENTHAL, WAYNE A | BRYAN, LYNNE E | | | $21,659.00 | 93009 | 99017695 |
| 3 | 11/01/1996 | WD | Warranty Deed | Unknown | BRYAN, LYNNE E | | | $0.00 | 64132 | 96020117 |
| 4 | 11/01/1996 | WD | Warranty Deed | ROSENTHAL, MARJORIE | ROSENTHAL, WAYNE A | | | $0.00 | 64132 | 96020117 |
| 5 | 12/01/1991 | QCD | Quit Claim Deed | ROSENTHAL, ALBERT G | ROSENTHAL, MARJORIE | | | $0.00 | 14503 | 0 |
| 6 | 01/01/1900 | OTHER | Other - Misc. Documents | BRYAN, LYNNE E | ROSENTHAL, ALBERT G | | | $0.00 | 0 | 0 |
Payout Agreement
| No payout information available.. |