Property
Account |
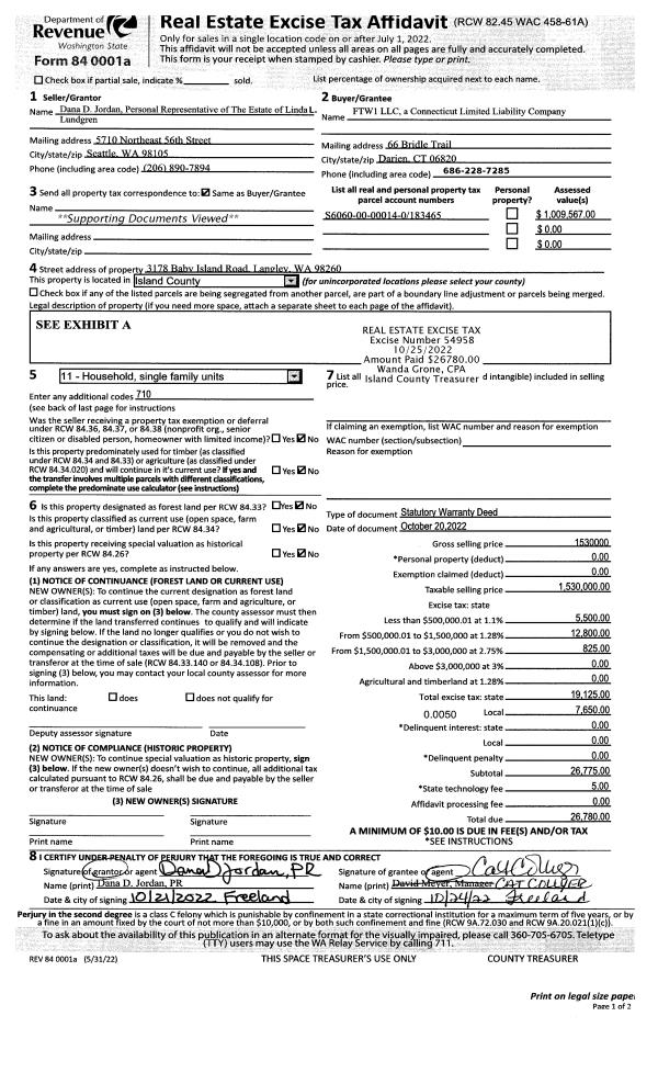
| Property ID: | 183465 | Abbreviated Legal Description: | BABY IS HTS 1 LOT 14 TGW PT VAC SARATOGA AVE LY WLY OF ELY LN OF PT SD SARATOGA AVE ADJ TO SD LOT 14 & LY SLY OF FOLL DESC LN: BG MON ON CLN OF SD SARATOGA RD (FORMERLY SARATOGA AVE & BABY ISLAND RD) AT INTER/W PROJ ELN OF LOTS 1 & 24 SD PLAT N ALG SD |
| Geographic ID: | S6060-00-00014-0 | Agent Code: | |
| Type: | Real | | |
| Tax Area: | 710 - APPRAISER-S Whid Schl Dist, outside Langley, improved & 1 acre or less | Land Use Code | 11 |
| Open Space: | N | DFL | N |
| Historic Property: | N | Remodel Property: | N |
| Multi-Family Redevelopment: | N | | |
| Township: | | Section: | |
| Range: | |
Location |
| Address: | 3178 BABY ISLAND RD LANGLEY, WA 98260 | Mapsco: | |
| Neighborhood: | Cycle 3 | Map ID: | 369 |
| Neighborhood CD: | 3 |
Owner |
| Name: | FTW1, LLC | Owner ID: | 306471 |
| Mailing Address: | 66 BRIDLE TRAIL DARIEN, CT 06820 | % Ownership: | 100.0000000000% |
| | | Exemptions: | |
Taxes and Assessment Details
Values
| (+) Improvement Homesite Value: | + | $0 | |
| (+) Improvement Non-Homesite Value: | + | $511,641 | |
| (+) Land Homesite Value: | + | $0 | |
| (+) Land Non-Homesite Value: | + | $650,684 | |
| (+) Curr Use (HS): | + | $0 | $0 |
| (+) Curr Use (NHS): | + | $0 | $0 |
| | | -------------------------- | |
| (=) Market Value: | = | $1,162,325 | |
| (–) Productivity Loss: | – | $0 | |
| | | -------------------------- | |
| (=) Subtotal: | = | $1,162,325 | |
| (+) Senior Appraised Value: | + | $0 | |
| (+) Non-Senior Appraised Value: | + | $1,162,325 | |
| | | -------------------------- | |
| (=) Total Appraised Value: | = | $1,162,325 | |
| (–) Senior Exemption Loss: | – | $0 | |
| (–) Exemption Loss: | – | $0 | |
| | | -------------------------- | |
| (=) Taxable Value: | = | $1,162,325 | |
Taxing Jurisdiction
| Owner: | FTW1, LLC | | |
| % Ownership: | 100.0000000000% | | |
| Total Value: | $1,162,325 | | |
| Tax Area: | 710 - APPRAISER-S Whid Schl Dist, outside Langley, improved & 1 acre or less |
| CF | Conservation Futures | 0.0313996660 | $1,162,325 | $1,162,325 | $36.50 | | |
| FIRE3 | Fire & Rescue Dist #3 S Whidbey GEN | 1.2130821753 | $1,162,325 | $1,162,325 | $1,410.00 | | |
| HOBOND | Hospital BOND | 0.1893405597 | $1,162,325 | $1,162,325 | $220.08 | | |
| HOGEN | Hospital GEN | 0.3848777722 | $1,162,325 | $1,162,325 | $447.35 | | |
| CE | County Current Expense | 0.3674210519 | $1,162,325 | $1,162,325 | $427.06 | | |
| CR | County Roads | 0.4614296361 | $1,162,325 | $1,162,325 | $536.33 | | |
| ISLANDEMS | Hospital GEN (EMS) | 0.4952018576 | $1,162,325 | $1,162,325 | $575.59 | | |
| LIB | Library Sno-Isle GEN | 0.3039084203 | $1,162,325 | $1,162,325 | $353.24 | | |
| PORTWHID | Port of S Whidbey GEN | 0.1086004714 | $1,162,325 | $1,162,325 | $126.23 | | |
| SCH206BOND | School 206 BOND | 0.5960237832 | $1,162,325 | $1,162,325 | $692.77 | | |
| SCH206CAP | School 206 CP | 0.3066144020 | $1,162,325 | $1,162,325 | $356.39 | | |
| SCH206MO | School 206 Enrichment | 0.4808755445 | $1,162,325 | $1,162,325 | $558.93 | | |
| ST | State School | 1.4761226122 | $1,162,325 | $1,162,325 | $1,715.73 | | |
| ST2 | State School Part 2 | 0.7953803475 | $1,162,325 | $1,162,325 | $924.49 | | |
| SWHIDPRBD | P & R S Whidbey BOND | 0.0144185398 | $1,162,325 | $1,162,325 | $16.76 | | |
| SWHIDPRBD3 | P & R S Whidbey BOND3 | 0.1483535547 | $1,162,325 | $1,162,325 | $172.44 | | |
| SWHIDPRMT | P & R S Whidbey GEN | 0.4600000000 | $1,162,325 | $1,162,325 | $534.67 | | |
| | Total Tax Rate: | 7.8330503944 | | | | | |
| | | | | Taxes w/Current Exemptions: | $9,104.56 | | |
| | | | | Taxes w/o Exemptions: | $9,104.56 | | |
Improvement / Building
| Improvement #1: | RESIDENTIAL | State Code: | Y | 2533.6 sqft | Value: | $511,641 |
| Bathrooms: | 2.75 | Bedrooms: | 0 | | Ceiling: | BEAM PAINTED | Exterior Wall/Cover: | WOOD SIDING | | Floor Covering: | COLORED CONCRETE | Floor Structure: | SLAB ON GRADE | | Foundation: | SLAB | Heating: | FLOOR HOT WATER-OIL | | Interior Finish: | DRYWALL PAINT | Plumbing Fixture Cnt: | 13 | | Roof Slope: | 4" IN 12" | Roof Structure/Cover: | CJ ASPHALT |
|
| | Type | Description | Class CD | Sub Class CD | Year Built | Area |
| | BAS | BASE/MAIN FLOOR | 5 | 0 | 1995 | 1605.8 |
| | OP2 | OPEN PORCH W/STEPS | 5 | 0 | 1995 | 126.0 |
| | OP2 | OPEN PORCH W/STEPS | 5 | 0 | 1995 | 412.7 |
| | UPS | UPPER STORY | 5 | 0 | 1995 | 486.8 |
| | UPH | HALF STORY | 5 | 0 | 1995 | 441.0 |
| | OP1 | OPEN PORCH SLAB | 5 | 0 | 1995 | 33.5 |
Sketch
Property Image
Land
| 1 | MB | MEDIUM BANK | 0.0000 | 0.00 | 68.45 | 0.00 | 1.00 | $650,000 | $0 |
| 2 | 55 | TIDES | 0.0000 | 0.00 | 68.45 | 0.00 | 1.00 | $684 | $0 |
Roll Value History
| 2026 | N/A | N/A | N/A | N/A | N/A |
| 2025 | $511,641 | $650,684 | $0 | $1,162,325 | $1,162,325 |
| 2024 | $509,279 | $650,684 | $0 | $1,159,963 | $1,159,963 |
| 2023 | $515,627 | $600,684 | $0 | $1,116,311 | $1,116,311 |
| 2022 | $383,883 | $625,684 | $0 | $1,009,567 | $1,009,567 |
| 2021 | $338,081 | $375,684 | $0 | $713,765 | $713,765 |
| 2020 | $329,501 | $375,684 | $0 | $705,185 | $705,185 |
| 2019 | $276,281 | $350,684 | $0 | $626,965 | $626,965 |
| 2018 | $277,154 | $350,684 | $0 | $627,838 | $627,838 |
| 2017 | $278,752 | $350,684 | $0 | $629,436 | $629,436 |
| 2016 | $282,235 | $350,684 | $0 | $632,919 | $632,919 |
| 2015 | $285,720 | $350,730 | $0 | $636,450 | $636,450 |
| 2014 | $289,205 | $350,730 | $0 | $639,935 | $639,935 |
| 2013 | $291,653 | $220,670 | $0 | $512,323 | $512,323 |
| 2012 | $295,162 | $220,670 | $0 | $515,832 | $515,832 |
| 2011 | $298,672 | $220,670 | $0 | $519,342 | $519,342 |
| 2010 | $312,795 | $245,193 | $0 | $557,988 | $557,988 |
| 2009 | $326,303 | $247,179 | $0 | $573,482 | $573,482 |
| 2008 | $330,381 | $215,707 | $0 | $546,088 | $546,088 |
| 2007 | $331,722 | $215,139 | $0 | $546,861 | $546,861 |
Deed and Sales History
| 1 | 09/19/2025 | WD | Warranty Deed | FTW1, LLC | THE 9421 | | | $2,100,073.00 | 64918 | 4591317 |
| 2 | 10/20/2022 | WD | Warranty Deed | LUNDGREN, LINDA L | FTW1, LLC | | | $1,530,000.00 | 54958 | 4552984 |
| 3 | 05/08/2002 | QCD | Quit Claim Deed | LUNDGREN, LINDA L | | | | | 21923 | 4020702 |
| 4 | 09/01/1992 | WD | Warranty Deed | LUNDGREN, LINDA L | LUNDGREN, LINDA L | | | $89,721.00 | 23658 | 92017652 |
| 5 | 09/01/1992 | QCD | Quit Claim Deed | TSUKUI, ROBERT T | LUNDGREN, LINDA L | | | $0.00 | 23659 | 92017653 |
| 6 | 09/01/1970 | EXECUTORD | Executor Deed | COLE, WILLIAM E | TSUKUI, ROBERT T | | | $15,000.00 | 39415 | 0 |
| 7 | 01/01/1900 | OTHER | Other - Misc. Documents | Unknown | COLE, WILLIAM E | | | $0.00 | 0 | 0 |
Payout Agreement
| No payout information available.. |