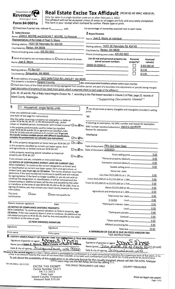
Property
Account |
| Property ID: | 183713 | Abbreviated Legal Description: | BABY IS HTS 1 LOTS 44, 45 & 46 |
| Geographic ID: | S6060-00-00044-0 | Agent Code: | |
| Type: | Real | | |
| Tax Area: | 710 - APPRAISER-S Whid Schl Dist, outside Langley, improved & 1 acre or less | Land Use Code | 11 |
| Open Space: | N | DFL | N |
| Historic Property: | N | Remodel Property: | N |
| Multi-Family Redevelopment: | N | | |
| Township: | | Section: | |
| Range: | |
Location |
| Address: | 3023 SARATOGA RD LANGLEY, WA 98260 | Mapsco: | |
| Neighborhood: | Cycle 3 | Map ID: | 369 |
| Neighborhood CD: | 3 |
Owner |
| Name: | MOORE, JOAN E | Owner ID: | 308256 |
| Mailing Address: | PO BOX 631 SNOQUALMIE, WA 98065 | % Ownership: | 100.0000000000% |
| | | Exemptions: | |
Taxes and Assessment Details
Values
| (+) Improvement Homesite Value: | + | $0 | |
| (+) Improvement Non-Homesite Value: | + | $163,472 | |
| (+) Land Homesite Value: | + | $0 | |
| (+) Land Non-Homesite Value: | + | $650,000 | |
| (+) Curr Use (HS): | + | $0 | $0 |
| (+) Curr Use (NHS): | + | $0 | $0 |
| | | -------------------------- | |
| (=) Market Value: | = | $813,472 | |
| (–) Productivity Loss: | – | $0 | |
| | | -------------------------- | |
| (=) Subtotal: | = | $813,472 | |
| (+) Senior Appraised Value: | + | $0 | |
| (+) Non-Senior Appraised Value: | + | $813,472 | |
| | | -------------------------- | |
| (=) Total Appraised Value: | = | $813,472 | |
| (–) Senior Exemption Loss: | – | $0 | |
| (–) Exemption Loss: | – | $0 | |
| | | -------------------------- | |
| (=) Taxable Value: | = | $813,472 | |
Taxing Jurisdiction
| Owner: | MOORE, JOAN E | | |
| % Ownership: | 100.0000000000% | | |
| Total Value: | $813,472 | | |
| Tax Area: | 710 - APPRAISER-S Whid Schl Dist, outside Langley, improved & 1 acre or less |
| CF | Conservation Futures | 0.0313996660 | $813,472 | $813,472 | $25.54 | | |
| FIRE3 | Fire & Rescue Dist #3 S Whidbey GEN | 1.2130821753 | $813,472 | $813,472 | $986.81 | | |
| HOBOND | Hospital BOND | 0.1893405597 | $813,472 | $813,472 | $154.02 | | |
| HOGEN | Hospital GEN | 0.3848777722 | $813,472 | $813,472 | $313.09 | | |
| CE | County Current Expense | 0.3674210519 | $813,472 | $813,472 | $298.89 | | |
| CR | County Roads | 0.4614296361 | $813,472 | $813,472 | $375.36 | | |
| ISLANDEMS | Hospital GEN (EMS) | 0.4952018576 | $813,472 | $813,472 | $402.83 | | |
| LIB | Library Sno-Isle GEN | 0.3039084203 | $813,472 | $813,472 | $247.22 | | |
| PORTWHID | Port of S Whidbey GEN | 0.1086004714 | $813,472 | $813,472 | $88.34 | | |
| SCH206BOND | School 206 BOND | 0.5960237832 | $813,472 | $813,472 | $484.85 | | |
| SCH206CAP | School 206 CP | 0.3066144020 | $813,472 | $813,472 | $249.42 | | |
| SCH206MO | School 206 Enrichment | 0.4808755445 | $813,472 | $813,472 | $391.18 | | |
| ST | State School | 1.4761226122 | $813,472 | $813,472 | $1,200.78 | | |
| ST2 | State School Part 2 | 0.7953803475 | $813,472 | $813,472 | $647.02 | | |
| SWHIDPRBD | P & R S Whidbey BOND | 0.0144185398 | $813,472 | $813,472 | $11.73 | | |
| SWHIDPRBD3 | P & R S Whidbey BOND3 | 0.1483535547 | $813,472 | $813,472 | $120.68 | | |
| SWHIDPRMT | P & R S Whidbey GEN | 0.4600000000 | $813,472 | $813,472 | $374.20 | | |
| | Total Tax Rate: | 7.8330503944 | | | | | |
| | | | | Taxes w/Current Exemptions: | $6,371.96 | | |
| | | | | Taxes w/o Exemptions: | $6,371.96 | | |
Improvement / Building
| Improvement #1: | RESIDENTIAL | State Code: | Y | 710.2 sqft | Value: | $163,472 |
| Bathrooms: | 1 | Ceiling: | DRYWALL PAINTED | | Exterior Wall/Cover: | SHINGLE | Floor Covering: | VINYL 100% | | Floor Structure: | WOOD W/SUBFLOOR | Foundation: | CONCRETE | | Heating: | WALL HEAT ELECTRIC | Interior Finish: | DRYWALL PAINT | | Plumbing Fixture Cnt: | 9 | Roof Slope: | 5" IN 12" | | Roof Structure/Cover: | CJ ASPHALT |   |   |
|
| | Type | Description | Class CD | Sub Class CD | Year Built | Area |
| | BAS | BASE/MAIN FLOOR | 3 | 0 | 2012 | 710.2 |
| | OWR | OPEN WOOD PORCH W/STEPS/ROOF | 3 | 0 | 2012 | 60.0 |
| | OWP | OPEN WOOD PORCH W/STEPS | 3 | 0 | 2012 | 24.0 |
| | oCB1 | CABIN UNFI | 3 | 0 | 2012 | 264.0 |
Sketch
| No sketches available for this property. |
Property Image
Land
| 1 | HB | HIGH BLUFF | 0.0000 | 0.00 | 150.00 | 0.00 | 1.00 | $650,000 | $0 |
Roll Value History
| 2026 | N/A | N/A | N/A | N/A | N/A |
| 2025 | $163,472 | $650,000 | $0 | $813,472 | $813,472 |
| 2024 | $165,346 | $650,000 | $0 | $815,346 | $815,346 |
| 2023 | $167,220 | $650,000 | $0 | $817,220 | $817,220 |
| 2022 | $152,690 | $650,000 | $0 | $802,690 | $802,690 |
| 2021 | $133,956 | $375,000 | $0 | $508,956 | $508,956 |
| 2020 | $129,076 | $375,000 | $0 | $504,076 | $504,076 |
| 2019 | $86,286 | $350,000 | $0 | $436,286 | $436,286 |
| 2018 | $86,518 | $350,000 | $0 | $436,518 | $436,518 |
| 2017 | $81,563 | $350,000 | $0 | $431,563 | $431,563 |
| 2016 | $82,432 | $350,000 | $0 | $432,432 | $432,432 |
| 2015 | $83,299 | $350,000 | $0 | $433,299 | $433,299 |
| 2014 | $84,168 | $350,000 | $0 | $434,168 | $434,168 |
| 2013 | $85,033 | $339,420 | $0 | $424,453 | $424,453 |
| 2012 | $75,398 | $339,420 | $0 | $414,818 | $414,818 |
| 2011 | $5,777 | $339,420 | $0 | $345,197 | $345,197 |
| 2010 | $7,260 | $377,134 | $0 | $384,394 | $384,394 |
| 2009 | $7,260 | $27,540 | $0 | $34,800 | $34,800 |
| 2008 | $7,260 | $52,623 | $0 | $59,883 | $59,883 |
| 2007 | $8,025 | $52,623 | $0 | $60,648 | $60,648 |
Deed and Sales History
| 1 | 01/07/2026 | WD | Warranty Deed | MOORE, JOAN E | JOAN E MOORE TRUST | | | $0.00 | 65917 | 4595604 |
| 2 | 02/25/2023 | QCD | Quit Claim Deed | MOORE, PEARL G | MOORE, JOAN E | | | $0.00 | 56371 | 4558676 |
| 3 | 07/15/2013 | QCD | Quit Claim Deed | MOORE, PEARL G | MOORE, PEARL G | | | $0.00 | 12144 | 4345086 |
| 4 | 07/15/2013 | QCD | Quit Claim Deed | MOORE, PEARL G | MOORE, PEARL G | | | $0.00 | 12143 | 4345085 |
| 5 | 07/15/2013 | QCD | Quit Claim Deed | MOORE, PEARL G | MOORE, PEARL G | | | $0.00 | 12142 | 4345084 |
| 6 | 09/03/1999 | BLA | DNU - Boundary Line Adjustment | MOORE, PEARL G | MOORE, PEARL G | | | $0.00 | 68422 | 99017871 |
| 7 | 08/10/1999 | OTHER | Other - Misc. Documents | MOORE, MARSHALL | MOORE, PEARL G | | | $0.00 | 68401 | 0 |
| 8 | 01/01/1900 | OTHER | Other - Misc. Documents | Unknown | MOORE, MARSHALL | | | $0.00 | 0 | 0 |
Payout Agreement
| No payout information available.. |