Property
Account |
| Property ID: | 18439 | Abbreviated Legal Description: | 127 - IN GL 3 & NE SW: BG SWCR GL3 E797.1' N901.4' W873.4' TO ELN ST HWY 1-D E471.7' N13*E173.78'TPB N13*E254.77' N87*W469.44' TO ELN ST HWY SLY ALG SD HWY TP N87*W OF TPB S87*E 487.71'TPB |
| Geographic ID: | R13210-252-2860 | Agent Code: | |
| Type: | Real | | |
| Tax Area: | 112 - APPRAISER-OH Schl Dist, outside OH, improved, greater than 1 acre | Land Use Code | 11 |
| Open Space: | N | DFL | N |
| Historic Property: | N | Remodel Property: | N |
| Multi-Family Redevelopment: | N | | |
| Township: | 32 | Section: | 10 |
| Range: | R1 |
Location |
| Address: | 30236 SR20 OAK HARBOR, WA 98277 | Mapsco: | |
| Neighborhood: | Cycle 1 | Map ID: | 117 |
| Neighborhood CD: | 1 |
Owner |
| Name: | BARNER TRUSTEE, GENE KELLY | Owner ID: | 280031 |
| Mailing Address: | DIANE GRACE BARNER TRUSTEE 30236 STATE RT 20 OAK HARBOR, WA 98277 | % Ownership: | 100.0000000000% |
| | | Exemptions: | |
Taxes and Assessment Details
Values
| (+) Improvement Homesite Value: | + | N/A | |
| (+) Improvement Non-Homesite Value: | + | N/A | |
| (+) Land Homesite Value: | + | N/A | |
| (+) Land Non-Homesite Value: | + | N/A | Ag / Timber Use Value |
| (+) Curr Use (HS): | + | N/A | N/A |
| (+) Curr Use (NHS): | + | N/A | N/A |
| | | -------------------------- | |
| (=) Market Value: | = | N/A | |
| (–) Productivity Loss: | – | N/A | |
| | | -------------------------- | |
| (=) Subtotal: | = | N/A | |
| (+) Senior Appraised Value: | + | N/A | |
| (+) Non-Senior Appraised Value: | + | N/A | |
| | | -------------------------- | |
| (=) Total Appraised Value: | = | N/A | |
| (–) Senior Exemption Loss: | – | N/A | |
| (–) Exemption Loss: | – | N/A | |
| | | -------------------------- | |
| (=) Taxable Value: | = | N/A | |
Taxing Jurisdiction
| Owner: | BARNER TRUSTEE, GENE KELLY | | |
| % Ownership: | 100.0000000000% | | |
| Total Value: | N/A | | |
| Tax Area: | 112 - APPRAISER-OH Schl Dist, outside OH, improved, greater than 1 acre |
| CF | Conservation Futures | N/A | N/A | N/A | N/A | | |
| WCD | Whidbey Conservation District | N/A | N/A | N/A | N/A | | |
| CEM1 | Cemetery #1 | N/A | N/A | N/A | N/A | | |
| FIRE2 | Fire & Rescue Dist #2 N Whidbey GEN | N/A | N/A | N/A | N/A | | |
| HOBOND | Hospital BOND | N/A | N/A | N/A | N/A | | |
| HOGEN | Hospital GEN | N/A | N/A | N/A | N/A | | |
| CE | County Current Expense | N/A | N/A | N/A | N/A | | |
| CR | County Roads | N/A | N/A | N/A | N/A | | |
| ISLANDEMS | Hospital GEN (EMS) | N/A | N/A | N/A | N/A | | |
| LIB | Library Sno-Isle GEN | N/A | N/A | N/A | N/A | | |
| NWHIDPRMT | P & R N Whidbey GEN | N/A | N/A | N/A | N/A | | |
| SCH201MO | School 201 Enrichment | N/A | N/A | N/A | N/A | | |
| ST | State School | N/A | N/A | N/A | N/A | | |
| ST2 | State School Part 2 | N/A | N/A | N/A | N/A | | |
| | Total Tax Rate: | N/A | | | | | |
| | | | | Taxes w/Current Exemptions: | N/A | | |
| | | | | Taxes w/o Exemptions: | N/A | | |
Improvement / Building
| Improvement #1: | RESIDENTIAL | State Code: | Y | 1552.0 sqft | Value: | N/A |
| Bathrooms: | 1.75 | Bedrooms: | 1 | | Ceiling: | DRY WALL SPRAYED | Exterior Wall/Cover: | WOOD SIDING | | Floor Covering: | CARPET/VINYL 80-20 | Floor Structure: | WOOD W/SUBFLOOR | | Foundation: | CONCRETE | Heating: | FHA ELECTRIC | | Interior Finish: | DRYWALL PAINT | Plumbing Fixture Cnt: | 8 | | Roof Slope: | 4" IN 12" | Roof Structure/Cover: | CJ ASPHALT |
|
| | Type | Description | Class CD | Sub Class CD | Year Built | Area |
| | BAS | BASE/MAIN FLOOR | 3 | 0 | 1974 | 1552.0 |
| | OCP | OPEN CARPORT | 3 | 0 | 1974 | 600.0 |
| | DGR | DETACHED GARAGE | 3 | 0 | 1974 | 432.0 |
| | CPD | OPEN CARPORT DIRT FLOOR | 3 | 0 | 1974 | 288.0 |
| | OWP | OPEN WOOD PORCH W/STEPS | 3 | 0 | 1974 | 63.0 |
Sketch
Property Image
Land
| 1 | HS | HOMESITE | 1.0000 | 43560.00 | 0.00 | 0.00 | 1.00 | N/A | N/A |
| 2 | 91 | UNDEVELOPED LAND-METES AND BOUNDS | 1.9900 | 86684.40 | 0.00 | 0.00 | 1.00 | N/A | N/A |
Roll Value History
| 2026 | N/A | N/A | N/A | N/A | N/A |
| 2025 | $253,389 | $260,000 | $0 | $513,389 | $513,389 |
| 2024 | $256,757 | $260,000 | $0 | $516,757 | $516,757 |
| 2023 | $260,125 | $240,000 | $0 | $500,125 | $500,125 |
| 2022 | $238,594 | $220,000 | $0 | $458,594 | $458,594 |
| 2021 | $210,131 | $180,000 | $0 | $390,131 | $390,131 |
| 2020 | $205,060 | $140,000 | $0 | $345,060 | $345,060 |
| 2019 | $148,868 | $200,000 | $0 | $348,868 | $348,868 |
| 2018 | $149,325 | $160,000 | $0 | $309,325 | $309,325 |
| 2017 | $105,024 | $150,000 | $0 | $255,024 | $255,024 |
| 2016 | $106,380 | $120,000 | $0 | $226,380 | $226,380 |
| 2015 | $107,737 | $90,000 | $0 | $197,737 | $197,737 |
| 2014 | $109,094 | $90,000 | $0 | $199,094 | $199,094 |
| 2013 | $110,450 | $102,000 | $0 | $212,450 | $212,450 |
| 2012 | $104,458 | $102,000 | $0 | $206,458 | $206,458 |
| 2011 | $108,979 | $120,000 | $0 | $228,979 | $228,979 |
| 2010 | $112,286 | $120,000 | $0 | $232,286 | $232,286 |
| 2009 | $116,465 | $132,000 | $0 | $248,465 | $248,465 |
| 2008 | $121,789 | $143,748 | $0 | $265,537 | $265,537 |
| 2007 | $123,317 | $143,748 | $0 | $267,065 | $267,065 |
Deed and Sales History
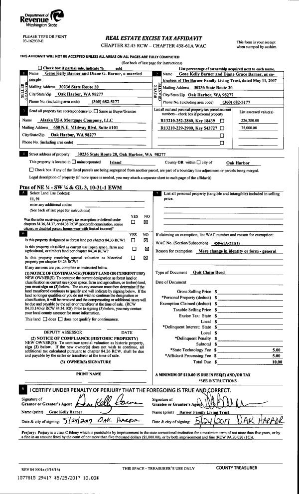
| 1 | 05/24/2017 | QCD | Quit Claim Deed | BARNER, GENE KELLY | BARNER TRUSTEE, GENE KELLY | | | $0.00 | 29417 | 4423073 |
| 2 | 06/14/2016 | WD | Warranty Deed | BARNER, GENE KELLY | BARNER, GENE KELLY | | | $0.00 | 24940 | 4401870 |
| 3 | 06/14/2016 | WD | Warranty Deed | HAMMING, ELMER | BARNER, GENE KELLY | | | $300,000.00 | 24796 | 4401321 |
|   | |
| 4 | 01/01/1988 | TRUSTEED | Trustee's Deed | HAMMING, ELMER | HAMMING, ELMER & | | | $0.00 | 80304 | 88001308 |
| 5 | 12/01/1987 | TRUSTEED | Trustee's Deed | HAMMING, ELMER | HAMMING, ELMER | | | $0.00 | 80253 | 88001130 |
| 6 | 09/01/1984 | WD | Warranty Deed | HAMMING, ELMER | HAMMING, ELMER | | | $0.00 | 43416 | 84005989 |
| 7 | 01/01/1900 | OTHER | Other - Misc. Documents | Unknown | HAMMING, ELMER | | | $0.00 | 0 | 0 |
Payout Agreement
| No payout information available.. |