Property
Account |
| Property ID: | 184918 | Abbreviated Legal Description: | BAYSHORE TERR 1 LOT 7 & W5' OF LOT 8 |
| Geographic ID: | S6075-00-00007-0 | Agent Code: | |
| Type: | Real | | |
| Tax Area: | 510 - APPRAISER-Stan/Cam Schl Dist, improved & 1 acre or less | Land Use Code | 11 |
| Open Space: | N | DFL | N |
| Historic Property: | N | Remodel Property: | N |
| Multi-Family Redevelopment: | N | | |
| Township: | | Section: | |
| Range: | |
Location |
| Address: | 1088 BAYSHORE DR CAMANO ISLAND, WA 98282 | Mapsco: | |
| Neighborhood: | North Camano | Map ID: | 553 |
| Neighborhood CD: | 06-C |
Owner |
| Name: | SHAH, SANJAY CHANDRAKANT | Owner ID: | 290542 |
| Mailing Address: | TARALBEN SANATKUMAR PATEL PO BOX 95 MEDINA, WA 98039 | % Ownership: | 100.0000000000% |
| | | Exemptions: | |
Taxes and Assessment Details
Values
| (+) Improvement Homesite Value: | + | N/A | |
| (+) Improvement Non-Homesite Value: | + | N/A | |
| (+) Land Homesite Value: | + | N/A | |
| (+) Land Non-Homesite Value: | + | N/A | Ag / Timber Use Value |
| (+) Curr Use (HS): | + | N/A | N/A |
| (+) Curr Use (NHS): | + | N/A | N/A |
| | | -------------------------- | |
| (=) Market Value: | = | N/A | |
| (–) Productivity Loss: | – | N/A | |
| | | -------------------------- | |
| (=) Subtotal: | = | N/A | |
| (+) Senior Appraised Value: | + | N/A | |
| (+) Non-Senior Appraised Value: | + | N/A | |
| | | -------------------------- | |
| (=) Total Appraised Value: | = | N/A | |
| (–) Senior Exemption Loss: | – | N/A | |
| (–) Exemption Loss: | – | N/A | |
| | | -------------------------- | |
| (=) Taxable Value: | = | N/A | |
Taxing Jurisdiction
| Owner: | SHAH, SANJAY CHANDRAKANT | | |
| % Ownership: | 100.0000000000% | | |
| Total Value: | N/A | | |
| Tax Area: | 510 - APPRAISER-Stan/Cam Schl Dist, improved & 1 acre or less |
| CF | Conservation Futures | N/A | N/A | N/A | N/A | | |
| CCD | Camano Conservation District | N/A | N/A | N/A | N/A | | |
| EMS1 | Fire & Rescue Dist #1 Camano GEN (EMS) | N/A | N/A | N/A | N/A | | |
| FIRE1 | Fire & Rescue Dist #1 Camano GEN | N/A | N/A | N/A | N/A | | |
| FIRE1BOND | Fire & Rescue Dist #1 Camano BOND | N/A | N/A | N/A | N/A | | |
| CE | County Current Expense | N/A | N/A | N/A | N/A | | |
| CR | County Roads | N/A | N/A | N/A | N/A | | |
| LCIB | Library Sno-Isle BOND (Camano Island) | N/A | N/A | N/A | N/A | | |
| LIB | Library Sno-Isle GEN | N/A | N/A | N/A | N/A | | |
| SCH205_401 | School 205-401 Enrichment | N/A | N/A | N/A | N/A | | |
| SCH205BOND | School 205-401 BOND | N/A | N/A | N/A | N/A | | |
| ST | State School | N/A | N/A | N/A | N/A | | |
| ST2 | State School Part 2 | N/A | N/A | N/A | N/A | | |
| | Total Tax Rate: | N/A | | | | | |
| | | | | Taxes w/Current Exemptions: | N/A | | |
| | | | | Taxes w/o Exemptions: | N/A | | |
Improvement / Building
| Improvement #1: | RESIDENTIAL | State Code: | Y | 2535.0 sqft | Value: | N/A |
| Bathrooms: | 3 | Bedrooms: | 3 | | Ceiling: | DRYWALL PAINTED | Cooling: | HEAT PUMP/CONV/V | | Exterior Wall/Cover: | CEMENT FIBER | Floor Covering: | HARDWOOD/CARP 80-20 | | Floor Structure: | WOOD W/SUBFLOOR | Foundation: | CONCRETE | | Interior Finish: | DRYWALL PAINT | Plumbing Fixture Cnt: | 16 | | Roof Slope: | 4" IN 12" | Roof Structure/Cover: | STEEL TERNE |
|
| | Type | Description | Class CD | Sub Class CD | Year Built | Area |
| | BAS | BASE/MAIN FLOOR | 5 | 0 | 1995 | 1756.0 |
| | OP2 | OPEN PORCH W/STEPS | 5 | 0 | 1995 | 490.0 |
| | AGR | ATTACHED GARAGE | 5 | 0 | 1995 | 750.0 |
| | DWN | DOWNSTAIRS LIVING AREA | 5 | 0 | 1995 | 779.0 |
| | OP2 | OPEN PORCH W/STEPS | 5 | 0 | 1995 | 1230.0 |
Sketch
Property Image
Land
| 1 | LB | LOW BANK | 0.0000 | 0.00 | 65.00 | 0.00 | 1.00 | N/A | N/A |
Roll Value History
| 2026 | N/A | N/A | N/A | N/A | N/A |
| 2025 | $746,918 | $1,075,000 | $0 | $1,821,918 | $1,821,918 |
| 2024 | $753,194 | $1,000,000 | $0 | $1,753,194 | $1,753,194 |
| 2023 | $759,888 | $925,000 | $0 | $1,684,888 | $1,684,888 |
| 2022 | $682,055 | $825,000 | $0 | $1,507,055 | $1,507,055 |
| 2021 | $598,337 | $550,000 | $0 | $1,148,337 | $1,148,337 |
| 2020 | $579,972 | $525,000 | $0 | $1,104,972 | $1,104,972 |
| 2019 | $463,031 | $525,000 | $0 | $988,031 | $988,031 |
| 2018 | $464,274 | $475,000 | $0 | $939,274 | $939,274 |
| 2017 | $379,212 | $450,000 | $0 | $829,212 | $829,212 |
| 2016 | $318,053 | $450,000 | $0 | $768,053 | $768,053 |
| 2015 | $321,795 | $450,000 | $0 | $771,795 | $771,795 |
| 2014 | $333,175 | $450,000 | $0 | $783,175 | $783,175 |
| 2013 | $337,339 | $450,000 | $0 | $787,339 | $787,339 |
| 2012 | $341,506 | $477,219 | $0 | $818,725 | $818,725 |
| 2011 | $345,669 | $596,524 | $0 | $942,193 | $942,193 |
| 2010 | $352,151 | $596,524 | $0 | $948,675 | $948,675 |
| 2009 | $367,263 | $672,084 | $0 | $1,039,347 | $1,039,347 |
| 2008 | $377,413 | $802,002 | $0 | $1,179,415 | $1,179,415 |
| 2007 | $381,869 | $676,061 | $0 | $1,057,930 | $1,057,930 |
Deed and Sales History
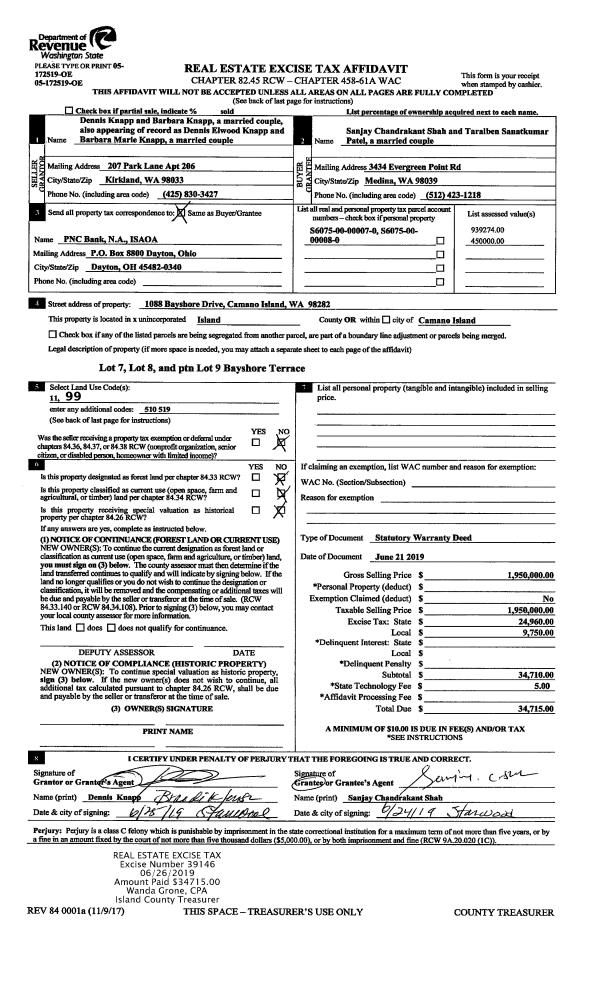
| 1 | 06/21/2019 | WD | Warranty Deed | KNAPP, DENNIS | SHAH, SANJAY CHANDRAKANT | | | $1,950,000.00 | 39146 | 4466127 |
|   | |
| 2 | 06/23/2016 | WD | Warranty Deed | WOHLWEND, DONALD M | KNAPP, DENNIS | | | $865,000.00 | 24941 | 4401872 |
| 3 | 04/01/1992 | QCD | Quit Claim Deed | WOHLWEND, DONALD M | WOHLWEND, DONALD M | | | $0.00 | 21608 | 92007688 |
| 4 | 03/01/1988 | WD | Warranty Deed | BUSHEY, ROBERT | WOHLWEND, DONALD M | | | $100,000.00 | 81069 | 88004096 |
| 5 | 01/01/1900 | OTHER | Other - Misc. Documents | Unknown | BUSHEY, ROBERT | | | $0.00 | 0 | 0 |
Payout Agreement
| No payout information available.. |