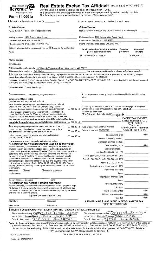
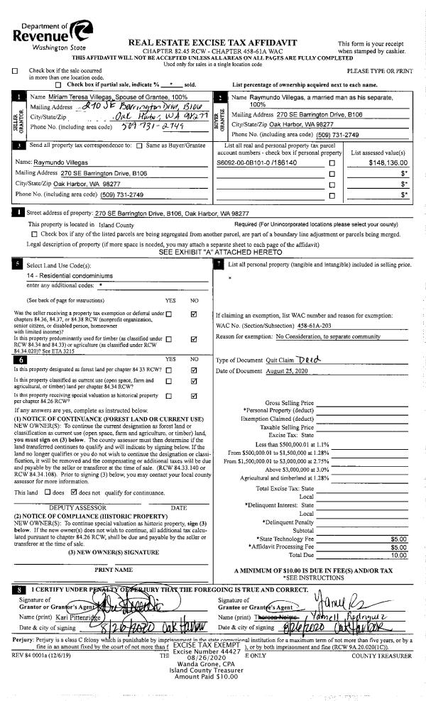
Property
Account |
| Property ID: | 186140 | Abbreviated Legal Description: | BAYVIEW WEST CONDO APT B-101 2.294% INT IN BLDG |
| Geographic ID: | S6092-00-0B101-0 | Agent Code: | |
| Type: | Real | | |
| Tax Area: | 100 - APPRAISER-OH Schl Dist, in OH | Land Use Code | 14 |
| Open Space: | N | DFL | N |
| Historic Property: | N | Remodel Property: | N |
| Multi-Family Redevelopment: | N | | |
| Township: | | Section: | |
| Range: | |
Location |
| Address: | 270 SE BARRINGTON DR BLDG B UNIT 106 OAK HARBOR, WA 98277 | Mapsco: | |
| Neighborhood: | 12*OH-bayview wst | Map ID: | 86 |
| Neighborhood CD: | 12*OHbyvwt |
Owner |
| Name: | VITELLI, ADRIENNE COLETTE | Owner ID: | 310069 |
| Mailing Address: | 270 SE BARRINGTON DR #B106 OAK HARBOR, WA 98277 | % Ownership: | 100.0000000000% |
| | | Exemptions: | |
Taxes and Assessment Details
Values
| (+) Improvement Homesite Value: | + | $0 | |
| (+) Improvement Non-Homesite Value: | + | $155,640 | |
| (+) Land Homesite Value: | + | $0 | |
| (+) Land Non-Homesite Value: | + | $110,000 | |
| (+) Curr Use (HS): | + | $0 | $0 |
| (+) Curr Use (NHS): | + | $0 | $0 |
| | | -------------------------- | |
| (=) Market Value: | = | $265,640 | |
| (–) Productivity Loss: | – | $0 | |
| | | -------------------------- | |
| (=) Subtotal: | = | $265,640 | |
| (+) Senior Appraised Value: | + | $0 | |
| (+) Non-Senior Appraised Value: | + | $265,640 | |
| | | -------------------------- | |
| (=) Total Appraised Value: | = | $265,640 | |
| (–) Senior Exemption Loss: | – | $0 | |
| (–) Exemption Loss: | – | $0 | |
| | | -------------------------- | |
| (=) Taxable Value: | = | $265,640 | |
Taxing Jurisdiction
| Owner: | VITELLI, ADRIENNE COLETTE | | |
| % Ownership: | 100.0000000000% | | |
| Total Value: | $265,640 | | |
| Tax Area: | 100 - APPRAISER-OH Schl Dist, in OH |
| CF | Conservation Futures | 0.0313996660 | $265,640 | $265,640 | $8.34 | | |
| CEM1 | Cemetery #1 | 0.0040018856 | $265,640 | $265,640 | $1.06 | | |
| COH | City of Oak Harbor | 2.3090730572 | $265,640 | $265,640 | $613.38 | | |
| OAKBOND | City of Oak Harbor BOND | 0.1902260131 | $265,640 | $265,640 | $50.53 | | |
| HOBOND | Hospital BOND | 0.1893405597 | $265,640 | $265,640 | $50.30 | | |
| HOGEN | Hospital GEN | 0.3848777722 | $265,640 | $265,640 | $102.24 | | |
| CE | County Current Expense | 0.3674210519 | $265,640 | $265,640 | $97.60 | | |
| ISLANDEMS | Hospital GEN (EMS) | 0.4952018576 | $265,640 | $265,640 | $131.55 | | |
| LIB | Library Sno-Isle GEN | 0.3039084203 | $265,640 | $265,640 | $80.73 | | |
| NWHIDPRMT | P & R N Whidbey GEN | 0.1990272349 | $265,640 | $265,640 | $52.87 | | |
| SCH201MO | School 201 Enrichment | 2.3851112745 | $265,640 | $265,640 | $633.58 | | |
| ST | State School | 1.4761226122 | $265,640 | $265,640 | $392.12 | | |
| ST2 | State School Part 2 | 0.7953803475 | $265,640 | $265,640 | $211.28 | | |
| | Total Tax Rate: | 9.1310917527 | | | | | |
| | | | | Taxes w/Current Exemptions: | $2,425.58 | | |
| | | | | Taxes w/o Exemptions: | $2,425.58 | | |
Improvement / Building
| Improvement #1: | RESIDENTIAL | State Code: | Y | 961.5 sqft | Value: | $155,640 |
| Bathrooms: | 1 | Bedrooms: | 2 | | Ceiling: | DRY WALL SPRAYED | Exterior Wall/Cover: | WOOD SIDING | | Floor Covering: | CARPET/VINYL 80-20 | Floor Structure: | WOOD W/SUBFLOOR | | Foundation: | CONCRETE | Heating: | FHA GAS | | Interior Finish: | DRYWALL PAINT | Plumbing Fixture Cnt: | 6 | | Roof Slope: | 4" IN 12" | Roof Structure/Cover: | CJ ASPHALT |
|
| | Type | Description | Class CD | Sub Class CD | Year Built | Area |
| | BAS | BASE/MAIN FLOOR | 3 | 0 | 1978 | 961.5 |
| | OP1 | OPEN PORCH SLAB | 3 | 0 | 1978 | 69.0 |
| | OP4 | OPEN PORCH W/CEILING-ROOF | 3 | 0 | 1978 | 108.0 |
| | oPV2 | PV/ASPH 3" | 3 | 0 | 1978 | 0.0 |
| | oUTI | UTILITY | 3 | 0 | 1978 | 0.0 |
Sketch
Property Image
Land
| 1 | 61 | MULTIPLE RESIDENCES | 0.0470 | 2046.00 | 0.00 | 0.00 | 1.00 | $110,000 | $0 |
Roll Value History
| 2026 | N/A | N/A | N/A | N/A | N/A |
| 2025 | $155,640 | $110,000 | $0 | $265,640 | $265,640 |
| 2024 | $157,746 | $100,000 | $0 | $257,746 | $257,746 |
| 2023 | $146,675 | $85,000 | $0 | $231,675 | $231,675 |
| 2022 | $134,803 | $80,000 | $0 | $214,803 | $214,803 |
| 2021 | $118,983 | $50,000 | $0 | $168,983 | $168,983 |
| 2020 | $116,136 | $32,000 | $0 | $148,136 | $148,136 |
| 2019 | $83,584 | $60,000 | $0 | $143,584 | $143,584 |
| 2018 | $83,866 | $65,000 | $0 | $148,866 | $148,866 |
| 2017 | $69,406 | $24,414 | $0 | $93,820 | $93,820 |
| 2016 | $74,271 | $31,380 | $0 | $105,651 | $105,651 |
| 2015 | $75,386 | $31,380 | $0 | $106,766 | $106,766 |
| 2014 | $73,869 | $31,380 | $0 | $105,249 | $105,249 |
| 2013 | $74,977 | $31,380 | $0 | $106,357 | $106,357 |
| 2012 | $76,359 | $31,380 | $0 | $107,739 | $107,739 |
| 2011 | $76,359 | $31,380 | $0 | $107,739 | $107,739 |
| 2010 | $75,751 | $24,309 | $0 | $100,060 | $100,060 |
| 2009 | $78,969 | $41,840 | $0 | $120,809 | $120,809 |
| 2008 | $79,969 | $26,150 | $0 | $106,119 | $106,119 |
| 2007 | $80,969 | $26,150 | $0 | $107,119 | $107,119 |
Deed and Sales History
| 1 | 09/07/2023 | WD | Warranty Deed | VILLEGAS, RAYMUNDO | VITELLI, ADRIENNE COLETTE | | | $275,000.00 | 57981 | 4564726 |
| 2 | 08/25/2020 | QCD | Quit Claim Deed | VILLEGAS, MIRIAM TERESA | VILLEGAS, RAYMUNDO | | | $0.00 | 44427 | 4494845 |
| 3 | 08/12/2020 | WD | Warranty Deed | LOCKRIDGE, JOHN S | VILLEGAS, RAYMUNDO | | | $165,950.00 | 44425 | 4494844 |
| 4 | 07/06/2009 | WD | Warranty Deed | TOEDTE, LYNN | LOCKRIDGE, JOHN S | | | $110,000.00 | 91509 | 4255570 |
| 5 | 04/08/2004 | WD | Warranty Deed | JULANDER, TIMOTHY M | TOEDTE, LYNN | | | $68,750.00 | 41566 | 4097668 |
| 6 | 10/29/2001 | WD | Warranty Deed | HIGHTOWER, ANDREW P | JULANDER, TIMOTHY M | | | $62,000.00 | 14249 | 4001839 |
| 7 | 07/01/1997 | WD | Warranty Deed | COOPER, RHODA E | HIGHTOWER, ANDREW P | | | $58,000.00 | 72296 | 97010827 |
| 8 | 08/01/1990 | WD | Warranty Deed | MCMURRAY, PATRICIA C | COOPER, RHODA E | | | $47,500.00 | 4885 | 90016204 |
| 9 | 02/01/1982 | OTHER | Other - Misc. Documents | MCMURRAY, EARL B | MCMURRAY, PATRICIA C | | | $0.00 | 59387 | 393305 |
| 10 | 08/01/1978 | OTHER | Other - Misc. Documents | Unknown | MCMURRAY, EARL B | | | $31,000.00 | 83607 | 337098 |
Payout Agreement
| No payout information available.. |