Property
Account |
| Property ID: | 186364 | Abbreviated Legal Description: | BAYVIEW WEST CONDO APT C-105 2.304% INT IN BLDG |
| Geographic ID: | S6092-00-0C105-0 | Agent Code: | |
| Type: | Real | | |
| Tax Area: | 100 - APPRAISER-OH Schl Dist, in OH | Land Use Code | 14 |
| Open Space: | N | DFL | N |
| Historic Property: | N | Remodel Property: | N |
| Multi-Family Redevelopment: | N | | |
| Township: | | Section: | |
| Range: | |
Location |
| Address: | 270 SE BARRINGTON DR BLDG A UNIT 102 OAK HARBOR, WA 98277 | Mapsco: | |
| Neighborhood: | 12*OH-bayview wst | Map ID: | 86 |
| Neighborhood CD: | 12*OHbyvwt |
Owner |
| Name: | ALLEN, DAVID L | Owner ID: | 279486 |
| Mailing Address: | 270 SE BARRINGTON DR A102 OAK HARBOR, WA 98277 | % Ownership: | 100.0000000000% |
| | | Exemptions: | |
Taxes and Assessment Details
Values
| (+) Improvement Homesite Value: | + | $0 | |
| (+) Improvement Non-Homesite Value: | + | $153,625 | |
| (+) Land Homesite Value: | + | $0 | |
| (+) Land Non-Homesite Value: | + | $110,000 | |
| (+) Curr Use (HS): | + | $0 | $0 |
| (+) Curr Use (NHS): | + | $0 | $0 |
| | | -------------------------- | |
| (=) Market Value: | = | $263,625 | |
| (–) Productivity Loss: | – | $0 | |
| | | -------------------------- | |
| (=) Subtotal: | = | $263,625 | |
| (+) Senior Appraised Value: | + | $0 | |
| (+) Non-Senior Appraised Value: | + | $263,625 | |
| | | -------------------------- | |
| (=) Total Appraised Value: | = | $263,625 | |
| (–) Senior Exemption Loss: | – | $0 | |
| (–) Exemption Loss: | – | $0 | |
| | | -------------------------- | |
| (=) Taxable Value: | = | $263,625 | |
Taxing Jurisdiction
| Owner: | ALLEN, DAVID L | | |
| % Ownership: | 100.0000000000% | | |
| Total Value: | $263,625 | | |
| Tax Area: | 100 - APPRAISER-OH Schl Dist, in OH |
| CF | Conservation Futures | 0.0313996660 | $263,625 | $263,625 | $8.28 | | |
| CEM1 | Cemetery #1 | 0.0040018856 | $263,625 | $263,625 | $1.05 | | |
| COH | City of Oak Harbor | 2.3090730572 | $263,625 | $263,625 | $608.73 | | |
| OAKBOND | City of Oak Harbor BOND | 0.1902260131 | $263,625 | $263,625 | $50.15 | | |
| HOBOND | Hospital BOND | 0.1893405597 | $263,625 | $263,625 | $49.91 | | |
| HOGEN | Hospital GEN | 0.3848777722 | $263,625 | $263,625 | $101.46 | | |
| CE | County Current Expense | 0.3674210519 | $263,625 | $263,625 | $96.86 | | |
| ISLANDEMS | Hospital GEN (EMS) | 0.4952018576 | $263,625 | $263,625 | $130.55 | | |
| LIB | Library Sno-Isle GEN | 0.3039084203 | $263,625 | $263,625 | $80.12 | | |
| NWHIDPRMT | P & R N Whidbey GEN | 0.1990272349 | $263,625 | $263,625 | $52.47 | | |
| SCH201MO | School 201 Enrichment | 2.3851112745 | $263,625 | $263,625 | $628.77 | | |
| ST | State School | 1.4761226122 | $263,625 | $263,625 | $389.14 | | |
| ST2 | State School Part 2 | 0.7953803475 | $263,625 | $263,625 | $209.68 | | |
| | Total Tax Rate: | 9.1310917527 | | | | | |
| | | | | Taxes w/Current Exemptions: | $2,407.17 | | |
| | | | | Taxes w/o Exemptions: | $2,407.17 | | |
Improvement / Building
| Improvement #1: | RESIDENTIAL | State Code: | Y | 952.3 sqft | Value: | $153,625 |
| Bathrooms: | 1 | Bedrooms: | 2 | | Ceiling: | DRY WALL SPRAYED | Exterior Wall/Cover: | WOOD SIDING | | Floor Covering: | CARPET/VINYL 80-20 | Floor Structure: | WOOD W/SUBFLOOR | | Foundation: | CONCRETE | Heating: | FHA GAS | | Interior Finish: | DRYWALL PAINT | Plumbing Fixture Cnt: | 6 | | Roof Slope: | 4" IN 12" | Roof Structure/Cover: | CJ ASPHALT |
|
| | Type | Description | Class CD | Sub Class CD | Year Built | Area |
| | BAS | BASE/MAIN FLOOR | 3 | 0 | 1978 | 952.3 |
| | OP1 | OPEN PORCH SLAB | 3 | 0 | 1978 | 73.8 |
| | OP4 | OPEN PORCH W/CEILING-ROOF | 3 | 0 | 1978 | 72.4 |
| | oPV2 | PV/ASPH 3" | 3 | 0 | 1978 | 0.0 |
| | oUTI | UTILITY | 3 | 0 | 1978 | 0.0 |
Sketch
Property Image
Land
| 1 | 61 | MULTIPLE RESIDENCES | 0.0472 | 2055.00 | 0.00 | 0.00 | 1.00 | $110,000 | $0 |
Roll Value History
| 2026 | N/A | N/A | N/A | N/A | N/A |
| 2025 | $153,625 | $110,000 | $0 | $263,625 | $263,625 |
| 2024 | $155,704 | $100,000 | $0 | $255,704 | $255,704 |
| 2023 | $144,768 | $85,000 | $0 | $229,768 | $229,768 |
| 2022 | $133,051 | $80,000 | $0 | $213,051 | $213,051 |
| 2021 | $117,448 | $50,000 | $0 | $167,448 | $167,448 |
| 2020 | $114,634 | $32,000 | $0 | $146,634 | $146,634 |
| 2019 | $82,447 | $60,000 | $0 | $142,447 | $142,447 |
| 2018 | $82,726 | $65,000 | $0 | $147,726 | $147,726 |
| 2017 | $71,210 | $31,505 | $0 | $102,715 | $102,715 |
| 2016 | $72,294 | $31,505 | $0 | $103,799 | $103,799 |
| 2015 | $73,379 | $31,505 | $0 | $104,884 | $104,884 |
| 2014 | $71,903 | $31,505 | $0 | $103,408 | $103,408 |
| 2013 | $72,981 | $31,505 | $0 | $104,486 | $104,486 |
| 2012 | $77,169 | $31,505 | $0 | $108,674 | $108,674 |
| 2011 | $77,169 | $31,505 | $0 | $108,674 | $108,674 |
| 2010 | $73,198 | $24,414 | $0 | $97,612 | $97,612 |
| 2009 | $76,300 | $42,020 | $0 | $118,320 | $118,320 |
| 2008 | $77,264 | $26,263 | $0 | $103,527 | $103,527 |
| 2007 | $78,229 | $26,263 | $0 | $104,492 | $104,492 |
Deed and Sales History
| 1 | 04/12/2017 | WD | Warranty Deed | WAGNER TRUSTEE, FERDINAND R | ALLEN, DAVID L | | | $104,000.00 | 28912 | 4420871 |
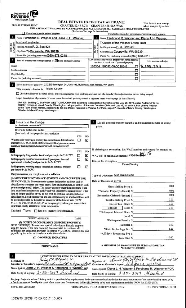
| 2 | 02/07/2017 | QCD | Quit Claim Deed | WAGNER TRUSTEE, FERDINAND R | WAGNER TRUSTEE, FERDINAND R | | | $0.00 | 28558 | 4419405 |
| 3 | 01/31/2017 | QCD | Quit Claim Deed | WAGNER FAMILY TRUST | WAGNER TRUSTEE, FERDINAND R | | | $0.00 | 27937 | 4416286 |
| 4 | 08/05/2016 | QCD | Quit Claim Deed | WAGNER, FERDINAND R | WAGNER FAMILY TRUST | | | $0.00 | 25671 | 4405074 |
| 5 | 01/28/2005 | WD | Warranty Deed | SANCHEZ, JOEPHAZ E | WAGNER, FERDINAND R | | | $80,000.00 | 50421 | 4124696 |
| 6 | 03/22/2001 | ESTSEPPROP | Establish Separate Property | SANCHEZ, JOEPHAZ E | SANCHEZ, JOEPHAZ E | | | $0.00 | 10961 | 20028225 |
| 7 | 03/22/2001 | WD | Warranty Deed | WRIGHT, KERMIT H | SANCHEZ, JOEPHAZ E | | | $59,900.00 | 10960 | 20028224 |
| 8 | 11/01/1989 | WD | Warranty Deed | CARTER, LESTER D | WRIGHT, KERMIT H | | | $44,500.00 | 95268 | 89016931 |
| 9 | 12/01/1982 | WD | Warranty Deed | WAITE, MELANIE A | CARTER, LESTER D | | | $40,000.00 | 23039 | 403899 |
| 10 | 06/01/1979 | WD | Warranty Deed | NUNN, RICHARD R | WAITE, MELANIE A | | | $37,900.00 | 93241 | 355109 |
| 11 | 05/01/1979 | REC | Real Estate Contract | PARSONS, STANTON V | NUNN, RICHARD R | | | $38,113.00 | 92888 | 353963 |
| 12 | 10/01/1978 | OTHER | Other - Misc. Documents | Unknown | PARSONS, STANTON V | | | $33,950.00 | 852970 | 3420550 |
Payout Agreement
| No payout information available.. |