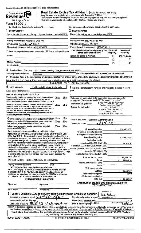
Property
Account |
| Property ID: | 187096 | Abbreviated Legal Description: | BEACHCOMBERS 1 LOTS 59 & 60 COMB 3/90 |
| Geographic ID: | S6095-00-00059-0 | Agent Code: | |
| Type: | Real | | |
| Tax Area: | 310 - APPRAISER-Cpvl Schl Dist, outside Cpvl, improved & 1 acre or less | Land Use Code | 11 |
| Open Space: | N | DFL | N |
| Historic Property: | N | Remodel Property: | N |
| Multi-Family Redevelopment: | N | | |
| Township: | | Section: | |
| Range: | |
Location |
| Address: | 2217 CRANES LANDING DR GREENBANK, WA 98253 | Mapsco: | |
| Neighborhood: | Cycle 2 | Map ID: | 530 |
| Neighborhood CD: | 2 |
Owner |
| Name: | NYMAN, JACK W | Owner ID: | 9241 |
| Mailing Address: | 4905 ALPENGLOW DR NW BREMERTON, WA 98312 | % Ownership: | 100.0000000000% |
| | | Exemptions: | |
Taxes and Assessment Details
Values
| (+) Improvement Homesite Value: | + | $0 | |
| (+) Improvement Non-Homesite Value: | + | $17,983 | |
| (+) Land Homesite Value: | + | $0 | |
| (+) Land Non-Homesite Value: | + | $160,000 | |
| (+) Curr Use (HS): | + | $0 | $0 |
| (+) Curr Use (NHS): | + | $0 | $0 |
| | | -------------------------- | |
| (=) Market Value: | = | $177,983 | |
| (–) Productivity Loss: | – | $0 | |
| | | -------------------------- | |
| (=) Subtotal: | = | $177,983 | |
| (+) Senior Appraised Value: | + | $0 | |
| (+) Non-Senior Appraised Value: | + | $177,983 | |
| | | -------------------------- | |
| (=) Total Appraised Value: | = | $177,983 | |
| (–) Senior Exemption Loss: | – | $0 | |
| (–) Exemption Loss: | – | $0 | |
| | | -------------------------- | |
| (=) Taxable Value: | = | $177,983 | |
Taxing Jurisdiction
| Owner: | NYMAN, JACK W | | |
| % Ownership: | 100.0000000000% | | |
| Total Value: | $177,983 | | |
| Tax Area: | 310 - APPRAISER-Cpvl Schl Dist, outside Cpvl, improved & 1 acre or less |
| CF | Conservation Futures | 0.0313996660 | $177,983 | $177,983 | $5.59 | | |
| CEM2 | Cemetery #2 | 0.0092609791 | $177,983 | $177,983 | $1.65 | | |
| FIRE5 | Fire & Rescue Dist #5 C Whidbey GEN | 1.1892169230 | $177,983 | $177,983 | $211.66 | | |
| FIRE5BOND | Fire & Rescue Dist #5 C Whidbey BOND | 0.1394359503 | $177,983 | $177,983 | $24.82 | | |
| HOBOND | Hospital BOND | 0.1893405597 | $177,983 | $177,983 | $33.70 | | |
| HOGEN | Hospital GEN | 0.3848777722 | $177,983 | $177,983 | $68.50 | | |
| CE | County Current Expense | 0.3674210519 | $177,983 | $177,983 | $65.39 | | |
| CR | County Roads | 0.4614296361 | $177,983 | $177,983 | $82.13 | | |
| ISLANDEMS | Hospital GEN (EMS) | 0.4952018576 | $177,983 | $177,983 | $88.14 | | |
| LIB | Library Sno-Isle GEN | 0.3039084203 | $177,983 | $177,983 | $54.09 | | |
| LIBCAP | Library Sno-Isle BOND (Cap Fac Imp Area) | 0.0528562629 | $177,983 | $177,983 | $9.41 | | |
| POCOUP | Port of Coupeville GEN | 0.1065226063 | $177,983 | $177,983 | $18.96 | | |
| POCOUPIDD | Port of Coupeville IDD | 0.3353038577 | $177,983 | $177,983 | $59.68 | | |
| COUPSDTECH | School 204 CP (TECH) | 0.1215123397 | $177,983 | $177,983 | $21.63 | | |
| SCH204MO | School 204 Enrichment | 0.6416662518 | $177,983 | $177,983 | $114.21 | | |
| ST | State School | 1.4761226122 | $177,983 | $177,983 | $262.72 | | |
| ST2 | State School Part 2 | 0.7953803475 | $177,983 | $177,983 | $141.56 | | |
| | Total Tax Rate: | 7.1008570943 | | | | | |
| | | | | Taxes w/Current Exemptions: | $1,263.84 | | |
| | | | | Taxes w/o Exemptions: | $1,263.84 | | |
Improvement / Building
| Improvement #1: | RESIDENTIAL | State Code: | Y | 0.0 sqft | Value: | $17,983 |
| | Type | Description | Class CD | Sub Class CD | Year Built | Area |
| | oSEP | SEPTIC | 1 | 0 | 1900 | 0.0 |
| | oCB2 | CABIN FIN | 2 | 0 | 1900 | 192.0 |
| | OWR | OPEN WOOD PORCH W/STEPS/ROOF | 1 | 0 | 1900 | 60.0 |
Sketch
| No sketches available for this property. |
Property Image
Land
| 1 | 16 | AC (00.51-01.00) | 0.1600 | 6969.60 | 0.00 | 0.00 | 1.00 | $160,000 | $0 |
Roll Value History
| 2026 | N/A | N/A | N/A | N/A | N/A |
| 2025 | $17,983 | $160,000 | $0 | $177,983 | $177,983 |
| 2024 | $7,500 | $150,000 | $0 | $157,500 | $157,500 |
| 2023 | $7,500 | $150,000 | $0 | $157,500 | $157,500 |
| 2022 | $7,500 | $150,000 | $0 | $157,500 | $157,500 |
| 2021 | $7,500 | $135,000 | $0 | $142,500 | $142,500 |
| 2020 | $7,500 | $135,000 | $0 | $142,500 | $142,500 |
| 2019 | $7,500 | $135,000 | $0 | $142,500 | $142,500 |
| 2018 | $4,000 | $100,000 | $0 | $104,000 | $104,000 |
| 2017 | $4,000 | $140,000 | $0 | $144,000 | $144,000 |
| 2016 | $4,000 | $140,000 | $0 | $144,000 | $144,000 |
| 2015 | $4,000 | $140,000 | $0 | $144,000 | $144,000 |
| 2014 | $4,000 | $120,000 | $0 | $124,000 | $124,000 |
| 2013 | $4,000 | $95,000 | $0 | $99,000 | $99,000 |
| 2012 | $4,000 | $118,750 | $0 | $122,750 | $122,750 |
| 2011 | $4,000 | $125,000 | $0 | $129,000 | $129,000 |
| 2010 | $4,000 | $125,000 | $0 | $129,000 | $129,000 |
| 2009 | $4,000 | $130,000 | $0 | $134,000 | $134,000 |
| 2008 | $4,000 | $163,800 | $0 | $167,800 | $167,800 |
| 2007 | $3,356 | $164,444 | $0 | $167,800 | $167,800 |
Deed and Sales History
| 1 | 08/25/2025 | WD | Warranty Deed | NYMAN, JACK W | MATNEY, JULIE | | | $289,835.00 | 64628 | 4590179 |
| 2 | 03/01/1990 | OTHER | Other - Misc. Documents | NYMAN, JACK W | NYMAN, JACK W | | | $0.00 | 63559 | 90004165 |
| 3 | 03/01/1989 | WD | Warranty Deed | RYDER, DORIS J | NYMAN, JACK W | | | $10,500.00 | 90975 | 89003432 |
| 4 | 07/01/1987 | OTHER | Other - Misc. Documents | KNEDLER, DORIS J | RYDER, DORIS J | | | $0.00 | 62286 | 0 |
| 5 | 01/01/1900 | OTHER | Other - Misc. Documents | Unknown | KNEDLER, DORIS J | | | $0.00 | 0 | 0 |
Payout Agreement
| No payout information available.. |