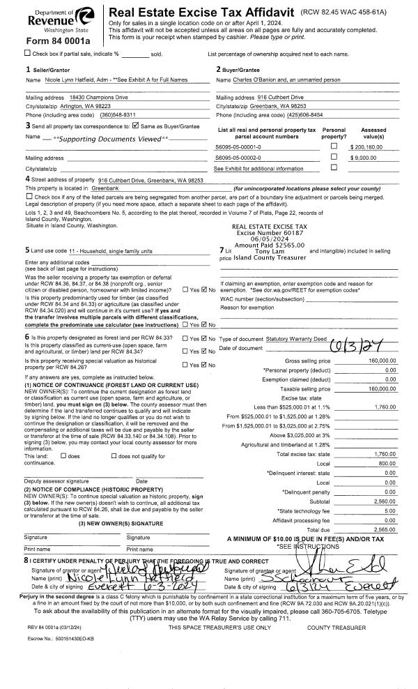
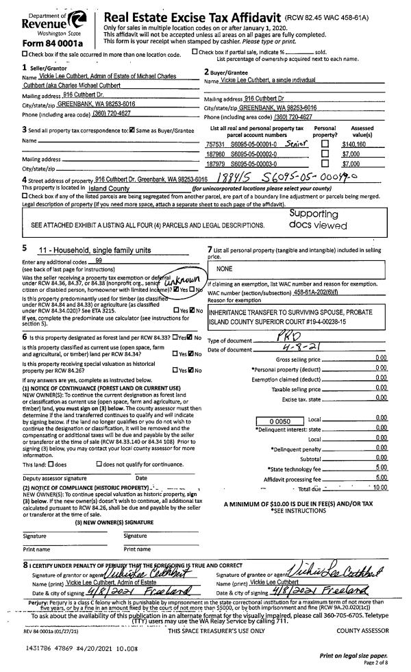
Property
Account |
| Property ID: | 188415 | Abbreviated Legal Description: | BEACHCOMBERS 5 LOT 49 |
| Geographic ID: | S6095-05-00049-0 | Agent Code: | |
| Type: | Real | | |
| Tax Area: | 310 - APPRAISER-Cpvl Schl Dist, outside Cpvl, improved & 1 acre or less | Land Use Code | 11 |
| Open Space: | N | DFL | N |
| Historic Property: | N | Remodel Property: | N |
| Multi-Family Redevelopment: | N | | |
| Township: | | Section: | |
| Range: | |
Location |
| Address: | 2343 MASTODON DR GREENBANK, WA 98253 | Mapsco: | |
| Neighborhood: | Cycle 2 | Map ID: | 530 |
| Neighborhood CD: | 2 |
Owner |
| Name: | O'BANION, CHARLES | Owner ID: | 312625 |
| Mailing Address: | 916 CUTHBERT DR GREENBANK, WA 98253 | % Ownership: | 100.0000000000% |
| | | Exemptions: | |
Taxes and Assessment Details
Values
| (+) Improvement Homesite Value: | + | $0 | |
| (+) Improvement Non-Homesite Value: | + | $24,001 | |
| (+) Land Homesite Value: | + | $0 | |
| (+) Land Non-Homesite Value: | + | $12,000 | |
| (+) Curr Use (HS): | + | $0 | $0 |
| (+) Curr Use (NHS): | + | $0 | $0 |
| | | -------------------------- | |
| (=) Market Value: | = | $36,001 | |
| (–) Productivity Loss: | – | $0 | |
| | | -------------------------- | |
| (=) Subtotal: | = | $36,001 | |
| (+) Senior Appraised Value: | + | $0 | |
| (+) Non-Senior Appraised Value: | + | $36,001 | |
| | | -------------------------- | |
| (=) Total Appraised Value: | = | $36,001 | |
| (–) Senior Exemption Loss: | – | $0 | |
| (–) Exemption Loss: | – | $0 | |
| | | -------------------------- | |
| (=) Taxable Value: | = | $36,001 | |
Taxing Jurisdiction
| Owner: | O'BANION, CHARLES | | |
| % Ownership: | 100.0000000000% | | |
| Total Value: | $36,001 | | |
| Tax Area: | 310 - APPRAISER-Cpvl Schl Dist, outside Cpvl, improved & 1 acre or less |
| CF | Conservation Futures | 0.0313996660 | $36,001 | $36,001 | $1.13 | | |
| CEM2 | Cemetery #2 | 0.0092609791 | $36,001 | $36,001 | $0.33 | | |
| FIRE5 | Fire & Rescue Dist #5 C Whidbey GEN | 1.1892169230 | $36,001 | $36,001 | $42.81 | | |
| FIRE5BOND | Fire & Rescue Dist #5 C Whidbey BOND | 0.1394359503 | $36,001 | $36,001 | $5.02 | | |
| HOBOND | Hospital BOND | 0.1893405597 | $36,001 | $36,001 | $6.82 | | |
| HOGEN | Hospital GEN | 0.3848777722 | $36,001 | $36,001 | $13.86 | | |
| CE | County Current Expense | 0.3674210519 | $36,001 | $36,001 | $13.23 | | |
| CR | County Roads | 0.4614296361 | $36,001 | $36,001 | $16.61 | | |
| ISLANDEMS | Hospital GEN (EMS) | 0.4952018576 | $36,001 | $36,001 | $17.83 | | |
| LIB | Library Sno-Isle GEN | 0.3039084203 | $36,001 | $36,001 | $10.94 | | |
| LIBCAP | Library Sno-Isle BOND (Cap Fac Imp Area) | 0.0528562629 | $36,001 | $36,001 | $1.90 | | |
| POCOUP | Port of Coupeville GEN | 0.1065226063 | $36,001 | $36,001 | $3.83 | | |
| POCOUPIDD | Port of Coupeville IDD | 0.3353038577 | $36,001 | $36,001 | $12.07 | | |
| COUPSDTECH | School 204 CP (TECH) | 0.1215123397 | $36,001 | $36,001 | $4.37 | | |
| SCH204MO | School 204 Enrichment | 0.6416662518 | $36,001 | $36,001 | $23.10 | | |
| ST | State School | 1.4761226122 | $36,001 | $36,001 | $53.14 | | |
| ST2 | State School Part 2 | 0.7953803475 | $36,001 | $36,001 | $28.63 | | |
| | Total Tax Rate: | 7.1008570943 | | | | | |
| | | | | Taxes w/Current Exemptions: | $255.62 | | |
| | | | | Taxes w/o Exemptions: | $255.62 | | |
Improvement / Building
| Improvement #1: | RESIDENTIAL | State Code: | Y | 0.0 sqft | Value: | $24,001 |
Sketch
| No sketches available for this property. |
Property Image
Land
| 1 | 98 | OTHER IMPROVED LAND | 0.1300 | 5662.80 | 0.00 | 0.00 | 1.00 | $12,000 | $0 |
Roll Value History
| 2026 | N/A | N/A | N/A | N/A | N/A |
| 2025 | $24,001 | $12,000 | $0 | $36,001 | $36,001 |
| 2024 | $19,680 | $12,000 | $0 | $31,680 | $31,680 |
| 2023 | $19,680 | $9,000 | $0 | $28,680 | $28,680 |
| 2022 | $19,680 | $9,000 | $0 | $28,680 | $28,680 |
| 2021 | $19,680 | $7,000 | $0 | $26,680 | $26,680 |
| 2020 | $19,680 | $7,000 | $0 | $26,680 | $26,680 |
| 2019 | $19,680 | $5,000 | $0 | $24,680 | $24,680 |
| 2018 | $16,422 | $5,000 | $0 | $21,422 | $21,422 |
| 2017 | $16,422 | $5,000 | $0 | $21,422 | $21,422 |
| 2016 | $16,422 | $5,000 | $0 | $21,422 | $21,422 |
| 2015 | $16,422 | $5,000 | $0 | $21,422 | $21,422 |
| 2014 | $16,422 | $5,000 | $0 | $21,422 | $21,422 |
| 2013 | $16,422 | $5,000 | $0 | $21,422 | $21,422 |
| 2012 | $16,422 | $4,000 | $0 | $20,422 | $20,422 |
| 2011 | $16,422 | $6,600 | $0 | $23,022 | $23,022 |
| 2010 | $16,422 | $6,600 | $0 | $23,022 | $23,022 |
| 2009 | $16,940 | $7,800 | $0 | $24,740 | $24,740 |
| 2008 | $17,301 | $12,600 | $0 | $29,901 | $29,901 |
| 2007 | $18,156 | $12,104 | $0 | $30,260 | $30,260 |
Deed and Sales History
| 1 | 06/03/2024 | WD | Warranty Deed | CUTHBERT, VICKIE LEE | O'BANION, CHARLES | | | $160,000.00 | 60187 | 4573064 |
|   | |
| 2 | 04/20/2021 | PRD | Personal Representatives Deed | CUTHBERT, CHARLES MICHAEL | CUTHBERT, VICKIE LEE | | | $0.00 | 47869 | 4516998 |
| 3 | 11/01/1997 | WD | Warranty Deed | HOOD, KATHRINE M | CUTHBERT, CHARLES M | | | $5,967.00 | 73855 | 18420 |
| 4 | 07/01/1994 | WD | Warranty Deed | TUCKER, MARY P | HOOD, KATHRINE M | | | $2,400.00 | 42985 | 94017201 |
| 5 | 12/01/1992 | OTHER | Other - Misc. Documents | ISLAND, COUNTY | TUCKER, MARY P | | | $0.00 | 65164 | 0 |
| 6 | 12/01/1992 | WD | Warranty Deed | HILL, VELMA P | ISLAND, COUNTY | | | $0.00 | 25119 | 92025208 |
| 7 | 09/01/1992 | QCD | Quit Claim Deed | TUCKER, GILBERT L | HILL, VELMA P | | | $0.00 | 23526 | 92017128 |
| 8 | 07/01/1967 | EXECUTORD | Executor Deed | CUTHBERT, CHARLES MICHAEL | TUCKER, GILBERT L | | | $0.00 | 27316 | 0 |
| 9 | 01/01/1900 | OTHER | Other - Misc. Documents | HEMINGER, BOB L | CUTHBERT, CHARLES MICHAEL | | | $0.00 | 0 | 0 |
| 10 | 01/01/1900 | OTHER | Other - Misc. Documents | Unknown | HEMINGER, BOB L | | | $0.00 | 0 | 0 |
Payout Agreement
| No payout information available.. |