Property
Account |
| Property ID: | 188415 | Abbreviated Legal Description: | BEACHCOMBERS 5 LOT 49 |
| Geographic ID: | S6095-05-00049-0 | Agent Code: | |
| Type: | Real | | |
| Tax Area: | 310 - APPRAISER-Cpvl Schl Dist, outside Cpvl, improved & 1 acre or less | Land Use Code | 11 |
| Open Space: | N | DFL | N |
| Historic Property: | N | Remodel Property: | N |
| Multi-Family Redevelopment: | N | | |
| Township: | | Section: | |
| Range: | |
Location |
| Address: | 2343 MASTODON DR GREENBANK, WA 98253 | Mapsco: | |
| Neighborhood: | Cycle 2 | Map ID: | 530 |
| Neighborhood CD: | 2 |
Owner |
| Name: | O'BANION, CHARLES | Owner ID: | 312625 |
| Mailing Address: | 916 CUTHBERT DR GREENBANK, WA 98253 | % Ownership: | 100.0000000000% |
| | | Exemptions: | |
Taxes and Assessment Details
Values
| (+) Improvement Homesite Value: | + | N/A | |
| (+) Improvement Non-Homesite Value: | + | N/A | |
| (+) Land Homesite Value: | + | N/A | |
| (+) Land Non-Homesite Value: | + | N/A | Ag / Timber Use Value |
| (+) Curr Use (HS): | + | N/A | N/A |
| (+) Curr Use (NHS): | + | N/A | N/A |
| | | -------------------------- | |
| (=) Market Value: | = | N/A | |
| (–) Productivity Loss: | – | N/A | |
| | | -------------------------- | |
| (=) Subtotal: | = | N/A | |
| (+) Senior Appraised Value: | + | N/A | |
| (+) Non-Senior Appraised Value: | + | N/A | |
| | | -------------------------- | |
| (=) Total Appraised Value: | = | N/A | |
| (–) Senior Exemption Loss: | – | N/A | |
| (–) Exemption Loss: | – | N/A | |
| | | -------------------------- | |
| (=) Taxable Value: | = | N/A | |
Taxing Jurisdiction
| Owner: | O'BANION, CHARLES | | |
| % Ownership: | 100.0000000000% | | |
| Total Value: | N/A | | |
| Tax Area: | 310 - APPRAISER-Cpvl Schl Dist, outside Cpvl, improved & 1 acre or less |
| CF | Conservation Futures | N/A | N/A | N/A | N/A | | |
| WCD | Whidbey Conservation District | N/A | N/A | N/A | N/A | | |
| CEM2 | Cemetery #2 | N/A | N/A | N/A | N/A | | |
| FIRE5 | Fire & Rescue Dist #5 C Whidbey GEN | N/A | N/A | N/A | N/A | | |
| FIRE5BOND | Fire & Rescue Dist #5 C Whidbey BOND | N/A | N/A | N/A | N/A | | |
| HOBOND | Hospital BOND | N/A | N/A | N/A | N/A | | |
| HOGEN | Hospital GEN | N/A | N/A | N/A | N/A | | |
| CE | County Current Expense | N/A | N/A | N/A | N/A | | |
| CR | County Roads | N/A | N/A | N/A | N/A | | |
| ISLANDEMS | Hospital GEN (EMS) | N/A | N/A | N/A | N/A | | |
| LIB | Library Sno-Isle GEN | N/A | N/A | N/A | N/A | | |
| LIBCAP | Library Sno-Isle BOND (Cap Fac Imp Area) | N/A | N/A | N/A | N/A | | |
| POCOUP | Port of Coupeville GEN | N/A | N/A | N/A | N/A | | |
| COUPSDTECH | School 204 CP (TECH) | N/A | N/A | N/A | N/A | | |
| SCH204MO | School 204 Enrichment | N/A | N/A | N/A | N/A | | |
| ST | State School | N/A | N/A | N/A | N/A | | |
| ST2 | State School Part 2 | N/A | N/A | N/A | N/A | | |
| | Total Tax Rate: | N/A | | | | | |
| | | | | Taxes w/Current Exemptions: | N/A | | |
| | | | | Taxes w/o Exemptions: | N/A | | |
Improvement / Building
| Improvement #1: | RESIDENTIAL | State Code: | Y | 0.0 sqft | Value: | N/A |
Sketch
Property Image
Land
| 1 | 98 | OTHER IMPROVED LAND | 0.1300 | 5662.80 | 0.00 | 0.00 | 1.00 | N/A | N/A |
Roll Value History
| 2026 | N/A | N/A | N/A | N/A | N/A |
| 2025 | $24,001 | $12,000 | $0 | $36,001 | $36,001 |
| 2024 | $19,680 | $12,000 | $0 | $31,680 | $31,680 |
| 2023 | $19,680 | $9,000 | $0 | $28,680 | $28,680 |
| 2022 | $19,680 | $9,000 | $0 | $28,680 | $28,680 |
| 2021 | $19,680 | $7,000 | $0 | $26,680 | $26,680 |
| 2020 | $19,680 | $7,000 | $0 | $26,680 | $26,680 |
| 2019 | $19,680 | $5,000 | $0 | $24,680 | $24,680 |
| 2018 | $16,422 | $5,000 | $0 | $21,422 | $21,422 |
| 2017 | $16,422 | $5,000 | $0 | $21,422 | $21,422 |
| 2016 | $16,422 | $5,000 | $0 | $21,422 | $21,422 |
| 2015 | $16,422 | $5,000 | $0 | $21,422 | $21,422 |
| 2014 | $16,422 | $5,000 | $0 | $21,422 | $21,422 |
| 2013 | $16,422 | $5,000 | $0 | $21,422 | $21,422 |
| 2012 | $16,422 | $4,000 | $0 | $20,422 | $20,422 |
| 2011 | $16,422 | $6,600 | $0 | $23,022 | $23,022 |
| 2010 | $16,422 | $6,600 | $0 | $23,022 | $23,022 |
| 2009 | $16,940 | $7,800 | $0 | $24,740 | $24,740 |
| 2008 | $17,301 | $12,600 | $0 | $29,901 | $29,901 |
| 2007 | $18,156 | $12,104 | $0 | $30,260 | $30,260 |
Deed and Sales History
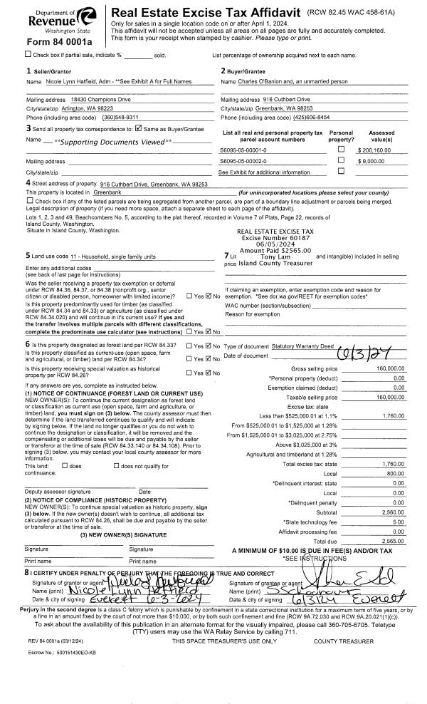
| 1 | 06/03/2024 | WD | Warranty Deed | CUTHBERT, VICKIE LEE | O'BANION, CHARLES | | | $160,000.00 | 60187 | 4573064 |
|   | |
| 2 | 04/20/2021 | PRD | Personal Representatives Deed | CUTHBERT, CHARLES MICHAEL | CUTHBERT, VICKIE LEE | | | $0.00 | 47869 | 4516998 |
| 3 | 11/01/1997 | WD | Warranty Deed | HOOD, KATHRINE M | CUTHBERT, CHARLES M | | | $5,967.00 | 73855 | 18420 |
| 4 | 07/01/1994 | WD | Warranty Deed | TUCKER, MARY P | HOOD, KATHRINE M | | | $2,400.00 | 42985 | 94017201 |
| 5 | 12/01/1992 | OTHER | Other - Misc. Documents | ISLAND, COUNTY | TUCKER, MARY P | | | $0.00 | 65164 | 0 |
| 6 | 12/01/1992 | WD | Warranty Deed | HILL, VELMA P | ISLAND, COUNTY | | | $0.00 | 25119 | 92025208 |
| 7 | 09/01/1992 | QCD | Quit Claim Deed | TUCKER, GILBERT L | HILL, VELMA P | | | $0.00 | 23526 | 92017128 |
| 8 | 07/01/1967 | EXECUTORD | Executor Deed | CUTHBERT, CHARLES MICHAEL | TUCKER, GILBERT L | | | $0.00 | 27316 | 0 |
| 9 | 01/01/1900 | OTHER | Other - Misc. Documents | HEMINGER, BOB L | CUTHBERT, CHARLES MICHAEL | | | $0.00 | 0 | 0 |
| 10 | 01/01/1900 | OTHER | Other - Misc. Documents | Unknown | HEMINGER, BOB L | | | $0.00 | 0 | 0 |
Payout Agreement
| No payout information available.. |