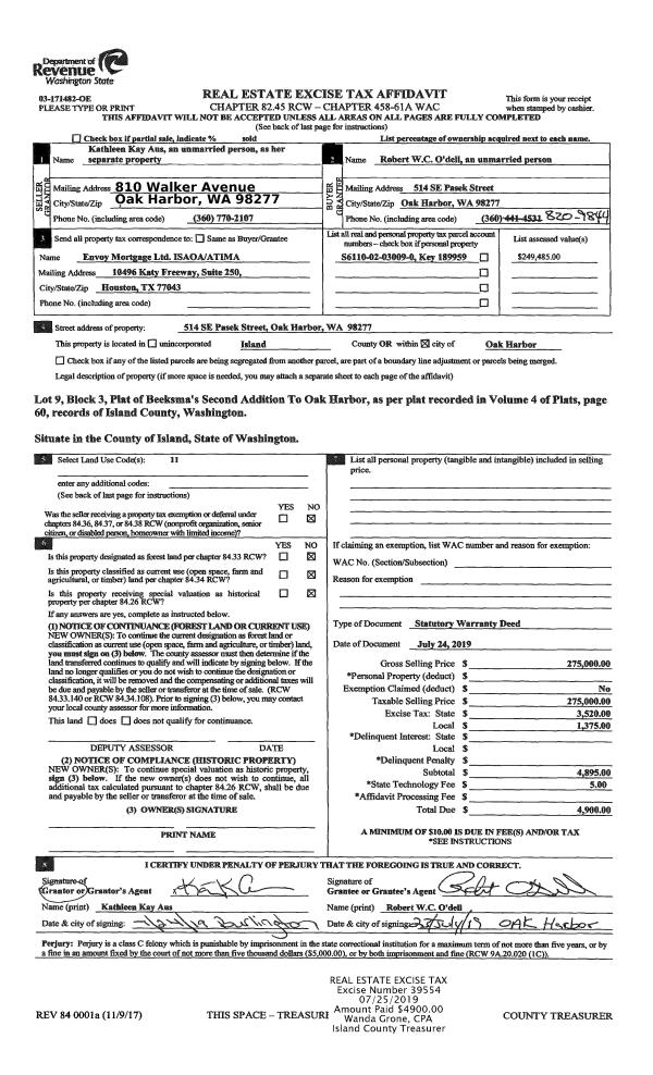
Property
Account |
| Property ID: | 189959 | Abbreviated Legal Description: | BEEKSMA 2ND LOT 9 BLK 3 |
| Geographic ID: | S6110-02-03009-0 | Agent Code: | |
| Type: | Real | | |
| Tax Area: | 100 - APPRAISER-OH Schl Dist, in OH | Land Use Code | 11 |
| Open Space: | N | DFL | N |
| Historic Property: | N | Remodel Property: | N |
| Multi-Family Redevelopment: | N | | |
| Township: | | Section: | |
| Range: | |
Location |
| Address: | 514 SE PASEK ST OAK HARBOR, WA 98277 | Mapsco: | |
| Neighborhood: | Cycle 1 | Map ID: | 89 |
| Neighborhood CD: | 1 |
Owner |
| Name: | O'DELL, ROBERT W C | Owner ID: | 291049 |
| Mailing Address: | 514 SE PASEK ST OAK HARBOR, WA 98277 | % Ownership: | 100.0000000000% |
| | | Exemptions: | |
Taxes and Assessment Details
Values
| (+) Improvement Homesite Value: | + | $0 | |
| (+) Improvement Non-Homesite Value: | + | $189,184 | |
| (+) Land Homesite Value: | + | $0 | |
| (+) Land Non-Homesite Value: | + | $180,000 | |
| (+) Curr Use (HS): | + | $0 | $0 |
| (+) Curr Use (NHS): | + | $0 | $0 |
| | | -------------------------- | |
| (=) Market Value: | = | $369,184 | |
| (–) Productivity Loss: | – | $0 | |
| | | -------------------------- | |
| (=) Subtotal: | = | $369,184 | |
| (+) Senior Appraised Value: | + | $0 | |
| (+) Non-Senior Appraised Value: | + | $369,184 | |
| | | -------------------------- | |
| (=) Total Appraised Value: | = | $369,184 | |
| (–) Senior Exemption Loss: | – | $0 | |
| (–) Exemption Loss: | – | $0 | |
| | | -------------------------- | |
| (=) Taxable Value: | = | $369,184 | |
Taxing Jurisdiction
| Owner: | O'DELL, ROBERT W C | | |
| % Ownership: | 100.0000000000% | | |
| Total Value: | $369,184 | | |
| Tax Area: | 100 - APPRAISER-OH Schl Dist, in OH |
| CF | Conservation Futures | 0.0313996660 | $369,184 | $369,184 | $11.59 | | |
| CEM1 | Cemetery #1 | 0.0040018856 | $369,184 | $369,184 | $1.48 | | |
| COH | City of Oak Harbor | 2.3090730572 | $369,184 | $369,184 | $852.47 | | |
| OAKBOND | City of Oak Harbor BOND | 0.1902260131 | $369,184 | $369,184 | $70.23 | | |
| HOBOND | Hospital BOND | 0.1893405597 | $369,184 | $369,184 | $69.90 | | |
| HOGEN | Hospital GEN | 0.3848777722 | $369,184 | $369,184 | $142.09 | | |
| CE | County Current Expense | 0.3674210519 | $369,184 | $369,184 | $135.65 | | |
| ISLANDEMS | Hospital GEN (EMS) | 0.4952018576 | $369,184 | $369,184 | $182.82 | | |
| LIB | Library Sno-Isle GEN | 0.3039084203 | $369,184 | $369,184 | $112.20 | | |
| NWHIDPRMT | P & R N Whidbey GEN | 0.1990272349 | $369,184 | $369,184 | $73.48 | | |
| SCH201MO | School 201 Enrichment | 2.3851112745 | $369,184 | $369,184 | $880.54 | | |
| ST | State School | 1.4761226122 | $369,184 | $369,184 | $544.96 | | |
| ST2 | State School Part 2 | 0.7953803475 | $369,184 | $369,184 | $293.64 | | |
| | Total Tax Rate: | 9.1310917527 | | | | | |
| | | | | Taxes w/Current Exemptions: | $3,371.05 | | |
| | | | | Taxes w/o Exemptions: | $3,371.05 | | |
Improvement / Building
| Improvement #1: | RESIDENTIAL | State Code: | Y | 1208.0 sqft | Value: | $189,184 |
| Bathrooms: | 1 | Bedrooms: | 3 | | Ceiling: | DRYWALL PAINTED | Exterior Wall/Cover: | VINYL | | Floor Covering: | CARPET/VINYL 60-40 | Floor Structure: | WOOD W/SUBFLOOR | | Foundation: | CONCRETE | Heating: | WALL HEAT ELECTRIC | | Interior Finish: | DRYWALL PAINT | Plumbing Fixture Cnt: | 6 | | Roof Slope: | 5" IN 12" | Roof Structure/Cover: | CJ ASPHALT |
|
| | Type | Description | Class CD | Sub Class CD | Year Built | Area |
| | BAS | BASE/MAIN FLOOR | 3 | 0 | 1956 | 1208.0 |
| | OP4 | OPEN PORCH W/CEILING-ROOF | 3 | 0 | 1956 | 24.0 |
| | OWP | OPEN WOOD PORCH W/STEPS | 3 | 0 | 1956 | 120.0 |
Sketch
Property Image
Land
| 1 | HS | HOMESITE | 0.1900 | 8276.40 | 0.00 | 0.00 | 1.00 | $180,000 | $0 |
Roll Value History
| 2026 | N/A | N/A | N/A | N/A | N/A |
| 2025 | $189,184 | $180,000 | $0 | $369,184 | $369,184 |
| 2024 | $191,632 | $170,000 | $0 | $361,632 | $361,632 |
| 2023 | $192,734 | $170,000 | $0 | $362,734 | $362,734 |
| 2022 | $176,785 | $160,000 | $0 | $336,785 | $336,785 |
| 2021 | $155,686 | $125,000 | $0 | $280,686 | $280,686 |
| 2020 | $151,950 | $100,000 | $0 | $251,950 | $251,950 |
| 2019 | $109,485 | $140,000 | $0 | $249,485 | $249,485 |
| 2018 | $109,822 | $125,000 | $0 | $234,822 | $234,822 |
| 2017 | $110,496 | $110,000 | $0 | $220,496 | $220,496 |
| 2016 | $67,334 | $90,000 | $0 | $157,334 | $157,334 |
| 2015 | $68,494 | $70,000 | $0 | $138,494 | $138,494 |
| 2014 | $69,655 | $55,000 | $0 | $124,655 | $124,655 |
| 2013 | $70,817 | $55,000 | $0 | $125,817 | $125,817 |
| 2012 | $71,977 | $60,000 | $0 | $131,977 | $131,977 |
| 2011 | $53,536 | $85,000 | $0 | $138,536 | $138,536 |
| 2010 | $59,620 | $85,000 | $0 | $144,620 | $144,620 |
| 2009 | $63,093 | $154,468 | $0 | $217,561 | $217,561 |
| 2008 | $63,743 | $163,350 | $0 | $227,093 | $227,093 |
| 2007 | $64,925 | $135,500 | $0 | $200,425 | $200,425 |
Deed and Sales History
| 1 | 07/24/2019 | WD | Warranty Deed | AUS, KATHLEEN KAY | O'DELL, ROBERT W C | | | $275,000.00 | 39554 | 4467980 |
| 2 | 02/27/2017 | WD | Warranty Deed | FRAZIER, KERAN J | AUS, KATHLEEN KAY | | | $225,000.00 | 28244 | 4417925 |
| 3 | 05/08/2009 | WD | Warranty Deed | VONHADEN TTEE, BRAD | FRAZIER, KERAN J | | | $173,900.00 | 91028 | 4251032 |
| 4 | 07/03/2008 | WD | Warranty Deed | WILSON, LARRY | VONHADEN TTEE, BRAD | | | $0.00 | 82203 | 4235441 |
| 5 | 03/04/1999 | WD | Warranty Deed | SEC OF VETERANS AFFAIRS, | WILSON, LARRY | | | $85,000.00 | 90912 | 99006427 |
| 6 | 07/02/1998 | WD | Warranty Deed | NORWEST MORTGAGE INC, | SEC OF VETERANS AFFAIRS, | | | $0.00 | 82631 | 98013555 |
| 7 | 06/30/1998 | TRUSTEED | Trustee's Deed | PETERSEN, PAUL D | NORWEST MORTGAGE INC, | | | $83,880.00 | 82630 | 98013554 |
| 8 | 06/01/1995 | WD | Warranty Deed | NERISON, ERIC S | PETERSEN, PAUL D | | | $88,500.00 | 52043 | 95009516 |
| 9 | 07/01/1993 | WD | Warranty Deed | ZIESEMER, IVER E | NERISON, ERIC S | | | $80,000.00 | 32905 | 93014902 |
| 10 | 07/01/1985 | WD | Warranty Deed | JOHNSON, DALE | ZIESEMER, IVER E | | | $49,500.00 | 51904 | 85007427 |
| 11 | 01/01/1900 | OTHER | Other - Misc. Documents | Unknown | NORWEST, MORTGAGE I | | | $0.00 | 82630 | 98013554 |
| 12 | 01/01/1900 | OTHER | Other - Misc. Documents | NORWEST, MORTGAGE I | DEPT, OF V | | | $0.00 | 82631 | 98013555 |
| 13 | 01/01/1900 | OTHER | Other - Misc. Documents | DEPT, OF V | JOHNSON, DALE | | | $0.00 | 0 | 0 |
Payout Agreement
| No payout information available.. |