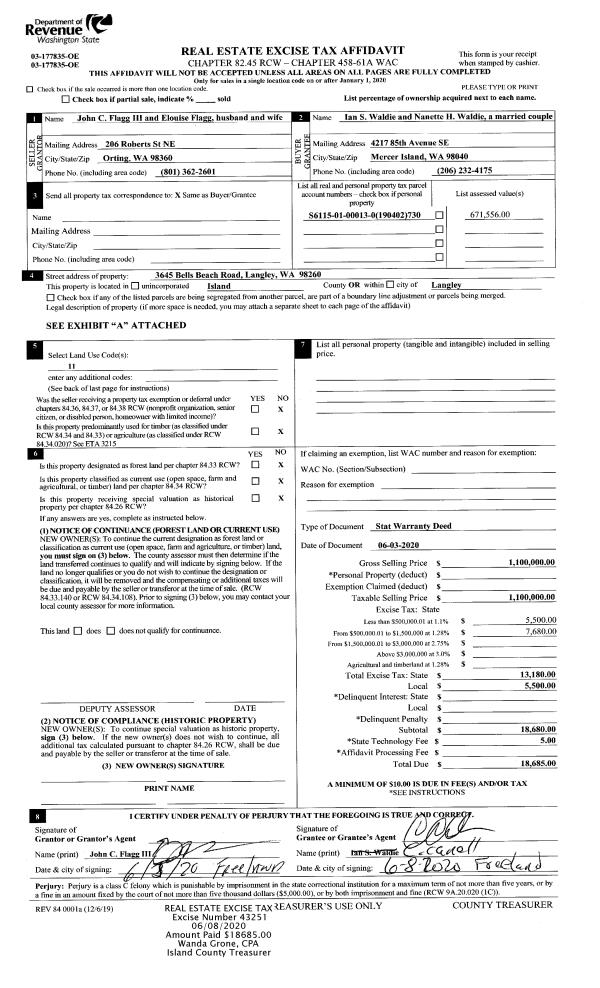
Property
Account |
| Property ID: | 190402 | Abbreviated Legal Description: | BELLS BCH 1ST LOT 13 |
| Geographic ID: | S6115-01-00013-0 | Agent Code: | |
| Type: | Real | | |
| Tax Area: | 730 - APPRAISER-S Whid Schl Dist, Special District, improved & less than 1 acre | Land Use Code | 11 |
| Open Space: | N | DFL | N |
| Historic Property: | N | Remodel Property: | N |
| Multi-Family Redevelopment: | N | | |
| Township: | | Section: | |
| Range: | |
Location |
| Address: | 3645 BELLS BEACH RD LANGLEY, WA 98260 | Mapsco: | |
| Neighborhood: | Cycle 4 | Map ID: | 880 |
| Neighborhood CD: | 4 |
Owner |
| Name: | WALDIE, IAN S | Owner ID: | 294459 |
| Mailing Address: | NANETTE H WALDIE 4217 85TH AVE SE MERCER ISLAND, WA 98040 | % Ownership: | 100.0000000000% |
| | | Exemptions: | |
Taxes and Assessment Details
Values
| (+) Improvement Homesite Value: | + | $0 | |
| (+) Improvement Non-Homesite Value: | + | $410,218 | |
| (+) Land Homesite Value: | + | $0 | |
| (+) Land Non-Homesite Value: | + | $700,000 | |
| (+) Curr Use (HS): | + | $0 | $0 |
| (+) Curr Use (NHS): | + | $0 | $0 |
| | | -------------------------- | |
| (=) Market Value: | = | $1,110,218 | |
| (–) Productivity Loss: | – | $0 | |
| | | -------------------------- | |
| (=) Subtotal: | = | $1,110,218 | |
| (+) Senior Appraised Value: | + | $0 | |
| (+) Non-Senior Appraised Value: | + | $1,110,218 | |
| | | -------------------------- | |
| (=) Total Appraised Value: | = | $1,110,218 | |
| (–) Senior Exemption Loss: | – | $0 | |
| (–) Exemption Loss: | – | $0 | |
| | | -------------------------- | |
| (=) Taxable Value: | = | $1,110,218 | |
Taxing Jurisdiction
| Owner: | WALDIE, IAN S | | |
| % Ownership: | 100.0000000000% | | |
| Total Value: | $1,110,218 | | |
| Tax Area: | 730 - APPRAISER-S Whid Schl Dist, Special District, improved & less than 1 acre |
| CF | Conservation Futures | 0.0313996660 | $1,110,218 | $1,110,218 | $34.86 | | |
| FIRE3 | Fire & Rescue Dist #3 S Whidbey GEN | 1.2130821753 | $1,110,218 | $1,110,218 | $1,346.79 | | |
| HOBOND | Hospital BOND | 0.1893405597 | $1,110,218 | $1,110,218 | $210.21 | | |
| HOGEN | Hospital GEN | 0.3848777722 | $1,110,218 | $1,110,218 | $427.30 | | |
| CE | County Current Expense | 0.3674210519 | $1,110,218 | $1,110,218 | $407.92 | | |
| CR | County Roads | 0.4614296361 | $1,110,218 | $1,110,218 | $512.29 | | |
| ISLANDEMS | Hospital GEN (EMS) | 0.4952018576 | $1,110,218 | $1,110,218 | $549.78 | | |
| LIB | Library Sno-Isle GEN | 0.3039084203 | $1,110,218 | $1,110,218 | $337.40 | | |
| PORTWHID | Port of S Whidbey GEN | 0.1086004714 | $1,110,218 | $1,110,218 | $120.57 | | |
| SCH206BOND | School 206 BOND | 0.5960237832 | $1,110,218 | $1,110,218 | $661.72 | | |
| SCH206CAP | School 206 CP | 0.3066144020 | $1,110,218 | $1,110,218 | $340.41 | | |
| SCH206MO | School 206 Enrichment | 0.4808755445 | $1,110,218 | $1,110,218 | $533.88 | | |
| ST | State School | 1.4761226122 | $1,110,218 | $1,110,218 | $1,638.82 | | |
| ST2 | State School Part 2 | 0.7953803475 | $1,110,218 | $1,110,218 | $883.05 | | |
| SWHIDPRBD | P & R S Whidbey BOND | 0.0144185398 | $1,110,218 | $1,110,218 | $16.01 | | |
| SWHIDPRBD3 | P & R S Whidbey BOND3 | 0.1483535547 | $1,110,218 | $1,110,218 | $164.70 | | |
| SWHIDPRMT | P & R S Whidbey GEN | 0.4600000000 | $1,110,218 | $1,110,218 | $510.70 | | |
| | Total Tax Rate: | 7.8330503944 | | | | | |
| | | | | Taxes w/Current Exemptions: | $8,696.41 | | |
| | | | | Taxes w/o Exemptions: | $8,696.41 | | |
Improvement / Building
| Improvement #1: | RESIDENTIAL | State Code: | Y | 2218.0 sqft | Value: | $410,218 |
| Bathrooms: | 2.5 | Bedrooms: | 2 | | Ceiling: | TONGUE & GROOVE | Cooling: | HEAT PUMP/CONV/V | | Exterior Wall/Cover: | VINYL | Floor Covering: | CARPET/VINYL 80-20 | | Floor Structure: | WOOD W/SUBFLOOR | Foundation: | CONCRETE | | Interior Finish: | DRYWALL PAINT | Plumbing Fixture Cnt: | 11 | | Roof Slope: | 4" IN 12" | Roof Structure/Cover: | CJ ASPHALT |
|
| | Type | Description | Class CD | Sub Class CD | Year Built | Area |
| | BAS | BASE/MAIN FLOOR | 4 | 0 | 1954 | 1323.0 |
| | UPS | UPPER STORY | 4 | 0 | 1954 | 895.0 |
| | OWP | OPEN WOOD PORCH W/STEPS | 4 | 0 | 1954 | 1116.0 |
| | OP1 | OPEN PORCH SLAB | 4 | 0 | 1954 | 20.0 |
| | DGR | DETACHED GARAGE | 4 | 0 | 1954 | 704.0 |
Sketch
Property Image
Land
| 1 | LB | LOW BANK | 0.0000 | 0.00 | 60.00 | 0.00 | 1.00 | $700,000 | $0 |
Roll Value History
| 2026 | N/A | N/A | N/A | N/A | N/A |
| 2025 | $410,218 | $700,000 | $0 | $1,110,218 | $1,110,218 |
| 2024 | $415,670 | $700,000 | $0 | $1,115,670 | $1,115,670 |
| 2023 | $421,120 | $700,000 | $0 | $1,121,120 | $1,121,120 |
| 2022 | $386,271 | $750,000 | $0 | $1,136,271 | $1,136,271 |
| 2021 | $340,167 | $600,000 | $0 | $940,167 | $940,167 |
| 2020 | $254,343 | $475,000 | $0 | $729,343 | $729,343 |
| 2019 | $196,556 | $475,000 | $0 | $671,556 | $671,556 |
| 2018 | $197,265 | $475,000 | $0 | $672,265 | $672,265 |
| 2017 | $198,684 | $475,000 | $0 | $673,684 | $673,684 |
| 2016 | $201,523 | $475,000 | $0 | $676,523 | $676,523 |
| 2015 | $204,362 | $450,000 | $0 | $654,362 | $654,362 |
| 2014 | $193,612 | $450,000 | $0 | $643,612 | $643,612 |
| 2013 | $196,160 | $407,880 | $0 | $604,040 | $604,040 |
| 2012 | $198,708 | $407,880 | $0 | $606,588 | $606,588 |
| 2011 | $201,255 | $407,880 | $0 | $609,135 | $609,135 |
| 2010 | $211,911 | $407,880 | $0 | $619,791 | $619,791 |
| 2009 | $220,902 | $480,186 | $0 | $701,088 | $701,088 |
| 2008 | $218,978 | $450,522 | $0 | $669,500 | $669,500 |
| 2007 | $222,033 | $509,850 | $0 | $731,883 | $731,883 |
Deed and Sales History
| 1 | 06/03/2020 | WD | Warranty Deed | FLAGG III, JOHN C | WALDIE, IAN S | | | $1,100,000.00 | 43251 | 4488278 |
| 2 | 07/24/2008 | WD | Warranty Deed | PLATT, KATHLEEN A | FLAGG III, JOHN C | | | $735,000.00 | 82050 | 4234428 |
| 3 | 02/12/2007 | WD | Warranty Deed | PLATT, DANIEL G | PLATT, KATHLEEN A | | | $0.00 | 70500 | 4194213 |
| 4 | 08/13/1999 | QCD | Quit Claim Deed | PLATT, DANIEL G | PLATT, DANIEL G | | | $0.00 | 93411 | 99019613 |
| 5 | 10/01/1984 | WD | Warranty Deed | JOHNSON, K M | PLATT, DANIEL G | | | $175,000.00 | 43233 | 84005247 |
| 6 | 02/01/1979 | OTHER | Other - Misc. Documents | Unknown | JOHNSON, K M | | | $0.00 | 90778 | 347866 |
Payout Agreement
| No payout information available.. |