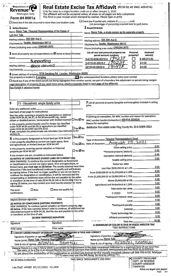
Property
Account |
| Property ID: | 190475 | Abbreviated Legal Description: | BELLS BCH HTS LOT 2 |
| Geographic ID: | S6120-00-00002-0 | Agent Code: | |
| Type: | Real | | |
| Tax Area: | 730 - APPRAISER-S Whid Schl Dist, Special District, improved & less than 1 acre | Land Use Code | 11 |
| Open Space: | N | DFL | N |
| Historic Property: | N | Remodel Property: | N |
| Multi-Family Redevelopment: | N | | |
| Township: | | Section: | |
| Range: | |
Location |
| Address: | 3729 SARATOGA RD LANGLEY, WA 98260 | Mapsco: | |
| Neighborhood: | Cycle 4 | Map ID: | 880 |
| Neighborhood CD: | 4 |
Owner |
| Name: | TATE, BYRON | Owner ID: | 301087 |
| Mailing Address: | 328 29TH AVE E SEATTLE, WA 98112 | % Ownership: | 100.0000000000% |
| | | Exemptions: | |
Taxes and Assessment Details
Values
| (+) Improvement Homesite Value: | + | $0 | |
| (+) Improvement Non-Homesite Value: | + | $313,340 | |
| (+) Land Homesite Value: | + | $0 | |
| (+) Land Non-Homesite Value: | + | $230,000 | |
| (+) Curr Use (HS): | + | $0 | $0 |
| (+) Curr Use (NHS): | + | $0 | $0 |
| | | -------------------------- | |
| (=) Market Value: | = | $543,340 | |
| (–) Productivity Loss: | – | $0 | |
| | | -------------------------- | |
| (=) Subtotal: | = | $543,340 | |
| (+) Senior Appraised Value: | + | $0 | |
| (+) Non-Senior Appraised Value: | + | $543,340 | |
| | | -------------------------- | |
| (=) Total Appraised Value: | = | $543,340 | |
| (–) Senior Exemption Loss: | – | $0 | |
| (–) Exemption Loss: | – | $0 | |
| | | -------------------------- | |
| (=) Taxable Value: | = | $543,340 | |
Taxing Jurisdiction
| Owner: | TATE, BYRON | | |
| % Ownership: | 100.0000000000% | | |
| Total Value: | $543,340 | | |
| Tax Area: | 730 - APPRAISER-S Whid Schl Dist, Special District, improved & less than 1 acre |
| CF | Conservation Futures | 0.0313996660 | $543,340 | $543,340 | $17.06 | | |
| FIRE3 | Fire & Rescue Dist #3 S Whidbey GEN | 1.2130821753 | $543,340 | $543,340 | $659.12 | | |
| HOBOND | Hospital BOND | 0.1893405597 | $543,340 | $543,340 | $102.88 | | |
| HOGEN | Hospital GEN | 0.3848777722 | $543,340 | $543,340 | $209.12 | | |
| CE | County Current Expense | 0.3674210519 | $543,340 | $543,340 | $199.63 | | |
| CR | County Roads | 0.4614296361 | $543,340 | $543,340 | $250.71 | | |
| ISLANDEMS | Hospital GEN (EMS) | 0.4952018576 | $543,340 | $543,340 | $269.06 | | |
| LIB | Library Sno-Isle GEN | 0.3039084203 | $543,340 | $543,340 | $165.13 | | |
| PORTWHID | Port of S Whidbey GEN | 0.1086004714 | $543,340 | $543,340 | $59.01 | | |
| SCH206BOND | School 206 BOND | 0.5960237832 | $543,340 | $543,340 | $323.84 | | |
| SCH206CAP | School 206 CP | 0.3066144020 | $543,340 | $543,340 | $166.60 | | |
| SCH206MO | School 206 Enrichment | 0.4808755445 | $543,340 | $543,340 | $261.28 | | |
| ST | State School | 1.4761226122 | $543,340 | $543,340 | $802.04 | | |
| ST2 | State School Part 2 | 0.7953803475 | $543,340 | $543,340 | $432.16 | | |
| SWHIDPRBD | P & R S Whidbey BOND | 0.0144185398 | $543,340 | $543,340 | $7.83 | | |
| SWHIDPRBD3 | P & R S Whidbey BOND3 | 0.1483535547 | $543,340 | $543,340 | $80.61 | | |
| SWHIDPRMT | P & R S Whidbey GEN | 0.4600000000 | $543,340 | $543,340 | $249.94 | | |
| | Total Tax Rate: | 7.8330503944 | | | | | |
| | | | | Taxes w/Current Exemptions: | $4,256.02 | | |
| | | | | Taxes w/o Exemptions: | $4,256.02 | | |
Improvement / Building
| Improvement #1: | RESIDENTIAL | State Code: | Y | 1168.1 sqft | Value: | $313,340 |
| Bathrooms: | 1.5 | Bedrooms: | 0 | | Ceiling: | DRYWALL PAINTED | Exterior Wall/Cover: | CEMENT FIBER | | Floor Covering: | VINYL TILE | Floor Structure: | WOOD W/SUBFLOOR | | Foundation: | CONCRETE | Heating: | CEILING ELECTRIC | | Interior Finish: | DRYWALL PAINT | Plumbing Fixture Cnt: | 8 | | Roof Slope: | 8" IN 12" | Roof Structure/Cover: | STEEL TERNE |
|
| | Type | Description | Class CD | Sub Class CD | Year Built | Area |
| | BAS | BASE/MAIN FLOOR | 4 | 0 | 2005 | 680.0 |
| | OP1 | OPEN PORCH SLAB | 4 | 0 | 2005 | 112.0 |
| | OWP | OPEN WOOD PORCH W/STEPS | 4 | 0 | 2005 | 272.0 |
| | OP4 | OPEN PORCH W/CEILING-ROOF | 4 | 0 | 2005 | 128.0 |
| | OP4 | OPEN PORCH W/CEILING-ROOF | 4 | 0 | 2005 | 18.7 |
| | AGR | ATTACHED GARAGE | 4 | 0 | 2005 | 48.0 |
| | BIG | BUILT IN GARAGE | 4 | 0 | 2005 | 547.9 |
| | OWP | OPEN WOOD PORCH W/STEPS | 4 | 0 | 2005 | 238.0 |
| | DWN | DOWNSTAIRS LIVING AREA | 4 | 0 | 2005 | 488.1 |
Sketch
Property Image
Land
| 1 | 14 | SQ (08001-12000) | 0.0000 | 0.00 | 0.00 | 0.00 | 1.00 | $230,000 | $0 |
Roll Value History
| 2026 | N/A | N/A | N/A | N/A | N/A |
| 2025 | $313,340 | $230,000 | $0 | $543,340 | $543,340 |
| 2024 | $317,105 | $230,000 | $0 | $547,105 | $547,105 |
| 2023 | $320,868 | $230,000 | $0 | $550,868 | $550,868 |
| 2022 | $293,956 | $210,000 | $0 | $503,956 | $503,956 |
| 2021 | $258,581 | $200,000 | $0 | $458,581 | $458,581 |
| 2020 | $245,913 | $200,000 | $0 | $445,913 | $445,913 |
| 2019 | $176,918 | $200,000 | $0 | $376,918 | $376,918 |
| 2018 | $177,426 | $140,000 | $0 | $317,426 | $317,426 |
| 2017 | $178,392 | $125,000 | $0 | $303,392 | $303,392 |
| 2016 | $180,419 | $125,000 | $0 | $305,419 | $305,419 |
| 2015 | $182,446 | $100,000 | $0 | $282,446 | $282,446 |
| 2014 | $183,744 | $100,000 | $0 | $283,744 | $283,744 |
| 2013 | $185,787 | $100,000 | $0 | $285,787 | $285,787 |
| 2012 | $187,828 | $119,000 | $0 | $306,828 | $306,828 |
| 2011 | $189,869 | $140,000 | $0 | $329,869 | $329,869 |
| 2010 | $196,536 | $140,000 | $0 | $336,536 | $336,536 |
| 2009 | $202,602 | $170,000 | $0 | $372,602 | $372,602 |
Deed and Sales History
| 1 | 08/25/2021 | PRD | Personal Representatives Deed | TATE, BYRON P | TATE, BYRON | | | $0.00 | 49985 | 4528829 |
| 2 | 11/14/2008 | WD | Warranty Deed | SHANNON TRUSTEES, JAN R | TATE, BYRON P | | | $365,780.00 | 82944 | 4239977 |
| 3 | 04/15/2005 | 5 | DNU - Marriage License/Name Change | SHANNON, JAN R | SHANNON TRUSTEES, JAN R | | | $0.00 | 52106 | 4134169 |
| 4 | 09/14/2004 | WD | Warranty Deed | HOUSTON, PETER J | SHANNON, JAN R | | | $41,559.00 | 44342 | 4112929 |
| 5 | 06/28/2001 | WD | Warranty Deed | DOAN, SANFORD | HOUSTON, PETER J | | | $59,412.00 | 12474 | 20036209 |
| 6 | 01/01/1900 | OTHER | Other - Misc. Documents | Unknown | DOAN, SANFORD | | | $0.00 | 0 | 0 |
Payout Agreement
| No payout information available.. |