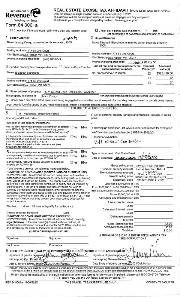
Property
Account |
| Property ID: | 190929 | Abbreviated Legal Description: | BERGQUAM LOTS 4 & 5 |
| Geographic ID: | S6130-00-00004-0 | Agent Code: | |
| Type: | Real | | |
| Tax Area: | 100 - APPRAISER-OH Schl Dist, in OH | Land Use Code | 11 |
| Open Space: | N | DFL | N |
| Historic Property: | N | Remodel Property: | N |
| Multi-Family Redevelopment: | N | | |
| Township: | | Section: | |
| Range: | |
Location |
| Address: | 1774 SE 2ND CT OAK HARBOR, WA 98277 | Mapsco: | |
| Neighborhood: | Cycle 1 | Map ID: | 260 |
| Neighborhood CD: | 1 |
Owner |
| Name: | MCINTYRE, ANGEL A | Owner ID: | 297828 |
| Mailing Address: | 1774 SE 2ND CT OAK HARBOR, WA 98277 | % Ownership: | 100.0000000000% |
| | | Exemptions: | |
Taxes and Assessment Details
Values
| (+) Improvement Homesite Value: | + | $0 | |
| (+) Improvement Non-Homesite Value: | + | $279,227 | |
| (+) Land Homesite Value: | + | $0 | |
| (+) Land Non-Homesite Value: | + | $180,000 | |
| (+) Curr Use (HS): | + | $0 | $0 |
| (+) Curr Use (NHS): | + | $0 | $0 |
| | | -------------------------- | |
| (=) Market Value: | = | $459,227 | |
| (–) Productivity Loss: | – | $0 | |
| | | -------------------------- | |
| (=) Subtotal: | = | $459,227 | |
| (+) Senior Appraised Value: | + | $0 | |
| (+) Non-Senior Appraised Value: | + | $459,227 | |
| | | -------------------------- | |
| (=) Total Appraised Value: | = | $459,227 | |
| (–) Senior Exemption Loss: | – | $0 | |
| (–) Exemption Loss: | – | $0 | |
| | | -------------------------- | |
| (=) Taxable Value: | = | $459,227 | |
Taxing Jurisdiction
| Owner: | MCINTYRE, ANGEL A | | |
| % Ownership: | 100.0000000000% | | |
| Total Value: | $459,227 | | |
| Tax Area: | 100 - APPRAISER-OH Schl Dist, in OH |
| CF | Conservation Futures | 0.0313996660 | $459,227 | $459,227 | $14.42 | | |
| CEM1 | Cemetery #1 | 0.0040018856 | $459,227 | $459,227 | $1.84 | | |
| COH | City of Oak Harbor | 2.3090730572 | $459,227 | $459,227 | $1,060.39 | | |
| OAKBOND | City of Oak Harbor BOND | 0.1902260131 | $459,227 | $459,227 | $87.36 | | |
| HOBOND | Hospital BOND | 0.1893405597 | $459,227 | $459,227 | $86.95 | | |
| HOGEN | Hospital GEN | 0.3848777722 | $459,227 | $459,227 | $176.75 | | |
| CE | County Current Expense | 0.3674210519 | $459,227 | $459,227 | $168.73 | | |
| ISLANDEMS | Hospital GEN (EMS) | 0.4952018576 | $459,227 | $459,227 | $227.41 | | |
| LIB | Library Sno-Isle GEN | 0.3039084203 | $459,227 | $459,227 | $139.56 | | |
| NWHIDPRMT | P & R N Whidbey GEN | 0.1990272349 | $459,227 | $459,227 | $91.40 | | |
| SCH201MO | School 201 Enrichment | 2.3851112745 | $459,227 | $459,227 | $1,095.31 | | |
| ST | State School | 1.4761226122 | $459,227 | $459,227 | $677.88 | | |
| ST2 | State School Part 2 | 0.7953803475 | $459,227 | $459,227 | $365.26 | | |
| | Total Tax Rate: | 9.1310917527 | | | | | |
| | | | | Taxes w/Current Exemptions: | $4,193.26 | | |
| | | | | Taxes w/o Exemptions: | $4,193.26 | | |
Improvement / Building
| Improvement #1: | RESIDENTIAL | State Code: | Y | 1728.0 sqft | Value: | $279,227 |
| Bathrooms: | 2 | Bedrooms: | 4 | | Ceiling: | DRYWALL PAINTED | Exterior Wall/Cover: | WOOD SIDING | | Floor Covering: | VINYL 100% | Floor Structure: | WOOD W/SUBFLOOR | | Foundation: | CONCRETE BLOCKS | Heating: | BASEBOARD ELECTRIC | | Interior Finish: | DRYWALL PAINT | Plumbing Fixture Cnt: | 9 | | Roof Slope: | 5" IN 12" | Roof Structure/Cover: | CJ ASPHALT |
|
| | Type | Description | Class CD | Sub Class CD | Year Built | Area |
| | BAS | BASE/MAIN FLOOR | 3 | 0 | 1959 | 1728.0 |
| | OWP | OPEN WOOD PORCH W/STEPS | 3 | 0 | 1959 | 32.0 |
| | OP4 | OPEN PORCH W/CEILING-ROOF | 3 | 0 | 1959 | 18.0 |
| | DGR | DETACHED GARAGE | 3 | 0 | 1959 | 768.0 |
Sketch
Property Image
Land
| 1 | HS | HOMESITE | 0.3200 | 13939.20 | 0.00 | 0.00 | 1.00 | $180,000 | $0 |
Roll Value History
| 2026 | N/A | N/A | N/A | N/A | N/A |
| 2025 | $279,227 | $180,000 | $0 | $459,227 | $459,227 |
| 2024 | $287,715 | $180,000 | $0 | $467,715 | $467,715 |
| 2023 | $290,776 | $180,000 | $0 | $470,776 | $470,776 |
| 2022 | $266,617 | $180,000 | $0 | $446,617 | $446,617 |
| 2021 | $234,732 | $100,000 | $0 | $334,732 | $334,732 |
| 2020 | $223,438 | $100,000 | $0 | $323,438 | $323,438 |
| 2019 | $165,285 | $140,000 | $0 | $305,285 | $305,285 |
| 2018 | $165,794 | $125,000 | $0 | $290,794 | $290,794 |
| 2017 | $164,621 | $110,000 | $0 | $274,621 | $274,621 |
| 2016 | $166,629 | $90,000 | $0 | $256,629 | $256,629 |
| 2015 | $113,289 | $70,000 | $0 | $183,289 | $183,289 |
| 2014 | $115,209 | $55,000 | $0 | $170,209 | $170,209 |
| 2013 | $117,448 | $55,000 | $0 | $172,448 | $172,448 |
| 2012 | $119,369 | $60,000 | $0 | $179,369 | $179,369 |
| 2011 | $103,211 | $113,000 | $0 | $216,211 | $216,211 |
| 2010 | $116,389 | $113,000 | $0 | $229,389 | $229,389 |
| 2009 | $121,349 | $132,000 | $0 | $253,349 | $253,349 |
| 2008 | $123,412 | $138,605 | $0 | $262,017 | $262,017 |
| 2007 | $125,504 | $114,550 | $0 | $240,054 | $240,054 |
Deed and Sales History
| 1 | 01/22/2021 | QCD | Quit Claim Deed | MCINTYRE, ANGEL A | MCINTYRE, ANGEL A | | | $0.00 | 46665 | 4508830 |
| 2 | 01/21/2021 | WD | Warranty Deed | BLANCHETTE, ELIZABETH | MCINTYRE, ANGEL A | | | $395,000.00 | 46664 | 4508829 |
| 3 | 11/19/2020 | QCD | Quit Claim Deed | CAREY, JEREMY | BLANCHETTE, ELIZABETH | | | $0.00 | 46663 | 4508828 |
| 4 | 10/23/2015 | WD | Warranty Deed | OLSON, JODY ALAN | CAREY, JEREMY | | | $249,000.00 | 22052 | 4388980 |
| 5 | 10/25/2004 | WD | Warranty Deed | MCKEEHAN, FRANK E | OLSON, JODY ALAN | | | $180,000.00 | 45311 | 4117789 |
| 6 | 01/01/1990 | WD | Warranty Deed | JUNO, RACHEL A | MCKEEHAN, FRANK E | | | $88,000.00 | 731 | 90002370 |
| 7 | 08/01/1982 | QCD | Quit Claim Deed | JUNO, GEORGE V | JUNO, RACHEL A | | | $0.00 | 59611 | 0 |
| 8 | 01/01/1900 | OTHER | Other - Misc. Documents | Unknown | JUNO, GEORGE V | | | $0.00 | 0 | 0 |
Payout Agreement
| No payout information available.. |