Property
Account |
| Property ID: | 191018 | Abbreviated Legal Description: | BEVERLY BCH 1 LOTS 7, 8 & 9 INCL INT IN RESERVE |
| Geographic ID: | S6135-00-00007-0 | Agent Code: | |
| Type: | Real | | |
| Tax Area: | 719 - APPRAISER-S Whid Schl Dist, outside Langley, vacant & 50 acres or less | Land Use Code | 99 |
| Open Space: | N | DFL | N |
| Historic Property: | N | Remodel Property: | N |
| Multi-Family Redevelopment: | N | | |
| Township: | | Section: | |
| Range: | |
Location |
| Address: | 4025 ALDER AVE FREELAND, WA 98249 | Mapsco: | |
| Neighborhood: | Cycle 3 | Map ID: | 417 |
| Neighborhood CD: | 3 |
Owner |
| Name: | DOUGLAS, ERIKA | Owner ID: | 306109 |
| Mailing Address: | TODD C YOUNG 6204 PACIFIC HEIGHTS DR FERNDALE, WA 98248 | % Ownership: | 100.0000000000% |
| | | Exemptions: | |
Taxes and Assessment Details
Values
| (+) Improvement Homesite Value: | + | $0 | |
| (+) Improvement Non-Homesite Value: | + | $0 | |
| (+) Land Homesite Value: | + | $0 | |
| (+) Land Non-Homesite Value: | + | $120,000 | |
| (+) Curr Use (HS): | + | $0 | $0 |
| (+) Curr Use (NHS): | + | $0 | $0 |
| | | -------------------------- | |
| (=) Market Value: | = | $120,000 | |
| (–) Productivity Loss: | – | $0 | |
| | | -------------------------- | |
| (=) Subtotal: | = | $120,000 | |
| (+) Senior Appraised Value: | + | $0 | |
| (+) Non-Senior Appraised Value: | + | $120,000 | |
| | | -------------------------- | |
| (=) Total Appraised Value: | = | $120,000 | |
| (–) Senior Exemption Loss: | – | $0 | |
| (–) Exemption Loss: | – | $0 | |
| | | -------------------------- | |
| (=) Taxable Value: | = | $120,000 | |
Taxing Jurisdiction
| Owner: | DOUGLAS, ERIKA | | |
| % Ownership: | 100.0000000000% | | |
| Total Value: | $120,000 | | |
| Tax Area: | 719 - APPRAISER-S Whid Schl Dist, outside Langley, vacant & 50 acres or less |
| CF | Conservation Futures | 0.0313996660 | $120,000 | $120,000 | $3.77 | | |
| HOBOND | Hospital BOND | 0.1893405597 | $120,000 | $120,000 | $22.72 | | |
| HOGEN | Hospital GEN | 0.3848777722 | $120,000 | $120,000 | $46.19 | | |
| CE | County Current Expense | 0.3674210519 | $120,000 | $120,000 | $44.09 | | |
| CR | County Roads | 0.4614296361 | $120,000 | $120,000 | $55.37 | | |
| ISLANDEMS | Hospital GEN (EMS) | 0.4952018576 | $120,000 | $120,000 | $59.42 | | |
| LIB | Library Sno-Isle GEN | 0.3039084203 | $120,000 | $120,000 | $36.47 | | |
| PORTWHID | Port of S Whidbey GEN | 0.1086004714 | $120,000 | $120,000 | $13.03 | | |
| SCH206BOND | School 206 BOND | 0.5960237832 | $120,000 | $120,000 | $71.52 | | |
| SCH206CAP | School 206 CP | 0.3066144020 | $120,000 | $120,000 | $36.79 | | |
| SCH206MO | School 206 Enrichment | 0.4808755445 | $120,000 | $120,000 | $57.71 | | |
| ST | State School | 1.4761226122 | $120,000 | $120,000 | $177.13 | | |
| ST2 | State School Part 2 | 0.7953803475 | $120,000 | $120,000 | $95.45 | | |
| SWHIDPRBD | P & R S Whidbey BOND | 0.0144185398 | $120,000 | $120,000 | $1.73 | | |
| SWHIDPRBD3 | P & R S Whidbey BOND3 | 0.1483535547 | $120,000 | $120,000 | $17.80 | | |
| SWHIDPRMT | P & R S Whidbey GEN | 0.4600000000 | $120,000 | $120,000 | $55.20 | | |
| | Total Tax Rate: | 6.6199682191 | | | | | |
| | | | | Taxes w/Current Exemptions: | $794.39 | | |
| | | | | Taxes w/o Exemptions: | $794.39 | | |
Improvement / Building
Sketch
| No sketches available for this property. |
Property Image
Land
| 1 | 15 | SQ (12001-21780) | 0.5000 | 21780.00 | 0.00 | 0.00 | 1.00 | $120,000 | $0 |
Roll Value History
| 2026 | N/A | N/A | N/A | N/A | N/A |
| 2025 | $0 | $120,000 | $0 | $120,000 | $120,000 |
| 2024 | $0 | $120,000 | $0 | $120,000 | $120,000 |
| 2023 | $0 | $120,000 | $0 | $120,000 | $120,000 |
| 2022 | $0 | $70,000 | $0 | $70,000 | $70,000 |
| 2021 | $0 | $70,000 | $0 | $70,000 | $70,000 |
| 2020 | $0 | $60,000 | $0 | $60,000 | $60,000 |
| 2019 | $0 | $210,000 | $0 | $210,000 | $210,000 |
| 2018 | $0 | $180,000 | $0 | $180,000 | $180,000 |
| 2017 | $0 | $180,000 | $0 | $180,000 | $180,000 |
| 2016 | $0 | $105,000 | $0 | $105,000 | $105,000 |
| 2015 | $0 | $135,000 | $0 | $135,000 | $135,000 |
| 2014 | $0 | $80,000 | $0 | $80,000 | $80,000 |
| 2013 | $0 | $80,000 | $0 | $80,000 | $80,000 |
| 2012 | $0 | $71,130 | $0 | $71,130 | $71,130 |
| 2011 | $0 | $71,130 | $0 | $71,130 | $71,130 |
| 2010 | $0 | $79,032 | $0 | $79,032 | $79,032 |
| 2009 | $0 | $150,000 | $0 | $150,000 | $150,000 |
| 2008 | $0 | $195,000 | $0 | $195,000 | $195,000 |
| 2007 | $0 | $87,000 | $0 | $87,000 | $87,000 |
Deed and Sales History
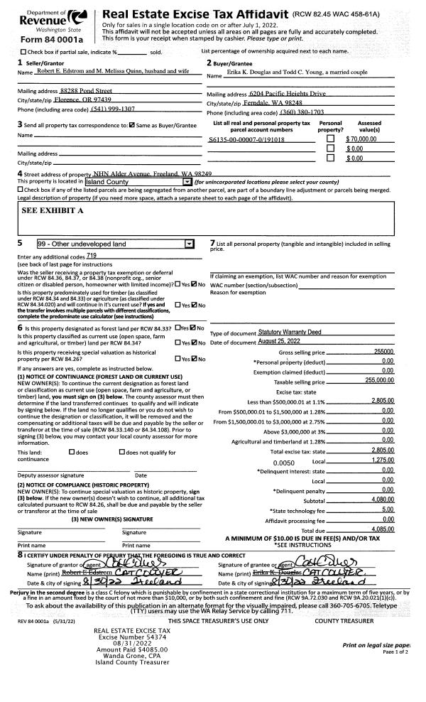
| 1 | 08/25/2022 | WD | Warranty Deed | EDSTROM, ROBERT E | DOUGLAS, ERIKA | | | $255,000.00 | 54374 | 4550519 |
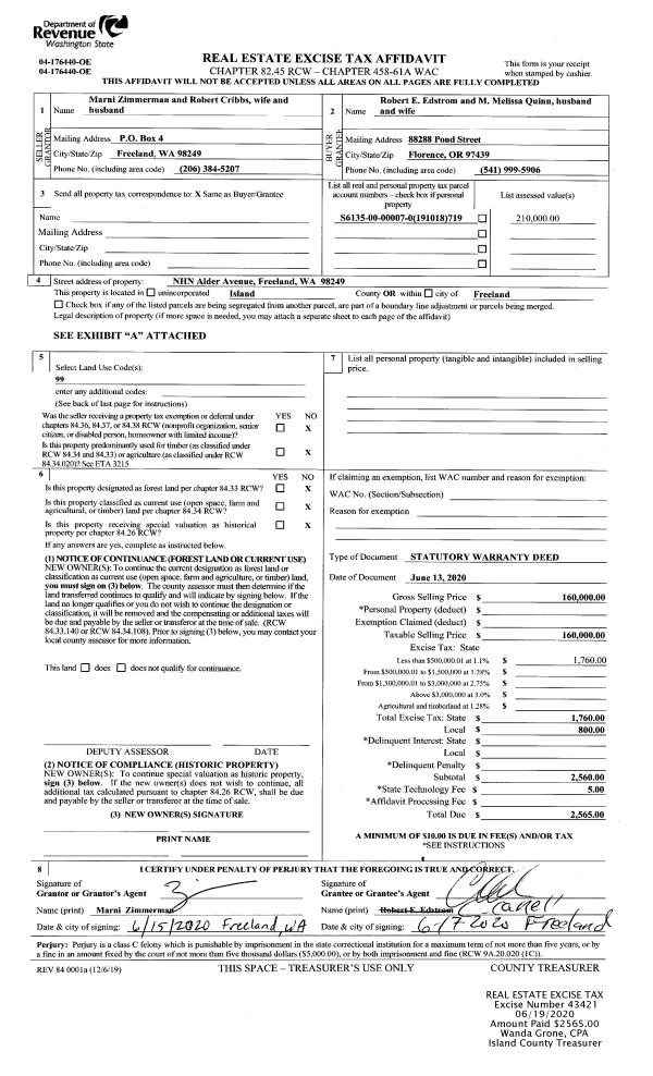
| 2 | 06/13/2020 | WD | Warranty Deed | ZIMMERMAN, MARNI | EDSTROM, ROBERT E | | | $160,000.00 | 43421 | 4489214 |
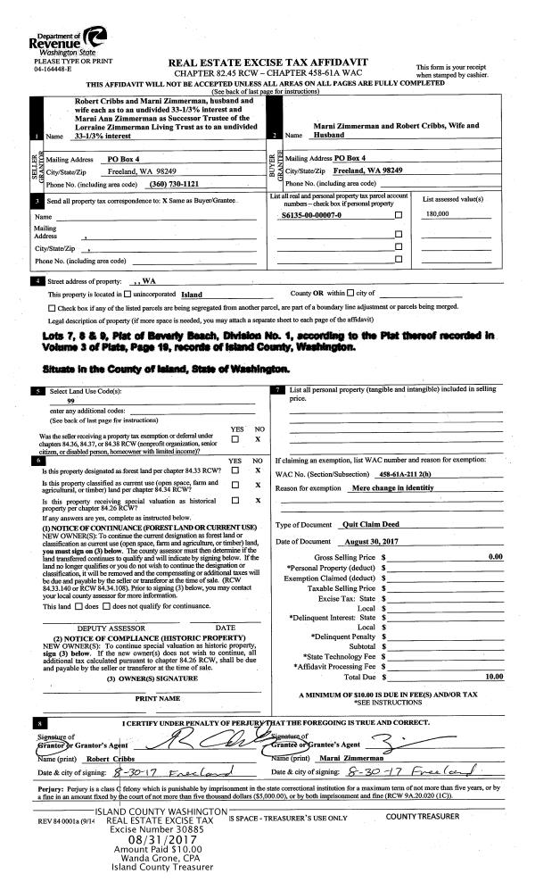
| 3 | 08/30/2017 | WD | Warranty Deed | ZIMMERMAN JTWROS, ROBERT CRIBBS & MARNI | ZIMMERMAN, MARNI | | | $0.00 | 30885 | 4429270 |
| 4 | 09/27/2005 | WD | Warranty Deed | ZIMMERMAN JTWROS, ROBERT CRIBB | ZIMMERMAN JTWROS, ROBERT CRIBB | | | $0.00 | 55811 | 4154549 |
| 5 | 09/27/2005 | WD | Warranty Deed | WIGHT, DEAN & | ZIMMERMAN JTWROS, ROBERT CRIBB | | | $109,000.00 | 55163 | 4150510 |
| 6 | 10/01/1992 | WD | Warranty Deed | BUSCH, H F | WIGHT, DEAN & | | | $21,330.00 | 24308 | 92020960 |
| 7 | 06/01/1960 | CD | DNU - Correction Deed | NIENABER, R A | BUSCH, H F | | | $0.00 | 7740 | 0 |
| 8 | 01/01/1900 | OTHER | Other - Misc. Documents | Unknown | NIENABER, R A | | | $0.00 | 0 | 0 |
Payout Agreement
| No payout information available.. |