Property
Account |
| Property ID: | 192874 | Abbreviated Legal Description: | BEVERLY BCH 2 LOT 87 INCL INT IN RESERVE |
| Geographic ID: | S6135-02-00087-0 | Agent Code: | |
| Type: | Real | | |
| Tax Area: | 719 - APPRAISER-S Whid Schl Dist, outside Langley, vacant & 50 acres or less | Land Use Code | 99 |
| Open Space: | N | DFL | N |
| Historic Property: | N | Remodel Property: | N |
| Multi-Family Redevelopment: | N | | |
| Township: | | Section: | |
| Range: | |
Location |
| Address: | MAPLE AVE FREELAND, WA 98249 | Mapsco: | |
| Neighborhood: | Cycle 3 | Map ID: | 416 |
| Neighborhood CD: | 3 |
Owner |
| Name: | SMITH, ADRIAN | Owner ID: | 311045 |
| Mailing Address: | DEBORAH WALDAL 3621 122ND AVE NORTHEAST BELLEVUE, WA 98005 | % Ownership: | 100.0000000000% |
| | | Exemptions: | |
Taxes and Assessment Details
Values
| (+) Improvement Homesite Value: | + | $0 | |
| (+) Improvement Non-Homesite Value: | + | $0 | |
| (+) Land Homesite Value: | + | $0 | |
| (+) Land Non-Homesite Value: | + | $120,000 | |
| (+) Curr Use (HS): | + | $0 | $0 |
| (+) Curr Use (NHS): | + | $0 | $0 |
| | | -------------------------- | |
| (=) Market Value: | = | $120,000 | |
| (–) Productivity Loss: | – | $0 | |
| | | -------------------------- | |
| (=) Subtotal: | = | $120,000 | |
| (+) Senior Appraised Value: | + | $0 | |
| (+) Non-Senior Appraised Value: | + | $120,000 | |
| | | -------------------------- | |
| (=) Total Appraised Value: | = | $120,000 | |
| (–) Senior Exemption Loss: | – | $0 | |
| (–) Exemption Loss: | – | $0 | |
| | | -------------------------- | |
| (=) Taxable Value: | = | $120,000 | |
Taxing Jurisdiction
| Owner: | SMITH, ADRIAN | | |
| % Ownership: | 100.0000000000% | | |
| Total Value: | $120,000 | | |
| Tax Area: | 719 - APPRAISER-S Whid Schl Dist, outside Langley, vacant & 50 acres or less |
| CF | Conservation Futures | 0.0313996660 | $120,000 | $120,000 | $3.77 | | |
| HOBOND | Hospital BOND | 0.1893405597 | $120,000 | $120,000 | $22.72 | | |
| HOGEN | Hospital GEN | 0.3848777722 | $120,000 | $120,000 | $46.19 | | |
| CE | County Current Expense | 0.3674210519 | $120,000 | $120,000 | $44.09 | | |
| CR | County Roads | 0.4614296361 | $120,000 | $120,000 | $55.37 | | |
| ISLANDEMS | Hospital GEN (EMS) | 0.4952018576 | $120,000 | $120,000 | $59.42 | | |
| LIB | Library Sno-Isle GEN | 0.3039084203 | $120,000 | $120,000 | $36.47 | | |
| PORTWHID | Port of S Whidbey GEN | 0.1086004714 | $120,000 | $120,000 | $13.03 | | |
| SCH206BOND | School 206 BOND | 0.5960237832 | $120,000 | $120,000 | $71.52 | | |
| SCH206CAP | School 206 CP | 0.3066144020 | $120,000 | $120,000 | $36.79 | | |
| SCH206MO | School 206 Enrichment | 0.4808755445 | $120,000 | $120,000 | $57.71 | | |
| ST | State School | 1.4761226122 | $120,000 | $120,000 | $177.13 | | |
| ST2 | State School Part 2 | 0.7953803475 | $120,000 | $120,000 | $95.45 | | |
| SWHIDPRBD | P & R S Whidbey BOND | 0.0144185398 | $120,000 | $120,000 | $1.73 | | |
| SWHIDPRBD3 | P & R S Whidbey BOND3 | 0.1483535547 | $120,000 | $120,000 | $17.80 | | |
| SWHIDPRMT | P & R S Whidbey GEN | 0.4600000000 | $120,000 | $120,000 | $55.20 | | |
| | Total Tax Rate: | 6.6199682191 | | | | | |
| | | | | Taxes w/Current Exemptions: | $794.39 | | |
| | | | | Taxes w/o Exemptions: | $794.39 | | |
Improvement / Building
Sketch
| No sketches available for this property. |
Property Image
Land
| 1 | 13 | SQ (06001-08000) | 0.1700 | 7405.20 | 0.00 | 0.00 | 1.00 | $120,000 | $0 |
Roll Value History
| 2026 | N/A | N/A | N/A | N/A | N/A |
| 2025 | $0 | $120,000 | $0 | $120,000 | $120,000 |
| 2024 | $0 | $120,000 | $0 | $120,000 | $120,000 |
| 2023 | $0 | $120,000 | $0 | $120,000 | $120,000 |
| 2022 | $0 | $70,000 | $0 | $70,000 | $70,000 |
| 2021 | $0 | $70,000 | $0 | $70,000 | $70,000 |
| 2020 | $0 | $60,000 | $0 | $60,000 | $60,000 |
| 2019 | $0 | $70,000 | $0 | $70,000 | $70,000 |
| 2018 | $0 | $60,000 | $0 | $60,000 | $60,000 |
| 2017 | $0 | $60,000 | $0 | $60,000 | $60,000 |
| 2016 | $0 | $35,000 | $0 | $35,000 | $35,000 |
| 2015 | $0 | $5,000 | $0 | $5,000 | $5,000 |
| 2014 | $0 | $5,000 | $0 | $5,000 | $5,000 |
| 2013 | $0 | $5,000 | $0 | $5,000 | $5,000 |
| 2012 | $0 | $9,360 | $0 | $9,360 | $9,360 |
| 2011 | $0 | $9,360 | $0 | $9,360 | $9,360 |
| 2010 | $0 | $10,400 | $0 | $10,400 | $10,400 |
| 2009 | $0 | $12,600 | $0 | $12,600 | $12,600 |
| 2008 | $0 | $15,000 | $0 | $15,000 | $15,000 |
| 2007 | $0 | $18,500 | $0 | $18,500 | $18,500 |
Deed and Sales History
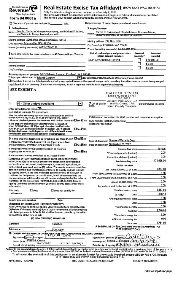
| 1 | 12/22/2023 | WD | Warranty Deed | SWICORD, STEVEN C | SMITH, ADRIAN | | | $190,000.00 | 58874 | 4568038 |
| 2 | 09/28/2022 | WD | Warranty Deed | CURRIE, FRED M & MALOY | SWICORD, STEVEN C | | | $171,626.00 | 54757 | 4552116 |
| 3 | 07/01/1979 | EXECUTORD | Executor Deed | RICHARDS, LAURENCE P | CURRIE, FRED M | | | $12,000.00 | 93717 | 356401 |
| 4 | 01/01/1900 | OTHER | Other - Misc. Documents | Unknown | RICHARDS, LAURENCE P | | | $0.00 | 0 | 0 |
Payout Agreement
| No payout information available.. |