Property
Account |
| Property ID: | 19296 | Abbreviated Legal Description: | 7 - SW SE EX N330'OF E660'& EX E375.5'OF W970'OF S580'&EX TL38,39 |
| Geographic ID: | R13215-029-2940 | Agent Code: | |
| Type: | Real | | |
| Tax Area: | 119 - APPRAISER-OH Schl Dist, outside OH, vacant & 50 acres or less | Land Use Code | 91 |
| Open Space: | N | DFL | N |
| Historic Property: | N | Remodel Property: | N |
| Multi-Family Redevelopment: | N | | |
| Township: | 32 | Section: | 15 |
| Range: | R1 |
Location |
| Address: | | Mapsco: | |
| Neighborhood: | Cycle 1 | Map ID: | 125 |
| Neighborhood CD: | 1 |
Owner |
| Name: | SAVAGE, SHANNON M | Owner ID: | 304724 |
| Mailing Address: | MYRON E SAVAGE PO BOX 1444 MERCER ISLAND, WA 98040 | % Ownership: | 100.0000000000% |
| | | Exemptions: | |
Taxes and Assessment Details
Values
| (+) Improvement Homesite Value: | + | N/A | |
| (+) Improvement Non-Homesite Value: | + | N/A | |
| (+) Land Homesite Value: | + | N/A | |
| (+) Land Non-Homesite Value: | + | N/A | Ag / Timber Use Value |
| (+) Curr Use (HS): | + | N/A | N/A |
| (+) Curr Use (NHS): | + | N/A | N/A |
| | | -------------------------- | |
| (=) Market Value: | = | N/A | |
| (–) Productivity Loss: | – | N/A | |
| | | -------------------------- | |
| (=) Subtotal: | = | N/A | |
| (+) Senior Appraised Value: | + | N/A | |
| (+) Non-Senior Appraised Value: | + | N/A | |
| | | -------------------------- | |
| (=) Total Appraised Value: | = | N/A | |
| (–) Senior Exemption Loss: | – | N/A | |
| (–) Exemption Loss: | – | N/A | |
| | | -------------------------- | |
| (=) Taxable Value: | = | N/A | |
Taxing Jurisdiction
| Owner: | SAVAGE, SHANNON M | | |
| % Ownership: | 100.0000000000% | | |
| Total Value: | N/A | | |
| Tax Area: | 119 - APPRAISER-OH Schl Dist, outside OH, vacant & 50 acres or less |
| CF | Conservation Futures | N/A | N/A | N/A | N/A | | |
| WCD | Whidbey Conservation District | N/A | N/A | N/A | N/A | | |
| CEM1 | Cemetery #1 | N/A | N/A | N/A | N/A | | |
| HOBOND | Hospital BOND | N/A | N/A | N/A | N/A | | |
| HOGEN | Hospital GEN | N/A | N/A | N/A | N/A | | |
| CE | County Current Expense | N/A | N/A | N/A | N/A | | |
| CR | County Roads | N/A | N/A | N/A | N/A | | |
| ISLANDEMS | Hospital GEN (EMS) | N/A | N/A | N/A | N/A | | |
| LIB | Library Sno-Isle GEN | N/A | N/A | N/A | N/A | | |
| NWHIDPRMT | P & R N Whidbey GEN | N/A | N/A | N/A | N/A | | |
| SCH201MO | School 201 Enrichment | N/A | N/A | N/A | N/A | | |
| ST | State School | N/A | N/A | N/A | N/A | | |
| ST2 | State School Part 2 | N/A | N/A | N/A | N/A | | |
| | Total Tax Rate: | N/A | | | | | |
| | | | | Taxes w/Current Exemptions: | N/A | | |
| | | | | Taxes w/o Exemptions: | N/A | | |
Improvement / Building
Sketch
| No sketches available for this property. |
Property Image
Land
| 1 | 91 | UNDEVELOPED LAND-METES AND BOUNDS | 7.9400 | 345866.40 | 0.00 | 0.00 | 1.00 | N/A | N/A |
Roll Value History
| 2026 | N/A | N/A | N/A | N/A | N/A |
| 2025 | $0 | $170,000 | $0 | $170,000 | $170,000 |
| 2024 | $0 | $150,000 | $0 | $150,000 | $150,000 |
| 2023 | $0 | $150,000 | $0 | $150,000 | $150,000 |
| 2022 | $0 | $150,000 | $0 | $150,000 | $150,000 |
| 2021 | $0 | $140,000 | $0 | $140,000 | $140,000 |
| 2020 | $0 | $125,000 | $0 | $125,000 | $125,000 |
| 2019 | $0 | $150,000 | $0 | $150,000 | $150,000 |
| 2018 | $0 | $150,000 | $0 | $150,000 | $150,000 |
| 2017 | $0 | $130,000 | $0 | $130,000 | $130,000 |
| 2016 | $0 | $130,000 | $0 | $130,000 | $130,000 |
| 2015 | $0 | $100,000 | $0 | $100,000 | $100,000 |
| 2014 | $0 | $100,000 | $0 | $100,000 | $100,000 |
| 2013 | $0 | $103,220 | $0 | $103,220 | $103,220 |
| 2012 | $0 | $103,220 | $0 | $103,220 | $103,220 |
| 2011 | $0 | $103,220 | $0 | $103,220 | $103,220 |
| 2010 | $0 | $103,220 | $0 | $103,220 | $103,220 |
| 2009 | $0 | $158,800 | $0 | $158,800 | $158,800 |
| 2008 | $0 | $228,275 | $0 | $228,275 | $228,275 |
| 2007 | $0 | $149,990 | $0 | $149,990 | $149,990 |
Deed and Sales History
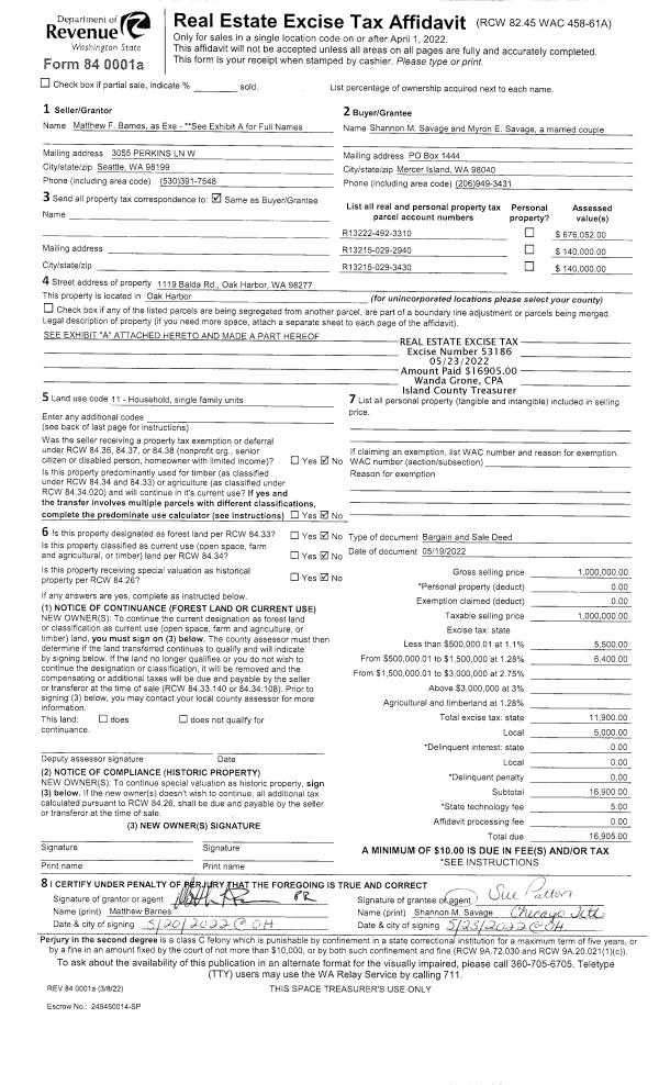
| 1 | 05/19/2022 | BARGSLD | Bargain And Sale Deed | BARNES, BROOKE A | SAVAGE, SHANNON M | | | $1,000,000.00 | 53186 | 4545501 |
|   | |
| 2 | 03/13/2001 | PRD | Personal Representatives Deed | SEEBECK, LEVONE | BARNES, BROOKE A | | | $45,497.00 | 10994 | 20028346 |
| 3 | 01/01/1900 | OTHER | Other - Misc. Documents | Unknown | SEEBECK, LEVONE | | | $0.00 | 0 | 0 |
Payout Agreement
| No payout information available.. |