Property
Account |
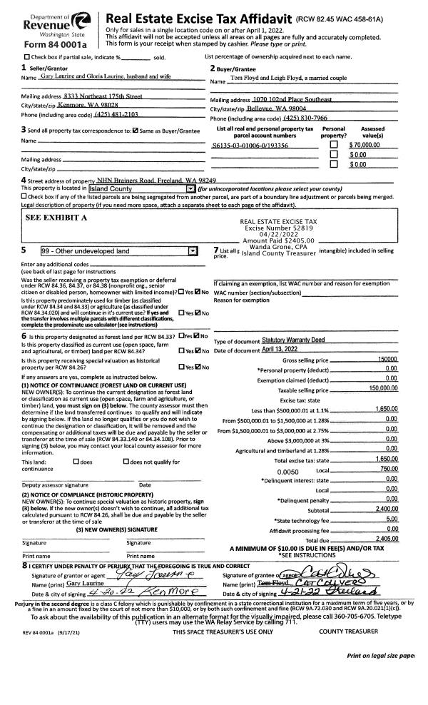
| Property ID: | 193356 | Abbreviated Legal Description: | BEVERLY BCH 3 LOT 6 BLK 1 |
| Geographic ID: | S6135-03-01006-0 | Agent Code: | |
| Type: | Real | | |
| Tax Area: | 719 - APPRAISER-S Whid Schl Dist, outside Langley, vacant & 50 acres or less | Land Use Code | 99 |
| Open Space: | N | DFL | N |
| Historic Property: | N | Remodel Property: | N |
| Multi-Family Redevelopment: | N | | |
| Township: | | Section: | |
| Range: | |
Location |
| Address: | | Mapsco: | |
| Neighborhood: | Cycle 3 | Map ID: | 406 |
| Neighborhood CD: | 3 |
Owner |
| Name: | FLOYD, TOM | Owner ID: | 303929 |
| Mailing Address: | LEIGH FLOYD 1070 102ND PLACE SOUTHEAST BELLEVUE, WA 98004 | % Ownership: | 100.0000000000% |
| | | Exemptions: | |
Taxes and Assessment Details
Values
| (+) Improvement Homesite Value: | + | $0 | |
| (+) Improvement Non-Homesite Value: | + | $0 | |
| (+) Land Homesite Value: | + | $0 | |
| (+) Land Non-Homesite Value: | + | $120,000 | |
| (+) Curr Use (HS): | + | $0 | $0 |
| (+) Curr Use (NHS): | + | $0 | $0 |
| | | -------------------------- | |
| (=) Market Value: | = | $120,000 | |
| (–) Productivity Loss: | – | $0 | |
| | | -------------------------- | |
| (=) Subtotal: | = | $120,000 | |
| (+) Senior Appraised Value: | + | $0 | |
| (+) Non-Senior Appraised Value: | + | $120,000 | |
| | | -------------------------- | |
| (=) Total Appraised Value: | = | $120,000 | |
| (–) Senior Exemption Loss: | – | $0 | |
| (–) Exemption Loss: | – | $0 | |
| | | -------------------------- | |
| (=) Taxable Value: | = | $120,000 | |
Taxing Jurisdiction
| Owner: | FLOYD, TOM | | |
| % Ownership: | 100.0000000000% | | |
| Total Value: | $120,000 | | |
| Tax Area: | 719 - APPRAISER-S Whid Schl Dist, outside Langley, vacant & 50 acres or less |
| CF | Conservation Futures | 0.0313996660 | $120,000 | $120,000 | $3.77 | | |
| HOBOND | Hospital BOND | 0.1893405597 | $120,000 | $120,000 | $22.72 | | |
| HOGEN | Hospital GEN | 0.3848777722 | $120,000 | $120,000 | $46.19 | | |
| CE | County Current Expense | 0.3674210519 | $120,000 | $120,000 | $44.09 | | |
| CR | County Roads | 0.4614296361 | $120,000 | $120,000 | $55.37 | | |
| ISLANDEMS | Hospital GEN (EMS) | 0.4952018576 | $120,000 | $120,000 | $59.42 | | |
| LIB | Library Sno-Isle GEN | 0.3039084203 | $120,000 | $120,000 | $36.47 | | |
| PORTWHID | Port of S Whidbey GEN | 0.1086004714 | $120,000 | $120,000 | $13.03 | | |
| SCH206BOND | School 206 BOND | 0.5960237832 | $120,000 | $120,000 | $71.52 | | |
| SCH206CAP | School 206 CP | 0.3066144020 | $120,000 | $120,000 | $36.79 | | |
| SCH206MO | School 206 Enrichment | 0.4808755445 | $120,000 | $120,000 | $57.71 | | |
| ST | State School | 1.4761226122 | $120,000 | $120,000 | $177.13 | | |
| ST2 | State School Part 2 | 0.7953803475 | $120,000 | $120,000 | $95.45 | | |
| SWHIDPRBD | P & R S Whidbey BOND | 0.0144185398 | $120,000 | $120,000 | $1.73 | | |
| SWHIDPRBD3 | P & R S Whidbey BOND3 | 0.1483535547 | $120,000 | $120,000 | $17.80 | | |
| SWHIDPRMT | P & R S Whidbey GEN | 0.4600000000 | $120,000 | $120,000 | $55.20 | | |
| | Total Tax Rate: | 6.6199682191 | | | | | |
| | | | | Taxes w/Current Exemptions: | $794.39 | | |
| | | | | Taxes w/o Exemptions: | $794.39 | | |
Improvement / Building
Sketch
| No sketches available for this property. |
Property Image
Land
| 1 | 14 | SQ (08001-12000) | 0.0000 | 0.00 | 0.00 | 0.00 | 1.00 | $120,000 | $0 |
Roll Value History
| 2026 | N/A | N/A | N/A | N/A | N/A |
| 2025 | $0 | $120,000 | $0 | $120,000 | $120,000 |
| 2024 | $0 | $120,000 | $0 | $120,000 | $120,000 |
| 2023 | $0 | $70,000 | $0 | $70,000 | $70,000 |
| 2022 | $0 | $70,000 | $0 | $70,000 | $70,000 |
| 2021 | $0 | $70,000 | $0 | $70,000 | $70,000 |
| 2020 | $0 | $60,000 | $0 | $60,000 | $60,000 |
| 2019 | $0 | $70,000 | $0 | $70,000 | $70,000 |
| 2018 | $0 | $60,000 | $0 | $60,000 | $60,000 |
| 2017 | $0 | $60,000 | $0 | $60,000 | $60,000 |
| 2016 | $0 | $35,000 | $0 | $35,000 | $35,000 |
| 2015 | $0 | $45,000 | $0 | $45,000 | $45,000 |
| 2014 | $0 | $55,000 | $0 | $55,000 | $55,000 |
| 2013 | $0 | $55,000 | $0 | $55,000 | $55,000 |
| 2012 | $0 | $58,500 | $0 | $58,500 | $58,500 |
| 2011 | $0 | $58,500 | $0 | $58,500 | $58,500 |
| 2010 | $0 | $65,000 | $0 | $65,000 | $65,000 |
| 2009 | $0 | $70,000 | $0 | $70,000 | $70,000 |
| 2008 | $0 | $80,000 | $0 | $80,000 | $80,000 |
| 2007 | $0 | $40,000 | $0 | $40,000 | $40,000 |
Deed and Sales History
| 1 | 04/13/2022 | WD | Warranty Deed | LAURINE, GARY | FLOYD, TOM | | | $150,000.00 | 52819 | 4543884 |
| 2 | 05/02/2002 | WD | Warranty Deed | HARRIS, THOMAS | LAURINE, GARY | | | $9,500.00 | 21700 | 4019054 |
| 3 | 05/04/1999 | WD | Warranty Deed | DALTON, WILLIAM C | HARRIS, THOMAS | | | $22,500.00 | 91799 | 99011381 |
| 4 | 08/01/1993 | WD | Warranty Deed | JAMES, I M | DALTON, WILLIAM C | | | $17,500.00 | 33389 | 93017606 |
| 5 | 01/01/1900 | OTHER | Other - Misc. Documents | Unknown | JAMES, I M | | | $0.00 | 0 | 0 |
Payout Agreement
| No payout information available.. |