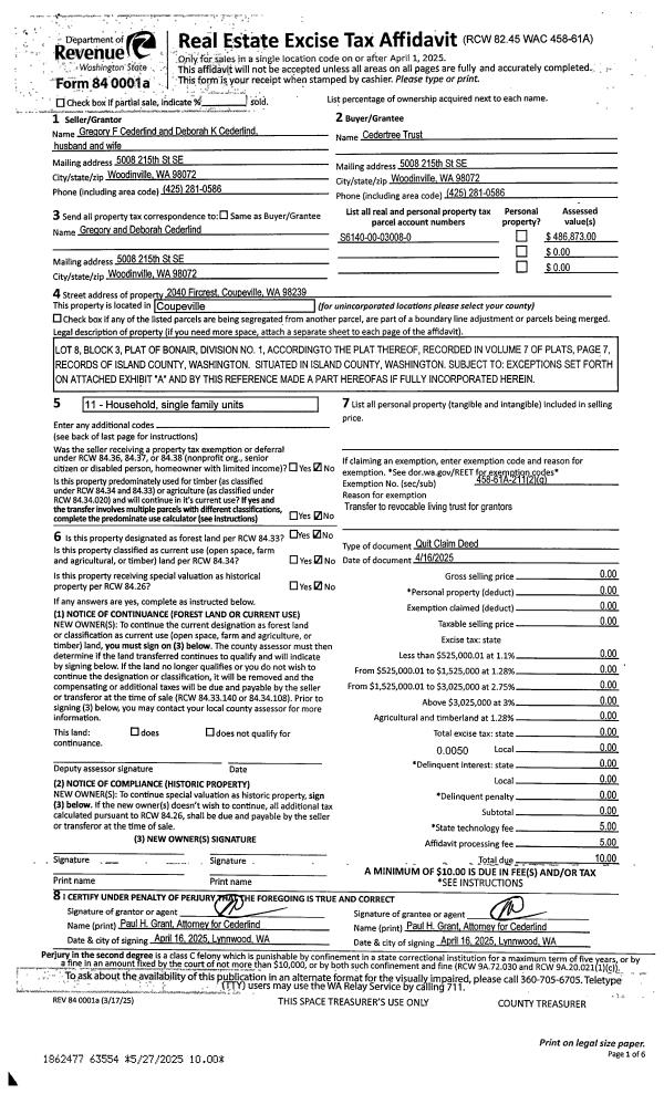
Property
Account |
| Property ID: | 193999 | Abbreviated Legal Description: | BON AIR 1 LOT 8 BLK 3 |
| Geographic ID: | S6140-00-03008-0 | Agent Code: | |
| Type: | Real | | |
| Tax Area: | 310 - APPRAISER-Cpvl Schl Dist, outside Cpvl, improved & 1 acre or less | Land Use Code | 11 |
| Open Space: | N | DFL | N |
| Historic Property: | N | Remodel Property: | N |
| Multi-Family Redevelopment: | N | | |
| Township: | | Section: | |
| Range: | |
Location |
| Address: | 2040 FIRCREST AVE COUPEVILLE, WA 98239 | Mapsco: | |
| Neighborhood: | Cycle 2 | Map ID: | 525 |
| Neighborhood CD: | 2 |
Owner |
| Name: | CEDERTREE TRUST | Owner ID: | 316590 |
| Mailing Address: | 5008 215TH ST SE WOODINVILLE, WA 98072 | % Ownership: | 100.0000000000% |
| | | Exemptions: | |
Taxes and Assessment Details
Values
| (+) Improvement Homesite Value: | + | $0 | |
| (+) Improvement Non-Homesite Value: | + | $288,973 | |
| (+) Land Homesite Value: | + | $0 | |
| (+) Land Non-Homesite Value: | + | $205,000 | |
| (+) Curr Use (HS): | + | $0 | $0 |
| (+) Curr Use (NHS): | + | $0 | $0 |
| | | -------------------------- | |
| (=) Market Value: | = | $493,973 | |
| (–) Productivity Loss: | – | $0 | |
| | | -------------------------- | |
| (=) Subtotal: | = | $493,973 | |
| (+) Senior Appraised Value: | + | $0 | |
| (+) Non-Senior Appraised Value: | + | $493,973 | |
| | | -------------------------- | |
| (=) Total Appraised Value: | = | $493,973 | |
| (–) Senior Exemption Loss: | – | $0 | |
| (–) Exemption Loss: | – | $0 | |
| | | -------------------------- | |
| (=) Taxable Value: | = | $493,973 | |
Taxing Jurisdiction
| Owner: | CEDERTREE TRUST | | |
| % Ownership: | 100.0000000000% | | |
| Total Value: | $493,973 | | |
| Tax Area: | 310 - APPRAISER-Cpvl Schl Dist, outside Cpvl, improved & 1 acre or less |
| CF | Conservation Futures | 0.0313996660 | $493,973 | $493,973 | $15.51 | | |
| CEM2 | Cemetery #2 | 0.0092609791 | $493,973 | $493,973 | $4.57 | | |
| FIRE5 | Fire & Rescue Dist #5 C Whidbey GEN | 1.1892169230 | $493,973 | $493,973 | $587.44 | | |
| FIRE5BOND | Fire & Rescue Dist #5 C Whidbey BOND | 0.1394359503 | $493,973 | $493,973 | $68.88 | | |
| HOBOND | Hospital BOND | 0.1893405597 | $493,973 | $493,973 | $93.53 | | |
| HOGEN | Hospital GEN | 0.3848777722 | $493,973 | $493,973 | $190.12 | | |
| CE | County Current Expense | 0.3674210519 | $493,973 | $493,973 | $181.50 | | |
| CR | County Roads | 0.4614296361 | $493,973 | $493,973 | $227.93 | | |
| ISLANDEMS | Hospital GEN (EMS) | 0.4952018576 | $493,973 | $493,973 | $244.62 | | |
| LIB | Library Sno-Isle GEN | 0.3039084203 | $493,973 | $493,973 | $150.12 | | |
| LIBCAP | Library Sno-Isle BOND (Cap Fac Imp Area) | 0.0528562629 | $493,973 | $493,973 | $26.11 | | |
| POCOUP | Port of Coupeville GEN | 0.1065226063 | $493,973 | $493,973 | $52.62 | | |
| POCOUPIDD | Port of Coupeville IDD | 0.3353038577 | $493,973 | $493,973 | $165.63 | | |
| COUPSDTECH | School 204 CP (TECH) | 0.1215123397 | $493,973 | $493,973 | $60.02 | | |
| SCH204MO | School 204 Enrichment | 0.6416662518 | $493,973 | $493,973 | $316.97 | | |
| ST | State School | 1.4761226122 | $493,973 | $493,973 | $729.16 | | |
| ST2 | State School Part 2 | 0.7953803475 | $493,973 | $493,973 | $392.90 | | |
| | Total Tax Rate: | 7.1008570943 | | | | | |
| | | | | Taxes w/Current Exemptions: | $3,507.63 | | |
| | | | | Taxes w/o Exemptions: | $3,507.63 | | |
Improvement / Building
| Improvement #1: | RESIDENTIAL | State Code: | Y | 1499.0 sqft | Value: | $288,973 |
| Bathrooms: | 1.75 | Bedrooms: | 3 | | Ceiling: | DRYWALL PAINTED | Exterior Wall/Cover: | SHINGLE | | Floor Covering: | HARDWOOD 100% | Floor Structure: | WOOD W/SUBFLOOR | | Foundation: | CONCRETE | Heating: | WALL HEAT ELECTRIC | | Interior Finish: | DRYWALL PAINT | Plumbing Fixture Cnt: | 9 | | Roof Slope: | 3" IN 12" | Roof Structure/Cover: | CJ ASPHALT |
|
| | Type | Description | Class CD | Sub Class CD | Year Built | Area |
| | BAS | BASE/MAIN FLOOR | 3 | 0 | 1961 | 1499.0 |
| | AGR | ATTACHED GARAGE | 3 | 0 | 1961 | 600.0 |
| | OWP | OPEN WOOD PORCH W/STEPS | 3 | 0 | 1961 | 599.0 |
| | OWC | OPEN WOOD PORCH W/STEPS/ROOF/C | 3 | 0 | 1961 | 16.0 |
Sketch
Property Image
Land
| 1 | 14 | SQ (08001-12000) | 0.2081 | 9064.84 | 0.00 | 0.00 | 1.00 | $205,000 | $0 |
Roll Value History
| 2026 | N/A | N/A | N/A | N/A | N/A |
| 2025 | $288,973 | $205,000 | $0 | $493,973 | $493,973 |
| 2024 | $291,873 | $195,000 | $0 | $486,873 | $486,873 |
| 2023 | $295,465 | $190,000 | $0 | $485,465 | $485,465 |
| 2022 | $270,796 | $180,000 | $0 | $450,796 | $450,796 |
| 2021 | $238,308 | $130,000 | $0 | $368,308 | $368,308 |
| 2020 | $232,247 | $110,000 | $0 | $342,247 | $342,247 |
| 2019 | $169,322 | $170,000 | $0 | $339,322 | $339,322 |
| 2018 | $169,813 | $160,000 | $0 | $329,813 | $329,813 |
| 2017 | $170,795 | $160,000 | $0 | $330,795 | $330,795 |
| 2016 | $89,562 | $125,000 | $0 | $214,562 | $214,562 |
| 2015 | $73,328 | $115,000 | $0 | $188,328 | $188,328 |
| 2014 | $74,392 | $100,000 | $0 | $174,392 | $174,392 |
| 2013 | $101,651 | $125,000 | $0 | $226,651 | $226,651 |
| 2012 | $75,903 | $109,250 | $0 | $185,153 | $185,153 |
| 2011 | $77,362 | $115,000 | $0 | $192,362 | $192,362 |
| 2010 | $86,194 | $115,000 | $0 | $201,194 | $201,194 |
| 2009 | $88,825 | $155,000 | $0 | $243,825 | $243,825 |
| 2008 | $90,288 | $157,677 | $0 | $247,965 | $247,965 |
| 2007 | $91,751 | $157,677 | $0 | $249,428 | $249,428 |
Deed and Sales History
| 1 | 04/16/2025 | QCD | Quit Claim Deed | CEDERLIND, GREGROY F | CEDERTREE TRUST | | | $0.00 | 63554 | 4586222 |
| 2 | 09/18/2013 | CCOMPROP | Create Community Property | CEDERLIND, DEBBIE | CEDERLIND, GREGROY F | | | $0.00 | 12878 | 4348462 |
| 3 | 07/02/2013 | WD | Warranty Deed | BALLMER, STEVEN A | CEDERLIND, DEBBIE | | | $169,500.00 | 11924 | 4343486 |
| 4 | 03/05/2007 | WD | Warranty Deed | NEWBY, STEPHEN M | BALLMER, STEVEN A | | | $250,000.00 | 70880 | 4196729 |
| 5 | 10/06/1998 | WD | Warranty Deed | STANLICK, THOMAS J | NEWBY, STEPHEN M | | | $140,000.00 | 84097 | 98022152 |
| 6 | 09/01/1988 | WD | Warranty Deed | TENNY, EDNA M | STANLICK, THOMAS J | | | $69,900.00 | 83027 | 88011328 |
| 7 | 01/01/1900 | OTHER | Other - Misc. Documents | Unknown | TENNY, EDNA M | | | $0.00 | 0 | 0 |
Payout Agreement
| No payout information available.. |