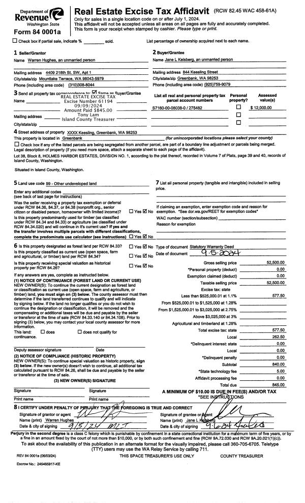
Property
Account |
| Property ID: | 194079 | Abbreviated Legal Description: | BON AIR 2 LOT 2 BLK 4 & S6' OF LOT A BLK 4 & LOT B BLK 4 & N64' OF LOT C BLK 4 |
| Geographic ID: | S6140-02-04002-0 | Agent Code: | |
| Type: | Real | | |
| Tax Area: | 319 - APPRAISER-Cpvl Schl Dist, outside Cpvl, vacant & 50 acres or less | Land Use Code | 99 |
| Open Space: | N | DFL | N |
| Historic Property: | N | Remodel Property: | N |
| Multi-Family Redevelopment: | N | | |
| Township: | | Section: | |
| Range: | |
Location |
| Address: | | Mapsco: | |
| Neighborhood: | Cycle 2 | Map ID: | 525 |
| Neighborhood CD: | 2 |
Owner |
| Name: | LOUSHIN, TOM | Owner ID: | 9424 |
| Mailing Address: | BOX 8207 SURPRISE, AZ 95374 | % Ownership: | 100.0000000000% |
| | | Exemptions: | U500 |
Taxes and Assessment Details
Values
| (+) Improvement Homesite Value: | + | $0 | |
| (+) Improvement Non-Homesite Value: | + | $0 | |
| (+) Land Homesite Value: | + | $0 | |
| (+) Land Non-Homesite Value: | + | $450 | |
| (+) Curr Use (HS): | + | $0 | $0 |
| (+) Curr Use (NHS): | + | $0 | $0 |
| | | -------------------------- | |
| (=) Market Value: | = | $450 | |
| (–) Productivity Loss: | – | $0 | |
| | | -------------------------- | |
| (=) Subtotal: | = | $450 | |
| (+) Senior Appraised Value: | + | $0 | |
| (+) Non-Senior Appraised Value: | + | $450 | |
| | | -------------------------- | |
| (=) Total Appraised Value: | = | $450 | |
| (–) Senior Exemption Loss: | – | $0 | |
| (–) Exemption Loss: | – | $450 | |
| | | -------------------------- | |
| (=) Taxable Value: | = | $0 | |
Taxing Jurisdiction
| Owner: | LOUSHIN, TOM | | |
| % Ownership: | 100.0000000000% | | |
| Total Value: | $450 | | |
| Tax Area: | 319 - APPRAISER-Cpvl Schl Dist, outside Cpvl, vacant & 50 acres or less |
| CF | Conservation Futures | 0.0313996660 | $450 | $0 | $0.00 | | |
| CEM2 | Cemetery #2 | 0.0092609791 | $450 | $0 | $0.00 | | |
| HOBOND | Hospital BOND | 0.1893405597 | $450 | $0 | $0.00 | | |
| HOGEN | Hospital GEN | 0.3848777722 | $450 | $0 | $0.00 | | |
| CE | County Current Expense | 0.3674210519 | $450 | $0 | $0.00 | | |
| CR | County Roads | 0.4614296361 | $450 | $0 | $0.00 | | |
| ISLANDEMS | Hospital GEN (EMS) | 0.4952018576 | $450 | $0 | $0.00 | | |
| LIB | Library Sno-Isle GEN | 0.3039084203 | $450 | $0 | $0.00 | | |
| LIBCAP | Library Sno-Isle BOND (Cap Fac Imp Area) | 0.0528562629 | $450 | $0 | $0.00 | | |
| POCOUP | Port of Coupeville GEN | 0.1065226063 | $450 | $0 | $0.00 | | |
| POCOUPIDD | Port of Coupeville IDD | 0.3353038577 | $450 | $0 | $0.00 | | |
| COUPSDTECH | School 204 CP (TECH) | 0.1215123397 | $450 | $0 | $0.00 | | |
| SCH204MO | School 204 Enrichment | 0.6416662518 | $450 | $0 | $0.00 | | |
| ST | State School | 1.4761226122 | $450 | $0 | $0.00 | | |
| ST2 | State School Part 2 | 0.7953803475 | $450 | $0 | $0.00 | | |
| | Total Tax Rate: | 5.7722042210 | | | | | |
| | | | | Taxes w/Current Exemptions: | $0.00 | | |
| | | | | Taxes w/o Exemptions: | $2.59 | | |
Improvement / Building
Sketch
| No sketches available for this property. |
Property Image
Land
| 1 | 54 | WASTE LAND | 0.5064 | 22058.78 | 0.00 | 0.00 | 1.00 | $450 | $0 |
Roll Value History
| 2026 | N/A | N/A | N/A | N/A | N/A |
| 2025 | $0 | $450 | $0 | $450 | $0 |
| 2024 | $0 | $450 | $0 | $450 | $0 |
| 2023 | $0 | $450 | $0 | $450 | $0 |
| 2022 | $0 | $450 | $0 | $450 | $0 |
| 2021 | $0 | $10 | $0 | $10 | $0 |
| 2020 | $0 | $10 | $0 | $10 | $0 |
| 2019 | $0 | $10 | $0 | $10 | $0 |
| 2018 | $0 | $10 | $0 | $10 | $0 |
| 2017 | $0 | $10 | $0 | $10 | $0 |
| 2016 | $0 | $10 | $0 | $10 | $0 |
| 2015 | $0 | $10 | $0 | $10 | $0 |
| 2014 | $0 | $450 | $0 | $450 | $0 |
| 2013 | $0 | $450 | $0 | $450 | $0 |
| 2012 | $0 | $4,000 | $0 | $4,000 | $4,000 |
| 2011 | $0 | $5,400 | $0 | $5,400 | $5,400 |
| 2010 | $0 | $5,400 | $0 | $5,400 | $5,400 |
| 2009 | $0 | $9,600 | $0 | $9,600 | $9,600 |
| 2008 | $0 | $6,080 | $0 | $6,080 | $6,080 |
| 2007 | $0 | $4,800 | $0 | $4,800 | $4,800 |
Deed and Sales History
| 1 | 01/26/2010 | PRD | Personal Representatives Deed | SOLTIS, GERALD E | LOUSHIN, TOM | | | $0.00 | 229 | 4267935 |
| 2 | 01/01/1991 | WD | Warranty Deed | WINGFIELD, DONALD W | SOLTIS, GERALD E | | | $5,000.00 | 10228 | 91001109 |
| 3 | 01/01/1900 | OTHER | Other - Misc. Documents | WINGFIELD, DONALD W | WINGFIELD, DONALD W | | | $0.00 | 0 | 0 |
| 4 | 01/01/1900 | OTHER | Other - Misc. Documents | Unknown | WINGFIELD, DONALD W | | | $0.00 | 54515 | 0 |
Payout Agreement
| No payout information available.. |