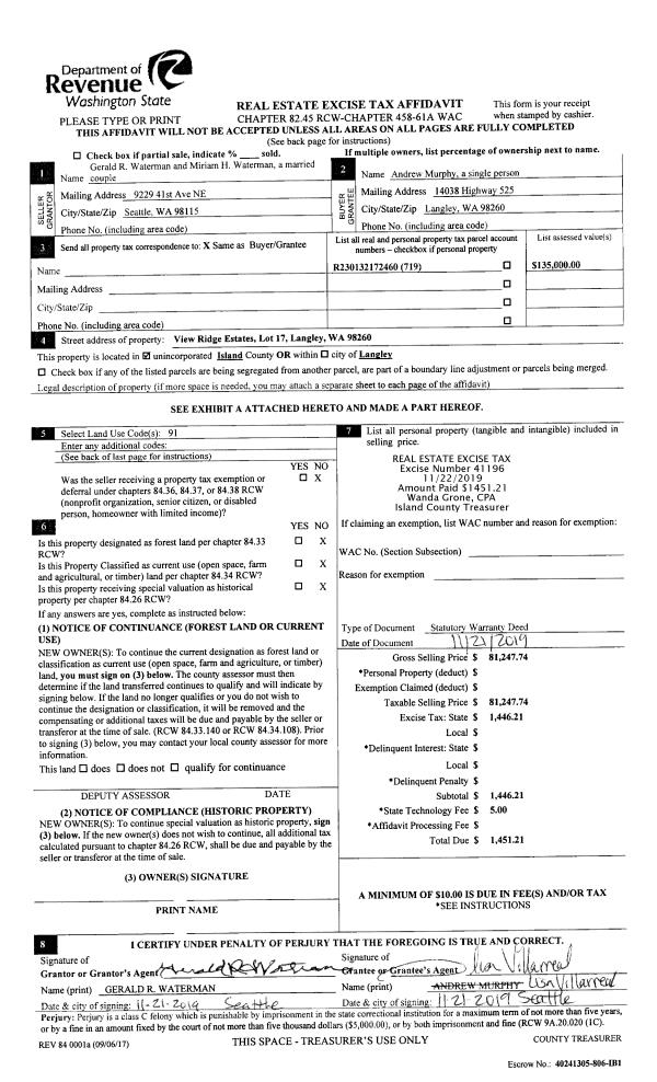
Property
Account |
| Property ID: | 194364 | Abbreviated Legal Description: | Bon Air - 3,s Lot 04,s Blk 6;s LOT A LOT COMB AF#4478062s |
| Geographic ID: | S6140-03-06004-0 | Agent Code: | |
| Type: | Real | | |
| Tax Area: | 310 - APPRAISER-Cpvl Schl Dist, outside Cpvl, improved & 1 acre or less | Land Use Code | 11 |
| Open Space: | N | DFL | N |
| Historic Property: | N | Remodel Property: | N |
| Multi-Family Redevelopment: | N | | |
| Township: | | Section: | |
| Range: | |
Location |
| Address: | 2015 PINECREST AVE COUPEVILLE, WA 98239 | Mapsco: | |
| Neighborhood: | Cycle 2 | Map ID: | 525 |
| Neighborhood CD: | 2 |
Owner |
| Name: | LAWSON, THEODORE SCOTT | Owner ID: | 316852 |
| Mailing Address: | CHRISTINE HACKETT LAWSONE 5140 BROADMOOR BLUFFS DR COLORADO SPRINGS, CO 70906 | % Ownership: | 100.0000000000% |
| | | Exemptions: | |
Taxes and Assessment Details
Values
| (+) Improvement Homesite Value: | + | $0 | |
| (+) Improvement Non-Homesite Value: | + | $590,700 | |
| (+) Land Homesite Value: | + | $0 | |
| (+) Land Non-Homesite Value: | + | $205,000 | |
| (+) Curr Use (HS): | + | $0 | $0 |
| (+) Curr Use (NHS): | + | $0 | $0 |
| | | -------------------------- | |
| (=) Market Value: | = | $795,700 | |
| (–) Productivity Loss: | – | $0 | |
| | | -------------------------- | |
| (=) Subtotal: | = | $795,700 | |
| (+) Senior Appraised Value: | + | $0 | |
| (+) Non-Senior Appraised Value: | + | $795,700 | |
| | | -------------------------- | |
| (=) Total Appraised Value: | = | $795,700 | |
| (–) Senior Exemption Loss: | – | $0 | |
| (–) Exemption Loss: | – | $0 | |
| | | -------------------------- | |
| (=) Taxable Value: | = | $795,700 | |
Taxing Jurisdiction
| Owner: | LAWSON, THEODORE SCOTT | | |
| % Ownership: | 100.0000000000% | | |
| Total Value: | $795,700 | | |
| Tax Area: | 310 - APPRAISER-Cpvl Schl Dist, outside Cpvl, improved & 1 acre or less |
| CF | Conservation Futures | 0.0313996660 | $795,700 | $795,700 | $24.98 | | |
| CEM2 | Cemetery #2 | 0.0092609791 | $795,700 | $795,700 | $7.37 | | |
| FIRE5 | Fire & Rescue Dist #5 C Whidbey GEN | 1.1892169230 | $795,700 | $795,700 | $946.26 | | |
| FIRE5BOND | Fire & Rescue Dist #5 C Whidbey BOND | 0.1394359503 | $795,700 | $795,700 | $110.95 | | |
| HOBOND | Hospital BOND | 0.1893405597 | $795,700 | $795,700 | $150.66 | | |
| HOGEN | Hospital GEN | 0.3848777722 | $795,700 | $795,700 | $306.25 | | |
| CE | County Current Expense | 0.3674210519 | $795,700 | $795,700 | $292.36 | | |
| CR | County Roads | 0.4614296361 | $795,700 | $795,700 | $367.16 | | |
| ISLANDEMS | Hospital GEN (EMS) | 0.4952018576 | $795,700 | $795,700 | $394.03 | | |
| LIB | Library Sno-Isle GEN | 0.3039084203 | $795,700 | $795,700 | $241.82 | | |
| LIBCAP | Library Sno-Isle BOND (Cap Fac Imp Area) | 0.0528562629 | $795,700 | $795,700 | $42.06 | | |
| POCOUP | Port of Coupeville GEN | 0.1065226063 | $795,700 | $795,700 | $84.76 | | |
| POCOUPIDD | Port of Coupeville IDD | 0.3353038577 | $795,700 | $795,700 | $266.80 | | |
| COUPSDTECH | School 204 CP (TECH) | 0.1215123397 | $795,700 | $795,700 | $96.69 | | |
| SCH204MO | School 204 Enrichment | 0.6416662518 | $795,700 | $795,700 | $510.57 | | |
| ST | State School | 1.4761226122 | $795,700 | $795,700 | $1,174.55 | | |
| ST2 | State School Part 2 | 0.7953803475 | $795,700 | $795,700 | $632.88 | | |
| | Total Tax Rate: | 7.1008570943 | | | | | |
| | | | | Taxes w/Current Exemptions: | $5,650.15 | | |
| | | | | Taxes w/o Exemptions: | $5,650.15 | | |
Improvement / Building
| Improvement #1: | RESIDENTIAL | State Code: | Y | 2162.3 sqft | Value: | $590,700 |
| Bathrooms: | 2.5 | Bedrooms: | 2 | | Ceiling: | DRYWALL PAINTED | Cooling: | HEAT PUMP/CONV/V | | Exterior Wall/Cover: | CEMENT FIBER | Floor Covering: | HARDWOOD/CARP 60-40 | | Floor Structure: | WOOD W/SUBFLOOR | Foundation: | CONCRETE | | Interior Finish: | DRYWALL PAINT | Plumbing Fixture Cnt: | 12 | | Roof Slope: | 6" IN 12" | Roof Structure/Cover: | CJ ALUMINIUM HEAVY |
|
| | Type | Description | Class CD | Sub Class CD | Year Built | Area |
| | BAS | BASE/MAIN FLOOR | 4 | 0 | 2021 | 1673.3 |
| | UPS | UPPER STORY | 4 | 0 | 2021 | 489.0 |
| | BIG | BUILT IN GARAGE | 4 | 0 | 2021 | 530.5 |
| | OP4 | OPEN PORCH W/CEILING-ROOF | 4 | 0 | 2021 | 162.0 |
| | OWC | OPEN WOOD PORCH W/STEPS/ROOF/C | 4 | 0 | 2021 | 180.0 |
| | OWP | OPEN WOOD PORCH W/STEPS | 4 | 0 | 2021 | 186.0 |
| | BAW | BALCONY WOOD RAIL | 4 | 0 | 2021 | 130.0 |
Sketch
Property Image
Land
| 1 | 15 | SQ (12001-21780) | 0.5000 | 21780.00 | 0.00 | 0.00 | 1.00 | $205,000 | $0 |
Roll Value History
| 2026 | N/A | N/A | N/A | N/A | N/A |
| 2025 | $590,700 | $205,000 | $0 | $795,700 | $795,700 |
| 2024 | $595,362 | $180,000 | $0 | $775,362 | $775,362 |
| 2023 | $601,612 | $175,000 | $0 | $776,612 | $776,612 |
| 2022 | $554,685 | $150,000 | $0 | $704,685 | $704,685 |
| 2021 | $107,838 | $30,000 | $0 | $137,838 | $137,838 |
| 2020 | $0 | $30,000 | $0 | $30,000 | $30,000 |
| 2019 | $0 | $65,000 | $0 | $65,000 | $65,000 |
| 2018 | $0 | $30,000 | $0 | $30,000 | $30,000 |
| 2017 | $0 | $30,000 | $0 | $30,000 | $30,000 |
| 2016 | $0 | $30,000 | $0 | $30,000 | $30,000 |
| 2015 | $0 | $30,000 | $0 | $30,000 | $30,000 |
| 2014 | $0 | $30,000 | $0 | $30,000 | $30,000 |
| 2013 | $0 | $30,000 | $0 | $30,000 | $30,000 |
| 2012 | $0 | $30,000 | $0 | $30,000 | $30,000 |
| 2011 | $0 | $30,000 | $0 | $30,000 | $30,000 |
| 2010 | $0 | $30,000 | $0 | $30,000 | $30,000 |
| 2009 | $0 | $45,000 | $0 | $45,000 | $45,000 |
| 2008 | $0 | $38,000 | $0 | $38,000 | $38,000 |
| 2007 | $0 | $22,500 | $0 | $22,500 | $22,500 |
Deed and Sales History
| 1 | 06/05/2025 | WD | Warranty Deed | TAYLOR, PAUL H | LAWSON, THEODORE SCOTT | | | $925,000.00 | 63717 | 4586735 |
| 2 | 11/08/2019 | WD | Warranty Deed | REX, WARREN D | TAYLOR, PAUL H | | | $63,000.00 | 41056 | 4475294 |
| 3 | 02/01/1991 | QCD | Quit Claim Deed | JACKSON, ARTHUR F | REX, WARREN D | | | $0.00 | 10733 | 91003312 |
| 4 | 01/01/1900 | OTHER | Other - Misc. Documents | Unknown | JACKSON, ARTHUR F | | | $0.00 | 0 | 0 |
Payout Agreement
| No payout information available.. |