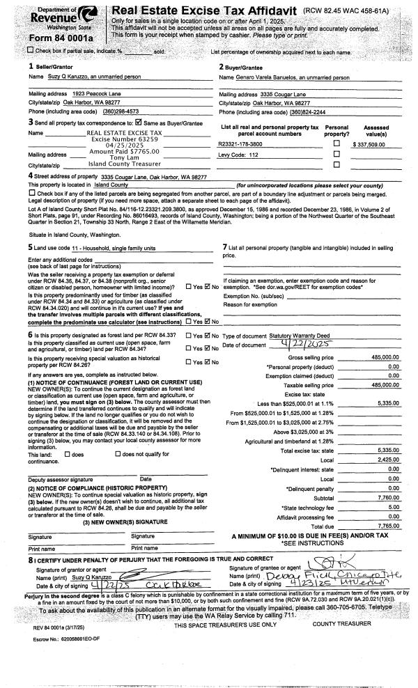
Property
Account |
| Property ID: | 194612 | Abbreviated Legal Description: | Bon Air - 3,s Lot 1,s Blk 8;s LOT A LOT COMB AF#4492090s |
| Geographic ID: | S6140-03-08001-0 | Agent Code: | |
| Type: | Real | | |
| Tax Area: | 310 - APPRAISER-Cpvl Schl Dist, outside Cpvl, improved & 1 acre or less | Land Use Code | 11 |
| Open Space: | N | DFL | N |
| Historic Property: | N | Remodel Property: | N |
| Multi-Family Redevelopment: | N | | |
| Township: | | Section: | |
| Range: | |
Location |
| Address: | | Mapsco: | |
| Neighborhood: | Cycle 2 | Map ID: | 525 |
| Neighborhood CD: | 2 |
Owner |
| Name: | JACKSON, MATTHEW S | Owner ID: | 304041 |
| Mailing Address: | APRIL C JACKSON 2032 VIRGINIA AVE COUPEVILLE, WA 98239 | % Ownership: | 100.0000000000% |
| | | Exemptions: | |
Taxes and Assessment Details
Values
| (+) Improvement Homesite Value: | + | $0 | |
| (+) Improvement Non-Homesite Value: | + | $162,723 | |
| (+) Land Homesite Value: | + | $0 | |
| (+) Land Non-Homesite Value: | + | $190,000 | |
| (+) Curr Use (HS): | + | $0 | $0 |
| (+) Curr Use (NHS): | + | $0 | $0 |
| | | -------------------------- | |
| (=) Market Value: | = | $352,723 | |
| (–) Productivity Loss: | – | $0 | |
| | | -------------------------- | |
| (=) Subtotal: | = | $352,723 | |
| (+) Senior Appraised Value: | + | $0 | |
| (+) Non-Senior Appraised Value: | + | $352,723 | |
| | | -------------------------- | |
| (=) Total Appraised Value: | = | $352,723 | |
| (–) Senior Exemption Loss: | – | $0 | |
| (–) Exemption Loss: | – | $0 | |
| | | -------------------------- | |
| (=) Taxable Value: | = | $352,723 | |
Taxing Jurisdiction
| Owner: | JACKSON, MATTHEW S | | |
| % Ownership: | 100.0000000000% | | |
| Total Value: | $352,723 | | |
| Tax Area: | 310 - APPRAISER-Cpvl Schl Dist, outside Cpvl, improved & 1 acre or less |
| CF | Conservation Futures | 0.0313996660 | $352,723 | $352,723 | $11.08 | | |
| CEM2 | Cemetery #2 | 0.0092609791 | $352,723 | $352,723 | $3.27 | | |
| FIRE5 | Fire & Rescue Dist #5 C Whidbey GEN | 1.1892169230 | $352,723 | $352,723 | $419.46 | | |
| FIRE5BOND | Fire & Rescue Dist #5 C Whidbey BOND | 0.1394359503 | $352,723 | $352,723 | $49.18 | | |
| HOBOND | Hospital BOND | 0.1893405597 | $352,723 | $352,723 | $66.78 | | |
| HOGEN | Hospital GEN | 0.3848777722 | $352,723 | $352,723 | $135.76 | | |
| CE | County Current Expense | 0.3674210519 | $352,723 | $352,723 | $129.60 | | |
| CR | County Roads | 0.4614296361 | $352,723 | $352,723 | $162.76 | | |
| ISLANDEMS | Hospital GEN (EMS) | 0.4952018576 | $352,723 | $352,723 | $174.67 | | |
| LIB | Library Sno-Isle GEN | 0.3039084203 | $352,723 | $352,723 | $107.20 | | |
| LIBCAP | Library Sno-Isle BOND (Cap Fac Imp Area) | 0.0528562629 | $352,723 | $352,723 | $18.64 | | |
| POCOUP | Port of Coupeville GEN | 0.1065226063 | $352,723 | $352,723 | $37.57 | | |
| POCOUPIDD | Port of Coupeville IDD | 0.3353038577 | $352,723 | $352,723 | $118.27 | | |
| COUPSDTECH | School 204 CP (TECH) | 0.1215123397 | $352,723 | $352,723 | $42.86 | | |
| SCH204MO | School 204 Enrichment | 0.6416662518 | $352,723 | $352,723 | $226.33 | | |
| ST | State School | 1.4761226122 | $352,723 | $352,723 | $520.66 | | |
| ST2 | State School Part 2 | 0.7953803475 | $352,723 | $352,723 | $280.55 | | |
| | Total Tax Rate: | 7.1008570943 | | | | | |
| | | | | Taxes w/Current Exemptions: | $2,504.64 | | |
| | | | | Taxes w/o Exemptions: | $2,504.64 | | |
Improvement / Building
| Improvement #1: | MANUFACTURED HOME | State Code: | Y | 1296.0 sqft | Value: | $162,723 |
| Bathrooms: | 1 | Bedrooms: | 2 | | Ceiling: | PLASTER PAINTED | Cooling: | EVAP NO DUCT | | Exterior Wall/Cover: | VINYL | Floor Covering: | CARPET 100% | | Floor Structure: | SLAB ON GRADE | Foundation: | SLAB | | Heating: | FHA ELECTRIC | Interior Finish: | PLASTER | | Plumbing Fixture Cnt: | 1 | Roof Slope: | FLAT | | Roof Structure/Cover: | CJ ALUMINIUM HEAVY |   |   |
|
| | Type | Description | Class CD | Sub Class CD | Year Built | Area |
| | BAS | BASE/MAIN FLOOR | 4 | 0 | 2022 | 1296.0 |
| | OWP | OPEN WOOD PORCH W/STEPS | 4 | 0 | 2022 | 60.0 |
| | oUTI | UTILITY | 4 | 0 | 2023 | 192.0 |
| | oUTI | UTILITY | 4 | 0 | 2023 | 120.0 |
Sketch
| No sketches available for this property. |
Property Image
Land
| 1 | 15 | SQ (12001-21780) | 0.3300 | 14374.80 | 0.00 | 0.00 | 1.00 | $190,000 | $0 |
Roll Value History
| 2026 | N/A | N/A | N/A | N/A | N/A |
| 2025 | $162,723 | $190,000 | $0 | $352,723 | $352,723 |
| 2024 | $149,960 | $180,000 | $0 | $329,960 | $329,960 |
| 2023 | $131,727 | $175,000 | $0 | $306,727 | $306,727 |
| 2022 | $119,275 | $150,000 | $0 | $269,275 | $269,275 |
| 2021 | $0 | $30,000 | $0 | $30,000 | $30,000 |
| 2020 | $0 | $30,000 | $0 | $30,000 | $30,000 |
| 2019 | $0 | $30,000 | $0 | $30,000 | $30,000 |
| 2018 | $0 | $30,000 | $0 | $30,000 | $30,000 |
| 2017 | $0 | $30,000 | $0 | $30,000 | $30,000 |
| 2016 | $0 | $30,000 | $0 | $30,000 | $30,000 |
| 2015 | $0 | $30,000 | $0 | $30,000 | $30,000 |
| 2014 | $0 | $30,000 | $0 | $30,000 | $30,000 |
| 2013 | $0 | $30,000 | $0 | $30,000 | $30,000 |
| 2012 | $0 | $30,000 | $0 | $30,000 | $30,000 |
| 2011 | $0 | $30,000 | $0 | $30,000 | $30,000 |
| 2010 | $0 | $30,000 | $0 | $30,000 | $30,000 |
| 2009 | $0 | $45,000 | $0 | $45,000 | $45,000 |
| 2008 | $3,800 | $34,200 | $0 | $38,000 | $38,000 |
| 2007 | $3,375 | $19,125 | $0 | $22,500 | $22,500 |
Deed and Sales History
| 1 | 04/26/2022 | WD | Warranty Deed | HYTTE HOMES LLC | JACKSON, MATTHEW S | | | $409,000.00 | 52939 | 4544524 |
| 2 | 06/27/2020 | WD | Warranty Deed | AURORA | HYTTE HOMES LLC | | | $55,200.00 | 43565 | 4490037 |
| 3 | 01/04/2007 | WD | Warranty Deed | MORAN, LINDA | AURORA, | | | $29,000.00 | 70028 | 4190858 |
| 4 | 06/03/2006 | WD | Warranty Deed | ROOT, CHARLENE K | MORAN, LINDA | | | $18,000.00 | 62541 | 4172803 |
| 5 | 12/03/2002 | QCD | Quit Claim Deed | SKOOR, OLGA K | ROOT, CHARLENE K | | | $0.00 | 25106 | 4041366 |
| 6 | 09/01/1995 | OTHER | Other - Misc. Documents | SKOOR, CHARLES I | SKOOR, OLGA K | | | $0.00 | 66644 | 0 |
| 7 | 01/01/1900 | OTHER | Other - Misc. Documents | Unknown | SKOOR, CHARLES I | | | $0.00 | 0 | 0 |
Payout Agreement
| No payout information available.. |