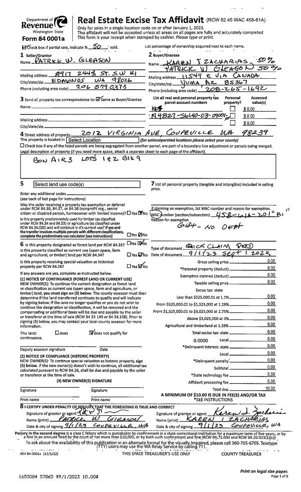
Property
Account |
| Property ID: | 194827 | Abbreviated Legal Description: | BON AIR 3 LOT'S 1 & 2 BLK 9 |
| Geographic ID: | S6140-03-09001-0 | Agent Code: | |
| Type: | Real | | |
| Tax Area: | 310 - APPRAISER-Cpvl Schl Dist, outside Cpvl, improved & 1 acre or less | Land Use Code | 11 |
| Open Space: | N | DFL | N |
| Historic Property: | N | Remodel Property: | N |
| Multi-Family Redevelopment: | N | | |
| Township: | | Section: | |
| Range: | |
Location |
| Address: | 2012 VIRGINIA AVE COUPEVILLE, WA 98239 | Mapsco: | |
| Neighborhood: | Cycle 2 | Map ID: | 525 |
| Neighborhood CD: | 2 |
Owner |
| Name: | ZACHARIAS, KAREN I | Owner ID: | 309931 |
| Mailing Address: | PATRICK W GLEASON 11549 E VIA CANADA YUMA, AZ 85367 | % Ownership: | 100.0000000000% |
| | | Exemptions: | |
Taxes and Assessment Details
Values
| (+) Improvement Homesite Value: | + | $0 | |
| (+) Improvement Non-Homesite Value: | + | $172,013 | |
| (+) Land Homesite Value: | + | $0 | |
| (+) Land Non-Homesite Value: | + | $150,000 | |
| (+) Curr Use (HS): | + | $0 | $0 |
| (+) Curr Use (NHS): | + | $0 | $0 |
| | | -------------------------- | |
| (=) Market Value: | = | $322,013 | |
| (–) Productivity Loss: | – | $0 | |
| | | -------------------------- | |
| (=) Subtotal: | = | $322,013 | |
| (+) Senior Appraised Value: | + | $0 | |
| (+) Non-Senior Appraised Value: | + | $322,013 | |
| | | -------------------------- | |
| (=) Total Appraised Value: | = | $322,013 | |
| (–) Senior Exemption Loss: | – | $0 | |
| (–) Exemption Loss: | – | $0 | |
| | | -------------------------- | |
| (=) Taxable Value: | = | $322,013 | |
Taxing Jurisdiction
| Owner: | ZACHARIAS, KAREN I | | |
| % Ownership: | 100.0000000000% | | |
| Total Value: | $322,013 | | |
| Tax Area: | 310 - APPRAISER-Cpvl Schl Dist, outside Cpvl, improved & 1 acre or less |
| CF | Conservation Futures | 0.0313996660 | $322,013 | $322,013 | $10.11 | | |
| CEM2 | Cemetery #2 | 0.0092609791 | $322,013 | $322,013 | $2.98 | | |
| FIRE5 | Fire & Rescue Dist #5 C Whidbey GEN | 1.1892169230 | $322,013 | $322,013 | $382.94 | | |
| FIRE5BOND | Fire & Rescue Dist #5 C Whidbey BOND | 0.1394359503 | $322,013 | $322,013 | $44.90 | | |
| HOBOND | Hospital BOND | 0.1893405597 | $322,013 | $322,013 | $60.97 | | |
| HOGEN | Hospital GEN | 0.3848777722 | $322,013 | $322,013 | $123.94 | | |
| CE | County Current Expense | 0.3674210519 | $322,013 | $322,013 | $118.31 | | |
| CR | County Roads | 0.4614296361 | $322,013 | $322,013 | $148.59 | | |
| ISLANDEMS | Hospital GEN (EMS) | 0.4952018576 | $322,013 | $322,013 | $159.46 | | |
| LIB | Library Sno-Isle GEN | 0.3039084203 | $322,013 | $322,013 | $97.86 | | |
| LIBCAP | Library Sno-Isle BOND (Cap Fac Imp Area) | 0.0528562629 | $322,013 | $322,013 | $17.02 | | |
| POCOUP | Port of Coupeville GEN | 0.1065226063 | $322,013 | $322,013 | $34.30 | | |
| POCOUPIDD | Port of Coupeville IDD | 0.3353038577 | $322,013 | $322,013 | $107.97 | | |
| COUPSDTECH | School 204 CP (TECH) | 0.1215123397 | $322,013 | $322,013 | $39.13 | | |
| SCH204MO | School 204 Enrichment | 0.6416662518 | $322,013 | $322,013 | $206.62 | | |
| ST | State School | 1.4761226122 | $322,013 | $322,013 | $475.33 | | |
| ST2 | State School Part 2 | 0.7953803475 | $322,013 | $322,013 | $256.12 | | |
| | Total Tax Rate: | 7.1008570943 | | | | | |
| | | | | Taxes w/Current Exemptions: | $2,286.55 | | |
| | | | | Taxes w/o Exemptions: | $2,286.55 | | |
Improvement / Building
| Improvement #1: | RESIDENTIAL | State Code: | Y | 1420.5 sqft | Value: | $172,013 |
| Bathrooms: | 2 | Bedrooms: | 2 | | Ceiling: | DRYWALL PAINTED | Cooling: | HEAT PUMP/CONV/V | | Exterior Wall/Cover: | CEMENT FIBER | Floor Covering: | (NONE) | | Floor Structure: | WOOD W/SUBFLOOR | Foundation: | CONCRETE | | Interior Finish: | (NONE) | Plumbing Fixture Cnt: | 13 | | Roof Slope: | 4" IN 12" | Roof Structure/Cover: | CJ ASPHALT |
|
| | Type | Description | Class CD | Sub Class CD | Year Built | Area |
| | BAS | BASE/MAIN FLOOR | 3 | 0 | 2023 | 1420.5 |
| | AGR | ATTACHED GARAGE | 3 | 0 | 2023 | 430.0 |
Sketch
Property Image
Land
| 1 | 15 | SQ (12001-21780) | 0.3307 | 14405.29 | 0.00 | 0.00 | 1.00 | $150,000 | $0 |
Roll Value History
| 2026 | N/A | N/A | N/A | N/A | N/A |
| 2025 | $172,013 | $150,000 | $0 | $322,013 | $322,013 |
| 2024 | $175,140 | $150,000 | $0 | $325,140 | $325,140 |
| 2023 | $3,000 | $150,000 | $0 | $153,000 | $153,000 |
| 2022 | $3,000 | $150,000 | $0 | $153,000 | $153,000 |
| 2021 | $3,000 | $100,000 | $0 | $103,000 | $103,000 |
| 2020 | $3,000 | $85,000 | $0 | $88,000 | $88,000 |
| 2019 | $3,000 | $130,000 | $0 | $133,000 | $133,000 |
| 2018 | $3,000 | $130,000 | $0 | $133,000 | $133,000 |
| 2017 | $3,000 | $100,000 | $0 | $103,000 | $103,000 |
| 2016 | $3,000 | $75,000 | $0 | $78,000 | $78,000 |
| 2015 | $3,000 | $50,000 | $0 | $53,000 | $53,000 |
| 2014 | $3,000 | $50,000 | $0 | $53,000 | $53,000 |
| 2013 | $3,000 | $50,000 | $0 | $53,000 | $53,000 |
| 2012 | $6,940 | $57,000 | $0 | $63,940 | $63,940 |
| 2011 | $6,940 | $60,000 | $0 | $66,940 | $66,940 |
| 2010 | $6,940 | $24,150 | $0 | $31,090 | $31,090 |
| 2009 | $7,000 | $45,000 | $0 | $52,000 | $52,000 |
| 2008 | $0 | $38,000 | $0 | $38,000 | $38,000 |
| 2007 | $0 | $22,500 | $0 | $22,500 | $22,500 |
Deed and Sales History
| 1 | 09/01/2023 | QCD | Quit Claim Deed | GLEASON, PATRICK W | ZACHARIAS, KAREN I | | | $0.00 | 57865 | 4564271 |
| 2 | 05/26/2009 | BLA | DNU - Boundary Line Adjustment | GLEASON, PATRICK W | GLEASON, PATRICK W | | | $0.00 | 81189 | 4251557 |
| 3 | 07/01/1992 | WD | Warranty Deed | PINDALL, MORGAN G | GLEASON, PATRICK W | | | $0.00 | 23056 | 92014857 |
| 4 | 01/01/1900 | OTHER | Other - Misc. Documents | Unknown | PINDALL, MORGAN G | | | $0.00 | 0 | 0 |
Payout Agreement
| No payout information available.. |