Property
Account |
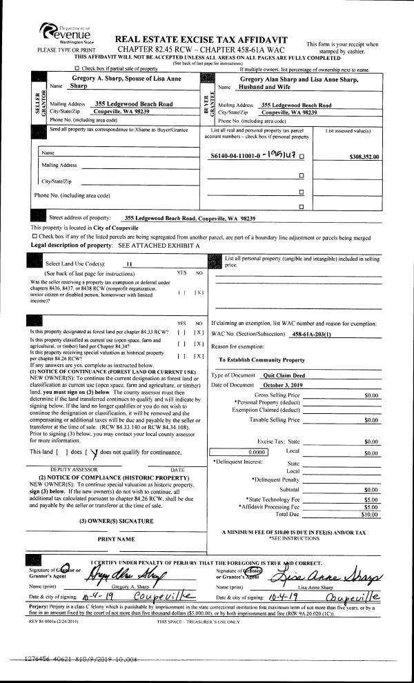
| Property ID: | 195167 | Abbreviated Legal Description: | BON AIR 4 LOT 1 BLK 11 |
| Geographic ID: | S6140-04-11001-0 | Agent Code: | |
| Type: | Real | | |
| Tax Area: | 310 - APPRAISER-Cpvl Schl Dist, outside Cpvl, improved & 1 acre or less | Land Use Code | 11 |
| Open Space: | N | DFL | N |
| Historic Property: | N | Remodel Property: | N |
| Multi-Family Redevelopment: | N | | |
| Township: | | Section: | |
| Range: | |
Location |
| Address: | 355 LEDGEWOOD BEACH RD COUPEVILLE, WA 98239 | Mapsco: | |
| Neighborhood: | Cycle 2 | Map ID: | 521 |
| Neighborhood CD: | 2 |
Owner |
| Name: | GOEI, SAMUEL | Owner ID: | 297272 |
| Mailing Address: | FRANCES GOEI 355 LEDGEWOOD BEACH DR COUPEVILLE, WA 98239 | % Ownership: | 100.0000000000% |
| | | Exemptions: | |
Taxes and Assessment Details
Values
| (+) Improvement Homesite Value: | + | $0 | |
| (+) Improvement Non-Homesite Value: | + | $313,997 | |
| (+) Land Homesite Value: | + | $0 | |
| (+) Land Non-Homesite Value: | + | $190,000 | |
| (+) Curr Use (HS): | + | $0 | $0 |
| (+) Curr Use (NHS): | + | $0 | $0 |
| | | -------------------------- | |
| (=) Market Value: | = | $503,997 | |
| (–) Productivity Loss: | – | $0 | |
| | | -------------------------- | |
| (=) Subtotal: | = | $503,997 | |
| (+) Senior Appraised Value: | + | $0 | |
| (+) Non-Senior Appraised Value: | + | $503,997 | |
| | | -------------------------- | |
| (=) Total Appraised Value: | = | $503,997 | |
| (–) Senior Exemption Loss: | – | $0 | |
| (–) Exemption Loss: | – | $0 | |
| | | -------------------------- | |
| (=) Taxable Value: | = | $503,997 | |
Taxing Jurisdiction
| Owner: | GOEI, SAMUEL | | |
| % Ownership: | 100.0000000000% | | |
| Total Value: | $503,997 | | |
| Tax Area: | 310 - APPRAISER-Cpvl Schl Dist, outside Cpvl, improved & 1 acre or less |
| CF | Conservation Futures | 0.0313996660 | $503,997 | $503,997 | $15.83 | | |
| CEM2 | Cemetery #2 | 0.0092609791 | $503,997 | $503,997 | $4.67 | | |
| FIRE5 | Fire & Rescue Dist #5 C Whidbey GEN | 1.1892169230 | $503,997 | $503,997 | $599.36 | | |
| FIRE5BOND | Fire & Rescue Dist #5 C Whidbey BOND | 0.1394359503 | $503,997 | $503,997 | $70.28 | | |
| HOBOND | Hospital BOND | 0.1893405597 | $503,997 | $503,997 | $95.43 | | |
| HOGEN | Hospital GEN | 0.3848777722 | $503,997 | $503,997 | $193.98 | | |
| CE | County Current Expense | 0.3674210519 | $503,997 | $503,997 | $185.18 | | |
| CR | County Roads | 0.4614296361 | $503,997 | $503,997 | $232.56 | | |
| ISLANDEMS | Hospital GEN (EMS) | 0.4952018576 | $503,997 | $503,997 | $249.58 | | |
| LIB | Library Sno-Isle GEN | 0.3039084203 | $503,997 | $503,997 | $153.17 | | |
| LIBCAP | Library Sno-Isle BOND (Cap Fac Imp Area) | 0.0528562629 | $503,997 | $503,997 | $26.64 | | |
| POCOUP | Port of Coupeville GEN | 0.1065226063 | $503,997 | $503,997 | $53.69 | | |
| POCOUPIDD | Port of Coupeville IDD | 0.3353038577 | $503,997 | $503,997 | $168.99 | | |
| COUPSDTECH | School 204 CP (TECH) | 0.1215123397 | $503,997 | $503,997 | $61.24 | | |
| SCH204MO | School 204 Enrichment | 0.6416662518 | $503,997 | $503,997 | $323.40 | | |
| ST | State School | 1.4761226122 | $503,997 | $503,997 | $743.96 | | |
| ST2 | State School Part 2 | 0.7953803475 | $503,997 | $503,997 | $400.87 | | |
| | Total Tax Rate: | 7.1008570943 | | | | | |
| | | | | Taxes w/Current Exemptions: | $3,578.83 | | |
| | | | | Taxes w/o Exemptions: | $3,578.83 | | |
Improvement / Building
| Improvement #1: | RESIDENTIAL | State Code: | Y | 1760.3 sqft | Value: | $313,997 |
| Bathrooms: | 2.5 | Bedrooms: | 3 | | Ceiling: | DRYWALL PAINTED | Exterior Wall/Cover: | VINYL | | Floor Covering: | CARPET/VINYL 80-20 | Floor Structure: | WOOD W/SUBFLOOR | | Foundation: | CONCRETE | Heating: | FHA GAS | | Interior Finish: | DRYWALL PAINT | Plumbing Fixture Cnt: | 11 | | Roof Slope: | 12" IN 12" | Roof Structure/Cover: | CJ ASPHALT |
|
| | Type | Description | Class CD | Sub Class CD | Year Built | Area |
| | BAS | BASE/MAIN FLOOR | 3 | 0 | 2009 | 809.3 |
| | AGR | ATTACHED GARAGE | 3 | 0 | 2009 | 546.0 |
| | UPS | UPPER STORY | 3 | 0 | 2009 | 951.0 |
Sketch
Property Image
Land
| 1 | 13 | SQ (06001-08000) | 0.1700 | 7405.20 | 0.00 | 0.00 | 1.00 | $190,000 | $0 |
Roll Value History
| 2026 | N/A | N/A | N/A | N/A | N/A |
| 2025 | $313,997 | $190,000 | $0 | $503,997 | $503,997 |
| 2024 | $334,392 | $180,000 | $0 | $514,392 | $514,392 |
| 2023 | $337,365 | $175,000 | $0 | $512,365 | $512,365 |
| 2022 | $307,841 | $150,000 | $0 | $457,841 | $457,841 |
| 2021 | $269,872 | $100,000 | $0 | $369,872 | $369,872 |
| 2020 | $238,084 | $85,000 | $0 | $323,084 | $323,084 |
| 2019 | $178,352 | $130,000 | $0 | $308,352 | $308,352 |
| 2018 | $176,382 | $130,000 | $0 | $306,382 | $306,382 |
| 2017 | $177,315 | $100,000 | $0 | $277,315 | $277,315 |
| 2016 | $179,264 | $75,000 | $0 | $254,264 | $254,264 |
| 2015 | $181,213 | $50,000 | $0 | $231,213 | $231,213 |
| 2014 | $183,161 | $50,000 | $0 | $233,161 | $233,161 |
| 2013 | $185,109 | $50,000 | $0 | $235,109 | $235,109 |
| 2012 | $189,476 | $57,000 | $0 | $246,476 | $246,476 |
| 2011 | $191,317 | $60,000 | $0 | $251,317 | $251,317 |
| 2010 | $195,870 | $35,000 | $0 | $230,870 | $230,870 |
| 2009 | $203,979 | $65,000 | $0 | $268,979 | $268,979 |
| 2008 | $0 | $38,000 | $0 | $38,000 | $38,000 |
| 2007 | $0 | $22,500 | $0 | $22,500 | $22,500 |
Deed and Sales History
| 1 | 12/09/2020 | WD | Warranty Deed | SHARP, GREGORY ALAN | GOEI, SAMUEL | | | $450,000.00 | 46078 | 4504871 |
| 2 | 10/03/2019 | QCD | Quit Claim Deed | SHARP, GREGORY A | SHARP, GREGORY ALAN | | | $0.00 | 40621 | 4473062 |
| 3 | 06/18/2009 | ESTSEPPROP | Establish Separate Property | SHARP, GREGORY A | SHARP, GREGORY A | | | $0.00 | 91375 | 4254237 |
| 4 | 06/18/2009 | WD | Warranty Deed | OMEGA HOME CONSTRUCTION LLC, | SHARP, GREGORY A | | | $251,400.00 | 91374 | 4254326 |
| 5 | 08/20/2008 | WD | Warranty Deed | GUYTON, BRIAN EDWARD | OMEGA HOME CONSTRUCTION LLC, | | | $32,000.00 | 82199 | 4235434 |
| 6 | 04/18/2005 | PRD | Personal Representatives Deed | LOVE, ANITA M | GUYTON, BRIAN EDWARD | | | $0.00 | 52207 | 4134583 |
| 7 | 04/19/2002 | 5 | DNU - Marriage License/Name Change | LOVE, BERT | LOVE, ANITA M | | | $9,833.00 | 69390 | 4017218 |
| 8 | 09/26/1966 | REC | Real Estate Contract | Unknown | LOVE, BERT | | | $0.00 | 23381 | 0 |
Payout Agreement
| No payout information available.. |