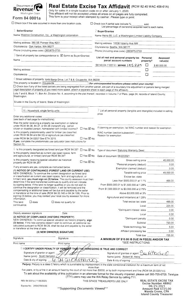
Property
Account |
| Property ID: | 195229 | Abbreviated Legal Description: | BON AIR 4 LOTS 7 & 8 BLK 11 |
| Geographic ID: | S6140-04-11007-0 | Agent Code: | |
| Type: | Real | | |
| Tax Area: | 310 - APPRAISER-Cpvl Schl Dist, outside Cpvl, improved & 1 acre or less | Land Use Code | 11 |
| Open Space: | N | DFL | N |
| Historic Property: | N | Remodel Property: | N |
| Multi-Family Redevelopment: | N | | |
| Township: | | Section: | |
| Range: | |
Location |
| Address: | 1968 BANJO DR COUPEVILLE, WA 98239 | Mapsco: | |
| Neighborhood: | Cycle 2 | Map ID: | 521 |
| Neighborhood CD: | 2 |
Owner |
| Name: | FRIEND, DENNIS L | Owner ID: | 310225 |
| Mailing Address: | TONG FRIEND 1968 BANJO DR COUPEVILLE, WA 98239 | % Ownership: | 100.0000000000% |
| | | Exemptions: | |
Taxes and Assessment Details
Values
| (+) Improvement Homesite Value: | + | $0 | |
| (+) Improvement Non-Homesite Value: | + | $155,392 | |
| (+) Land Homesite Value: | + | $0 | |
| (+) Land Non-Homesite Value: | + | $190,000 | |
| (+) Curr Use (HS): | + | $0 | $0 |
| (+) Curr Use (NHS): | + | $0 | $0 |
| | | -------------------------- | |
| (=) Market Value: | = | $345,392 | |
| (–) Productivity Loss: | – | $0 | |
| | | -------------------------- | |
| (=) Subtotal: | = | $345,392 | |
| (+) Senior Appraised Value: | + | $0 | |
| (+) Non-Senior Appraised Value: | + | $345,392 | |
| | | -------------------------- | |
| (=) Total Appraised Value: | = | $345,392 | |
| (–) Senior Exemption Loss: | – | $0 | |
| (–) Exemption Loss: | – | $0 | |
| | | -------------------------- | |
| (=) Taxable Value: | = | $345,392 | |
Taxing Jurisdiction
| Owner: | FRIEND, DENNIS L | | |
| % Ownership: | 100.0000000000% | | |
| Total Value: | $345,392 | | |
| Tax Area: | 310 - APPRAISER-Cpvl Schl Dist, outside Cpvl, improved & 1 acre or less |
| CF | Conservation Futures | 0.0313996660 | $345,392 | $345,392 | $10.85 | | |
| CEM2 | Cemetery #2 | 0.0092609791 | $345,392 | $345,392 | $3.20 | | |
| FIRE5 | Fire & Rescue Dist #5 C Whidbey GEN | 1.1892169230 | $345,392 | $345,392 | $410.75 | | |
| FIRE5BOND | Fire & Rescue Dist #5 C Whidbey BOND | 0.1394359503 | $345,392 | $345,392 | $48.16 | | |
| HOBOND | Hospital BOND | 0.1893405597 | $345,392 | $345,392 | $65.40 | | |
| HOGEN | Hospital GEN | 0.3848777722 | $345,392 | $345,392 | $132.93 | | |
| CE | County Current Expense | 0.3674210519 | $345,392 | $345,392 | $126.90 | | |
| CR | County Roads | 0.4614296361 | $345,392 | $345,392 | $159.37 | | |
| ISLANDEMS | Hospital GEN (EMS) | 0.4952018576 | $345,392 | $345,392 | $171.04 | | |
| LIB | Library Sno-Isle GEN | 0.3039084203 | $345,392 | $345,392 | $104.97 | | |
| LIBCAP | Library Sno-Isle BOND (Cap Fac Imp Area) | 0.0528562629 | $345,392 | $345,392 | $18.26 | | |
| POCOUP | Port of Coupeville GEN | 0.1065226063 | $345,392 | $345,392 | $36.79 | | |
| POCOUPIDD | Port of Coupeville IDD | 0.3353038577 | $345,392 | $345,392 | $115.81 | | |
| COUPSDTECH | School 204 CP (TECH) | 0.1215123397 | $345,392 | $345,392 | $41.97 | | |
| SCH204MO | School 204 Enrichment | 0.6416662518 | $345,392 | $345,392 | $221.63 | | |
| ST | State School | 1.4761226122 | $345,392 | $345,392 | $509.84 | | |
| ST2 | State School Part 2 | 0.7953803475 | $345,392 | $345,392 | $274.72 | | |
| | Total Tax Rate: | 7.1008570943 | | | | | |
| | | | | Taxes w/Current Exemptions: | $2,452.59 | | |
| | | | | Taxes w/o Exemptions: | $2,452.59 | | |
Improvement / Building
| Improvement #1: | MANUFACTURED HOME | State Code: | Y | 1265.0 sqft | Value: | $155,392 |
| Bathrooms: | 2 | Bedrooms: | 3 | | Ceiling: | PLASTER PAINTED | Cooling: | EVAP NO DUCT | | Exterior Wall/Cover: | VINYL | Floor Covering: | CARPET 100% | | Floor Structure: | SLAB ON GRADE | Foundation: | SLAB | | Heating: | FHA ELECTRIC | Interior Finish: | PLASTER | | Plumbing Fixture Cnt: | 1 | Roof Slope: | FLAT | | Roof Structure/Cover: | CJ ALUMINIUM HEAVY |   |   |
|
| | Type | Description | Class CD | Sub Class CD | Year Built | Area |
| | BAS | BASE/MAIN FLOOR | 4 | 0 | 2023 | 1265.0 |
| | OWP | OPEN WOOD PORCH W/STEPS | 4 | 0 | 2023 | 25.0 |
Sketch
Property Image
Land
| 1 | 15 | SQ (12001-21780) | 0.3300 | 14374.80 | 0.00 | 0.00 | 1.00 | $190,000 | $0 |
Roll Value History
| 2026 | N/A | N/A | N/A | N/A | N/A |
| 2025 | $155,392 | $190,000 | $0 | $345,392 | $345,392 |
| 2024 | $156,977 | $180,000 | $0 | $336,977 | $336,977 |
| 2023 | $136,503 | $45,000 | $0 | $181,503 | $181,503 |
| 2022 | $0 | $45,000 | $0 | $45,000 | $45,000 |
| 2021 | $0 | $30,000 | $0 | $30,000 | $30,000 |
| 2020 | $0 | $30,000 | $0 | $30,000 | $30,000 |
| 2019 | $0 | $30,000 | $0 | $30,000 | $30,000 |
| 2018 | $0 | $30,000 | $0 | $30,000 | $30,000 |
| 2017 | $0 | $30,000 | $0 | $30,000 | $30,000 |
| 2016 | $0 | $30,000 | $0 | $30,000 | $30,000 |
| 2015 | $0 | $30,000 | $0 | $30,000 | $30,000 |
| 2014 | $0 | $30,000 | $0 | $30,000 | $30,000 |
| 2013 | $0 | $30,000 | $0 | $30,000 | $30,000 |
| 2012 | $0 | $45,000 | $0 | $45,000 | $45,000 |
| 2011 | $0 | $45,000 | $0 | $45,000 | $45,000 |
| 2010 | $0 | $45,000 | $0 | $45,000 | $45,000 |
| 2009 | $0 | $65,000 | $0 | $65,000 | $65,000 |
| 2008 | $0 | $38,000 | $0 | $38,000 | $38,000 |
| 2007 | $0 | $27,000 | $0 | $27,000 | $27,000 |
Deed and Sales History
| 1 | 09/13/2023 | WD | Warranty Deed | HEINZ 95 LLC | FRIEND, DENNIS L | | | $368,961.00 | 58129 | 4565262 |
| 2 | 06/22/2021 | WD | Warranty Deed | WALDRON CONSTRUCTION INC | HEINZ 95 LLC | | | $45,000.00 | 48862 | 4522742 |
| 3 | 11/24/2020 | WD | Warranty Deed | REED, MALCOLM | WALDRON CONSTRUCTION INC | | | $37,000.00 | 45940 | 4503832 |
| 4 | 08/09/2005 | WD | Warranty Deed | INC, WORLD VISION | REED, MALCOLM | | | $25,000.00 | 53905 | 4143720 |
| 5 | 07/21/2003 | QCD | Quit Claim Deed | DEPOLO, TERY B | INC, WORLD VISION | | | $0.00 | 34069 | 4074770 |
| 6 | 04/24/2003 | QCD | Quit Claim Deed | TUG CHEYENNE INC, | DEPOLO, TERY B | | | $0.00 | 31986 | 4058699 |
| 7 | 12/11/2001 | BLA | DNU - Boundary Line Adjustment | TUG, CHEYENNE I | TUG CHEYENNE INC, | | | $0.00 | 69224 | 20028179 |
| 8 | 12/01/1993 | QCD | Quit Claim Deed | SNOOK, EDWIN N | TUG, CHEYENNE I | | | $0.00 | 34820 | 93025166 |
| 9 | 01/01/1900 | OTHER | Other - Misc. Documents | Unknown | SNOOK, EDWIN N | | | $0.00 | 0 | 0 |
Payout Agreement
| No payout information available.. |