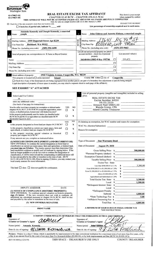
Property
Account |
| Property ID: | 195746 | Abbreviated Legal Description: | BON AIR 4 LOTS 2 & 3 BLK 15 |
| Geographic ID: | S6140-04-15002-0 | Agent Code: | |
| Type: | Real | | |
| Tax Area: | 310 - APPRAISER-Cpvl Schl Dist, outside Cpvl, improved & 1 acre or less | Land Use Code | 11 |
| Open Space: | N | DFL | N |
| Historic Property: | N | Remodel Property: | N |
| Multi-Family Redevelopment: | N | | |
| Township: | | Section: | |
| Range: | |
Location |
| Address: | 1910 VIRGINIA AVE COUPEVILLE, WA 98239 | Mapsco: | |
| Neighborhood: | Cycle 2 | Map ID: | 521 |
| Neighborhood CD: | 2 |
Owner |
| Name: | ELSBREE, JOHN | Owner ID: | 295961 |
| Mailing Address: | ANNETTE ELSBREE PO BOX 246 GREENBANK, WA 98253 | % Ownership: | 100.0000000000% |
| | | Exemptions: | |
Taxes and Assessment Details
Values
| (+) Improvement Homesite Value: | + | $0 | |
| (+) Improvement Non-Homesite Value: | + | $207,946 | |
| (+) Land Homesite Value: | + | $0 | |
| (+) Land Non-Homesite Value: | + | $190,000 | |
| (+) Curr Use (HS): | + | $0 | $0 |
| (+) Curr Use (NHS): | + | $0 | $0 |
| | | -------------------------- | |
| (=) Market Value: | = | $397,946 | |
| (–) Productivity Loss: | – | $0 | |
| | | -------------------------- | |
| (=) Subtotal: | = | $397,946 | |
| (+) Senior Appraised Value: | + | $0 | |
| (+) Non-Senior Appraised Value: | + | $397,946 | |
| | | -------------------------- | |
| (=) Total Appraised Value: | = | $397,946 | |
| (–) Senior Exemption Loss: | – | $0 | |
| (–) Exemption Loss: | – | $0 | |
| | | -------------------------- | |
| (=) Taxable Value: | = | $397,946 | |
Taxing Jurisdiction
| Owner: | ELSBREE, JOHN | | |
| % Ownership: | 100.0000000000% | | |
| Total Value: | $397,946 | | |
| Tax Area: | 310 - APPRAISER-Cpvl Schl Dist, outside Cpvl, improved & 1 acre or less |
| CF | Conservation Futures | 0.0313996660 | $397,946 | $397,946 | $12.50 | | |
| CEM2 | Cemetery #2 | 0.0092609791 | $397,946 | $397,946 | $3.69 | | |
| FIRE5 | Fire & Rescue Dist #5 C Whidbey GEN | 1.1892169230 | $397,946 | $397,946 | $473.24 | | |
| FIRE5BOND | Fire & Rescue Dist #5 C Whidbey BOND | 0.1394359503 | $397,946 | $397,946 | $55.49 | | |
| HOBOND | Hospital BOND | 0.1893405597 | $397,946 | $397,946 | $75.35 | | |
| HOGEN | Hospital GEN | 0.3848777722 | $397,946 | $397,946 | $153.16 | | |
| CE | County Current Expense | 0.3674210519 | $397,946 | $397,946 | $146.21 | | |
| CR | County Roads | 0.4614296361 | $397,946 | $397,946 | $183.62 | | |
| ISLANDEMS | Hospital GEN (EMS) | 0.4952018576 | $397,946 | $397,946 | $197.06 | | |
| LIB | Library Sno-Isle GEN | 0.3039084203 | $397,946 | $397,946 | $120.94 | | |
| LIBCAP | Library Sno-Isle BOND (Cap Fac Imp Area) | 0.0528562629 | $397,946 | $397,946 | $21.03 | | |
| POCOUP | Port of Coupeville GEN | 0.1065226063 | $397,946 | $397,946 | $42.39 | | |
| POCOUPIDD | Port of Coupeville IDD | 0.3353038577 | $397,946 | $397,946 | $133.43 | | |
| COUPSDTECH | School 204 CP (TECH) | 0.1215123397 | $397,946 | $397,946 | $48.36 | | |
| SCH204MO | School 204 Enrichment | 0.6416662518 | $397,946 | $397,946 | $255.35 | | |
| ST | State School | 1.4761226122 | $397,946 | $397,946 | $587.42 | | |
| ST2 | State School Part 2 | 0.7953803475 | $397,946 | $397,946 | $316.52 | | |
| | Total Tax Rate: | 7.1008570943 | | | | | |
| | | | | Taxes w/Current Exemptions: | $2,825.76 | | |
| | | | | Taxes w/o Exemptions: | $2,825.76 | | |
Improvement / Building
| Improvement #1: | RESIDENTIAL | State Code: | Y | 1686.2 sqft | Value: | $207,946 |
| Bathrooms: | 1 | Bedrooms: | 3 | | Ceiling: | DRYWALL PAINTED | Exterior Wall/Cover: | PLY/HARDBOARD T-111 | | Floor Covering: | TILE CERAMIC | Floor Structure: | WOOD W/SUBFLOOR | | Foundation: | CONCRETE | Heating: | WALL HEAT ELECTRIC | | Interior Finish: | DRYWALL PAINT | Plumbing Fixture Cnt: | 7 | | Roof Slope: | 5" IN 12" | Roof Structure/Cover: | CJ ASPHALT |
|
| | Type | Description | Class CD | Sub Class CD | Year Built | Area |
| | BAS | BASE/MAIN FLOOR | 3 | 0 | 1994 | 1686.2 |
| | OP3 | OPEN PORCH W/ROOF | 3 | 0 | 1994 | 30.0 |
| | AGR | ATTACHED GARAGE | 3 | 0 | 1994 | 448.0 |
| | OP2 | OPEN PORCH W/STEPS | 3 | 0 | 1994 | 260.0 |
Sketch
| No sketches available for this property. |
Property Image
Land
| 1 | 15 | SQ (12001-21780) | 0.3300 | 14374.80 | 0.00 | 0.00 | 1.00 | $190,000 | $0 |
Roll Value History
| 2026 | N/A | N/A | N/A | N/A | N/A |
| 2025 | $207,946 | $190,000 | $0 | $397,946 | $397,946 |
| 2024 | $224,803 | $180,000 | $0 | $404,803 | $404,803 |
| 2023 | $227,410 | $175,000 | $0 | $402,410 | $402,410 |
| 2022 | $208,280 | $150,000 | $0 | $358,280 | $358,280 |
| 2021 | $183,164 | $100,000 | $0 | $283,164 | $283,164 |
| 2020 | $148,473 | $85,000 | $0 | $233,473 | $233,473 |
| 2019 | $105,788 | $130,000 | $0 | $235,788 | $235,788 |
| 2018 | $105,381 | $130,000 | $0 | $235,381 | $235,381 |
| 2017 | $106,026 | $100,000 | $0 | $206,026 | $206,026 |
| 2016 | $107,321 | $75,000 | $0 | $182,321 | $182,321 |
| 2015 | $108,614 | $50,000 | $0 | $158,614 | $158,614 |
| 2014 | $109,907 | $50,000 | $0 | $159,907 | $159,907 |
| 2013 | $111,200 | $80,000 | $0 | $191,200 | $191,200 |
| 2012 | $101,360 | $57,000 | $0 | $158,360 | $158,360 |
| 2011 | $102,562 | $60,000 | $0 | $162,562 | $162,562 |
| 2010 | $108,095 | $35,000 | $0 | $143,095 | $143,095 |
| 2009 | $112,768 | $65,000 | $0 | $177,768 | $177,768 |
| 2008 | $114,215 | $76,000 | $0 | $190,215 | $190,215 |
| 2007 | $115,679 | $85,000 | $0 | $200,679 | $200,679 |
Deed and Sales History
| 1 | 08/29/2020 | WD | Warranty Deed | KENNEDY, JOSEPH | ELSBREE, JOHN | | | $300,000.00 | 44591 | 4495675 |
| 2 | 06/11/2016 | WD | Warranty Deed | WILSON, STEPHEN B | KENNEDY, JOSEPH | | | $217,000.00 | 24795 | 4401319 |
| 3 | 09/20/2006 | WD | Warranty Deed | GRIMM, DAVID LEONARD | WILSON, STEPHEN B | | | $232,000.00 | 64163 | 4182830 |
| 4 | 05/12/1998 | WD | Warranty Deed | OLSEN, MARGARET | GRIMM, DAVID LEONARD | | | $109,500.00 | 81836 | 98009751 |
| 5 | 05/01/1994 | WD | Warranty Deed | KELLY, CHRIS E | OLSEN, MARGARET | | | $85,000.00 | 42114 | 94012176 |
| 6 | 03/01/1994 | WD | Warranty Deed | RUSH, H J | KELLY, CHRIS E | | | $3,050.00 | 40861 | 94005663 |
| 7 | 03/01/1982 | REC | Real Estate Contract | BROWNELL, BARBARA | RUSH, H J | | | $1.00 | 59396 | 0 |
| 8 | 06/01/1962 | QCD | Quit Claim Deed | RUSH, H J | BROWNELL, BARBARA | | | $0.00 | 34188 | 93021899 |
| 9 | 01/01/1900 | OTHER | Other - Misc. Documents | Unknown | GRIMM, DAVID L | | | $0.00 | 81836 | 98009751 |
| 10 | 01/01/1900 | OTHER | Other - Misc. Documents | GRIMM, DAVID L | RUSH, H J | | | $0.00 | 0 | 0 |
Payout Agreement
| No payout information available.. |