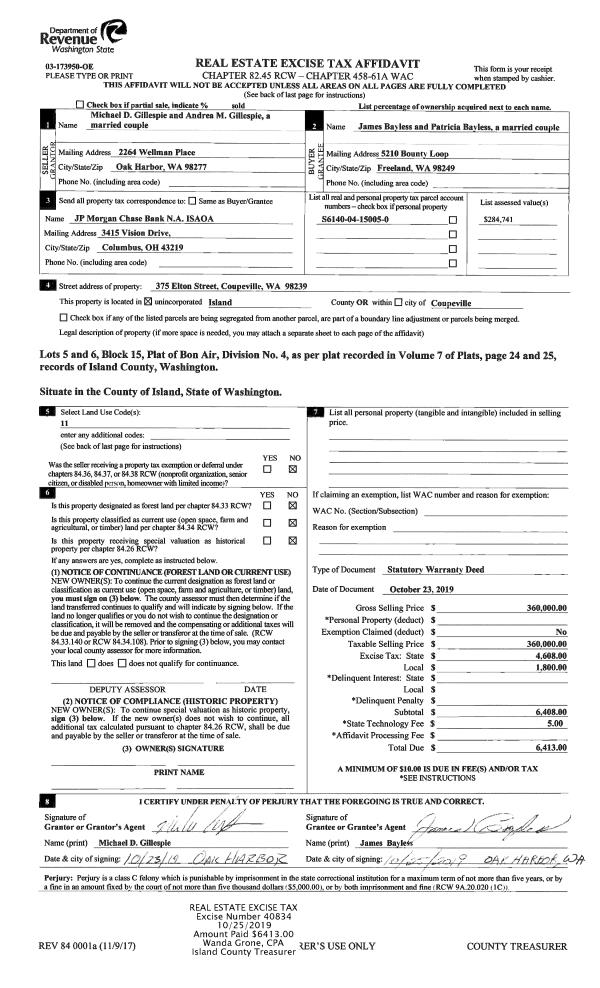
Property
Account |
| Property ID: | 195773 | Abbreviated Legal Description: | BON AIR 4 LOTS 5 & 6 BLK 15 |
| Geographic ID: | S6140-04-15005-0 | Agent Code: | |
| Type: | Real | | |
| Tax Area: | 310 - APPRAISER-Cpvl Schl Dist, outside Cpvl, improved & 1 acre or less | Land Use Code | 11 |
| Open Space: | N | DFL | N |
| Historic Property: | N | Remodel Property: | N |
| Multi-Family Redevelopment: | N | | |
| Township: | | Section: | |
| Range: | |
Location |
| Address: | 375 ELTON ST COUPEVILLE, WA 98239 | Mapsco: | |
| Neighborhood: | Cycle 2 | Map ID: | 521 |
| Neighborhood CD: | 2 |
Owner |
| Name: | BAYLESS, JAMES | Owner ID: | 292353 |
| Mailing Address: | PATRICIA BAYLESS 5210 BOUNTY LOOP FREELAND, WA 98249-9628 | % Ownership: | 100.0000000000% |
| | | Exemptions: | |
Taxes and Assessment Details
Values
| (+) Improvement Homesite Value: | + | $0 | |
| (+) Improvement Non-Homesite Value: | + | $304,452 | |
| (+) Land Homesite Value: | + | $0 | |
| (+) Land Non-Homesite Value: | + | $190,000 | |
| (+) Curr Use (HS): | + | $0 | $0 |
| (+) Curr Use (NHS): | + | $0 | $0 |
| | | -------------------------- | |
| (=) Market Value: | = | $494,452 | |
| (–) Productivity Loss: | – | $0 | |
| | | -------------------------- | |
| (=) Subtotal: | = | $494,452 | |
| (+) Senior Appraised Value: | + | $0 | |
| (+) Non-Senior Appraised Value: | + | $494,452 | |
| | | -------------------------- | |
| (=) Total Appraised Value: | = | $494,452 | |
| (–) Senior Exemption Loss: | – | $0 | |
| (–) Exemption Loss: | – | $0 | |
| | | -------------------------- | |
| (=) Taxable Value: | = | $494,452 | |
Taxing Jurisdiction
| Owner: | BAYLESS, JAMES | | |
| % Ownership: | 100.0000000000% | | |
| Total Value: | $494,452 | | |
| Tax Area: | 310 - APPRAISER-Cpvl Schl Dist, outside Cpvl, improved & 1 acre or less |
| CF | Conservation Futures | 0.0313996660 | $494,452 | $494,452 | $15.53 | | |
| CEM2 | Cemetery #2 | 0.0092609791 | $494,452 | $494,452 | $4.58 | | |
| FIRE5 | Fire & Rescue Dist #5 C Whidbey GEN | 1.1892169230 | $494,452 | $494,452 | $588.01 | | |
| FIRE5BOND | Fire & Rescue Dist #5 C Whidbey BOND | 0.1394359503 | $494,452 | $494,452 | $68.94 | | |
| HOBOND | Hospital BOND | 0.1893405597 | $494,452 | $494,452 | $93.62 | | |
| HOGEN | Hospital GEN | 0.3848777722 | $494,452 | $494,452 | $190.30 | | |
| CE | County Current Expense | 0.3674210519 | $494,452 | $494,452 | $181.67 | | |
| CR | County Roads | 0.4614296361 | $494,452 | $494,452 | $228.15 | | |
| ISLANDEMS | Hospital GEN (EMS) | 0.4952018576 | $494,452 | $494,452 | $244.85 | | |
| LIB | Library Sno-Isle GEN | 0.3039084203 | $494,452 | $494,452 | $150.27 | | |
| LIBCAP | Library Sno-Isle BOND (Cap Fac Imp Area) | 0.0528562629 | $494,452 | $494,452 | $26.13 | | |
| POCOUP | Port of Coupeville GEN | 0.1065226063 | $494,452 | $494,452 | $52.67 | | |
| POCOUPIDD | Port of Coupeville IDD | 0.3353038577 | $494,452 | $494,452 | $165.79 | | |
| COUPSDTECH | School 204 CP (TECH) | 0.1215123397 | $494,452 | $494,452 | $60.08 | | |
| SCH204MO | School 204 Enrichment | 0.6416662518 | $494,452 | $494,452 | $317.27 | | |
| ST | State School | 1.4761226122 | $494,452 | $494,452 | $729.87 | | |
| ST2 | State School Part 2 | 0.7953803475 | $494,452 | $494,452 | $393.28 | | |
| | Total Tax Rate: | 7.1008570943 | | | | | |
| | | | | Taxes w/Current Exemptions: | $3,511.01 | | |
| | | | | Taxes w/o Exemptions: | $3,511.01 | | |
Improvement / Building
| Improvement #1: | RESIDENTIAL | State Code: | Y | 1356.6 sqft | Value: | $304,452 |
| Bathrooms: | 2 | Bedrooms: | 2 | | Ceiling: | DRYWALL PAINTED | Cooling: | HEAT PUMP/CONV/V | | Exterior Wall/Cover: | CEMENT FIBER | Floor Covering: | CARPET/VINYL 80-20 | | Floor Structure: | WOOD W/SUBFLOOR | Foundation: | CONCRETE | | Interior Finish: | DRYWALL PAINT | Plumbing Fixture Cnt: | 9 | | Roof Slope: | 5" IN 12" | Roof Structure/Cover: | CJ ASPHALT |
|
| | Type | Description | Class CD | Sub Class CD | Year Built | Area |
| | BAS | BASE/MAIN FLOOR | 3 | 0 | 1990 | 1356.6 |
| | OWP | OPEN WOOD PORCH W/STEPS | 3 | 0 | 1990 | 642.5 |
| | OWP | OPEN WOOD PORCH W/STEPS | 3 | 0 | 1990 | 186.2 |
| | UTY | STORAGE/UTILITY | 3 | 0 | 1990 | 1224.0 |
Sketch
Property Image
Land
| 1 | 15 | SQ (12001-21780) | 0.3300 | 14374.80 | 0.00 | 0.00 | 1.00 | $190,000 | $0 |
Roll Value History
| 2026 | N/A | N/A | N/A | N/A | N/A |
| 2025 | $304,452 | $190,000 | $0 | $494,452 | $494,452 |
| 2024 | $308,024 | $180,000 | $0 | $488,024 | $488,024 |
| 2023 | $311,596 | $175,000 | $0 | $486,596 | $486,596 |
| 2022 | $285,382 | $150,000 | $0 | $435,382 | $435,382 |
| 2021 | $250,985 | $100,000 | $0 | $350,985 | $350,985 |
| 2020 | $243,461 | $85,000 | $0 | $328,461 | $328,461 |
| 2019 | $154,741 | $130,000 | $0 | $284,741 | $284,741 |
| 2018 | $138,946 | $130,000 | $0 | $268,946 | $268,946 |
| 2017 | $139,632 | $100,000 | $0 | $239,632 | $239,632 |
| 2016 | $141,081 | $75,000 | $0 | $216,081 | $216,081 |
| 2015 | $142,530 | $50,000 | $0 | $192,530 | $192,530 |
| 2014 | $138,181 | $50,000 | $0 | $188,181 | $188,181 |
| 2013 | $139,632 | $50,000 | $0 | $189,632 | $189,632 |
| 2012 | $126,099 | $57,000 | $0 | $183,099 | $183,099 |
| 2011 | $127,538 | $60,000 | $0 | $187,538 | $187,538 |
| 2010 | $131,055 | $60,000 | $0 | $191,055 | $191,055 |
| 2009 | $136,606 | $75,000 | $0 | $211,606 | $211,606 |
| 2008 | $135,582 | $80,100 | $0 | $215,682 | $215,682 |
| 2007 | $121,036 | $90,000 | $0 | $211,036 | $211,036 |
Deed and Sales History
| 1 | 10/23/2019 | WD | Warranty Deed | GILLESPIE, MICHALE D | BAYLESS, JAMES | | | $360,000.00 | 40834 | 4474095 |
| 2 | 01/05/2015 | WD | Warranty Deed | HULST, DONALD J | GILLESPIE, MICHALE D | | | $238,000.00 | 18200 | 4371682 |
| 3 | 06/06/2006 | BLA | DNU - Boundary Line Adjustment | HULST, DONALD J | HULST, DONALD J | | | $0.00 | 70954 | 4152981 |
| 4 | 12/06/2005 | 5 | DNU - Marriage License/Name Change | HULST, DONALD J | HULST, DONALD J | | | $0.00 | 60122 | 4159403 |
| 5 | 09/22/2004 | WD | Warranty Deed | CANNIZZARO, JOSEPH | HULST, DONALD J | | | $146,500.00 | 44567 | 4114184 |
| 6 | 03/09/2004 | WD | Warranty Deed | CRIMMINS, DAVID M | CANNIZZARO, JOSEPH | | | $132,500.00 | 41132 | 4095079 |
| 7 | 11/01/1990 | WD | Warranty Deed | SMITH, HENRY A | CRIMMINS, DAVID M | | | $76,000.00 | 6394 | 90022140 |
| 8 | 03/01/1990 | WD | Warranty Deed | TRACE, ELMER C | SMITH, HENRY A | | | $8,000.00 | 1648 | 90005310 |
| 9 | 01/01/1900 | OTHER | Other - Misc. Documents | Unknown | TRACE, ELMER C | | | $0.00 | 0 | 0 |
Payout Agreement
| No payout information available.. |