| 1 | 08/04/2023 | QCD | Quit Claim Deed | FLYNN, JENNIFER | FLYNN, BRYAN | | | $0.00 | 57555 | 4563172 |
| 2 | 08/01/2023 | WD | Warranty Deed | LAFERGOLA, JOHN | FLYNN, BRYAN | | | $1,520,088.00 | 57554 | 4563171 |
| 3 | 04/05/2023 | QCD | Quit Claim Deed | LIU, YUN XIA | LAFERGOLA, JOHN | | | $0.00 | 57553 | 4563170 |
| 4 | 04/26/2019 | QCD | Quit Claim Deed | LAFERGOLA, JOHN | LIU, YUN XIA | | | $0.00 | 38235 | 4462152 |
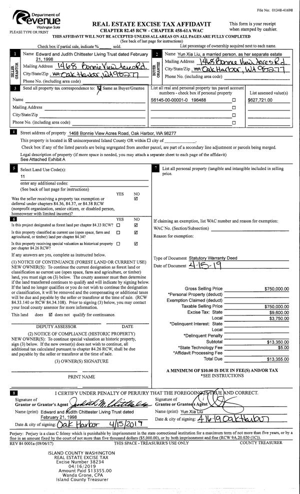
| 5 | 04/26/2019 | WD | Warranty Deed | CHITTESTER TRUSTEE, EDWARD | LIU, YUN XIA | | | $750,000.00 | 38234 | 4462151 |
| 6 | 10/15/2009 | TRUSTEED | Trustee's Deed | GMAC MTG LLC, FKA GMAC MTG COR | CHITTESTER TRUSTEE, EDWARD | | | $425,250.00 | 92549 | 4262226 |
| 7 | 08/31/2007 | TRUSTEED | Trustee's Deed | DIEMEL, NICK L | GMAC MTG LLC, FKA GMAC MTG COR | | | $700,004.00 | 73125 | 4211884 |
| 8 | 11/13/2000 | WD | Warranty Deed | NORWEST BANK MINNESOTA NA, | DIEMEL, NICK L | | | $283,725.00 | 4605 | 20021340 |
| 9 | 06/26/1999 | WD | Warranty Deed | TETERUD, LESLIE K | NORWEST BANK MINNESOTA NA, | | | $0.00 | 94203 | 99023082 |
| 10 | 09/01/1989 | WD | Warranty Deed | SIZER, WARREN | TETERUD, LESLIE K | | | $231,400.00 | 94141 | 89013726 |
| 11 | 06/01/1978 | OTHER | Other - Misc. Documents | NORWEST BANK MINNESOTA NA, | SIZER, WARREN | | | $50,000.00 | 82986 | 335114 |
| 12 | 01/01/1900 | OTHER | Other - Misc. Documents | Unknown | NORWEST BANK MINNESOTA NA, | | | $0.00 | 0 | 0 |