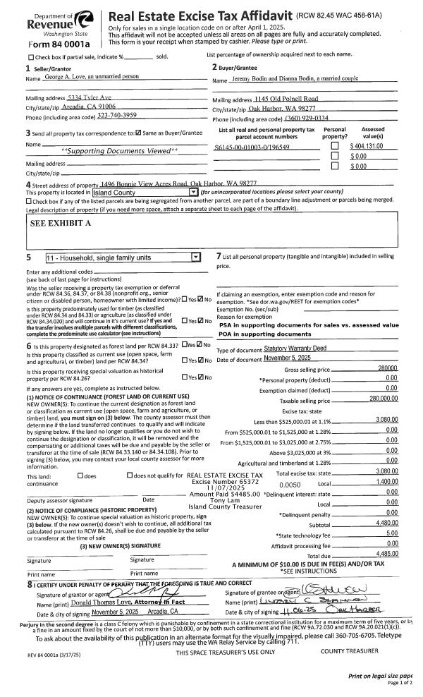
Property
Account |
| Property ID: | 196549 | Abbreviated Legal Description: | LOT 3 BLK 1 BONNIE VIEW |
| Geographic ID: | S6145-00-01003-0 | Agent Code: | |
| Type: | Real | | |
| Tax Area: | 110 - APPRAISER-OH Schl Dist, outside OH, improved & 1 acre or less | Land Use Code | 11 |
| Open Space: | N | DFL | N |
| Historic Property: | N | Remodel Property: | N |
| Multi-Family Redevelopment: | N | | |
| Township: | | Section: | |
| Range: | |
Location |
| Address: | 1496 BONNIE VIEW ACRES RD OAK HARBOR, WA 98277 | Mapsco: | |
| Neighborhood: | Cycle 1 | Map ID: | 123 |
| Neighborhood CD: | 1 |
Owner |
| Name: | LOVE, GEORGE A. | Owner ID: | 273190 |
| Mailing Address: | 1496 BONNIE VIEW ACRES RD OAK HARBOR, WA 98277 | % Ownership: | 100.0000000000% |
| | | Exemptions: | |
Taxes and Assessment Details
Values
| (+) Improvement Homesite Value: | + | $0 | |
| (+) Improvement Non-Homesite Value: | + | $224,131 | |
| (+) Land Homesite Value: | + | $0 | |
| (+) Land Non-Homesite Value: | + | $180,000 | |
| (+) Curr Use (HS): | + | $0 | $0 |
| (+) Curr Use (NHS): | + | $0 | $0 |
| | | -------------------------- | |
| (=) Market Value: | = | $404,131 | |
| (–) Productivity Loss: | – | $0 | |
| | | -------------------------- | |
| (=) Subtotal: | = | $404,131 | |
| (+) Senior Appraised Value: | + | $0 | |
| (+) Non-Senior Appraised Value: | + | $404,131 | |
| | | -------------------------- | |
| (=) Total Appraised Value: | = | $404,131 | |
| (–) Senior Exemption Loss: | – | $0 | |
| (–) Exemption Loss: | – | $0 | |
| | | -------------------------- | |
| (=) Taxable Value: | = | $404,131 | |
Taxing Jurisdiction
| Owner: | LOVE, GEORGE A. | | |
| % Ownership: | 100.0000000000% | | |
| Total Value: | $404,131 | | |
| Tax Area: | 110 - APPRAISER-OH Schl Dist, outside OH, improved & 1 acre or less |
| CF | Conservation Futures | 0.0313996660 | $404,131 | $404,131 | $12.69 | | |
| CEM1 | Cemetery #1 | 0.0040018856 | $404,131 | $404,131 | $1.62 | | |
| FIRE2 | Fire & Rescue Dist #2 N Whidbey GEN | 0.5381486274 | $404,131 | $404,131 | $217.48 | | |
| HOBOND | Hospital BOND | 0.1893405597 | $404,131 | $404,131 | $76.52 | | |
| HOGEN | Hospital GEN | 0.3848777722 | $404,131 | $404,131 | $155.54 | | |
| CE | County Current Expense | 0.3674210519 | $404,131 | $404,131 | $148.49 | | |
| CR | County Roads | 0.4614296361 | $404,131 | $404,131 | $186.48 | | |
| ISLANDEMS | Hospital GEN (EMS) | 0.4952018576 | $404,131 | $404,131 | $200.13 | | |
| LIB | Library Sno-Isle GEN | 0.3039084203 | $404,131 | $404,131 | $122.82 | | |
| NWHIDPRMT | P & R N Whidbey GEN | 0.1990272349 | $404,131 | $404,131 | $80.43 | | |
| SCH201MO | School 201 Enrichment | 2.3851112745 | $404,131 | $404,131 | $963.90 | | |
| ST | State School | 1.4761226122 | $404,131 | $404,131 | $596.55 | | |
| ST2 | State School Part 2 | 0.7953803475 | $404,131 | $404,131 | $321.44 | | |
| | Total Tax Rate: | 7.6313709459 | | | | | |
| | | | | Taxes w/Current Exemptions: | $3,084.09 | | |
| | | | | Taxes w/o Exemptions: | $3,084.09 | | |
Improvement / Building
| Improvement #1: | RESIDENTIAL | State Code: | Y | 1676.0 sqft | Value: | $224,131 |
| Bathrooms: | 1.5 | Bedrooms: | 3 | | Ceiling: | DRYWALL PAINTED | Exterior Wall/Cover: | VINYL | | Floor Covering: | CARPET/VINYL 80-20 | Floor Structure: | WOOD W/SUBFLOOR | | Foundation: | CONCRETE BLOCKS | Heating: | BASEBOARD ELECTRIC | | Interior Finish: | DRYWALL PAINT | Plumbing Fixture Cnt: | 9 | | Roof Slope: | 4" IN 12" | Roof Structure/Cover: | CJ ASPHALT |
|
| | Type | Description | Class CD | Sub Class CD | Year Built | Area |
| | BAS | BASE/MAIN FLOOR | 3 | 0 | 1967 | 1676.0 |
| | AGR | ATTACHED GARAGE | 3 | 0 | 1967 | 432.0 |
| | OWP | OPEN WOOD PORCH W/STEPS | 3 | 0 | 1967 | 320.0 |
| | DGR | DETACHED GARAGE | 3 | 0 | 1967 | 336.0 |
Sketch
Property Image
Land
| 1 | HS | HOMESITE | 0.3900 | 16988.40 | 0.00 | 0.00 | 1.00 | $180,000 | $0 |
Roll Value History
| 2026 | N/A | N/A | N/A | N/A | N/A |
| 2025 | $224,131 | $180,000 | $0 | $404,131 | $404,131 |
| 2024 | $232,464 | $180,000 | $0 | $412,464 | $412,464 |
| 2023 | $221,938 | $180,000 | $0 | $401,938 | $401,938 |
| 2022 | $204,147 | $180,000 | $0 | $384,147 | $384,147 |
| 2021 | $180,281 | $135,000 | $0 | $315,281 | $315,281 |
| 2020 | $176,362 | $100,000 | $0 | $276,362 | $276,362 |
| 2019 | $128,651 | $130,000 | $0 | $258,651 | $258,651 |
| 2018 | $129,129 | $120,000 | $0 | $249,129 | $249,129 |
| 2017 | $130,140 | $120,000 | $0 | $250,140 | $250,140 |
| 2016 | $132,022 | $90,000 | $0 | $222,022 | $222,022 |
| 2015 | $133,905 | $60,000 | $0 | $193,905 | $193,905 |
| 2014 | $135,787 | $60,000 | $0 | $195,787 | $195,787 |
| 2013 | $137,669 | $85,000 | $0 | $222,669 | $222,669 |
| 2012 | $139,552 | $102,000 | $0 | $241,552 | $241,552 |
| 2011 | $139,246 | $120,000 | $0 | $259,246 | $259,246 |
| 2010 | $146,580 | $120,000 | $0 | $266,580 | $266,580 |
| 2009 | $152,853 | $90,000 | $0 | $242,853 | $242,853 |
| 2008 | $154,982 | $148,770 | $0 | $303,752 | $303,752 |
| 2007 | $157,121 | $103,770 | $0 | $260,891 | $260,891 |
Deed and Sales History
| 1 | 11/05/2025 | WD | Warranty Deed | LOVE, GEORGE A. | BODIN, JEREMY | | | $280,000.00 | 65372 | 4593184 |
| 2 | 01/06/2016 | TOD | Transfer On Death Deed | LOVE, DOROTHY B | LOVE, GEORGE A. | | | | 87283 | |
| 3 | 08/01/1990 | QCD | Quit Claim Deed | LOVE, DOROTHY B | LOVE, DOROTHY B | | | $0.00 | 5162 | 90017135 |
| 4 | 12/01/1974 | PACD | Purchaser's Assignment | LOVE, THOMAS C | LOVE, DOROTHY B | | | $0.00 | 59184 | 0 |
| 5 | 01/01/1900 | OTHER | Other - Misc. Documents | Unknown | LOVE, THOMAS C | | | $0.00 | 0 | 0 |
Payout Agreement
| No payout information available.. |