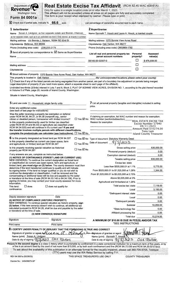
Property
Account |
| Property ID: | 196629 | Abbreviated Legal Description: | Bonnie View Acres, Lot 007 & 008, Blk 02; |
| Geographic ID: | S6145-00-02007-0 | Agent Code: | |
| Type: | Real | | |
| Tax Area: | 110 - APPRAISER-OH Schl Dist, outside OH, improved & 1 acre or less | Land Use Code | 11 |
| Open Space: | N | DFL | N |
| Historic Property: | N | Remodel Property: | N |
| Multi-Family Redevelopment: | N | | |
| Township: | | Section: | |
| Range: | |
Location |
| Address: | 1370 BONNIE VIEW ACRES RD OAK HARBOR, WA 98277 | Mapsco: | |
| Neighborhood: | Cycle 1 | Map ID: | 122 |
| Neighborhood CD: | 1 |
Owner |
| Name: | HOUCK, KENNETH T | Owner ID: | 310023 |
| Mailing Address: | LAURA A HOUCK 1370 BONNIE VIEW ACRES RD OAK HARBOR, WA 98277 | % Ownership: | 100.0000000000% |
| | | Exemptions: | |
Taxes and Assessment Details
Values
| (+) Improvement Homesite Value: | + | $0 | |
| (+) Improvement Non-Homesite Value: | + | $367,636 | |
| (+) Land Homesite Value: | + | $0 | |
| (+) Land Non-Homesite Value: | + | $575,000 | |
| (+) Curr Use (HS): | + | $0 | $0 |
| (+) Curr Use (NHS): | + | $0 | $0 |
| | | -------------------------- | |
| (=) Market Value: | = | $942,636 | |
| (–) Productivity Loss: | – | $0 | |
| | | -------------------------- | |
| (=) Subtotal: | = | $942,636 | |
| (+) Senior Appraised Value: | + | $0 | |
| (+) Non-Senior Appraised Value: | + | $942,636 | |
| | | -------------------------- | |
| (=) Total Appraised Value: | = | $942,636 | |
| (–) Senior Exemption Loss: | – | $0 | |
| (–) Exemption Loss: | – | $0 | |
| | | -------------------------- | |
| (=) Taxable Value: | = | $942,636 | |
Taxing Jurisdiction
| Owner: | HOUCK, KENNETH T | | |
| % Ownership: | 100.0000000000% | | |
| Total Value: | $942,636 | | |
| Tax Area: | 110 - APPRAISER-OH Schl Dist, outside OH, improved & 1 acre or less |
| CF | Conservation Futures | 0.0313996660 | $942,636 | $942,636 | $29.60 | | |
| CEM1 | Cemetery #1 | 0.0040018856 | $942,636 | $942,636 | $3.77 | | |
| FIRE2 | Fire & Rescue Dist #2 N Whidbey GEN | 0.5381486274 | $942,636 | $942,636 | $507.28 | | |
| HOBOND | Hospital BOND | 0.1893405597 | $942,636 | $942,636 | $178.48 | | |
| HOGEN | Hospital GEN | 0.3848777722 | $942,636 | $942,636 | $362.80 | | |
| CE | County Current Expense | 0.3674210519 | $942,636 | $942,636 | $346.34 | | |
| CR | County Roads | 0.4614296361 | $942,636 | $942,636 | $434.96 | | |
| ISLANDEMS | Hospital GEN (EMS) | 0.4952018576 | $942,636 | $942,636 | $466.80 | | |
| LIB | Library Sno-Isle GEN | 0.3039084203 | $942,636 | $942,636 | $286.48 | | |
| NWHIDPRMT | P & R N Whidbey GEN | 0.1990272349 | $942,636 | $942,636 | $187.61 | | |
| SCH201MO | School 201 Enrichment | 2.3851112745 | $942,636 | $942,636 | $2,248.29 | | |
| ST | State School | 1.4761226122 | $942,636 | $942,636 | $1,391.45 | | |
| ST2 | State School Part 2 | 0.7953803475 | $942,636 | $942,636 | $749.75 | | |
| | Total Tax Rate: | 7.6313709459 | | | | | |
| | | | | Taxes w/Current Exemptions: | $7,193.61 | | |
| | | | | Taxes w/o Exemptions: | $7,193.61 | | |
Improvement / Building
| Improvement #1: | RESIDENTIAL | State Code: | Y | 1834.3 sqft | Value: | $367,636 |
| Bathrooms: | 2 | Bedrooms: | 3 | | Ceiling: | DRYWALL PAINTED | Exterior Wall/Cover: | WOOD SIDING | | Floor Covering: | HARDWOOD/CARP 60-40 | Floor Structure: | WOOD W/SUBFLOOR | | Foundation: | CONCRETE | Heating: | HEAT PUMP | | Interior Finish: | DRYWALL PAINT | Plumbing Fixture Cnt: | 10 | | Roof Slope: | 4" IN 12" | Roof Structure/Cover: | CJ ASPHALT |
|
| | Type | Description | Class CD | Sub Class CD | Year Built | Area |
| | BAS | BASE/MAIN FLOOR | 3 | 0 | 1983 | 1834.3 |
| | AGR | ATTACHED GARAGE | 3 | 0 | 1983 | 672.0 |
| | UTY | STORAGE/UTILITY | 3 | 0 | 1983 | 118.8 |
| | UTY | STORAGE/UTILITY | 3 | 0 | 1983 | 95.0 |
| | OWP | OPEN WOOD PORCH W/STEPS | 3 | 0 | 1983 | 243.0 |
| | OWR | OPEN WOOD PORCH W/STEPS/ROOF | 3 | 0 | 1983 | 80.8 |
| | OWP | OPEN WOOD PORCH W/STEPS | 3 | 0 | 1983 | 877.6 |
| | ENP | ENCLOSED PORCH | 3 | 0 | 1983 | 40.0 |
Sketch
Property Image
Land
| 1 | HB | HIGH BLUFF | 1.2700 | 55321.20 | 41.00 | 0.00 | 1.00 | $575,000 | $0 |
Roll Value History
| 2026 | N/A | N/A | N/A | N/A | N/A |
| 2025 | $367,636 | $575,000 | $0 | $942,636 | $942,636 |
| 2024 | $341,959 | $550,000 | $0 | $891,959 | $891,959 |
| 2023 | $326,939 | $550,000 | $0 | $876,939 | $876,939 |
| 2022 | $299,885 | $300,000 | $0 | $599,885 | $599,885 |
| 2021 | $264,092 | $300,000 | $0 | $564,092 | $564,092 |
| 2020 | $257,714 | $300,000 | $0 | $557,714 | $557,714 |
| 2019 | $192,865 | $400,000 | $0 | $592,865 | $592,865 |
| 2018 | $193,458 | $300,000 | $0 | $493,458 | $493,458 |
| 2017 | $187,293 | $300,000 | $0 | $487,293 | $487,293 |
| 2016 | $189,726 | $300,000 | $0 | $489,726 | $489,726 |
| 2015 | $192,159 | $300,000 | $0 | $492,159 | $492,159 |
| 2014 | $180,688 | $400,000 | $0 | $580,688 | $580,688 |
| 2013 | $183,128 | $379,158 | $0 | $562,286 | $562,286 |
| 2012 | $185,569 | $379,158 | $0 | $564,727 | $564,727 |
| 2011 | $193,773 | $379,158 | $0 | $572,931 | $572,931 |
| 2010 | $199,546 | $379,158 | $0 | $578,704 | $578,704 |
| 2009 | $208,182 | $473,947 | $0 | $682,129 | $682,129 |
| 2008 | $211,234 | $540,300 | $0 | $751,534 | $751,534 |
| 2007 | $214,339 | $540,300 | $0 | $754,639 | $754,639 |
Deed and Sales History
| 1 | 09/05/2023 | WD | Warranty Deed | HANSON ET AL, BONNIE | HOUCK, KENNETH T | | | $630,000.00 | 57940 | 4564536 |
| 2 | 09/08/2023 | QCD | Quit Claim Deed | HOUCK, LAURA A | HOUCK, KENNETH T | | | $0.00 | 57939 | 4564533 |
| 3 | 08/14/2015 | TOD | Transfer On Death Deed | ANDERSON, CAROL A | HANSON ET AL, BONNIE | | | $0.00 | 54567 | 4384094 |
| 4 | 03/11/2014 | WD | Warranty Deed | HOCKETT, CLYDE J / RENEE M | ANDERSON, CAROL A | | | $500,000.00 | 14538 | 4356398 |
| 5 | 04/01/1995 | WD | Warranty Deed | PERRY, DONALD C | HOCKETT, CLYDE J | | | $270,000.00 | 51468 | 95006839 |
| 6 | 01/01/1983 | WD | Warranty Deed | HUNTER, ROBERT E | PERRY, DONALD C | | | $58,000.00 | 30142 | 404993 |
| 7 | 01/01/1900 | OTHER | Other - Misc. Documents | Unknown | HUNTER, ROBERT E | | | $0.00 | 30289 | 405535 |
Payout Agreement
| No payout information available.. |