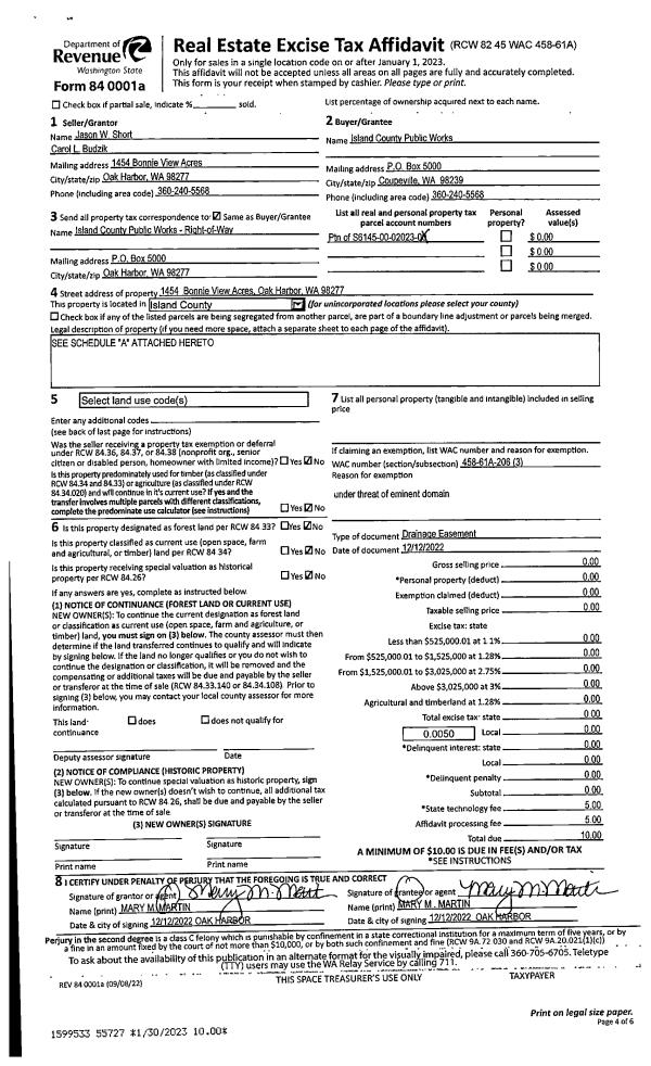
Property
Account |
| Property ID: | 196772 | Abbreviated Legal Description: | Bonnie View Acres, Lot 23, Blk 2; LOT A LOT COMB AF#4535601 |
| Geographic ID: | S6145-00-02023-0 | Agent Code: | |
| Type: | Real | | |
| Tax Area: | 112 - APPRAISER-OH Schl Dist, outside OH, improved, greater than 1 acre | Land Use Code | 11 |
| Open Space: | N | DFL | N |
| Historic Property: | N | Remodel Property: | N |
| Multi-Family Redevelopment: | N | | |
| Township: | | Section: | |
| Range: | |
Location |
| Address: | 1454 BONNIE VIEW ACRES RD OAK HARBOR, WA 98277 | Mapsco: | |
| Neighborhood: | Cycle 1 | Map ID: | 123 |
| Neighborhood CD: | 1 |
Owner |
| Name: | SHORT, JASON W | Owner ID: | 285431 |
| Mailing Address: | CAROL L BUDZIK 1454 BONNIE VIEW ACRES OAK HARBOR, WA 98277 | % Ownership: | 100.0000000000% |
| | | Exemptions: | |
Taxes and Assessment Details
Values
| (+) Improvement Homesite Value: | + | $0 | |
| (+) Improvement Non-Homesite Value: | + | $543,518 | |
| (+) Land Homesite Value: | + | $0 | |
| (+) Land Non-Homesite Value: | + | $575,000 | |
| (+) Curr Use (HS): | + | $0 | $0 |
| (+) Curr Use (NHS): | + | $0 | $0 |
| | | -------------------------- | |
| (=) Market Value: | = | $1,118,518 | |
| (–) Productivity Loss: | – | $0 | |
| | | -------------------------- | |
| (=) Subtotal: | = | $1,118,518 | |
| (+) Senior Appraised Value: | + | $0 | |
| (+) Non-Senior Appraised Value: | + | $1,118,518 | |
| | | -------------------------- | |
| (=) Total Appraised Value: | = | $1,118,518 | |
| (–) Senior Exemption Loss: | – | $0 | |
| (–) Exemption Loss: | – | $0 | |
| | | -------------------------- | |
| (=) Taxable Value: | = | $1,118,518 | |
Taxing Jurisdiction
| Owner: | SHORT, JASON W | | |
| % Ownership: | 100.0000000000% | | |
| Total Value: | $1,118,518 | | |
| Tax Area: | 112 - APPRAISER-OH Schl Dist, outside OH, improved, greater than 1 acre |
| CF | Conservation Futures | 0.0313996660 | $1,118,518 | $1,118,518 | $35.12 | | |
| CEM1 | Cemetery #1 | 0.0040018856 | $1,118,518 | $1,118,518 | $4.48 | | |
| FIRE2 | Fire & Rescue Dist #2 N Whidbey GEN | 0.5381486274 | $1,118,518 | $1,118,518 | $601.93 | | |
| HOBOND | Hospital BOND | 0.1893405597 | $1,118,518 | $1,118,518 | $211.78 | | |
| HOGEN | Hospital GEN | 0.3848777722 | $1,118,518 | $1,118,518 | $430.49 | | |
| CE | County Current Expense | 0.3674210519 | $1,118,518 | $1,118,518 | $410.97 | | |
| CR | County Roads | 0.4614296361 | $1,118,518 | $1,118,518 | $516.12 | | |
| ISLANDEMS | Hospital GEN (EMS) | 0.4952018576 | $1,118,518 | $1,118,518 | $553.89 | | |
| LIB | Library Sno-Isle GEN | 0.3039084203 | $1,118,518 | $1,118,518 | $339.93 | | |
| NWHIDPRMT | P & R N Whidbey GEN | 0.1990272349 | $1,118,518 | $1,118,518 | $222.62 | | |
| SCH201MO | School 201 Enrichment | 2.3851112745 | $1,118,518 | $1,118,518 | $2,667.79 | | |
| ST | State School | 1.4761226122 | $1,118,518 | $1,118,518 | $1,651.07 | | |
| ST2 | State School Part 2 | 0.7953803475 | $1,118,518 | $1,118,518 | $889.65 | | |
| | Total Tax Rate: | 7.6313709459 | | | | | |
| | | | | Taxes w/Current Exemptions: | $8,535.84 | | |
| | | | | Taxes w/o Exemptions: | $8,535.84 | | |
Improvement / Building
| Improvement #1: | RESIDENTIAL | State Code: | Y | 2289.5 sqft | Value: | $543,518 |
| Bathrooms: | 2.5 | Bedrooms: | 3 | | Ceiling: | DRY WALL SPRAYED | Exterior Wall/Cover: | CEMENT FIBER | | Floor Covering: | HARDWOOD/CARP 20-80 | Floor Structure: | WOOD W/SUBFLOOR | | Foundation: | CONCRETE | Heating: | FHA GAS | | Interior Finish: | DRYWALL PAINT | Plumbing Fixture Cnt: | 13 | | Roof Slope: | 8" IN 12" | Roof Structure/Cover: | CJ ASPHALT |
|
| | Type | Description | Class CD | Sub Class CD | Year Built | Area |
| | BAS | BASE/MAIN FLOOR | 4 | 0 | 2002 | 1604.0 |
| | OP2 | OPEN PORCH W/STEPS | 4 | 0 | 2002 | 811.5 |
| | OP4 | OPEN PORCH W/CEILING-ROOF | 4 | 0 | 2002 | 56.0 |
| | AGR | ATTACHED GARAGE | 4 | 0 | 2002 | 624.0 |
| | UPS | UPPER STORY | 4 | 0 | 2002 | 685.5 |
Sketch
Property Image
Land
| 1 | HB | HIGH BLUFF | 1.2000 | 52272.00 | 164.00 | 0.00 | 1.00 | $575,000 | $0 |
Roll Value History
| 2026 | N/A | N/A | N/A | N/A | N/A |
| 2025 | $543,518 | $575,000 | $0 | $1,118,518 | $1,118,518 |
| 2024 | $524,830 | $550,000 | $0 | $1,074,830 | $1,074,830 |
| 2023 | $517,382 | $550,000 | $0 | $1,067,382 | $1,067,382 |
| 2022 | $473,981 | $500,000 | $0 | $973,981 | $973,981 |
| 2021 | $416,954 | $340,000 | $0 | $756,954 | $756,954 |
| 2020 | $406,014 | $300,000 | $0 | $706,014 | $706,014 |
| 2019 | $303,946 | $350,000 | $0 | $653,946 | $653,946 |
| 2018 | $282,013 | $250,000 | $0 | $532,013 | $532,013 |
| 2017 | $250,001 | $250,000 | $0 | $500,001 | $500,001 |
| 2016 | $252,976 | $250,000 | $0 | $502,976 | $502,976 |
| 2015 | $255,953 | $250,000 | $0 | $505,953 | $505,953 |
| 2014 | $258,929 | $250,000 | $0 | $508,929 | $508,929 |
| 2013 | $261,906 | $211,623 | $0 | $473,529 | $473,529 |
| 2012 | $264,882 | $211,623 | $0 | $476,505 | $476,505 |
| 2011 | $267,859 | $211,623 | $0 | $479,482 | $479,482 |
| 2010 | $274,908 | $211,623 | $0 | $486,531 | $486,531 |
| 2009 | $283,465 | $264,529 | $0 | $547,994 | $547,994 |
| 2008 | $286,599 | $301,562 | $0 | $588,161 | $588,161 |
| 2007 | $292,712 | $301,562 | $0 | $594,274 | $594,274 |
Deed and Sales History
| 1 | 12/12/2022 | EZ | Easement | SHORT, JASON W | ISLAND COUNTY PUBLIC WORKS | | | $0.00 | 55727 | 4556207 |
| 2 | 06/06/2018 | WD | Warranty Deed | BUSS, GERALD D | SHORT, JASON W | | | $729,000.00 | 34515 | 4446152 |
| 3 | 07/15/2003 | WD | Warranty Deed | CONSTRUCTION INC, EAST BAY | BUSS, GERALD D | | | $445,000.00 | 33069 | 4067147 |
| 4 | 03/28/2002 | WD | Warranty Deed | MARKHAM, GERALD D | CONSTRUCTION INC, EAST BAY | | | $120,000.00 | 21247 | 4015960 |
| 5 | 04/01/1993 | WD | Warranty Deed | REESE, BARBARA D | MARKHAM, GERALD D | | | $27,000.00 | 31480 | 93007561 |
| 6 | 01/01/1900 | OTHER | Other - Misc. Documents | Unknown | REESE, BARBARA D | | | $0.00 | 0 | 0 |
Payout Agreement
| No payout information available.. |