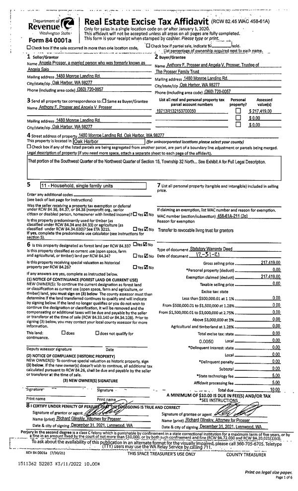
Property
Account |
| Property ID: | 19713 | Abbreviated Legal Description: | 29 - IN SW NW: BG PT WLN SW NW 333'S OF NWCR E120' N103 W120' S103' TPB EX RD EX PT TO IS CO AF# 4138192 |
| Geographic ID: | R13215-370-0050 | Agent Code: | |
| Type: | Real | | |
| Tax Area: | 110 - APPRAISER-OH Schl Dist, outside OH, improved & 1 acre or less | Land Use Code | 11 |
| Open Space: | N | DFL | N |
| Historic Property: | N | Remodel Property: | N |
| Multi-Family Redevelopment: | N | | |
| Township: | 32 | Section: | 15 |
| Range: | R1 |
Location |
| Address: | 1480 MONROE LANDING RD OAK HARBOR, WA 98277 | Mapsco: | |
| Neighborhood: | Cycle 1 | Map ID: | 126 |
| Neighborhood CD: | 1 |
Owner |
| Name: | PROSSER TTEE, ANTHONY F | Owner ID: | 303457 |
| Mailing Address: | ANGELA V PROSSER TTEE 1480 MONROE LANDING RD OAK HARBOR, WA 98277 | % Ownership: | 100.0000000000% |
| | | Exemptions: | |
Taxes and Assessment Details
Values
| (+) Improvement Homesite Value: | + | $0 | |
| (+) Improvement Non-Homesite Value: | + | $141,165 | |
| (+) Land Homesite Value: | + | $0 | |
| (+) Land Non-Homesite Value: | + | $190,000 | |
| (+) Curr Use (HS): | + | $0 | $0 |
| (+) Curr Use (NHS): | + | $0 | $0 |
| | | -------------------------- | |
| (=) Market Value: | = | $331,165 | |
| (–) Productivity Loss: | – | $0 | |
| | | -------------------------- | |
| (=) Subtotal: | = | $331,165 | |
| (+) Senior Appraised Value: | + | $0 | |
| (+) Non-Senior Appraised Value: | + | $331,165 | |
| | | -------------------------- | |
| (=) Total Appraised Value: | = | $331,165 | |
| (–) Senior Exemption Loss: | – | $0 | |
| (–) Exemption Loss: | – | $0 | |
| | | -------------------------- | |
| (=) Taxable Value: | = | $331,165 | |
Taxing Jurisdiction
| Owner: | PROSSER TTEE, ANTHONY F | | |
| % Ownership: | 100.0000000000% | | |
| Total Value: | $331,165 | | |
| Tax Area: | 110 - APPRAISER-OH Schl Dist, outside OH, improved & 1 acre or less |
| CF | Conservation Futures | 0.0313996660 | $331,165 | $331,165 | $10.40 | | |
| CEM1 | Cemetery #1 | 0.0040018856 | $331,165 | $331,165 | $1.33 | | |
| FIRE2 | Fire & Rescue Dist #2 N Whidbey GEN | 0.5381486274 | $331,165 | $331,165 | $178.22 | | |
| HOBOND | Hospital BOND | 0.1893405597 | $331,165 | $331,165 | $62.70 | | |
| HOGEN | Hospital GEN | 0.3848777722 | $331,165 | $331,165 | $127.46 | | |
| CE | County Current Expense | 0.3674210519 | $331,165 | $331,165 | $121.68 | | |
| CR | County Roads | 0.4614296361 | $331,165 | $331,165 | $152.81 | | |
| ISLANDEMS | Hospital GEN (EMS) | 0.4952018576 | $331,165 | $331,165 | $163.99 | | |
| LIB | Library Sno-Isle GEN | 0.3039084203 | $331,165 | $331,165 | $100.64 | | |
| NWHIDPRMT | P & R N Whidbey GEN | 0.1990272349 | $331,165 | $331,165 | $65.91 | | |
| SCH201MO | School 201 Enrichment | 2.3851112745 | $331,165 | $331,165 | $789.87 | | |
| ST | State School | 1.4761226122 | $331,165 | $331,165 | $488.84 | | |
| ST2 | State School Part 2 | 0.7953803475 | $331,165 | $331,165 | $263.40 | | |
| | Total Tax Rate: | 7.6313709459 | | | | | |
| | | | | Taxes w/Current Exemptions: | $2,527.25 | | |
| | | | | Taxes w/o Exemptions: | $2,527.25 | | |
Improvement / Building
| Improvement #1: | RESIDENTIAL | State Code: | Y | 1128.0 sqft | Value: | $141,165 |
| Bathrooms: | 1 | Bedrooms: | 2 | | Ceiling: | DRY WALL SPRAYED | Cooling: | HEAT PUMP/CONV/V | | Exterior Wall/Cover: | VINYL | Floor Covering: | CARPET/VINYL 60-40 | | Floor Structure: | WOOD W/SUBFLOOR | Foundation: | WOOD BLOCKS | | Interior Finish: | DRYWALL PAINT | Plumbing Fixture Cnt: | 6 | | Roof Slope: | 4" IN 12" | Roof Structure/Cover: | CJ ASPHALT |
|
| | Type | Description | Class CD | Sub Class CD | Year Built | Area |
| | BAS | BASE/MAIN FLOOR | 3 | 0 | 1954 | 1128.0 |
| | UTY | STORAGE/UTILITY | 3 | 0 | 1954 | 440.0 |
| | OWP | OPEN WOOD PORCH W/STEPS | 3 | 0 | 1954 | 102.0 |
| | AGR | ATTACHED GARAGE | 3 | 0 | 1954 | 181.5 |
Sketch
Property Image
Land
| 1 | 14 | SQ (08001-12000) | 0.2600 | 11325.60 | 0.00 | 0.00 | 1.00 | $190,000 | $0 |
Roll Value History
| 2026 | N/A | N/A | N/A | N/A | N/A |
| 2025 | $141,165 | $190,000 | $0 | $331,165 | $331,165 |
| 2024 | $143,397 | $180,000 | $0 | $323,397 | $323,397 |
| 2023 | $124,991 | $180,000 | $0 | $304,991 | $304,991 |
| 2022 | $115,028 | $180,000 | $0 | $295,028 | $295,028 |
| 2021 | $97,419 | $120,000 | $0 | $217,419 | $217,419 |
| 2020 | $95,271 | $100,000 | $0 | $195,271 | $195,271 |
| 2019 | $67,944 | $150,000 | $0 | $217,944 | $217,944 |
| 2018 | $68,205 | $130,000 | $0 | $198,205 | $198,205 |
| 2017 | $64,640 | $120,000 | $0 | $184,640 | $184,640 |
| 2016 | $65,677 | $110,000 | $0 | $175,677 | $175,677 |
| 2015 | $66,714 | $90,000 | $0 | $156,714 | $156,714 |
| 2014 | $67,751 | $90,000 | $0 | $157,751 | $157,751 |
| 2013 | $68,788 | $102,000 | $0 | $170,788 | $170,788 |
| 2012 | $69,825 | $102,000 | $0 | $171,825 | $171,825 |
| 2011 | $73,720 | $120,000 | $0 | $193,720 | $193,720 |
| 2010 | $78,996 | $120,000 | $0 | $198,996 | $198,996 |
| 2009 | $82,433 | $96,000 | $0 | $178,433 | $178,433 |
| 2008 | $83,533 | $87,120 | $0 | $170,653 | $170,653 |
| 2007 | $84,717 | $87,120 | $0 | $171,837 | $171,837 |
Deed and Sales History
| 1 | 12/31/2021 | WD | Warranty Deed | SALO, ANGELA | PROSSER TTEE, ANTHONY F | | | $0.00 | 52283 | 4541392 |
| 2 | 03/10/2015 | WD | Warranty Deed | KNORR HOME LLC | SALO, ANGELA | | | $167,000.00 | 18773 | 4374800 |
| 3 | 07/11/2014 | SPWARDEED | Special Warranty Deed | FEDERAL NATIONAL MORTGAGE ASSOCIATION | KNORR HOME LLC | | | $100,000.00 | 16141 | 4362859 |
| 4 | 12/20/2013 | TRUSTEED | Trustee's Deed | FEALY, GUY E | FEDERAL NATIONAL MORTGAGE ASSOCIATION | | | $170,691.00 | 13836 | 4353059 |
| 5 | 07/06/2007 | WD | Warranty Deed | FORDHAM, WILLIAM P | FEALY, GUY E | | | $189,900.00 | 72446 | 4207515 |
| 6 | 10/26/2005 | QCD | Quit Claim Deed | FORDHAM, WILLIAM P | FORDHAM, WILLIAM P | | | $4,900.00 | 70712 | 4138192 |
| 7 | 06/17/2005 | WD | Warranty Deed | FORDHAM, WILLIAM P | FORDHAM, WILLIAM P | | | $0.00 | 54261 | 4145925 |
| 8 | 06/17/2005 | WD | Warranty Deed | MATTESON, DONALD T | FORDHAM, WILLIAM P | | | $157,250.00 | 52911 | 4138458 |
| 9 | 04/11/2005 | TRUSTEED | Trustee's Deed | QUALSTAR CREDIT UNION, | MATTESON, DONALD T | | | $77,250.00 | 51525 | 4131074 |
| 10 | 08/21/2001 | TRUSTEED | Trustee's Deed | ROODZANT, BRADLEY S | QUALSTAR CREDIT UNION, | | | $89,251.00 | 40716 | 4092449 |
| 11 | 12/01/1997 | ESTSEPPROP | Establish Separate Property | ROODZANT, BRADLEY S | ROODZANT, BRADLEY S | | | $0.00 | 74533 | 97021595 |
| 12 | 09/01/1989 | WD | Warranty Deed | BECK, JAMES R | ROODZANT, BRADLEY S | | | $41,000.00 | 94048 | 89013369 |
| 13 | 02/01/1987 | WD | Warranty Deed | THORNTON, RALPH E | BECK, JAMES R | | | $36,000.00 | 70463 | 87002819 |
| 14 | 12/01/1981 | OTHER | Other - Misc. Documents | BRILLON, DONALD E | THORNTON, RALPH E | | | $0.00 | 59336 | 391264 |
| 15 | 12/01/1981 | WD | Warranty Deed | THORNTON, RALPH E | BRILLON, DONALD E | | | $39,500.00 | 13817 | 391265 |
| 16 | 01/01/1900 | OTHER | Other - Misc. Documents | Unknown | THORNTON, RALPH E | | | $0.00 | 0 | 0 |
Payout Agreement
| No payout information available.. |