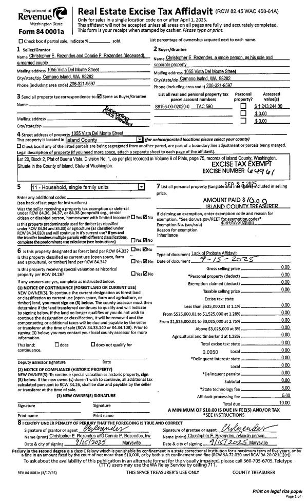
Property
Account |
| Property ID: | 199546 | Abbreviated Legal Description: | BUENA VISTA 1 LOT 20 BLK 2 |
| Geographic ID: | S6195-00-02020-0 | Agent Code: | |
| Type: | Real | | |
| Tax Area: | 590 - APPRAISER-Stan/Cam Schl Dist, Special Dist, improved & less than 1 acre | Land Use Code | 11 |
| Open Space: | N | DFL | N |
| Historic Property: | N | Remodel Property: | N |
| Multi-Family Redevelopment: | N | | |
| Township: | | Section: | |
| Range: | |
Location |
| Address: | 1055 VISTA DEL MONTE ST CAMANO ISLAND, WA 98282 | Mapsco: | |
| Neighborhood: | North Camano | Map ID: | 962 |
| Neighborhood CD: | 06-C |
Owner |
| Name: | REZENDES, CHRISTOPHER E | Owner ID: | 292995 |
| Mailing Address: | CONNIE P REZENDES 1055 VISTA DEL MONTE ST CAMANO ISLAND, WA 98282 | % Ownership: | 100.0000000000% |
| | | Exemptions: | |
Taxes and Assessment Details
Values
| (+) Improvement Homesite Value: | + | $0 | |
| (+) Improvement Non-Homesite Value: | + | $878,244 | |
| (+) Land Homesite Value: | + | $0 | |
| (+) Land Non-Homesite Value: | + | $365,000 | |
| (+) Curr Use (HS): | + | $0 | $0 |
| (+) Curr Use (NHS): | + | $0 | $0 |
| | | -------------------------- | |
| (=) Market Value: | = | $1,243,244 | |
| (–) Productivity Loss: | – | $0 | |
| | | -------------------------- | |
| (=) Subtotal: | = | $1,243,244 | |
| (+) Senior Appraised Value: | + | $0 | |
| (+) Non-Senior Appraised Value: | + | $1,243,244 | |
| | | -------------------------- | |
| (=) Total Appraised Value: | = | $1,243,244 | |
| (–) Senior Exemption Loss: | – | $0 | |
| (–) Exemption Loss: | – | $0 | |
| | | -------------------------- | |
| (=) Taxable Value: | = | $1,243,244 | |
Taxing Jurisdiction
| Owner: | REZENDES, CHRISTOPHER E | | |
| % Ownership: | 100.0000000000% | | |
| Total Value: | $1,243,244 | | |
| Tax Area: | 590 - APPRAISER-Stan/Cam Schl Dist, Special Dist, improved & less than 1 acre |
| CF | Conservation Futures | 0.0313996660 | $1,243,244 | $1,243,244 | $39.04 | | |
| EMS1 | Fire & Rescue Dist #1 Camano GEN (EMS) | 0.4998471806 | $1,243,244 | $1,243,244 | $621.43 | | |
| FIRE1 | Fire & Rescue Dist #1 Camano GEN | 1.2496603404 | $1,243,244 | $1,243,244 | $1,553.63 | | |
| FIRE1BOND | Fire & Rescue Dist #1 Camano BOND | 0.1630371212 | $1,243,244 | $1,243,244 | $202.69 | | |
| CE | County Current Expense | 0.3674210519 | $1,243,244 | $1,243,244 | $456.79 | | |
| CR | County Roads | 0.4614296361 | $1,243,244 | $1,243,244 | $573.67 | | |
| LIB | Library Sno-Isle GEN | 0.3039084203 | $1,243,244 | $1,243,244 | $377.83 | | |
| SCH205_401 | School 205-401 Enrichment | 1.3697998934 | $1,243,244 | $1,243,244 | $1,703.00 | | |
| SCH205BOND | School 205-401 BOND | 0.9354199323 | $1,243,244 | $1,243,244 | $1,162.96 | | |
| ST | State School | 1.4761226122 | $1,243,244 | $1,243,244 | $1,835.18 | | |
| ST2 | State School Part 2 | 0.7953803475 | $1,243,244 | $1,243,244 | $988.85 | | |
| | Total Tax Rate: | 7.6534262019 | | | | | |
| | | | | Taxes w/Current Exemptions: | $9,515.07 | | |
| | | | | Taxes w/o Exemptions: | $9,515.07 | | |
Improvement / Building
| Improvement #1: | RESIDENTIAL | State Code: | Y | 4638.5 sqft | Value: | $878,244 |
| Bathrooms: | 6 | Bedrooms: | 3 | | Ceiling: | TONGUE & GROOVE | Exterior Wall/Cover: | WOOD SIDING | | Floor Covering: | CERAMIC TILE/CPT 40-60 | Floor Structure: | WOOD W/SUBFLOOR | | Foundation: | CONCRETE | Heating: | FHA GAS | | Interior Finish: | DRYWALL PAINT | Plumbing Fixture Cnt: | 20 | | Roof Slope: | 4" IN 12" | Roof Structure/Cover: | CJ ASPHALT |
|
| | Type | Description | Class CD | Sub Class CD | Year Built | Area |
| | BAS | BASE/MAIN FLOOR | 5 | 0 | 2015 | 2619.5 |
| | DWN | DOWNSTAIRS LIVING AREA | 5 | 0 | 2015 | 2019.0 |
| | AGR | ATTACHED GARAGE | 5 | 0 | 2015 | 998.0 |
| | OWC | OPEN WOOD PORCH W/STEPS/ROOF/C | 5 | 0 | 2015 | 215.2 |
| | OWP | OPEN WOOD PORCH W/STEPS | 5 | 0 | 2015 | 927.4 |
| | BGR | BASEMENT GARAGE | 5 | 0 | 2015 | 253.0 |
Sketch
Property Image
Land
| 1 | 14 | SQ (08001-12000) | 0.0000 | 0.00 | 0.00 | 0.00 | 1.00 | $365,000 | $0 |
Roll Value History
| 2026 | N/A | N/A | N/A | N/A | N/A |
| 2025 | $878,244 | $365,000 | $0 | $1,243,244 | $1,243,244 |
| 2024 | $885,443 | $350,000 | $0 | $1,235,443 | $1,235,443 |
| 2023 | $892,642 | $350,000 | $0 | $1,242,642 | $1,242,642 |
| 2022 | $801,792 | $310,000 | $0 | $1,111,792 | $1,111,792 |
| 2021 | $702,859 | $190,000 | $0 | $892,859 | $892,859 |
| 2020 | $682,879 | $190,000 | $0 | $872,879 | $872,879 |
| 2019 | $639,461 | $230,000 | $0 | $869,461 | $869,461 |
| 2018 | $641,123 | $200,000 | $0 | $841,123 | $841,123 |
| 2017 | $644,445 | $180,000 | $0 | $824,445 | $824,445 |
| 2016 | $645,722 | $175,000 | $0 | $820,722 | $820,722 |
| 2015 | $658,901 | $100,000 | $0 | $758,901 | $758,901 |
| 2014 | $0 | $100,000 | $0 | $100,000 | $100,000 |
| 2013 | $0 | $100,000 | $0 | $100,000 | $100,000 |
| 2012 | $0 | $116,000 | $0 | $116,000 | $116,000 |
| 2011 | $0 | $116,000 | $0 | $116,000 | $116,000 |
| 2010 | $0 | $116,000 | $0 | $116,000 | $116,000 |
| 2009 | $0 | $200,000 | $0 | $200,000 | $200,000 |
| 2008 | $0 | $165,000 | $0 | $165,000 | $165,000 |
| 2007 | $0 | $165,000 | $0 | $165,000 | $165,000 |
Deed and Sales History
| 1 | 09/15/2025 | WD | Warranty Deed | REZENDES, CHRISTOPHER E | CHRISTOPHER REZENDES REVOCABLE TRUST | | | $0.00 | 65105 | 4592024 |
| 2 | 09/15/2025 | LACPROBATE | Lack of Probate | REZENDES, CHRISTOPHER E | REZENDES, CHRISTOPHER E | | | $0.00 | 64961 | 4591472 |
| 3 | 12/13/2019 | WD | Warranty Deed | HAMLIN, ANGELA R | REZENDES, CHRISTOPHER E | | | $1,018,888.00 | 41585 | 4478090 |
| 4 | 05/03/2014 | QCD | Quit Claim Deed | KEMP, CECIL N | HAMLIN, ANGELA R | | | $0.00 | 15173 | 4358860 |
| 5 | 07/01/1999 | WD | Warranty Deed | MCGARY ET AL, JOHN A | KEMP, CECIL N | | | $66,000.00 | 92650 | 99015761 |
| 6 | 05/29/1999 | ESTSEPPROP | Establish Separate Property | MCGARY ET AL, PHYLLIS | MCGARY ET AL, JOHN A | | | $0.00 | 92110 | 99013112 |
| 7 | 04/23/1998 | QCD | Quit Claim Deed | MCGARY, PHYLLIS E | MCGARY ET AL, PHYLLIS | | | $0.00 | 81516 | 98008275 |
| 8 | 02/01/1998 | QCD | Quit Claim Deed | MCGARY, PHYLLIS & | MCGARY, PHYLLIS E | | | $0.00 | 80570 | 98003049 |
| 9 | 12/01/1997 | QCD | Quit Claim Deed | MCGARY, PHYLLIS & | MCGARY, PHYLLIS, E | | | $0.00 | 74488 | 97021464 |
| 10 | 12/01/1997 | QCD | Quit Claim Deed | MCGARY, PHYLLIS, E | MCGARY, PHYLLIS & | | | $0.00 | 74487 | 97021463 |
| 11 | 12/01/1996 | QCD | Quit Claim Deed | MCGARY, PHYLLIS E | MCGARY, PHYLLIS & | | | $0.00 | 64511 | 96021913 |
| 12 | 02/01/1996 | OTHER | Other - Misc. Documents | MCGARY, PHYLLIS E | MCGARY, PHYLLIS E | | | $0.00 | 66779 | 0 |
| 13 | 12/01/1995 | QCD | Quit Claim Deed | MCGARY, PHYLLIS | MCGARY, PHYLLIS E | | | $0.00 | 54442 | 95020547 |
| 14 | 12/01/1994 | QCD | Quit Claim Deed | MCGARY, PHYLLIS E | MCGARY, PHYLLIS | | | $0.00 | 45167 | 94026236 |
| 15 | 12/01/1994 | QCD | Quit Claim Deed | MCGARY, PHYLLIS | MCGARY, PHYLLIS E | | | $0.00 | 45166 | 94026237 |
| 16 | 01/01/1988 | QCD | Quit Claim Deed | MCGARY, WILLARD | MCGARY, PHYLLIS | | | $0.00 | 80423 | 88001781 |
| 17 | 01/01/1900 | OTHER | Other - Misc. Documents | MCGARY, JOHN A | MCGARY, WILLARD | | | $0.00 | 0 | 0 |
Payout Agreement
| No payout information available.. |