Property
Account |
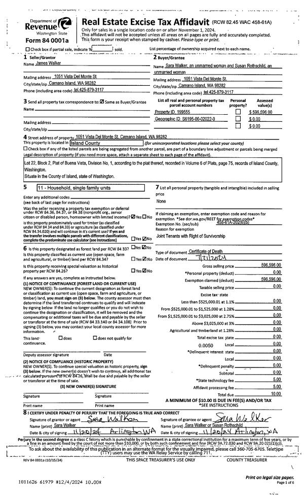
| Property ID: | 199555 | Abbreviated Legal Description: | BUENA VISTA 1 LOT 22 BLK 2 |
| Geographic ID: | S6195-00-02022-0 | Agent Code: | |
| Type: | Real | | |
| Tax Area: | 590 - APPRAISER-Stan/Cam Schl Dist, Special Dist, improved & less than 1 acre | Land Use Code | 11 |
| Open Space: | N | DFL | N |
| Historic Property: | N | Remodel Property: | N |
| Multi-Family Redevelopment: | N | | |
| Township: | | Section: | |
| Range: | |
Location |
| Address: | 1051 VISTA DEL MONTE ST CAMANO ISLAND, WA 98282 | Mapsco: | |
| Neighborhood: | North Camano | Map ID: | 962 |
| Neighborhood CD: | 06-C |
Owner |
| Name: | WALKER JTWROS, SARA | Owner ID: | 314742 |
| Mailing Address: | SUSAN ROTHSCHILD JTWROS 1051 VISTA DEL MONTE ST CAMANO ISLAND, WA 98282 | % Ownership: | 100.0000000000% |
| | | Exemptions: | SNR/DSBL |
Taxes and Assessment Details
Values
| (+) Improvement Homesite Value: | + | $202,817 | |
| (+) Improvement Non-Homesite Value: | + | $35,399 | |
| (+) Land Homesite Value: | + | $365,000 | |
| (+) Land Non-Homesite Value: | + | $0 | |
| (+) Curr Use (HS): | + | $0 | $0 |
| (+) Curr Use (NHS): | + | $0 | $0 |
| | | -------------------------- | |
| (=) Market Value: | = | $603,216 | |
| (–) Productivity Loss: | – | $0 | |
| | | -------------------------- | |
| (=) Subtotal: | = | $603,216 | |
| (+) Senior Appraised Value: | + | $280,002 | |
| (+) Non-Senior Appraised Value: | + | $35,399 | |
| | | -------------------------- | |
| (=) Total Appraised Value: | = | $315,401 | |
| (–) Senior Exemption Loss: | – | $168,001 | |
| (–) Exemption Loss: | – | $0 | |
| | | -------------------------- | |
| (=) Taxable Value: | = | $147,400 | |
Taxing Jurisdiction
| Owner: | WALKER JTWROS, SARA | | |
| % Ownership: | 100.0000000000% | | |
| Total Value: | $603,216 | | |
| Tax Area: | 590 - APPRAISER-Stan/Cam Schl Dist, Special Dist, improved & less than 1 acre |
| CF | Conservation Futures | 0.0313996660 | $603,216 | $147,400 | $4.63 | | |
| EMS1 | Fire & Rescue Dist #1 Camano GEN (EMS) | 0.4998471806 | $603,216 | $147,400 | $73.68 | | |
| FIRE1 | Fire & Rescue Dist #1 Camano GEN | 1.2496603404 | $603,216 | $147,400 | $184.20 | | |
| FIRE1BOND | Fire & Rescue Dist #1 Camano BOND | 0.0000000000 | $603,216 | $35,399 | $5.77 | | |
| CE | County Current Expense | 0.3674210519 | $603,216 | $147,400 | $54.16 | | |
| CR | County Roads | 0.4614296361 | $603,216 | $147,400 | $68.01 | | |
| LIB | Library Sno-Isle GEN | 0.3039084203 | $603,216 | $147,400 | $44.80 | | |
| SCH205_401 | School 205-401 Enrichment | 0.0000000000 | $603,216 | $35,399 | $48.49 | | |
| SCH205BOND | School 205-401 BOND | 0.0000000000 | $603,216 | $35,399 | $33.11 | | |
| ST | State School | 1.4761226122 | $603,216 | $147,400 | $217.58 | | |
| ST2 | State School Part 2 | 0.0000000000 | $603,216 | $35,399 | $28.16 | | |
| | Total Tax Rate: | 4.3897889075 | | | | | |
| | | | | Taxes w/Current Exemptions: | $762.59 | | |
| | | | | Taxes w/o Exemptions: | $4,616.68 | | |
Improvement / Building
| Improvement #1: | RESIDENTIAL | State Code: | Y | 1678.0 sqft | Value: | $238,216 |
| Bathrooms: | 2 | Bedrooms: | 2 | | Ceiling: | DRYWALL PAINTED | Exterior Wall/Cover: | WOOD SIDING | | Floor Covering: | CARPET/VINYL 80-20 | Floor Structure: | WOOD W/SUBFLOOR | | Foundation: | CONCRETE | Heating: | BASEBOARD ELECTRIC | | Interior Finish: | DRYWALL PAINT | Plumbing Fixture Cnt: | 9 | | Roof Slope: | 4" IN 12" | Roof Structure/Cover: | CJ ASPHALT |
|
| | Type | Description | Class CD | Sub Class CD | Year Built | Area |
| | BAS | BASE/MAIN FLOOR | 3 | 0 | 1974 | 1170.0 |
| | UB8 | BASEMENT UNFINISHED 8" | 3 | 0 | 1974 | 491.0 |
| | OWP | OPEN WOOD PORCH W/STEPS | 3 | 0 | 1974 | 600.0 |
| | DWN | DOWNSTAIRS LIVING AREA | 3 | 0 | 1974 | 508.0 |
Sketch
Property Image
Land
| 1 | 14 | SQ (08001-12000) | 0.0000 | 0.00 | 0.00 | 0.00 | 1.00 | $365,000 | $0 |
Roll Value History
| 2026 | N/A | N/A | N/A | N/A | N/A |
| 2025 | $238,216 | $365,000 | $0 | $603,216 | $147,400 |
| 2024 | $246,596 | $350,000 | $0 | $596,596 | $148,645 |
| 2023 | $249,831 | $350,000 | $0 | $599,831 | $149,126 |
| 2022 | $223,291 | $310,000 | $0 | $533,291 | $145,182 |
| 2021 | $196,715 | $190,000 | $0 | $386,715 | $141,233 |
| 2020 | $191,982 | $190,000 | $0 | $381,982 | $133,694 |
| 2019 | $141,207 | $230,000 | $0 | $371,207 | $112,001 |
| 2018 | $141,652 | $200,000 | $0 | $341,652 | $112,001 |
| 2017 | $142,543 | $180,000 | $0 | $322,543 | $112,001 |
| 2016 | $143,900 | $175,000 | $0 | $318,900 | $112,001 |
| 2015 | $145,744 | $100,000 | $0 | $245,744 | $98,298 |
| 2014 | $147,589 | $100,000 | $0 | $247,589 | $99,036 |
| 2013 | $149,434 | $100,000 | $0 | $249,434 | $99,774 |
| 2012 | $151,280 | $108,000 | $0 | $259,280 | $103,712 |
| 2011 | $153,124 | $135,000 | $0 | $288,124 | $112,001 |
| 2010 | $110,120 | $103,230 | $0 | $213,350 | $85,340 |
| 2009 | $115,002 | $165,000 | $0 | $280,002 | $112,001 |
| 2008 | $115,002 | $165,000 | $0 | $280,002 | $280,002 |
| 2007 | $116,610 | $165,000 | $0 | $281,610 | $281,610 |
Deed and Sales History
| 1 | 07/31/2024 | OTHER | Other - Misc. Documents | WALKER JTWROS, JAMES | WALKER JTWROS, SARA | | | $0.00 | 61979 | 4580011 |
| 2 | 10/12/2018 | QCD | Quit Claim Deed | ROTHSCHILD, SUSAN | ROTHSCHILD JTWROS, SUSAN | | | $106,085.00 | 36342 | 4453639 |
| 3 | 05/28/2010 | WD | Warranty Deed | JOHNSON, LEROY A | ROTHSCHILD, SUSAN | | | $299,000.00 | 1360 | 4274961 |
| 4 | 08/25/2005 | WD | Warranty Deed | MILLER, SHIRLEY W | JOHNSON, LEROY A | | | $295,000.00 | 54221 | 4145712 |
| 5 | 05/01/1992 | WD | Warranty Deed | WIDERSKI, LAWRENCE J | MILLER, SHIRLEY W | | | $0.00 | 22048 | 92009758 |
| 6 | 10/01/1987 | DECREE | Divorce Decree/Legal Separation | WIDERSKI, LAWRENCE J | WIDERSKI, LAWRENCE J | | | $0.00 | 73269 | 87014305 |
| 7 | 01/01/1900 | OTHER | Other - Misc. Documents | Unknown | WIDERSKI, LAWRENCE J | | | $0.00 | 0 | 0 |
Payout Agreement
| No payout information available.. |