Property
Account |
| Property ID: | 200696 | Abbreviated Legal Description: | BUENA VISTA 4 LOT 3 |
| Geographic ID: | S6195-04-00003-0 | Agent Code: | |
| Type: | Real | | |
| Tax Area: | 590 - APPRAISER-Stan/Cam Schl Dist, Special Dist, improved & less than 1 acre | Land Use Code | 11 |
| Open Space: | N | DFL | N |
| Historic Property: | N | Remodel Property: | N |
| Multi-Family Redevelopment: | N | | |
| Township: | | Section: | |
| Range: | |
Location |
| Address: | 159 SKY VISTA PLACE CAMANO ISLAND, WA 98282 | Mapsco: | |
| Neighborhood: | North Camano | Map ID: | 962 |
| Neighborhood CD: | 06-C |
Owner |
| Name: | GEARY, GORDON | Owner ID: | 292875 |
| Mailing Address: | RICKI GEARY 159 SKY VISTA PL CAMANO ISLAND, WA 98282 | % Ownership: | 100.0000000000% |
| | | Exemptions: | |
Taxes and Assessment Details
Values
| (+) Improvement Homesite Value: | + | $0 | |
| (+) Improvement Non-Homesite Value: | + | $461,182 | |
| (+) Land Homesite Value: | + | $0 | |
| (+) Land Non-Homesite Value: | + | $365,000 | |
| (+) Curr Use (HS): | + | $0 | $0 |
| (+) Curr Use (NHS): | + | $0 | $0 |
| | | -------------------------- | |
| (=) Market Value: | = | $826,182 | |
| (–) Productivity Loss: | – | $0 | |
| | | -------------------------- | |
| (=) Subtotal: | = | $826,182 | |
| (+) Senior Appraised Value: | + | $0 | |
| (+) Non-Senior Appraised Value: | + | $826,182 | |
| | | -------------------------- | |
| (=) Total Appraised Value: | = | $826,182 | |
| (–) Senior Exemption Loss: | – | $0 | |
| (–) Exemption Loss: | – | $0 | |
| | | -------------------------- | |
| (=) Taxable Value: | = | $826,182 | |
Taxing Jurisdiction
| Owner: | GEARY, GORDON | | |
| % Ownership: | 100.0000000000% | | |
| Total Value: | $826,182 | | |
| Tax Area: | 590 - APPRAISER-Stan/Cam Schl Dist, Special Dist, improved & less than 1 acre |
| CF | Conservation Futures | 0.0313996660 | $826,182 | $826,182 | $25.94 | | |
| EMS1 | Fire & Rescue Dist #1 Camano GEN (EMS) | 0.4998471806 | $826,182 | $826,182 | $412.96 | | |
| FIRE1 | Fire & Rescue Dist #1 Camano GEN | 1.2496603404 | $826,182 | $826,182 | $1,032.45 | | |
| FIRE1BOND | Fire & Rescue Dist #1 Camano BOND | 0.1630371212 | $826,182 | $826,182 | $134.70 | | |
| CE | County Current Expense | 0.3674210519 | $826,182 | $826,182 | $303.56 | | |
| CR | County Roads | 0.4614296361 | $826,182 | $826,182 | $381.22 | | |
| LIB | Library Sno-Isle GEN | 0.3039084203 | $826,182 | $826,182 | $251.08 | | |
| SCH205_401 | School 205-401 Enrichment | 1.3697998934 | $826,182 | $826,182 | $1,131.70 | | |
| SCH205BOND | School 205-401 BOND | 0.9354199323 | $826,182 | $826,182 | $772.83 | | |
| ST | State School | 1.4761226122 | $826,182 | $826,182 | $1,219.55 | | |
| ST2 | State School Part 2 | 0.7953803475 | $826,182 | $826,182 | $657.13 | | |
| | Total Tax Rate: | 7.6534262019 | | | | | |
| | | | | Taxes w/Current Exemptions: | $6,323.12 | | |
| | | | | Taxes w/o Exemptions: | $6,323.12 | | |
Improvement / Building
| Improvement #1: | RESIDENTIAL | State Code: | Y | 3360.5 sqft | Value: | $461,182 |
| Bathrooms: | 2.5 | Bedrooms: | 3 | | Ceiling: | DRYWALL PAINTED | Cooling: | HEAT PUMP/CONV/V | | Exterior Wall/Cover: | CEMENT FIBER | Floor Covering: | HARDWOOD/CARP 20-80 | | Floor Structure: | WOOD W/SUBFLOOR | Foundation: | CONCRETE | | Interior Finish: | DRYWALL PAINT | Plumbing Fixture Cnt: | 13 | | Roof Slope: | 5" IN 12" | Roof Structure/Cover: | CJ ASPHALT |
|
| | Type | Description | Class CD | Sub Class CD | Year Built | Area |
| | BAS | BASE/MAIN FLOOR | 3 | 0 | 1998 | 2126.0 |
| | BGR | BASEMENT GARAGE | 3 | 0 | 1998 | 768.0 |
| | OWP | OPEN WOOD PORCH W/STEPS | 3 | 0 | 1998 | 228.0 |
| | OWC | OPEN WOOD PORCH W/STEPS/ROOF/C | 3 | 0 | 1998 | 276.0 |
| | DWN | DOWNSTAIRS LIVING AREA | 3 | 0 | 1998 | 1234.5 |
| | OWC | OPEN WOOD PORCH W/STEPS/ROOF/C | 3 | 0 | 1998 | 233.0 |
Sketch
Property Image
Land
| 1 | 14 | SQ (08001-12000) | 0.0000 | 0.00 | 0.00 | 0.00 | 1.00 | $365,000 | $0 |
Roll Value History
| 2026 | N/A | N/A | N/A | N/A | N/A |
| 2025 | $461,182 | $365,000 | $0 | $826,182 | $826,182 |
| 2024 | $466,723 | $350,000 | $0 | $816,723 | $816,723 |
| 2023 | $472,262 | $350,000 | $0 | $822,262 | $822,262 |
| 2022 | $412,572 | $310,000 | $0 | $722,572 | $722,572 |
| 2021 | $363,140 | $190,000 | $0 | $553,140 | $553,140 |
| 2020 | $354,751 | $190,000 | $0 | $544,751 | $544,751 |
| 2019 | $289,939 | $230,000 | $0 | $519,939 | $519,939 |
| 2018 | $290,791 | $200,000 | $0 | $490,791 | $490,791 |
| 2017 | $292,491 | $180,000 | $0 | $472,491 | $472,491 |
| 2016 | $295,850 | $175,000 | $0 | $470,850 | $470,850 |
| 2015 | $299,415 | $100,000 | $0 | $399,415 | $399,415 |
| 2014 | $302,979 | $100,000 | $0 | $402,979 | $402,979 |
| 2013 | $306,544 | $100,000 | $0 | $406,544 | $406,544 |
| 2012 | $310,108 | $108,000 | $0 | $418,108 | $418,108 |
| 2011 | $313,673 | $135,000 | $0 | $448,673 | $448,673 |
| 2010 | $321,313 | $135,000 | $0 | $456,313 | $456,313 |
| 2009 | $334,992 | $250,000 | $0 | $584,992 | $584,992 |
| 2008 | $351,469 | $250,000 | $0 | $601,469 | $601,469 |
| 2007 | $355,406 | $250,000 | $0 | $605,406 | $605,406 |
Deed and Sales History
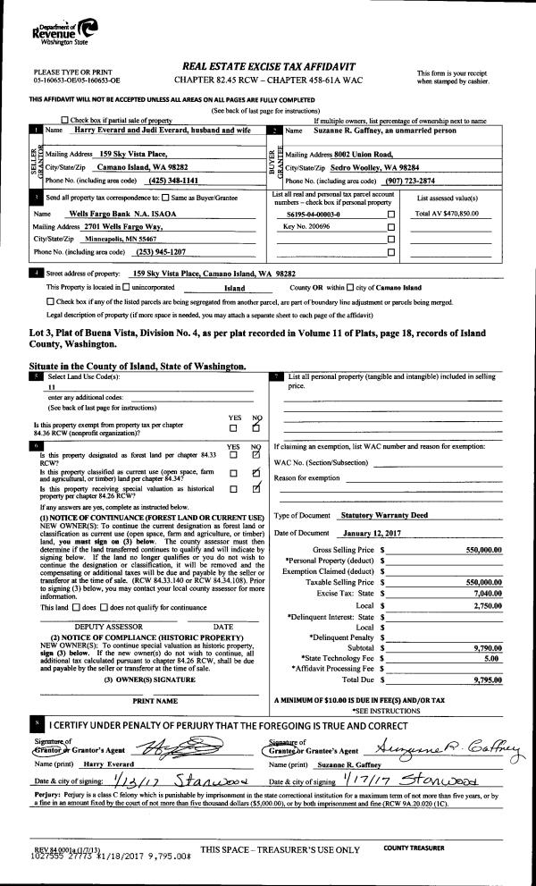
| 1 | 12/04/2019 | WD | Warranty Deed | GAFFNEY, SUZANNE R | GEARY, GORDON | | | $611,925.00 | 41432 | 4477353 |
| 2 | 01/12/2017 | WD | Warranty Deed | EVERARD, HARRY | GAFFNEY, SUZANNE R | | | $550,000.00 | 27773 | 4415370 |
| 3 | 08/19/2003 | WD | Warranty Deed | OLSON, ROBERT D/HALLIE W | EVERARD, HARRY | | | $425,000.00 | 33668 | 4071906 |
| 4 | 04/23/2001 | PRD | Personal Representatives Deed | OLSON, ROBERT D | OLSON, ROBERT D/HALLIE W | | | $0.00 | 11379 | 20030906 |
| 5 | 05/01/1997 | WD | Warranty Deed | SALCEDO, BERNARD R | OLSON, ROBERT D | | | $65,000.00 | 71569 | 97007272 |
| 6 | 06/01/1995 | WD | Warranty Deed | DESOTO, JOHN E | SALCEDO, BERNARD R | | | $0.00 | 52110 | 95009845 |
| 7 | 05/01/1994 | WD | Warranty Deed | SALCEDO, BERNARD R | DESOTO, JOHN E | | | $64,950.00 | 41960 | 94011522 |
| 8 | 07/01/1991 | WD | Warranty Deed | TAYLOR, ANNETTE | SALCEDO, BERNARD R | | | $60,000.00 | 12687 | 91011511 |
| 9 | 02/01/1991 | WD | Warranty Deed | EDWARDS, DAVID | TAYLOR, ANNETTE | | | $45,000.00 | 10498 | 91002313 |
| 10 | 12/01/1979 | EXECUTORD | Executor Deed | RENFRO, WILLIAM D | EDWARDS, DAVID | | | $23,750.00 | 210 | 364173 |
| 11 | 11/01/1979 | EZ | Easement | JONES, RICHARD M | RENFRO, WILLIAM D | | | $17,500.00 | 95701 | 362420 |
Payout Agreement
| No payout information available.. |