Property
Account |
| Property ID: | 200767 | Abbreviated Legal Description: | BUENA VISTA 4 LOT 10 |
| Geographic ID: | S6195-04-00010-0 | Agent Code: | |
| Type: | Real | | |
| Tax Area: | 590 - APPRAISER-Stan/Cam Schl Dist, Special Dist, improved & less than 1 acre | Land Use Code | 11 |
| Open Space: | N | DFL | N |
| Historic Property: | N | Remodel Property: | N |
| Multi-Family Redevelopment: | N | | |
| Township: | | Section: | |
| Range: | |
Location |
| Address: | 185 SKY VISTA PLACE CAMANO ISLAND, WA 98282 | Mapsco: | |
| Neighborhood: | North Camano | Map ID: | 962 |
| Neighborhood CD: | 06-C |
Owner |
| Name: | STEVENS, TRACY L | Owner ID: | 313207 |
| Mailing Address: | JEFFREY L HARRIS 742 ERIK WAY CAMANO ISLAND, WA 98282 | % Ownership: | 100.0000000000% |
| | | Exemptions: | |
Taxes and Assessment Details
Values
| (+) Improvement Homesite Value: | + | $0 | |
| (+) Improvement Non-Homesite Value: | + | $403,259 | |
| (+) Land Homesite Value: | + | $0 | |
| (+) Land Non-Homesite Value: | + | $275,000 | |
| (+) Curr Use (HS): | + | $0 | $0 |
| (+) Curr Use (NHS): | + | $0 | $0 |
| | | -------------------------- | |
| (=) Market Value: | = | $678,259 | |
| (–) Productivity Loss: | – | $0 | |
| | | -------------------------- | |
| (=) Subtotal: | = | $678,259 | |
| (+) Senior Appraised Value: | + | $0 | |
| (+) Non-Senior Appraised Value: | + | $678,259 | |
| | | -------------------------- | |
| (=) Total Appraised Value: | = | $678,259 | |
| (–) Senior Exemption Loss: | – | $0 | |
| (–) Exemption Loss: | – | $0 | |
| | | -------------------------- | |
| (=) Taxable Value: | = | $678,259 | |
Taxing Jurisdiction
| Owner: | STEVENS, TRACY L | | |
| % Ownership: | 100.0000000000% | | |
| Total Value: | $678,259 | | |
| Tax Area: | 590 - APPRAISER-Stan/Cam Schl Dist, Special Dist, improved & less than 1 acre |
| CF | Conservation Futures | 0.0313996660 | $678,259 | $678,259 | $21.30 | | |
| EMS1 | Fire & Rescue Dist #1 Camano GEN (EMS) | 0.4998471806 | $678,259 | $678,259 | $339.03 | | |
| FIRE1 | Fire & Rescue Dist #1 Camano GEN | 1.2496603404 | $678,259 | $678,259 | $847.59 | | |
| FIRE1BOND | Fire & Rescue Dist #1 Camano BOND | 0.1630371212 | $678,259 | $678,259 | $110.58 | | |
| CE | County Current Expense | 0.3674210519 | $678,259 | $678,259 | $249.21 | | |
| CR | County Roads | 0.4614296361 | $678,259 | $678,259 | $312.97 | | |
| LIB | Library Sno-Isle GEN | 0.3039084203 | $678,259 | $678,259 | $206.13 | | |
| SCH205_401 | School 205-401 Enrichment | 1.3697998934 | $678,259 | $678,259 | $929.08 | | |
| SCH205BOND | School 205-401 BOND | 0.9354199323 | $678,259 | $678,259 | $634.46 | | |
| ST | State School | 1.4761226122 | $678,259 | $678,259 | $1,001.19 | | |
| ST2 | State School Part 2 | 0.7953803475 | $678,259 | $678,259 | $539.47 | | |
| | Total Tax Rate: | 7.6534262019 | | | | | |
| | | | | Taxes w/Current Exemptions: | $5,191.01 | | |
| | | | | Taxes w/o Exemptions: | $5,191.01 | | |
Improvement / Building
| Improvement #1: | RESIDENTIAL | State Code: | Y | 2533.3 sqft | Value: | $403,259 |
| Bathrooms: | 2 | Bedrooms: | 2 | | Ceiling: | DRYWALL PAINTED | Exterior Wall/Cover: | CEMENT FIBER | | Floor Covering: | HARDWOOD/CARP 60-40 | Floor Structure: | WOOD W/SUBFLOOR | | Foundation: | CONCRETE | Heating: | FHA GAS | | Interior Finish: | DRYWALL PAINT | Plumbing Fixture Cnt: | 12 | | Roof Slope: | 5" IN 12" | Roof Structure/Cover: | CJ ASPHALT |
|
| | Type | Description | Class CD | Sub Class CD | Year Built | Area |
| | BAS | BASE/MAIN FLOOR | 3 | 0 | 2003 | 1437.8 |
| | DWN | DOWNSTAIRS LIVING AREA | 3 | 0 | 2003 | 1095.5 |
| | OP4 | OPEN PORCH W/CEILING-ROOF | 3 | 0 | 2003 | 36.0 |
| | AGR | ATTACHED GARAGE | 3 | 0 | 2003 | 440.0 |
| | OWP | OPEN WOOD PORCH W/STEPS | 3 | 0 | 2003 | 171.8 |
| | OWP | OPEN WOOD PORCH W/STEPS | 3 | 0 | 2003 | 192.0 |
Sketch
| No sketches available for this property. |
Property Image
Land
| 1 | 14 | SQ (08001-12000) | 0.0000 | 0.00 | 0.00 | 0.00 | 1.00 | $275,000 | $0 |
Roll Value History
| 2026 | N/A | N/A | N/A | N/A | N/A |
| 2025 | $403,259 | $275,000 | $0 | $678,259 | $678,259 |
| 2024 | $349,110 | $260,000 | $0 | $609,110 | $609,110 |
| 2023 | $353,204 | $290,000 | $0 | $643,204 | $643,204 |
| 2022 | $312,418 | $280,000 | $0 | $592,418 | $592,418 |
| 2021 | $274,887 | $160,000 | $0 | $434,887 | $434,887 |
| 2020 | $268,429 | $130,000 | $0 | $398,429 | $398,429 |
| 2019 | $208,346 | $170,000 | $0 | $378,346 | $378,346 |
| 2018 | $208,943 | $150,000 | $0 | $358,943 | $358,943 |
| 2017 | $210,136 | $120,000 | $0 | $330,136 | $330,136 |
| 2016 | $213,252 | $115,000 | $0 | $328,252 | $328,252 |
| 2015 | $215,649 | $85,000 | $0 | $300,649 | $300,649 |
| 2014 | $218,044 | $65,000 | $0 | $283,044 | $283,044 |
| 2013 | $220,441 | $65,000 | $0 | $285,441 | $285,441 |
| 2012 | $222,836 | $68,000 | $0 | $290,836 | $290,836 |
| 2011 | $225,233 | $85,000 | $0 | $310,233 | $310,233 |
| 2010 | $185,903 | $77,190 | $0 | $263,093 | $263,093 |
| 2009 | $195,656 | $130,000 | $0 | $325,656 | $325,656 |
| 2008 | $195,701 | $125,000 | $0 | $320,701 | $320,701 |
| 2007 | $197,751 | $125,000 | $0 | $322,751 | $322,751 |
Deed and Sales History
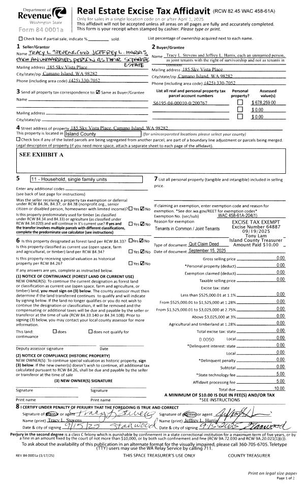
| 1 | 09/15/2025 | QCD | Quit Claim Deed | STEVENS, TRACY L | STEVENS JTWROS, TRACY L | | | $0.00 | 64887 | 4591214 |
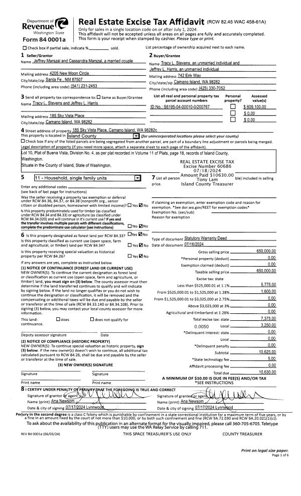
| 2 | 07/16/2024 | WD | Warranty Deed | MARSZAL, JEFFREY | STEVENS, TRACY L | | | $650,000.00 | 60686 | 4574784 |
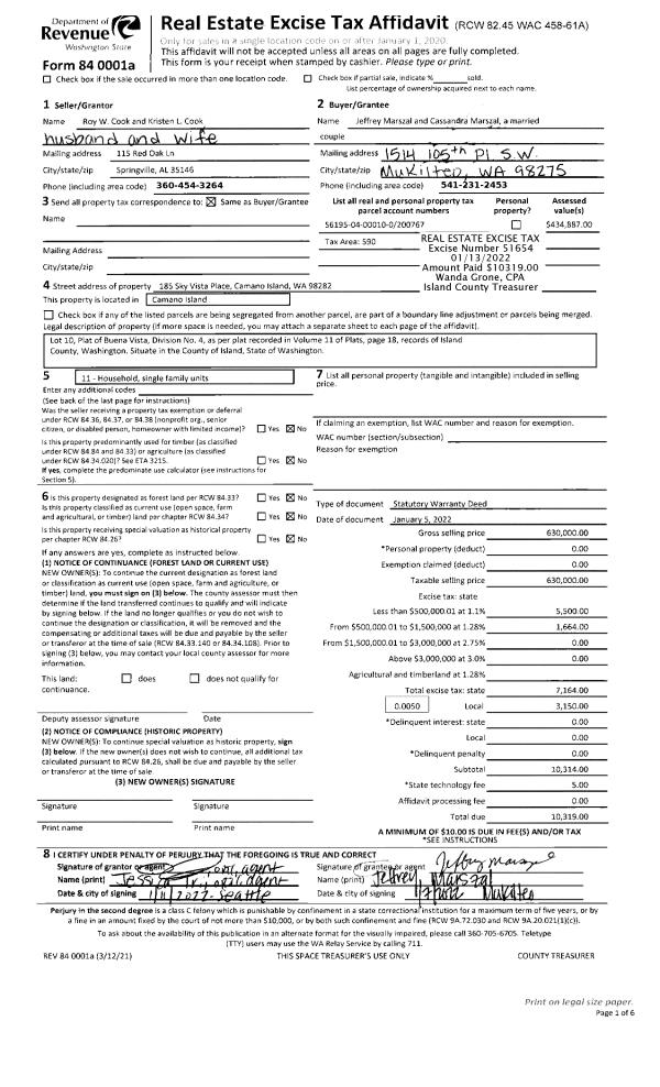
| 3 | 01/05/2022 | WD | Warranty Deed | COOK, ROY W | MARSZAL, JEFFREY | | | $630,000.00 | 51654 | 4537859 |
| 4 | 11/18/2011 | CCOMPROP | Create Community Property | COOK, ROY W | COOK, ROY W | | | $0.00 | 6220 | 4305280 |
| 5 | 03/04/2010 | TRUSTEED | Trustee's Deed | BOEING EMPLOYEES' CREDIT UNION | COOK, ROY W | | | $280,000.00 | 561 | 4270158 |
| 6 | 04/27/2009 | TRUSTEED | Trustee's Deed | KIRBY, PENNY F | BOEING EMPLOYEES' CREDIT UNION | | | $0.00 | 90934 | 4250117 |
| 7 | 07/24/2007 | WD | Warranty Deed | FOGARTY, LISANNE | KIRBY, PENNY F | | | $455,000.00 | 72600 | 4208449 |
| 8 | 05/14/2004 | WD | Warranty Deed | FOGARTY, JAY P | FOGARTY, LISANNE | | | $206,000.00 | 41013 | 4100507 |
| 9 | 06/17/2003 | WD | Warranty Deed | RENSHAW, THOMAS P | FOGARTY, JAY P | | | $42,000.00 | 32685 | 4063998 |
| 10 | 01/01/1900 | OTHER | Other - Misc. Documents | Unknown | RENSHAW, THOMAS P | | | $0.00 | 0 | 0 |
Payout Agreement
| No payout information available.. |