Property
Account |
| Property ID: | 201089 | Abbreviated Legal Description: | BUSH PT LOT 18 BLK 5 TGW EZ AF#56777 |
| Geographic ID: | S6205-00-05018-0 | Agent Code: | |
| Type: | Real | | |
| Tax Area: | 780 - APPRAISER-S Whid Schl Dist, Special District, improved & less than 1 acre | Land Use Code | 11 |
| Open Space: | N | DFL | N |
| Historic Property: | N | Remodel Property: | N |
| Multi-Family Redevelopment: | N | | |
| Township: | | Section: | |
| Range: | |
Location |
| Address: | 4884 MAGELLAN DR FREELAND, WA 98249 | Mapsco: | |
| Neighborhood: | Cycle 3 | Map ID: | 300 |
| Neighborhood CD: | 3 |
Owner |
| Name: | SMITH, BRADLEY J | Owner ID: | 297402 |
| Mailing Address: | JAIME L SMITH AND ANTHONY HAMILTON 4884 MAGELLAN DR FREELAND, WA 98249 | % Ownership: | 100.0000000000% |
| | | Exemptions: | |
Taxes and Assessment Details
Values
| (+) Improvement Homesite Value: | + | $0 | |
| (+) Improvement Non-Homesite Value: | + | $149,654 | |
| (+) Land Homesite Value: | + | $0 | |
| (+) Land Non-Homesite Value: | + | $390,000 | |
| (+) Curr Use (HS): | + | $0 | $0 |
| (+) Curr Use (NHS): | + | $0 | $0 |
| | | -------------------------- | |
| (=) Market Value: | = | $539,654 | |
| (–) Productivity Loss: | – | $0 | |
| | | -------------------------- | |
| (=) Subtotal: | = | $539,654 | |
| (+) Senior Appraised Value: | + | $0 | |
| (+) Non-Senior Appraised Value: | + | $539,654 | |
| | | -------------------------- | |
| (=) Total Appraised Value: | = | $539,654 | |
| (–) Senior Exemption Loss: | – | $0 | |
| (–) Exemption Loss: | – | $0 | |
| | | -------------------------- | |
| (=) Taxable Value: | = | $539,654 | |
Taxing Jurisdiction
| Owner: | SMITH, BRADLEY J | | |
| % Ownership: | 100.0000000000% | | |
| Total Value: | $539,654 | | |
| Tax Area: | 780 - APPRAISER-S Whid Schl Dist, Special District, improved & less than 1 acre |
| CF | Conservation Futures | 0.0313996660 | $539,654 | $539,654 | $16.94 | | |
| FIRE3 | Fire & Rescue Dist #3 S Whidbey GEN | 1.2130821753 | $539,654 | $539,654 | $654.64 | | |
| HOBOND | Hospital BOND | 0.1893405597 | $539,654 | $539,654 | $102.18 | | |
| HOGEN | Hospital GEN | 0.3848777722 | $539,654 | $539,654 | $207.70 | | |
| CE | County Current Expense | 0.3674210519 | $539,654 | $539,654 | $198.28 | | |
| CR | County Roads | 0.4614296361 | $539,654 | $539,654 | $249.01 | | |
| ISLANDEMS | Hospital GEN (EMS) | 0.4952018576 | $539,654 | $539,654 | $267.24 | | |
| LIB | Library Sno-Isle GEN | 0.3039084203 | $539,654 | $539,654 | $164.01 | | |
| PORTWHID | Port of S Whidbey GEN | 0.1086004714 | $539,654 | $539,654 | $58.61 | | |
| SCH206BOND | School 206 BOND | 0.5960237832 | $539,654 | $539,654 | $321.65 | | |
| SCH206CAP | School 206 CP | 0.3066144020 | $539,654 | $539,654 | $165.47 | | |
| SCH206MO | School 206 Enrichment | 0.4808755445 | $539,654 | $539,654 | $259.51 | | |
| ST | State School | 1.4761226122 | $539,654 | $539,654 | $796.60 | | |
| ST2 | State School Part 2 | 0.7953803475 | $539,654 | $539,654 | $429.23 | | |
| SWHIDPRBD | P & R S Whidbey BOND | 0.0144185398 | $539,654 | $539,654 | $7.78 | | |
| SWHIDPRBD3 | P & R S Whidbey BOND3 | 0.1483535547 | $539,654 | $539,654 | $80.06 | | |
| SWHIDPRMT | P & R S Whidbey GEN | 0.4600000000 | $539,654 | $539,654 | $248.24 | | |
| | Total Tax Rate: | 7.8330503944 | | | | | |
| | | | | Taxes w/Current Exemptions: | $4,227.15 | | |
| | | | | Taxes w/o Exemptions: | $4,227.15 | | |
Improvement / Building
| Improvement #1: | RESIDENTIAL | State Code: | Y | 936.0 sqft | Value: | $149,654 |
| Bathrooms: | 1 | Bedrooms: | 3 | | Ceiling: | DRYWALL PAINTED | Exterior Wall/Cover: | WOOD SIDING | | Floor Covering: | CARPET/VINYL 80-20 | Floor Structure: | WOOD W/SUBFLOOR | | Foundation: | CONCRETE | Heating: | BASEBOARD ELECTRIC | | Interior Finish: | DRYWALL PAINT | Plumbing Fixture Cnt: | 5 | | Roof Slope: | 4" IN 12" | Roof Structure/Cover: | CJ ASPHALT |
|
| | Type | Description | Class CD | Sub Class CD | Year Built | Area |
| | BAS | BASE/MAIN FLOOR | 3 | 0 | 1952 | 936.0 |
| | OWC | OPEN WOOD PORCH W/STEPS/ROOF/C | 3 | 0 | 1952 | 32.0 |
| | OCP | OPEN CARPORT | 3 | 0 | 1952 | 280.0 |
| | OWP | OPEN WOOD PORCH W/STEPS | 3 | 0 | 1952 | 312.0 |
Sketch
Property Image
Land
| 1 | 13 | SQ (06001-08000) | 0.0000 | 0.00 | 0.00 | 0.00 | 1.00 | $390,000 | $0 |
Roll Value History
| 2026 | N/A | N/A | N/A | N/A | N/A |
| 2025 | $149,654 | $390,000 | $0 | $539,654 | $539,654 |
| 2024 | $155,031 | $340,000 | $0 | $495,031 | $495,031 |
| 2023 | $157,118 | $340,000 | $0 | $497,118 | $497,118 |
| 2022 | $144,166 | $290,000 | $0 | $434,166 | $434,166 |
| 2021 | $127,008 | $240,000 | $0 | $367,008 | $367,008 |
| 2020 | $123,945 | $170,000 | $0 | $293,945 | $293,945 |
| 2019 | $55,824 | $130,000 | $0 | $185,824 | $185,824 |
| 2018 | $56,072 | $130,000 | $0 | $186,072 | $186,072 |
| 2017 | $56,568 | $120,000 | $0 | $176,568 | $176,568 |
| 2016 | $57,560 | $100,000 | $0 | $157,560 | $157,560 |
| 2015 | $58,552 | $100,000 | $0 | $158,552 | $158,552 |
| 2014 | $59,545 | $85,000 | $0 | $144,545 | $144,545 |
| 2013 | $50,614 | $85,000 | $0 | $135,614 | $135,614 |
| 2012 | $51,606 | $85,000 | $0 | $136,606 | $136,606 |
| 2011 | $52,598 | $100,000 | $0 | $152,598 | $152,598 |
| 2010 | $50,489 | $100,000 | $0 | $150,489 | $150,489 |
| 2009 | $52,048 | $135,000 | $0 | $187,048 | $187,048 |
| 2008 | $53,008 | $150,870 | $0 | $203,878 | $203,878 |
| 2007 | $52,065 | $150,000 | $0 | $202,065 | $202,065 |
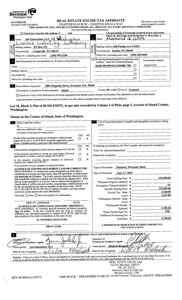
Deed and Sales History
| 1 | 12/11/2020 | WD | Warranty Deed | BORYSIAK, MARK D | SMITH, BRADLEY J | | | $410,000.00 | 46096 | 4505000 |
| 2 | 06/17/2019 | WD | Warranty Deed | JAD ENTERPRISES, LLC | BORYSIAK, MARK D | | | $325,000.00 | 39075 | 4465805 |
| 3 | 01/03/2017 | CHGOFIDENT | DNU - Change In Identity | JADERHOLM, JERRY E | JAD ENTERPRISES, LLC | | | $0.00 | 27586 | 4414478 |
| 4 | 09/22/2003 | WD | Warranty Deed | MITCHELL, JOHN R | JADERHOLM, JERRY E | | | $130,000.00 | 34393 | 4077252 |
| 5 | 08/01/1988 | QCD | Quit Claim Deed | MITCHELL, JOHN R | MITCHELL, JOHN R | | | $0.00 | 62899 | 88010384 |
| 6 | 07/01/1984 | QCD | Quit Claim Deed | MITCHELL, JOHN & | MITCHELL, JOHN R | | | $0.00 | 42330 | 84001718 |
| 7 | 08/01/1978 | OTHER | Other - Misc. Documents | Unknown | MITCHELL, JOHN & | | | $22,500.00 | 84136 | 338703 |
Payout Agreement
| No payout information available.. |