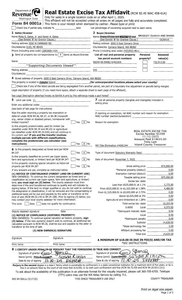
Property
Account |
| Property ID: | 201613 | Abbreviated Legal Description: | BUSH PT LOTS 6, 7 & 8 BLK 10 |
| Geographic ID: | S6205-00-10006-0 | Agent Code: | |
| Type: | Real | | |
| Tax Area: | 780 - APPRAISER-S Whid Schl Dist, Special District, improved & less than 1 acre | Land Use Code | 11 |
| Open Space: | N | DFL | N |
| Historic Property: | N | Remodel Property: | N |
| Multi-Family Redevelopment: | N | | |
| Township: | | Section: | |
| Range: | |
Location |
| Address: | 271 SPYGLASS DR FREELAND, WA 98249 | Mapsco: | |
| Neighborhood: | Cycle 3 | Map ID: | 300 |
| Neighborhood CD: | 3 |
Owner |
| Name: | TEASELL, JEREMY | Owner ID: | 305231 |
| Mailing Address: | 271 SPYGLASS DR FREELAND, WA 98249 | % Ownership: | 100.0000000000% |
| | | Exemptions: | |
Taxes and Assessment Details
Values
| (+) Improvement Homesite Value: | + | $0 | |
| (+) Improvement Non-Homesite Value: | + | $386,627 | |
| (+) Land Homesite Value: | + | $0 | |
| (+) Land Non-Homesite Value: | + | $661,500 | |
| (+) Curr Use (HS): | + | $0 | $0 |
| (+) Curr Use (NHS): | + | $0 | $0 |
| | | -------------------------- | |
| (=) Market Value: | = | $1,048,127 | |
| (–) Productivity Loss: | – | $0 | |
| | | -------------------------- | |
| (=) Subtotal: | = | $1,048,127 | |
| (+) Senior Appraised Value: | + | $0 | |
| (+) Non-Senior Appraised Value: | + | $1,048,127 | |
| | | -------------------------- | |
| (=) Total Appraised Value: | = | $1,048,127 | |
| (–) Senior Exemption Loss: | – | $0 | |
| (–) Exemption Loss: | – | $0 | |
| | | -------------------------- | |
| (=) Taxable Value: | = | $1,048,127 | |
Taxing Jurisdiction
| Owner: | TEASELL, JEREMY | | |
| % Ownership: | 100.0000000000% | | |
| Total Value: | $1,048,127 | | |
| Tax Area: | 780 - APPRAISER-S Whid Schl Dist, Special District, improved & less than 1 acre |
| CF | Conservation Futures | 0.0313996660 | $1,048,127 | $1,048,127 | $32.91 | | |
| FIRE3 | Fire & Rescue Dist #3 S Whidbey GEN | 1.2130821753 | $1,048,127 | $1,048,127 | $1,271.46 | | |
| HOBOND | Hospital BOND | 0.1893405597 | $1,048,127 | $1,048,127 | $198.45 | | |
| HOGEN | Hospital GEN | 0.3848777722 | $1,048,127 | $1,048,127 | $403.40 | | |
| CE | County Current Expense | 0.3674210519 | $1,048,127 | $1,048,127 | $385.10 | | |
| CR | County Roads | 0.4614296361 | $1,048,127 | $1,048,127 | $483.64 | | |
| ISLANDEMS | Hospital GEN (EMS) | 0.4952018576 | $1,048,127 | $1,048,127 | $519.03 | | |
| LIB | Library Sno-Isle GEN | 0.3039084203 | $1,048,127 | $1,048,127 | $318.53 | | |
| PORTWHID | Port of S Whidbey GEN | 0.1086004714 | $1,048,127 | $1,048,127 | $113.83 | | |
| SCH206BOND | School 206 BOND | 0.5960237832 | $1,048,127 | $1,048,127 | $624.71 | | |
| SCH206CAP | School 206 CP | 0.3066144020 | $1,048,127 | $1,048,127 | $321.37 | | |
| SCH206MO | School 206 Enrichment | 0.4808755445 | $1,048,127 | $1,048,127 | $504.02 | | |
| ST | State School | 1.4761226122 | $1,048,127 | $1,048,127 | $1,547.16 | | |
| ST2 | State School Part 2 | 0.7953803475 | $1,048,127 | $1,048,127 | $833.66 | | |
| SWHIDPRBD | P & R S Whidbey BOND | 0.0144185398 | $1,048,127 | $1,048,127 | $15.11 | | |
| SWHIDPRBD3 | P & R S Whidbey BOND3 | 0.1483535547 | $1,048,127 | $1,048,127 | $155.49 | | |
| SWHIDPRMT | P & R S Whidbey GEN | 0.4600000000 | $1,048,127 | $1,048,127 | $482.14 | | |
| | Total Tax Rate: | 7.8330503944 | | | | | |
| | | | | Taxes w/Current Exemptions: | $8,210.01 | | |
| | | | | Taxes w/o Exemptions: | $8,210.01 | | |
Improvement / Building
| Improvement #1: | RESIDENTIAL | State Code: | Y | 1718.0 sqft | Value: | $386,627 |
| Bathrooms: | 2 | Bedrooms: | 2 | | Ceiling: | TONGUE & GROOVE | Exterior Wall/Cover: | SHINGLE | | Floor Covering: | HARDWOOD/CARP 60-40 | Floor Structure: | WOOD W/SUBFLOOR | | Foundation: | CONCRETE | Heating: | FHA GAS | | Interior Finish: | DRYWALL PAINT | Plumbing Fixture Cnt: | 12 | | Roof Slope: | 6" IN 12" | Roof Structure/Cover: | CJ ASPHALT |
|
| | Type | Description | Class CD | Sub Class CD | Year Built | Area |
| | BAS | BASE/MAIN FLOOR | 4 | 0 | 2003 | 908.5 |
| | OP1 | OPEN PORCH SLAB | 4 | 0 | 2003 | 590.0 |
| | OWP | OPEN WOOD PORCH W/STEPS | 4 | 0 | 2003 | 128.0 |
| | OWC | OPEN WOOD PORCH W/STEPS/ROOF/C | 4 | 0 | 2003 | 189.0 |
| | OWC | OPEN WOOD PORCH W/STEPS/ROOF/C | 4 | 0 | 2003 | 48.8 |
| | DWN | DOWNSTAIRS LIVING AREA | 4 | 0 | 2003 | 809.5 |
| | oWDD | WOOD DECK | 4 | 0 | 2003 | 0.0 |
Sketch
Property Image
Land
| 1 | HB | HIGH BLUFF | 0.0000 | 0.00 | 150.00 | 0.00 | 1.00 | $661,500 | $0 |
Roll Value History
| 2026 | N/A | N/A | N/A | N/A | N/A |
| 2025 | $386,627 | $661,500 | $0 | $1,048,127 | $1,048,127 |
| 2024 | $391,046 | $661,500 | $0 | $1,052,546 | $1,052,546 |
| 2023 | $395,465 | $630,000 | $0 | $1,025,465 | $1,025,465 |
| 2022 | $326,365 | $600,000 | $0 | $926,365 | $926,365 |
| 2021 | $287,208 | $500,000 | $0 | $787,208 | $787,208 |
| 2020 | $279,370 | $500,000 | $0 | $779,370 | $779,370 |
| 2019 | $196,528 | $550,000 | $0 | $746,528 | $746,528 |
| 2018 | $197,094 | $550,000 | $0 | $747,094 | $747,094 |
| 2017 | $198,122 | $500,000 | $0 | $698,122 | $698,122 |
| 2016 | $200,387 | $500,000 | $0 | $700,387 | $700,387 |
| 2015 | $202,653 | $500,000 | $0 | $702,653 | $702,653 |
| 2014 | $204,918 | $500,000 | $0 | $704,918 | $704,918 |
| 2013 | $207,182 | $463,511 | $0 | $670,693 | $670,693 |
| 2012 | $205,692 | $463,511 | $0 | $669,203 | $669,203 |
| 2011 | $207,956 | $463,511 | $0 | $671,467 | $671,467 |
| 2010 | $219,552 | $463,511 | $0 | $683,063 | $683,063 |
| 2009 | $229,073 | $618,013 | $0 | $847,086 | $847,086 |
| 2008 | $234,409 | $618,013 | $0 | $852,422 | $852,422 |
| 2007 | $228,007 | $391,148 | $0 | $619,155 | $619,155 |
Deed and Sales History
| 1 | 07/25/2022 | QCD | Quit Claim Deed | MACINTOSH. KRISTIN ELIZABETH | TEASELL, JEREMY | | | $0.00 | 53972 | 4548949 |
| 2 | 07/25/2022 | WD | Warranty Deed | LAPHAM, JOHN | TEASELL, JEREMY | | | $1,330,000.00 | 53971 | 4548948 |
| 3 | 03/17/2017 | QCD | Quit Claim Deed | LAPHAM III, JOHN J | LAPHAM, JOHN | | | $0.00 | 28808 | 4420409 |
| 4 | 11/01/2012 | WD | Warranty Deed | POPKE, MICHAEL H | LAPHAM III, JOHN J | | | $710,000.00 | 9357 | 4326558 |
| 5 | 05/30/2002 | BLA | DNU - Boundary Line Adjustment | PAPKE, MICHAEL H | POPKE, MICHAEL H | | | $0.00 | 69443 | 20041763 |
| 6 | 05/01/1993 | OTHER | Other - Misc. Documents | POPKE, MICHAEL H | PAPKE, MICHAEL H | | | $10,660.00 | 31958 | 0 |
| 7 | 05/01/1993 | WD | Warranty Deed | CHAPIN, RICHARD U | POPKE, MICHAEL H | | | $119,350.00 | 31957 | 93010171 |
| 8 | 03/01/1983 | OTHER | Other - Misc. Documents | CHAPIN, RICHARD U | CHAPIN, RICHARD U | | | $7,500.00 | 30638 | 0 |
| 9 | 06/01/1982 | CD | DNU - Correction Deed | CHAPIN, HOPE R | CHAPIN, RICHARD U | | | $0.00 | 21449 | 397451 |
| 10 | 01/01/1900 | OTHER | Other - Misc. Documents | Unknown | CHAPIN, HOPE R | | | $0.00 | 0 | 0 |
Payout Agreement
| No payout information available.. |