Property
Account |
| Property ID: | 20186 | Abbreviated Legal Description: | 31 - IN GL1:BG NW CR HATH DLC E1637.22' TPB E484' TO RD N90' W484' S90' TPB EX PT TO IS CO AF# 4141961 |
| Geographic ID: | R13216-195-5060 | Agent Code: | |
| Type: | Real | | |
| Tax Area: | 110 - APPRAISER-OH Schl Dist, outside OH, improved & 1 acre or less | Land Use Code | 11 |
| Open Space: | N | DFL | N |
| Historic Property: | N | Remodel Property: | N |
| Multi-Family Redevelopment: | N | | |
| Township: | 32 | Section: | 16 |
| Range: | R1 |
Location |
| Address: | 1347 MONROE LANDING RD OAK HARBOR, WA 98277 | Mapsco: | |
| Neighborhood: | Cycle 1 | Map ID: | 129 |
| Neighborhood CD: | 1 |
Owner |
| Name: | RAPP, TODD A | Owner ID: | 282350 |
| Mailing Address: | DANICA RAPP 1347 MONROE LANDING RD OAK HARBOR, WA 98277 | % Ownership: | 100.0000000000% |
| | | Exemptions: | |
Taxes and Assessment Details
Values
| (+) Improvement Homesite Value: | + | $0 | |
| (+) Improvement Non-Homesite Value: | + | $247,933 | |
| (+) Land Homesite Value: | + | $0 | |
| (+) Land Non-Homesite Value: | + | $220,000 | |
| (+) Curr Use (HS): | + | $0 | $0 |
| (+) Curr Use (NHS): | + | $0 | $0 |
| | | -------------------------- | |
| (=) Market Value: | = | $467,933 | |
| (–) Productivity Loss: | – | $0 | |
| | | -------------------------- | |
| (=) Subtotal: | = | $467,933 | |
| (+) Senior Appraised Value: | + | $0 | |
| (+) Non-Senior Appraised Value: | + | $467,933 | |
| | | -------------------------- | |
| (=) Total Appraised Value: | = | $467,933 | |
| (–) Senior Exemption Loss: | – | $0 | |
| (–) Exemption Loss: | – | $0 | |
| | | -------------------------- | |
| (=) Taxable Value: | = | $467,933 | |
Taxing Jurisdiction
| Owner: | RAPP, TODD A | | |
| % Ownership: | 100.0000000000% | | |
| Total Value: | $467,933 | | |
| Tax Area: | 110 - APPRAISER-OH Schl Dist, outside OH, improved & 1 acre or less |
| CF | Conservation Futures | 0.0313996660 | $467,933 | $467,933 | $14.69 | | |
| CEM1 | Cemetery #1 | 0.0040018856 | $467,933 | $467,933 | $1.87 | | |
| FIRE2 | Fire & Rescue Dist #2 N Whidbey GEN | 0.5381486274 | $467,933 | $467,933 | $251.82 | | |
| HOBOND | Hospital BOND | 0.1893405597 | $467,933 | $467,933 | $88.60 | | |
| HOGEN | Hospital GEN | 0.3848777722 | $467,933 | $467,933 | $180.10 | | |
| CE | County Current Expense | 0.3674210519 | $467,933 | $467,933 | $171.93 | | |
| CR | County Roads | 0.4614296361 | $467,933 | $467,933 | $215.92 | | |
| ISLANDEMS | Hospital GEN (EMS) | 0.4952018576 | $467,933 | $467,933 | $231.72 | | |
| LIB | Library Sno-Isle GEN | 0.3039084203 | $467,933 | $467,933 | $142.21 | | |
| NWHIDPRMT | P & R N Whidbey GEN | 0.1990272349 | $467,933 | $467,933 | $93.13 | | |
| SCH201MO | School 201 Enrichment | 2.3851112745 | $467,933 | $467,933 | $1,116.07 | | |
| ST | State School | 1.4761226122 | $467,933 | $467,933 | $690.73 | | |
| ST2 | State School Part 2 | 0.7953803475 | $467,933 | $467,933 | $372.18 | | |
| | Total Tax Rate: | 7.6313709459 | | | | | |
| | | | | Taxes w/Current Exemptions: | $3,570.97 | | |
| | | | | Taxes w/o Exemptions: | $3,570.97 | | |
Improvement / Building
| Improvement #1: | RESIDENTIAL | State Code: | Y | 1669.0 sqft | Value: | $247,933 |
| Bathrooms: | 2 | Bedrooms: | 3 | | Ceiling: | DRYWALL PAINTED | Exterior Wall/Cover: | WOOD SIDING | | Floor Covering: | CARPET/VINYL 80-20 | Floor Structure: | WOOD W/SUBFLOOR | | Foundation: | CONCRETE BLOCKS | Heating: | FHA ELECTRIC | | Interior Finish: | DRYWALL PAINT | Plumbing Fixture Cnt: | 9 | | Roof Slope: | 12" IN 12" | Roof Structure/Cover: | CJ ASPHALT |
|
| | Type | Description | Class CD | Sub Class CD | Year Built | Area |
| | BAS | BASE/MAIN FLOOR | 3 | 0 | 1923 | 1213.0 |
| | OWC | OPEN WOOD PORCH W/STEPS/ROOF/C | 3 | 0 | 1923 | 12.0 |
| | UPH | HALF STORY | 3 | 0 | 1923 | 456.0 |
| | DGR | DETACHED GARAGE | 3 | 0 | 1923 | 900.0 |
Sketch
Property Image
Land
| 1 | 16 | AC (00.51-01.00) | 0.9800 | 42688.80 | 0.00 | 0.00 | 1.00 | $220,000 | $0 |
Roll Value History
| 2026 | N/A | N/A | N/A | N/A | N/A |
| 2025 | $247,933 | $220,000 | $0 | $467,933 | $467,933 |
| 2024 | $251,317 | $200,000 | $0 | $451,317 | $451,317 |
| 2023 | $263,245 | $200,000 | $0 | $463,245 | $463,245 |
| 2022 | $241,544 | $180,000 | $0 | $421,544 | $421,544 |
| 2021 | $212,783 | $135,000 | $0 | $347,783 | $347,783 |
| 2020 | $207,713 | $100,000 | $0 | $307,713 | $307,713 |
| 2019 | $151,332 | $160,000 | $0 | $311,332 | $311,332 |
| 2018 | $151,808 | $140,000 | $0 | $291,808 | $291,808 |
| 2017 | $96,202 | $120,000 | $0 | $216,202 | $216,202 |
| 2016 | $97,856 | $120,000 | $0 | $217,856 | $217,856 |
| 2015 | $99,509 | $90,000 | $0 | $189,509 | $189,509 |
| 2014 | $101,162 | $90,000 | $0 | $191,162 | $191,162 |
| 2013 | $102,818 | $102,000 | $0 | $204,818 | $204,818 |
| 2012 | $104,472 | $102,000 | $0 | $206,472 | $206,472 |
| 2011 | $109,690 | $120,000 | $0 | $229,690 | $229,690 |
| 2010 | $123,480 | $120,000 | $0 | $243,480 | $243,480 |
| 2009 | $128,515 | $108,000 | $0 | $236,515 | $236,515 |
| 2008 | $130,686 | $108,900 | $0 | $239,586 | $239,586 |
| 2007 | $131,185 | $108,900 | $0 | $240,085 | $240,085 |
Deed and Sales History
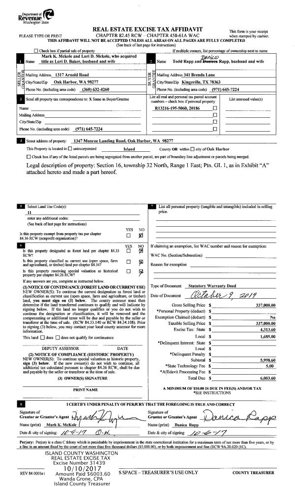
| 1 | 10/09/2017 | WD | Warranty Deed | MCKOLE, MARK K | RAPP, TODD A | | | $337,000.00 | 31439 | 4431720 |
| 2 | 10/27/2005 | QCD | Quit Claim Deed | MCKOLE, MARK K | MCKOLE, MARK K | | | $1,750.00 | 70721 | 4141961 |
| 3 | 04/01/1986 | WD | Warranty Deed | HAGLE, GORDON E | MCKOLE, MARK K | | | $63,800.00 | 61051 | 86004862 |
| 4 | 02/01/1982 | WD | Warranty Deed | JONES, GREGORY R | HAGLE, GORDON E | | | $57,000.00 | 20273 | 392801 |
| 5 | 01/01/1980 | QCD | Quit Claim Deed | JONES, GREGORY R | JONES, GREGORY R | | | $0.00 | 303 | 364492 |
| 6 | 03/01/1979 | OTHER | Other - Misc. Documents | Unknown | JONES, GREGORY R | | | $47,500.00 | 91644 | 350679 |
Payout Agreement
| No payout information available.. |