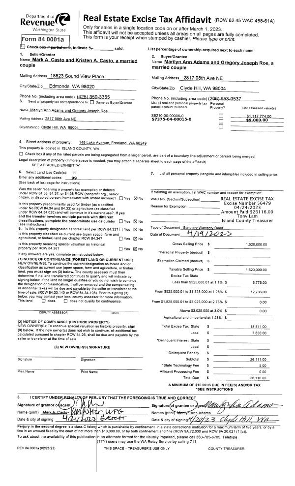
Property
Account |
| Property ID: | 202079 | Abbreviated Legal Description: | BUSH PT BCH LOT 6 INCL ADJ TIDES |
| Geographic ID: | S6210-00-00006-0 | Agent Code: | |
| Type: | Real | | |
| Tax Area: | 710 - APPRAISER-S Whid Schl Dist, outside Langley, improved & 1 acre or less | Land Use Code | 11 |
| Open Space: | N | DFL | N |
| Historic Property: | N | Remodel Property: | N |
| Multi-Family Redevelopment: | N | | |
| Township: | | Section: | |
| Range: | |
Location |
| Address: | 146 LAKE AVE FREELAND, WA 98249 | Mapsco: | |
| Neighborhood: | Cycle 3 | Map ID: | 300 |
| Neighborhood CD: | 3 |
Owner |
| Name: | ADAMS, MARILYN ANN | Owner ID: | 308450 |
| Mailing Address: | GREGORY JOSEPH ROE 2817 98TH AVE NE CLYDE HILL, WA 98004 | % Ownership: | 100.0000000000% |
| | | Exemptions: | |
Taxes and Assessment Details
Values
| (+) Improvement Homesite Value: | + | $0 | |
| (+) Improvement Non-Homesite Value: | + | $225,891 | |
| (+) Land Homesite Value: | + | $0 | |
| (+) Land Non-Homesite Value: | + | $945,650 | |
| (+) Curr Use (HS): | + | $0 | $0 |
| (+) Curr Use (NHS): | + | $0 | $0 |
| | | -------------------------- | |
| (=) Market Value: | = | $1,171,541 | |
| (–) Productivity Loss: | – | $0 | |
| | | -------------------------- | |
| (=) Subtotal: | = | $1,171,541 | |
| (+) Senior Appraised Value: | + | $0 | |
| (+) Non-Senior Appraised Value: | + | $1,171,541 | |
| | | -------------------------- | |
| (=) Total Appraised Value: | = | $1,171,541 | |
| (–) Senior Exemption Loss: | – | $0 | |
| (–) Exemption Loss: | – | $0 | |
| | | -------------------------- | |
| (=) Taxable Value: | = | $1,171,541 | |
Taxing Jurisdiction
| Owner: | ADAMS, MARILYN ANN | | |
| % Ownership: | 100.0000000000% | | |
| Total Value: | $1,171,541 | | |
| Tax Area: | 710 - APPRAISER-S Whid Schl Dist, outside Langley, improved & 1 acre or less |
| CF | Conservation Futures | 0.0313996660 | $1,171,541 | $1,171,541 | $36.79 | | |
| FIRE3 | Fire & Rescue Dist #3 S Whidbey GEN | 1.2130821753 | $1,171,541 | $1,171,541 | $1,421.18 | | |
| HOBOND | Hospital BOND | 0.1893405597 | $1,171,541 | $1,171,541 | $221.82 | | |
| HOGEN | Hospital GEN | 0.3848777722 | $1,171,541 | $1,171,541 | $450.90 | | |
| CE | County Current Expense | 0.3674210519 | $1,171,541 | $1,171,541 | $430.45 | | |
| CR | County Roads | 0.4614296361 | $1,171,541 | $1,171,541 | $540.58 | | |
| ISLANDEMS | Hospital GEN (EMS) | 0.4952018576 | $1,171,541 | $1,171,541 | $580.15 | | |
| LIB | Library Sno-Isle GEN | 0.3039084203 | $1,171,541 | $1,171,541 | $356.04 | | |
| PORTWHID | Port of S Whidbey GEN | 0.1086004714 | $1,171,541 | $1,171,541 | $127.23 | | |
| SCH206BOND | School 206 BOND | 0.5960237832 | $1,171,541 | $1,171,541 | $698.27 | | |
| SCH206CAP | School 206 CP | 0.3066144020 | $1,171,541 | $1,171,541 | $359.21 | | |
| SCH206MO | School 206 Enrichment | 0.4808755445 | $1,171,541 | $1,171,541 | $563.37 | | |
| ST | State School | 1.4761226122 | $1,171,541 | $1,171,541 | $1,729.34 | | |
| ST2 | State School Part 2 | 0.7953803475 | $1,171,541 | $1,171,541 | $931.82 | | |
| SWHIDPRBD | P & R S Whidbey BOND | 0.0144185398 | $1,171,541 | $1,171,541 | $16.89 | | |
| SWHIDPRBD3 | P & R S Whidbey BOND3 | 0.1483535547 | $1,171,541 | $1,171,541 | $173.80 | | |
| SWHIDPRMT | P & R S Whidbey GEN | 0.4600000000 | $1,171,541 | $1,171,541 | $538.91 | | |
| | Total Tax Rate: | 7.8330503944 | | | | | |
| | | | | Taxes w/Current Exemptions: | $9,176.75 | | |
| | | | | Taxes w/o Exemptions: | $9,176.75 | | |
Improvement / Building
| Improvement #1: | RESIDENTIAL | State Code: | Y | 1165.0 sqft | Value: | $225,891 |
| Bathrooms: | 1.5 | Bedrooms: | 2 | | Ceiling: | DRY WALL SPRAYED | Exterior Wall/Cover: | PLY/HARDBOARD T-111 | | Floor Covering: | HARDWOOD/CARP 20-80 | Floor Structure: | WOOD W/SUBFLOOR | | Foundation: | CONCRETE | Heating: | BASEBOARD ELECTRIC | | Interior Finish: | DRYWALL PAINT | Plumbing Fixture Cnt: | 8 | | Roof Slope: | 4" IN 12" | Roof Structure/Cover: | CJ ASPHALT |
|
| | Type | Description | Class CD | Sub Class CD | Year Built | Area |
| | BAS | BASE/MAIN FLOOR | 3 | 0 | 1972 | 1165.0 |
| | AGR | ATTACHED GARAGE | 3 | 0 | 1972 | 684.0 |
| | OWP | OPEN WOOD PORCH W/STEPS | 3 | 0 | 1972 | 599.5 |
| | OWC | OPEN WOOD PORCH W/STEPS/ROOF/C | 3 | 0 | 1972 | 97.5 |
Sketch
Property Image
Land
| 1 | LB | LOW BANK | 0.0000 | 0.00 | 60.00 | 0.00 | 1.00 | $945,000 | $0 |
| 2 | 55 | TIDES | 0.0000 | 0.00 | 65.00 | 0.00 | 1.00 | $650 | $0 |
Roll Value History
| 2026 | N/A | N/A | N/A | N/A | N/A |
| 2025 | $225,891 | $945,650 | $0 | $1,171,541 | $1,171,541 |
| 2024 | $233,648 | $945,650 | $0 | $1,179,298 | $1,179,298 |
| 2023 | $236,712 | $945,650 | $0 | $1,182,362 | $1,182,362 |
| 2022 | $217,124 | $900,650 | $0 | $1,117,774 | $1,117,774 |
| 2021 | $191,216 | $750,650 | $0 | $941,866 | $941,866 |
| 2020 | $186,184 | $600,650 | $0 | $786,834 | $786,834 |
| 2019 | $98,802 | $675,650 | $0 | $774,452 | $774,452 |
| 2018 | $99,206 | $600,650 | $0 | $699,856 | $699,856 |
| 2017 | $93,172 | $600,650 | $0 | $693,822 | $693,822 |
| 2016 | $94,676 | $600,650 | $0 | $695,326 | $695,326 |
| 2015 | $96,179 | $600,650 | $0 | $696,829 | $696,829 |
| 2014 | $97,681 | $500,650 | $0 | $598,331 | $598,331 |
| 2013 | $93,783 | $421,508 | $0 | $515,291 | $515,291 |
| 2012 | $95,271 | $421,508 | $0 | $516,779 | $516,779 |
| 2011 | $96,759 | $421,508 | $0 | $518,267 | $518,267 |
| 2010 | $109,649 | $421,508 | $0 | $531,157 | $531,157 |
| 2009 | $114,585 | $603,200 | $0 | $717,785 | $717,785 |
| 2008 | $116,178 | $556,850 | $0 | $673,028 | $673,028 |
| 2007 | $114,585 | $556,395 | $0 | $670,980 | $670,980 |
Deed and Sales History
| 1 | 04/19/2023 | WD | Warranty Deed | CASTO, MARK | ADAMS, MARILYN ANN | | | $1,520,000.00 | 56479 | 4559119 |
|   | |
| 2 | 06/20/2019 | WD | Warranty Deed | ANDERSON, ROGER E | CASTO, MARK | | | $959,000.00 | 39134 | 4466085 |
| 3 | 04/28/2014 | QCD | Quit Claim Deed | ANDERSON, PAMELA K | ANDERSON, ROGER E | | | $250,000.00 | 15070 | 4358578 |
|   | |
| 4 | 04/28/2014 | QCD | Quit Claim Deed | CHESTER TRUSTEE, ELEANOR S | ANDERSON, PAMELA K | | | $0.00 | 15067 | 4358573 |
| 5 | 06/30/2000 | QCD | Quit Claim Deed | Unknown | CHESTER, TR, ELEANOR S | | | $0.00 | 2531 | 20012000 |
Payout Agreement
| No payout information available.. |