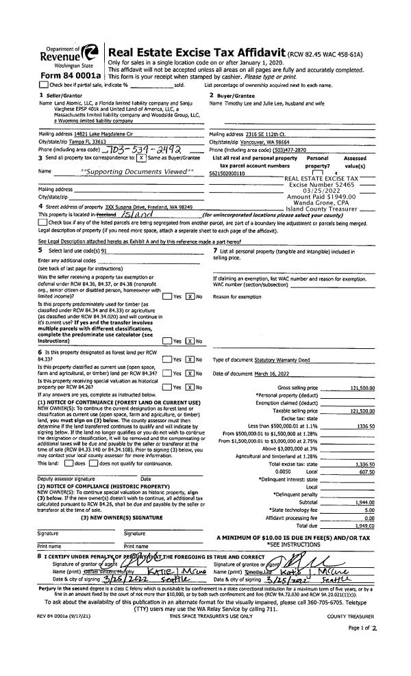
Property
Account |
| Property ID: | 202587 | Abbreviated Legal Description: | BUSH PT SHORES 2 LOTS 11 & 12 COMB 10/91 |
| Geographic ID: | S6215-02-00011-0 | Agent Code: | |
| Type: | Real | | |
| Tax Area: | 340 - APPRAISER-Cpvl Schl Dist, Special Dist, improved & less than 1 acre | Land Use Code | 11 |
| Open Space: | N | DFL | N |
| Historic Property: | N | Remodel Property: | N |
| Multi-Family Redevelopment: | N | | |
| Township: | | Section: | |
| Range: | |
Location |
| Address: | SUSANA DR FREELAND, WA 98249 | Mapsco: | |
| Neighborhood: | Cycle 3 | Map ID: | 430 |
| Neighborhood CD: | 3 |
Owner |
| Name: | LEE, TIMOTHY | Owner ID: | 303553 |
| Mailing Address: | JUILE LEE 2316 SE 112TH CT VANCOUVER, WA 98664 | % Ownership: | 100.0000000000% |
| | | Exemptions: | |
Taxes and Assessment Details
Values
| (+) Improvement Homesite Value: | + | $0 | |
| (+) Improvement Non-Homesite Value: | + | $4,000 | |
| (+) Land Homesite Value: | + | $0 | |
| (+) Land Non-Homesite Value: | + | $90,000 | |
| (+) Curr Use (HS): | + | $0 | $0 |
| (+) Curr Use (NHS): | + | $0 | $0 |
| | | -------------------------- | |
| (=) Market Value: | = | $94,000 | |
| (–) Productivity Loss: | – | $0 | |
| | | -------------------------- | |
| (=) Subtotal: | = | $94,000 | |
| (+) Senior Appraised Value: | + | $0 | |
| (+) Non-Senior Appraised Value: | + | $94,000 | |
| | | -------------------------- | |
| (=) Total Appraised Value: | = | $94,000 | |
| (–) Senior Exemption Loss: | – | $0 | |
| (–) Exemption Loss: | – | $0 | |
| | | -------------------------- | |
| (=) Taxable Value: | = | $94,000 | |
Taxing Jurisdiction
| Owner: | LEE, TIMOTHY | | |
| % Ownership: | 100.0000000000% | | |
| Total Value: | $94,000 | | |
| Tax Area: | 340 - APPRAISER-Cpvl Schl Dist, Special Dist, improved & less than 1 acre |
| CF | Conservation Futures | 0.0313996660 | $94,000 | $94,000 | $2.95 | | |
| CEM2 | Cemetery #2 | 0.0092609791 | $94,000 | $94,000 | $0.87 | | |
| FIRE5 | Fire & Rescue Dist #5 C Whidbey GEN | 1.1892169230 | $94,000 | $94,000 | $111.79 | | |
| FIRE5BOND | Fire & Rescue Dist #5 C Whidbey BOND | 0.1394359503 | $94,000 | $94,000 | $13.11 | | |
| HOBOND | Hospital BOND | 0.1893405597 | $94,000 | $94,000 | $17.80 | | |
| HOGEN | Hospital GEN | 0.3848777722 | $94,000 | $94,000 | $36.18 | | |
| CE | County Current Expense | 0.3674210519 | $94,000 | $94,000 | $34.54 | | |
| CR | County Roads | 0.4614296361 | $94,000 | $94,000 | $43.37 | | |
| ISLANDEMS | Hospital GEN (EMS) | 0.4952018576 | $94,000 | $94,000 | $46.55 | | |
| LIB | Library Sno-Isle GEN | 0.3039084203 | $94,000 | $94,000 | $28.57 | | |
| LIBCAP | Library Sno-Isle BOND (Cap Fac Imp Area) | 0.0528562629 | $94,000 | $94,000 | $4.97 | | |
| POCOUP | Port of Coupeville GEN | 0.1065226063 | $94,000 | $94,000 | $10.01 | | |
| POCOUPIDD | Port of Coupeville IDD | 0.3353038577 | $94,000 | $94,000 | $31.52 | | |
| COUPSDTECH | School 204 CP (TECH) | 0.1215123397 | $94,000 | $94,000 | $11.42 | | |
| SCH204MO | School 204 Enrichment | 0.6416662518 | $94,000 | $94,000 | $60.32 | | |
| ST | State School | 1.4761226122 | $94,000 | $94,000 | $138.76 | | |
| ST2 | State School Part 2 | 0.7953803475 | $94,000 | $94,000 | $74.77 | | |
| | Total Tax Rate: | 7.1008570943 | | | | | |
| | | | | Taxes w/Current Exemptions: | $667.50 | | |
| | | | | Taxes w/o Exemptions: | $667.50 | | |
Improvement / Building
| Improvement #1: | RESIDENTIAL | State Code: | Y | 0.0 sqft | Value: | $4,000 |
Sketch
| No sketches available for this property. |
Property Image
Land
| 1 | HB | HIGH BLUFF | 0.0000 | 0.00 | 141.00 | 0.00 | 1.00 | $90,000 | $0 |
Roll Value History
| 2026 | N/A | N/A | N/A | N/A | N/A |
| 2025 | $4,000 | $90,000 | $0 | $94,000 | $94,000 |
| 2024 | $4,000 | $85,000 | $0 | $89,000 | $89,000 |
| 2023 | $4,000 | $85,000 | $0 | $89,000 | $89,000 |
| 2022 | $4,000 | $85,000 | $0 | $89,000 | $89,000 |
| 2021 | $4,000 | $70,000 | $0 | $74,000 | $74,000 |
| 2020 | $4,000 | $70,000 | $0 | $74,000 | $74,000 |
| 2019 | $4,000 | $70,000 | $0 | $74,000 | $74,000 |
| 2018 | $4,000 | $70,000 | $0 | $74,000 | $74,000 |
| 2017 | $4,000 | $55,002 | $0 | $59,002 | $59,002 |
| 2016 | $4,000 | $55,002 | $0 | $59,002 | $59,002 |
| 2015 | $4,000 | $55,002 | $0 | $59,002 | $59,002 |
| 2014 | $4,000 | $55,002 | $0 | $59,002 | $59,002 |
| 2013 | $4,000 | $55,002 | $0 | $59,002 | $59,002 |
| 2012 | $4,000 | $55,002 | $0 | $59,002 | $59,002 |
| 2011 | $4,000 | $55,002 | $0 | $59,002 | $59,002 |
| 2010 | $4,000 | $55,002 | $0 | $59,002 | $59,002 |
| 2009 | $4,000 | $73,337 | $0 | $77,337 | $77,337 |
| 2008 | $4,000 | $73,337 | $0 | $77,337 | $77,337 |
| 2007 | $4,000 | $69,014 | $0 | $73,014 | $73,014 |
Deed and Sales History
| 1 | 03/16/2022 | WD | Warranty Deed | UNITED LAND OF AMERICA, LLC | LEE, TIMOTHY | | | $121,500.00 | 52465 | 4542234 |
| 2 | 05/20/2020 | WD | Warranty Deed | COBURN, VIRGINIA H | UNITED LAND OF AMERICA, LLC | | | $77,127.00 | 43123 | 4487430 |
| 3 | 10/01/1991 | OTHER | Other - Misc. Documents | COBURN, VIRGINIA H | COBURN, VIRGINIA H | | | $0.00 | 64514 | 91015836 |
| 4 | 05/01/1986 | WD | Warranty Deed | STRATFORD, ROBERT H | COBURN, VIRGINIA H | | | $7,000.00 | 61384 | 86006437 |
| 5 | 03/01/1979 | OTHER | Other - Misc. Documents | Unknown | STRATFORD, ROBERT H | | | $0.00 | 91027 | 348659 |
Payout Agreement
| No payout information available.. |