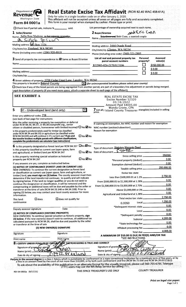
Property
Account |
| Property ID: | 202854 | Abbreviated Legal Description: | BUSH PT SHORES 4 LOT 7 |
| Geographic ID: | S6215-04-00007-0 | Agent Code: | |
| Type: | Real | | |
| Tax Area: | 349 - APPRAISER-Cpvl Schl Dist, Special Dist, vacant & 50 acres or less | Land Use Code | 99 |
| Open Space: | N | DFL | N |
| Historic Property: | N | Remodel Property: | N |
| Multi-Family Redevelopment: | N | | |
| Township: | | Section: | |
| Range: | |
Location |
| Address: | | Mapsco: | |
| Neighborhood: | Cycle 3 | Map ID: | 430 |
| Neighborhood CD: | 3 |
Owner |
| Name: | STRUTHERS, SANDRA A | Owner ID: | 304540 |
| Mailing Address: | RAYMOND J STRUTHERS 22211 31ST AVE SE BOTHELL, WA 98021 | % Ownership: | 100.0000000000% |
| | | Exemptions: | U500 |
Taxes and Assessment Details
Values
| (+) Improvement Homesite Value: | + | N/A | |
| (+) Improvement Non-Homesite Value: | + | N/A | |
| (+) Land Homesite Value: | + | N/A | |
| (+) Land Non-Homesite Value: | + | N/A | Ag / Timber Use Value |
| (+) Curr Use (HS): | + | N/A | N/A |
| (+) Curr Use (NHS): | + | N/A | N/A |
| | | -------------------------- | |
| (=) Market Value: | = | N/A | |
| (–) Productivity Loss: | – | N/A | |
| | | -------------------------- | |
| (=) Subtotal: | = | N/A | |
| (+) Senior Appraised Value: | + | N/A | |
| (+) Non-Senior Appraised Value: | + | N/A | |
| | | -------------------------- | |
| (=) Total Appraised Value: | = | N/A | |
| (–) Senior Exemption Loss: | – | N/A | |
| (–) Exemption Loss: | – | N/A | |
| | | -------------------------- | |
| (=) Taxable Value: | = | N/A | |
Taxing Jurisdiction
| Owner: | STRUTHERS, SANDRA A | | |
| % Ownership: | 100.0000000000% | | |
| Total Value: | N/A | | |
| Tax Area: | 349 - APPRAISER-Cpvl Schl Dist, Special Dist, vacant & 50 acres or less |
| CF | Conservation Futures | N/A | N/A | N/A | N/A | | |
| WCD | Whidbey Conservation District | N/A | N/A | N/A | N/A | | |
| CEM2 | Cemetery #2 | N/A | N/A | N/A | N/A | | |
| HOBOND | Hospital BOND | N/A | N/A | N/A | N/A | | |
| HOGEN | Hospital GEN | N/A | N/A | N/A | N/A | | |
| CE | County Current Expense | N/A | N/A | N/A | N/A | | |
| CR | County Roads | N/A | N/A | N/A | N/A | | |
| ISLANDEMS | Hospital GEN (EMS) | N/A | N/A | N/A | N/A | | |
| LIB | Library Sno-Isle GEN | N/A | N/A | N/A | N/A | | |
| LIBCAP | Library Sno-Isle BOND (Cap Fac Imp Area) | N/A | N/A | N/A | N/A | | |
| POCOUP | Port of Coupeville GEN | N/A | N/A | N/A | N/A | | |
| COUPSDTECH | School 204 CP (TECH) | N/A | N/A | N/A | N/A | | |
| SCH204MO | School 204 Enrichment | N/A | N/A | N/A | N/A | | |
| ST | State School | N/A | N/A | N/A | N/A | | |
| ST2 | State School Part 2 | N/A | N/A | N/A | N/A | | |
| | Total Tax Rate: | N/A | | | | | |
| | | | | Taxes w/Current Exemptions: | N/A | | |
| | | | | Taxes w/o Exemptions: | N/A | | |
Improvement / Building
Sketch
| No sketches available for this property. |
Property Image
Land
| 1 | 14 | SQ (08001-12000) | 0.0000 | 0.00 | 0.00 | 0.00 | 1.00 | N/A | N/A |
Roll Value History
| 2026 | N/A | N/A | N/A | N/A | N/A |
| 2025 | $0 | $450 | $0 | $450 | $0 |
| 2024 | $0 | $450 | $0 | $450 | $0 |
| 2023 | $0 | $450 | $0 | $450 | $0 |
| 2022 | $0 | $450 | $0 | $450 | $0 |
| 2021 | $0 | $450 | $0 | $450 | $0 |
| 2020 | $0 | $450 | $0 | $450 | $0 |
| 2019 | $0 | $450 | $0 | $450 | $0 |
| 2018 | $0 | $450 | $0 | $450 | $0 |
| 2017 | $0 | $450 | $0 | $450 | $0 |
| 2016 | $0 | $450 | $0 | $450 | $0 |
| 2015 | $0 | $450 | $0 | $450 | $0 |
| 2014 | $0 | $450 | $0 | $450 | $0 |
| 2013 | $0 | $7,000 | $0 | $7,000 | $7,000 |
| 2012 | $0 | $7,000 | $0 | $7,000 | $7,000 |
| 2011 | $0 | $7,000 | $0 | $7,000 | $7,000 |
| 2010 | $0 | $7,000 | $0 | $7,000 | $7,000 |
Deed and Sales History
| 1 | 03/25/2022 | WD | Warranty Deed | SEYMOUR, MARY JANE | STRUTHERS, SANDRA A | | | $25,000.00 | 52537 | 4542547 |
|   | |
| 2 | 06/21/2010 | ESTSEPPROP | Establish Separate Property | SEYMOUR, MARY JANE | SEYMOUR, MARY JANE | | | $0.00 | 1666 | 4276717 |
| 3 | 11/02/1998 | WD | Warranty Deed | WHIDBEY, ISLAND A | SEYMOUR, MARY JANE | | | $11,000.00 | 84565 | 98024863 |
| 4 | 03/01/1995 | QCD | Quit Claim Deed | WHIDBEY, ISLAND A | WHIDBEY, ISLAND A | | | $0.00 | 50775 | 95003581 |
| 5 | 03/01/1995 | QCD | Quit Claim Deed | SOLA, OLAV M | WHIDBEY, ISLAND A | | | $0.00 | 50842 | 95004149 |
| 6 | 02/01/1995 | QCD | Quit Claim Deed | WHIDBEY, ISLAND A | SOLA, OLAV M | | | $0.00 | 53503 | 95016016 |
| 7 | 08/01/1969 | EZ | Easement | AARSETH, EINAR | WHIDBEY, ISLAND A | | | $0.00 | 36126 | 0 |
| 8 | 01/01/1900 | OTHER | Other - Misc. Documents | Unknown | AARSETH, EINAR | | | $0.00 | 0 | 0 |
Payout Agreement
| No payout information available.. |